
Located directly north of Tokyo Station, one of Japan’s largest railway hubs, the TOKYO TORCH redevelopment district is envisioned as a light of hope illuminating Japan. The district sits within a National Strategic Special Zone, intended to strengthen Japan’s international economic competitiveness, and will be a new center of finance and business. It will include Torch Tower, projected to be Japan’s tallest building at 390 meters when completed in FY2027; Tokiwabashi Tower; an Electrical Substation Building; a Sewerage & Waterworks Bureau Building; Tokyo Torch Park; and Tokiwabashi Park. Four existing dilapidated buildings are being demolished and replaced in stages in conjunction with the renewal of urban infrastructure including electrical and water facilities. Tokiwabashi Tower, a 38-story, 212m-high mixed-use building, is the first element of the project to be completed.
Soaring among the tallest mixed-use buildings around Tokyo Station, Tokiwabashi Tower is a next-generation business center offering quality office space that supports diverse work styles and innovation while providing outstanding environmental and disaster-safety performance. The building’s form suggests a blade cutting open the future, while the upper section is wrapped in a grid that creates depth and shadow—an exterior design fitting for a center of international finance. The grid blocks sunlight much like kigoushi (wooden latticework) and shoji (paper-covered sliding doors) do in traditional Japanese architecture, gently connecting the interior and exterior environments.
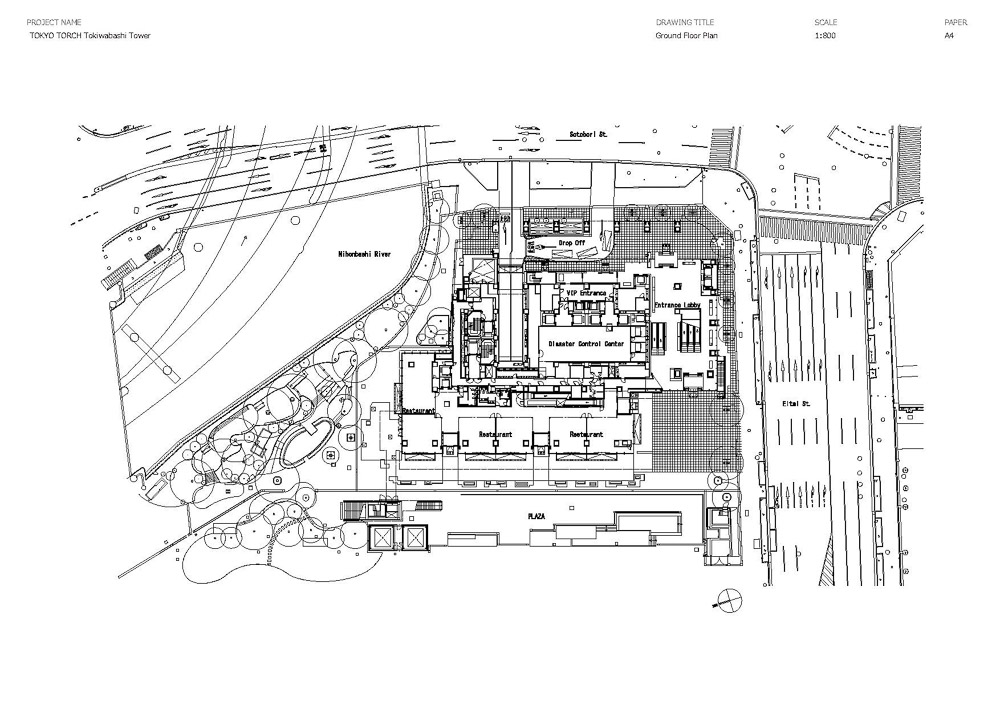
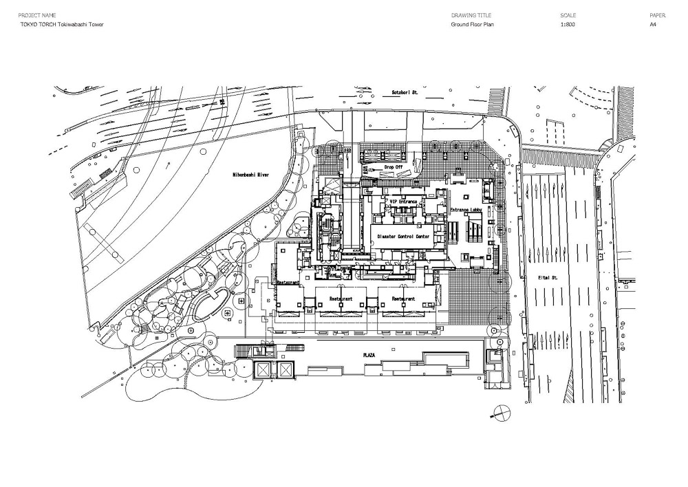
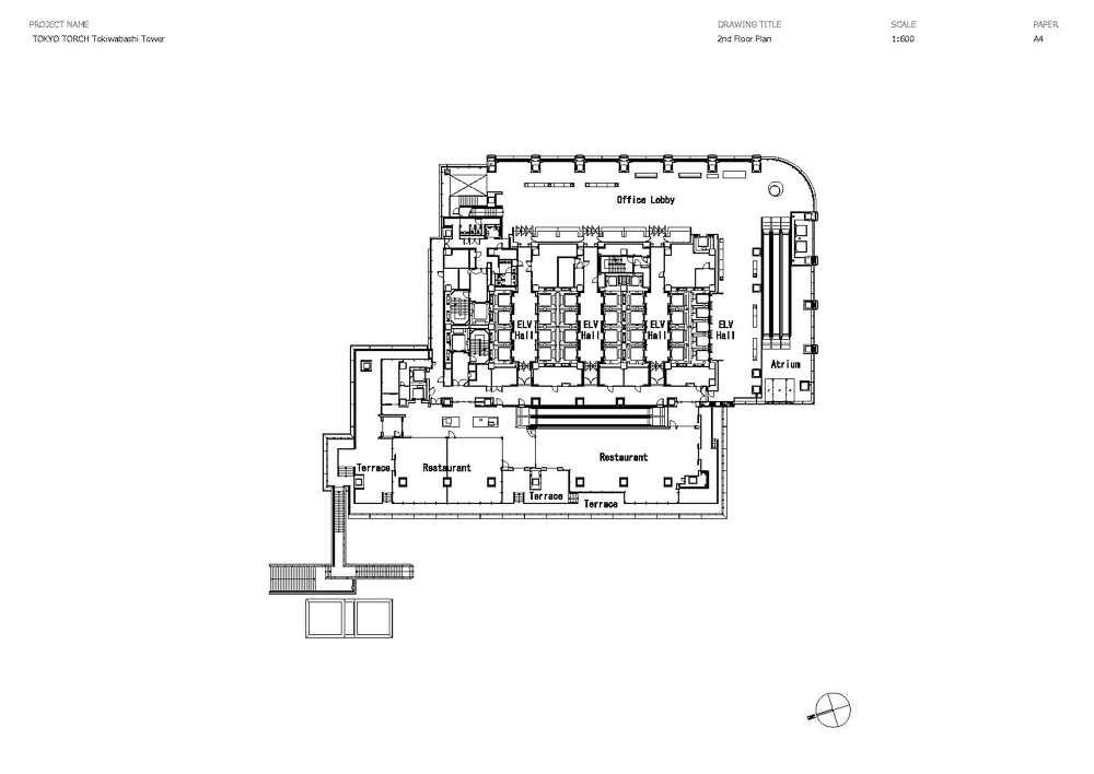
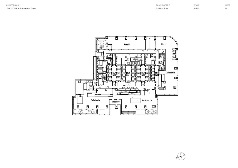
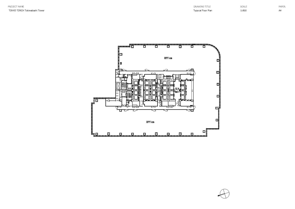
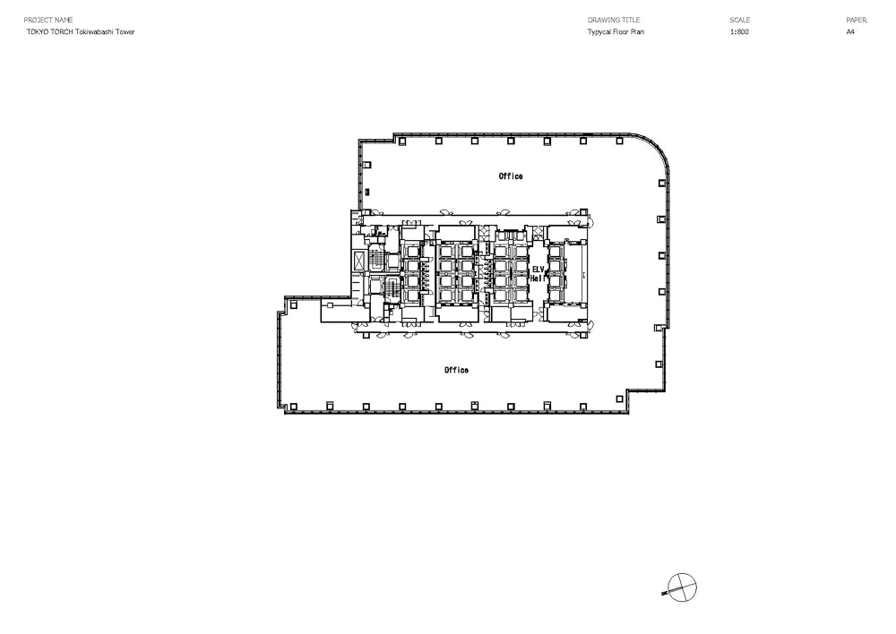
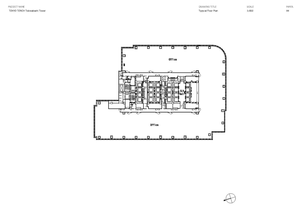
The first underground floor and first two above-ground floors are occupied by restaurants and bars, the third floor is a cafeteria, and the eighth through thirty-seventh floors are offices. The abundant use of familiar natural materials such as wood and stone, long utilized in Japanese architecture, is intended to enhance productivity and satisfaction among workers.
The building site for Tokiwabashi Tower is among the smallest and most irregularly shaped lots of the entire redevelopment district. To ensure that the tower is competitive with other large-scale office buildings, it was necessary to expand the floor plate on the upper levels. Starting on the eighth floor, floor area is expanded by angling the structural pillars to overhang the lower floors. The appropriate placement of dampers and braces ensures that the building remains safe in the event of earthquakes and typhoons, which are common in Japan.

도심 속 비즈니스 센터의 형태, 도키와바시 빌딩
일본 최대의 철도 허브 중 하나인 도쿄역의 북쪽에 위치한 ‘도쿄 토치(Tokyo Torch) 재개발지구’는 일본을 비추는 희망의 빛이 되길 바라며 계획됐다. 이곳은 일본의 국제 경제 경쟁력을 강화하기 위해 ‘국가 전략 특수지역’ 내에 있으며, 금융 및 비즈니스를 위한 새로운 중심지가 될 것이다. 또한, 일본에서 가장 높은 건물이 될 360m 높이의 ‘토치 타워(Torch Tower)’도 2027년에 이곳에 세워질 예정이다. 도키와바시 타워, 변전소 건물, 하수 및 수도국, 도쿄 횃불 공원, 도키와바시 공원과 같이 노후된 건물은 전기 및 수도 시설을 비롯한 도시 기반 시설과 함께 리뉴얼하기 위해 단계적으로 철거와 교체가 진행되고 있다. 212m 높이의 38층 복합 건물인 ‘도키와바시 타워’는 이 프로젝트의 첫 결과물이 될 것으로 보인다.
도쿄역 주변에서 가장 높게 우뚝 솟아 있는 주상복합 빌딩인 도키와바시 타워는 우수한 주변 환경과 자연재난에 대비 가능한 기능을 제공하고 다양한 작업스타일과 혁신에 밑바탕이 되는 질 높은 업무 공간을 갖춘 차세대 비즈니스 센터가 될 것이다. 국제 금융의 중심지에 걸맞게 건물의 외관은 미래를 여는 칼날을 연상시키고 건물의 윗부분은 그림자를 만들어내는 격자로 감싸져 있다. 격자는 전통 건축의 키고시(나무격자), 창호(종이로 덮인 미닫이문)와 같이 햇빛을 차단해주고 내부와 외부를 자연스럽게 연결해준다. 지하 1층과 지상 1, 2층은 레스토랑, 3층은 카페테리아, 8층부터 37층은 사무실로 사용될 예정이다. 오랫동안 일본 건축에 사용된 나무, 돌과 같은 천연 재료를 풍부하게 사용하여 이곳 근로자들의 생산성과 만족도를 높여준다.
도키와바시 타워의 건축 부지는 전체 재개발지구 중에서 가장 작고 불규칙한 형태의 부지였다. 이 건물이 다른 대형 오피스빌딩과의 비교에서 경쟁력을 갖기 위해서는 상층 바닥면의 확장은 불가피했다. 건물의 8층부터는 구조상의 기둥을 경사지게 하고 아래층은 돌출되도록 배치하여 바닥 면적을 확장했다. 댐퍼와 버팀대를 적절하게 배치하여 일본에서 흔히 발생하는 지진과 태풍에도 대비했다.




















Architect Mitsubishi Jisho Sekkei | 미츠비시 지쇼 세케이(주)
Location Otemachi, Chiyoda-ku, Tokyo, Japan
Program Office, Restaurant, Parking
Site area 5,455.97㎡
Building area 4,037.15㎡
Gross floor area 146,082.93㎡
Completion 2021. 6
Project architect Mitsubishi Jisho Sekkei Inc.
Interior Mitsubishi Jisho Sekkei Inc., Takuya Takahashi Architects, MEC Design International Corp., spinoff co.,ltd.
Structural engineer Mitsubishi Jisho Sekkei Inc.
MEP engineer Mitsubishi Jisho Sekkei Inc.
Construction Toda Corporation
Lighting design Sola associates
Client / Developer Mitsubishi Estate Co., Ltd.
Photographer Kawasumi Kobayashi Kenji Photograph Office
해당 프로젝트는 건축문화 2022년 2월호(Vol. 489)에 게재되었습니다.
The project was published in the February, 2022 recent projects of the magazine(Vol. 489).
February 2022 : vol. 489
Contents : RECORDS THE NATIONAL MUSEUM OF MODERN AND CONTEMPORARY ART DISCLOSES PLANS FOR 2022 국립현대미술관 2022년 전시 계획 공개 : NEWS / COMPETITION / BOOKS : SKETCH THE QUIET..
anc.masilwide.com
'Architecture Project > Office' 카테고리의 다른 글
| PICCOLO HOUSE (0) | 2022.05.16 |
|---|---|
| THEAR (0) | 2022.04.29 |
| EMK MUSICAL COMPANY (0) | 2022.04.18 |
| RE_BORN #1 CO.CO.SPACE (0) | 2022.02.22 |
| CNDI. COMPANY BUILDING (0) | 2022.02.21 |
마실와이드 | 등록번호 : 서울, 아03630 | 등록일자 : 2015년 03월 11일 | 마실와이드 | 발행ㆍ편집인 : 김명규 | 청소년보호책임자 : 최지희 | 발행소 : 서울시 마포구 월드컵로8길 45-8 1층 | 발행일자 : 매일


