
The site of EMK Musical Company is located at the crossroads where Nonhyeonno – one of the major roads in Gangnam, Seoul – and Nambusunhwan-ro intersect with each other. The future benefits, which will accrue from the high rent in Gangnam, especially the high rent on the ground floor, induce conflicts between the program and the desire for the office building space with abundant interior and exterior space (including the exterior space on the ground).
EMK Musical Company suggests a methodology for constructing a small to medium sized office building that the upper and lower parts of a building are divided and utilized, by allowing the lower floors to be used as rental areas and simultaneously open to the public and the upper floors to be used like another site that has a private external area as a company building, through the ‘strategy of’ outside space floating in the air’.
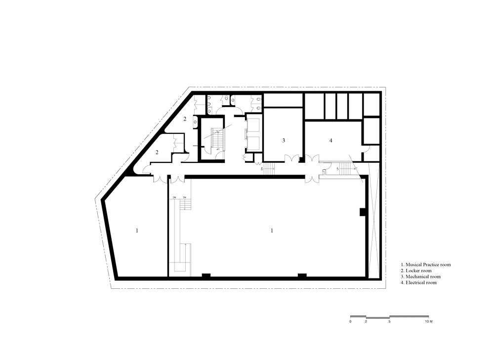
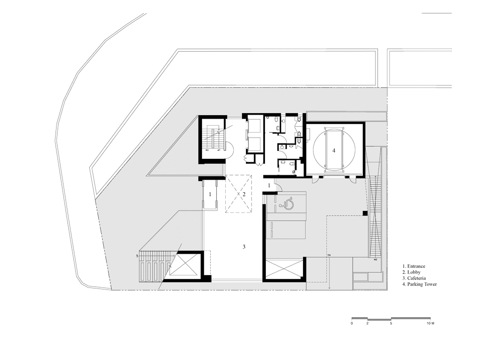
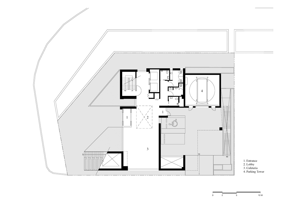
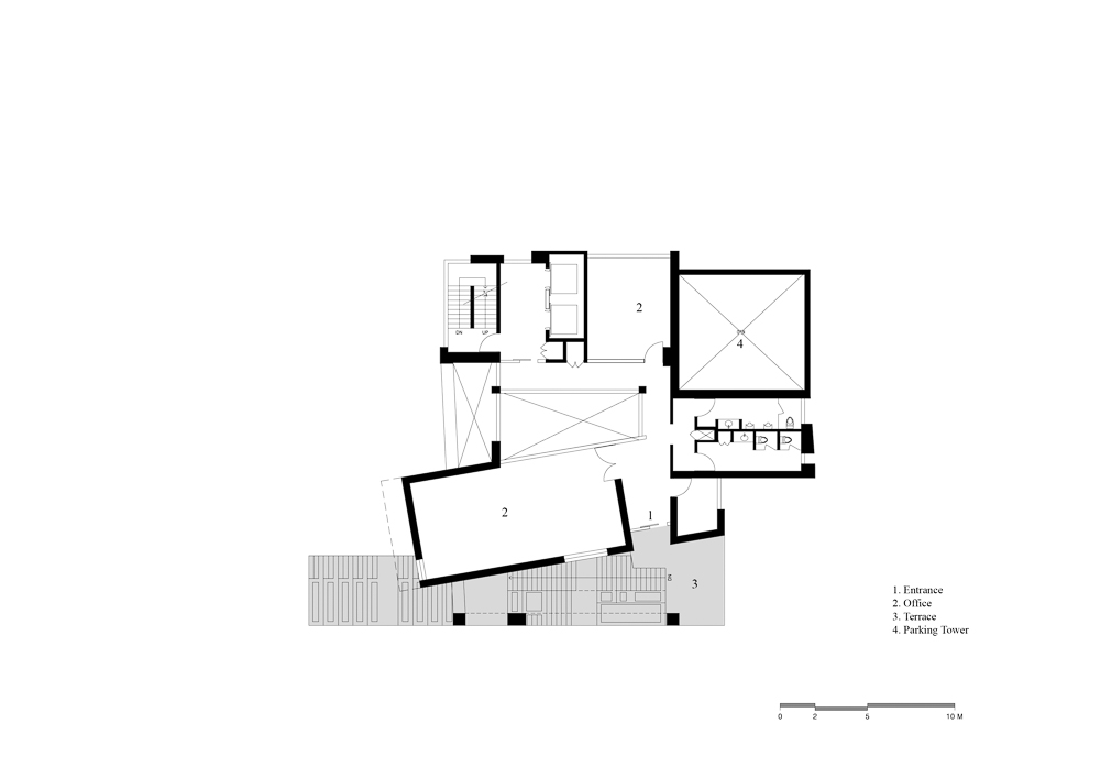
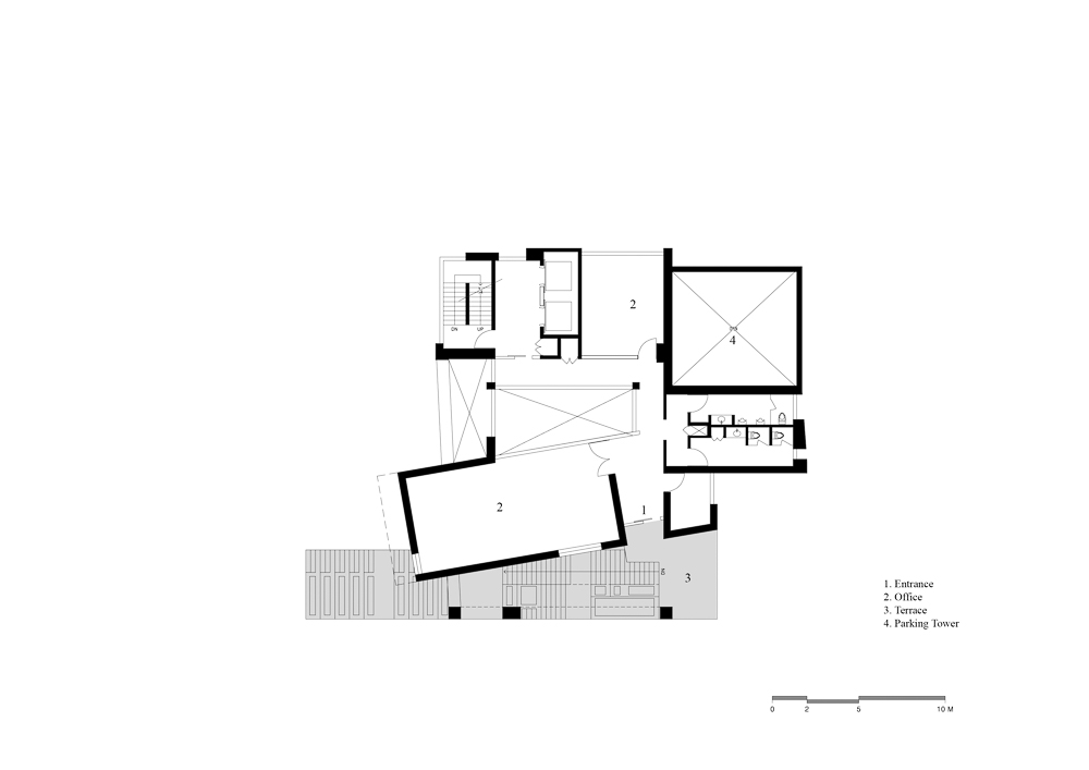
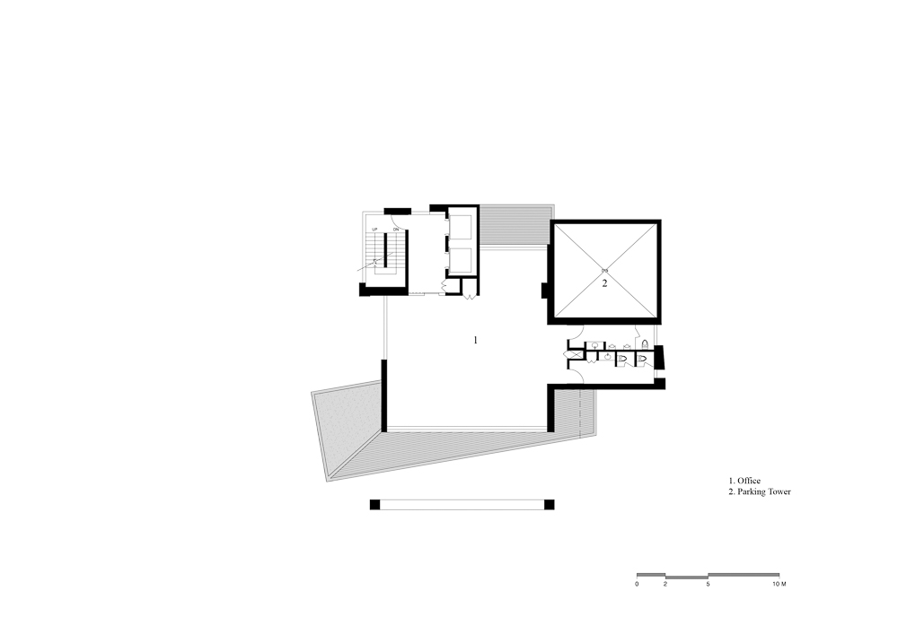
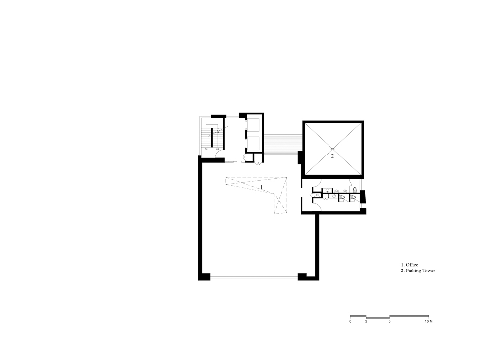
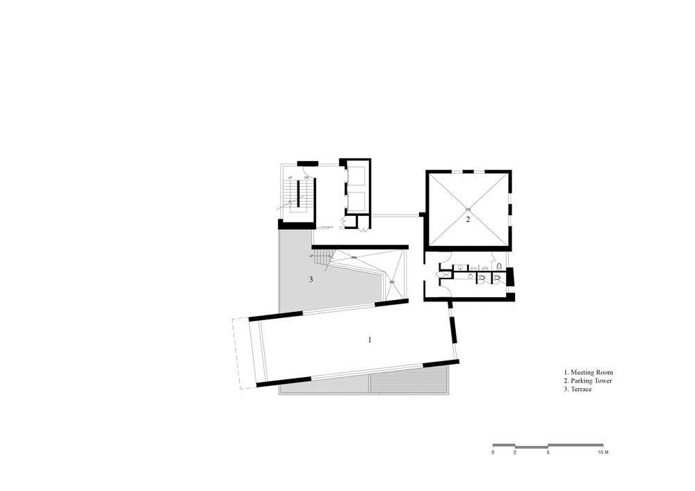
The practice room and office of the musical – which has the largest volume among the programs – are arranged on the basement and 5th floor, and then the upper part of each volume becomes an external space, each of which comes to have an independent external space. Particularly, the outer space on the 1st floor, which is inevitably lost by giving the lower floors of the office building as a rental space, becomes replaced with a courtyard external space on the upper floors to acquire a spatial specificity. The column structure that connects and supports the two programs will become the Main Structure of the entire building, and also become the base where the rest of the programs can be freely placed. In addition, the external spaces created by freely placing the rental and office areas on the upper parts of the two external spaces will be filled with various programs, such as open-air cafés, open-air offices, and outdoor conference rooms.
Among the architectural elements, the stairs are inevitably the most familiar being to users who produce Musicals. This is because, considering the characteristics of musical producers whose thought flows are directed towards the audience, their gaze is always fixed on a step-shaped structure. The external stairs that traverse and connect the volume of each floor will become architectural devices that could produce various events while users sit, lean, and pass through like in the auditorium. The external stairs connecting the 1st floor to the 3rd floor breathe with the rental area and open to the public, providing a 3-dimensional amenity for the urban space.
By creating unique urban landscapes from various perspectives, the freely arranged architectural elements will not only form the identity of EMK Musical Company, but also act as beings that give fresh changes to the urban landscape. I hope that they will become a symbolic being of the growth of EMK Musical Company, which produces and supplies contents to the global market as standing at the head of the recent growth trend of K-Musical.

논현로와 남부순환로가 교차하는 사거리에 포개진 볼륨들로 존재감을 드러내는 이 건축물은 EMK뮤지컬컴퍼니의 사옥이다. EMK 뮤지컬컴퍼니는 ‘공중에 떠 있는 외부공간’이라는 전략을 통해 저층부는 임대영역으로 사용하는 동시에 공공에 개방하고, 상층부는 사옥으로 개인적인 외부영역을 가지는 또 하나의 대지처럼 사용할 수 있도록 했다. 한 대지의 상 하부를 나누어 쓰는 중소규모 사옥건축물의 비전을 제안한다.
프로그램 중 가장 볼륨이 큰 뮤지컬 연습실과 사무실을 지하와 5층에 배치하고, 각 볼륨의 상부가 외부공간이 되어 각각 독립된 외부공간을 가진다. 특히, 사옥의 저층부를 임대공간으로 내어주면서 잃어버릴 수밖에 없는 1층의 외부공간은 상층부에 중정형의 외부공간으로 치환되면서 공간적 특이성을 획득하게 된다.
두 프로그램을 연결하고 지탱하는 기둥구조는 전체 건물의 주요 구조체로 나머지 프로그램들이 자유롭게 배치될 수 있는 토대가 된다. 또한, 두 외부공간의 상부에 임대영역과 사무실 영역을 자유롭게 배치하여 만들어진 외부공간들은 노천카페, 노천 사무실, 노천 회의실 같은 다양한 프로그램으로 채워질 수 있다.
1층부터 3층까지를 연결하는 외부계단은 임대영역과 호흡하며 공공에 개방되어 도시공간에 입체적인 편의시설을 제공한다. 뮤지컬에서 관객들과의 소통을 위해 시선이 객석에 고정된 뮤지컬 제작자들에게 계단은 가장 익숙한 건축요소이다. 건축가는 계단을 통해, 그들이 가지고 있는 사고와 시선을 건축적인 공간으로 풀어냈다. 각층의 분철된 볼륨을 가로지르며 연결하는 외부 계단들은 마치 객석처럼 다양한 이용자들이 앉고, 기대고, 통행하면서 다양한 활동을 생산해낼 수 있도록 만든다.
자유롭게 배치된 건축적 요소들은 여러 시점에서 특이한 도시경관을 만들며, 도시 경관 속 EMK 뮤지컬컴퍼니의 선명한 정체성을 사람들에게 확실하게 인식시키는 건축물이다.





























Architect 디베르카 건축사사무소 | D-Werker Architects
Location Nonhyeon-ro, Gangnam-gu, Seoul, Republic of Korea
Program Office
Site area 858.60㎡
Building area 425.79㎡
Gross floor area 2,898.82㎡
Building scope B2, 8F
Building to land ratio 49.59%
Floor area ratio 247.26%
Design period 2018. 9 - 2019. 3
Construction period 2019. 3 - 2021. 3
Completion 2021
Principal architect Jieun Lee, Hwon Yoon
Project architect Jieun Lee, Hwon Yoon
Construction Hyelim Co.
Client EMK Musical Company
Photographer Inwoo Yeo
해당 프로젝트는 건축문화 2022년 2월호(Vol. 489)에 게재되었습니다.
The project was published in the February, 2022 recent projects of the magazine(Vol. 489).
February 2022 : vol. 489
Contents : RECORDS THE NATIONAL MUSEUM OF MODERN AND CONTEMPORARY ART DISCLOSES PLANS FOR 2022 국립현대미술관 2022년 전시 계획 공개 : NEWS / COMPETITION / BOOKS : SKETCH THE QUIET..
anc.masilwide.com
'Architecture Project > Office' 카테고리의 다른 글
| THEAR (0) | 2022.04.29 |
|---|---|
| TOKYO TORCH Tokiwabashi Tower (0) | 2022.04.19 |
| RE_BORN #1 CO.CO.SPACE (0) | 2022.02.22 |
| CNDI. COMPANY BUILDING (0) | 2022.02.21 |
| AOC BUSINESS CENTER (0) | 2022.02.17 |
마실와이드 | 등록번호 : 서울, 아03630 | 등록일자 : 2015년 03월 11일 | 마실와이드 | 발행ㆍ편집인 : 김명규 | 청소년보호책임자 : 최지희 | 발행소 : 서울시 마포구 월드컵로8길 45-8 1층 | 발행일자 : 매일



