
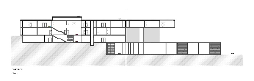
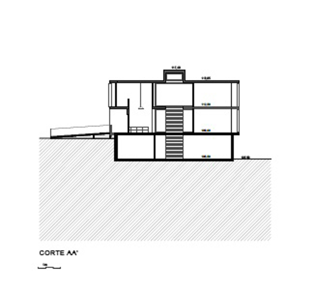
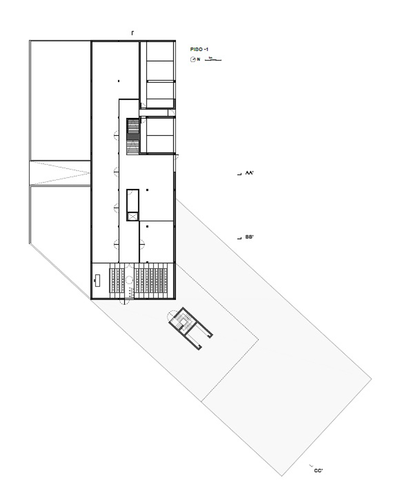
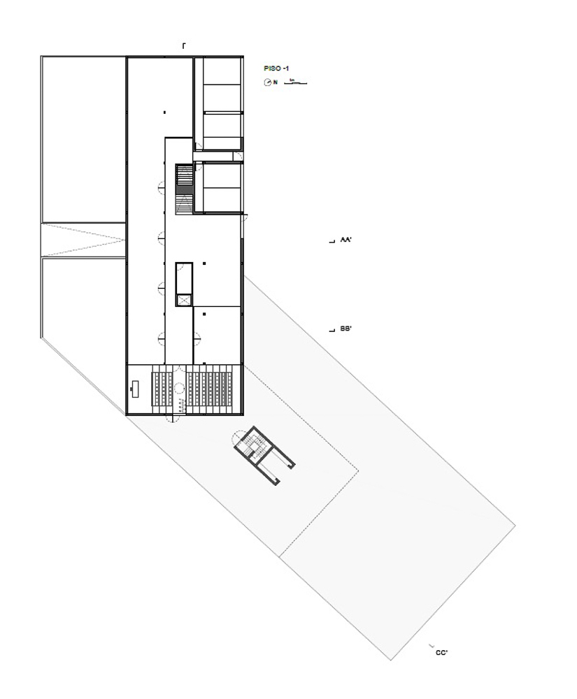
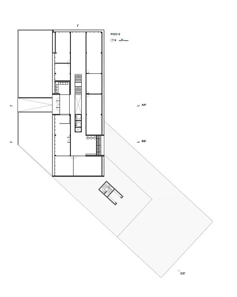
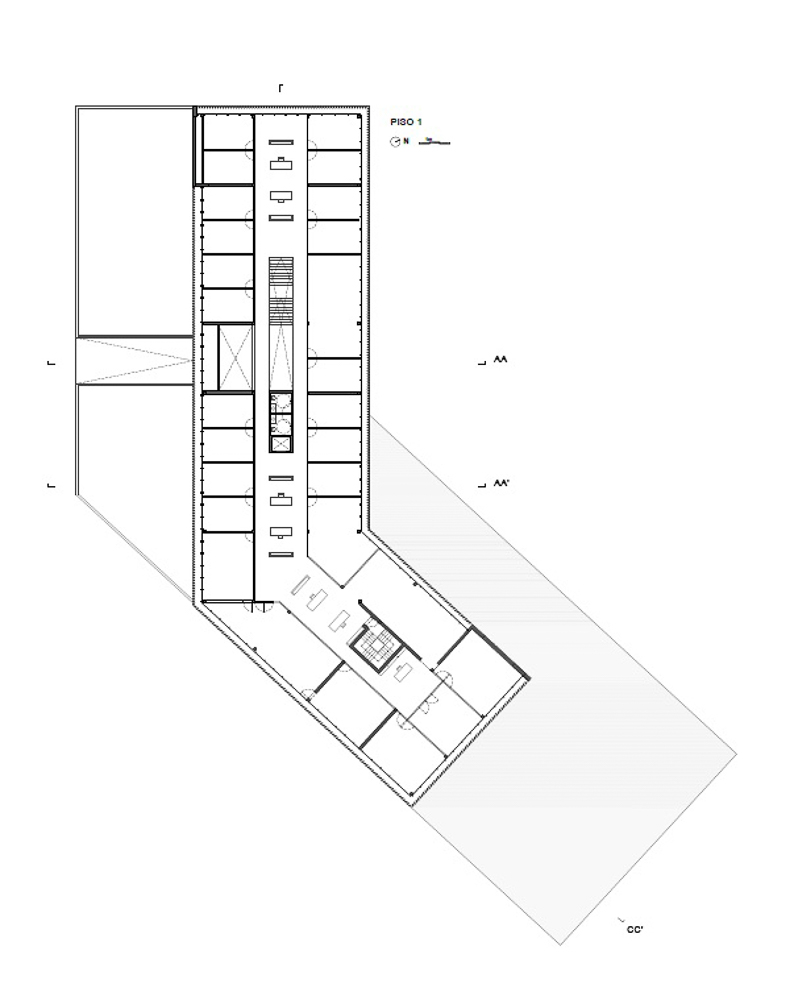
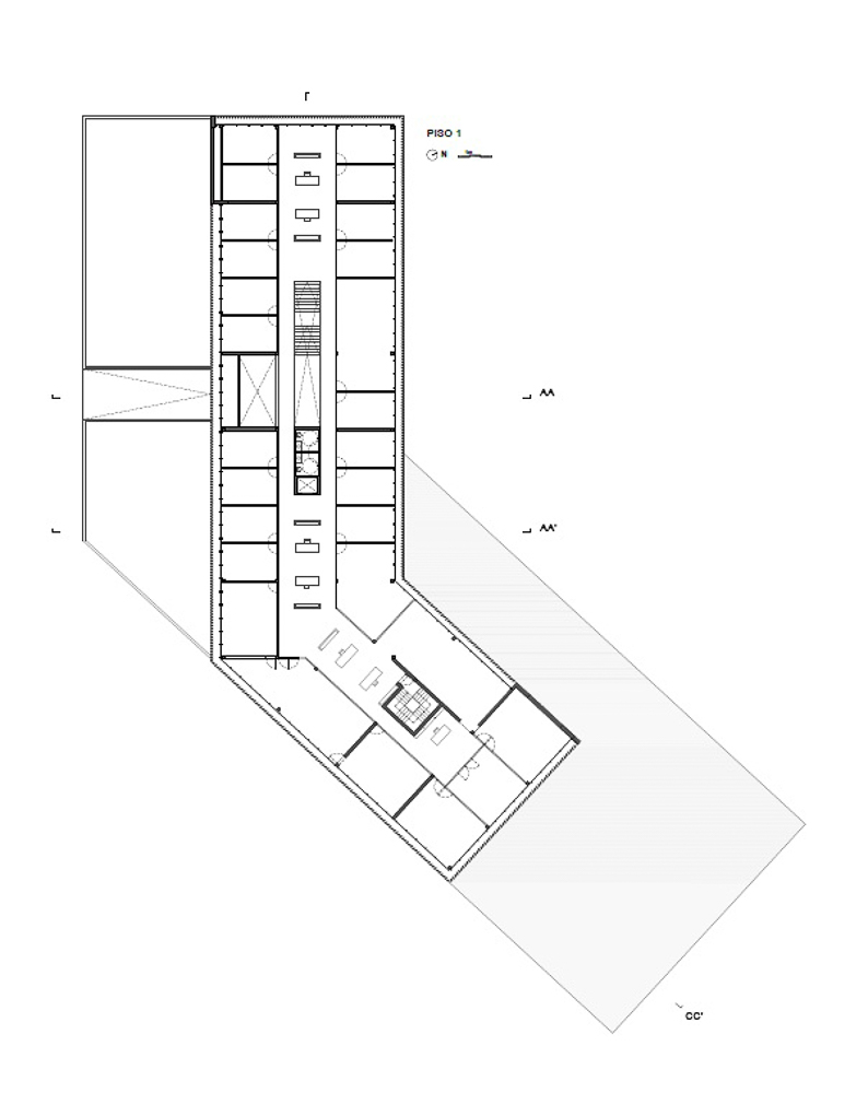
The New Headquarters and Warehouse of the company Aníbal Cristina is located in Pousos, Leiria, near the access to the A1 highway. The site has tree cover consisting of woodland, mainly pine trees and eucalyptus, which is part of Rede Natura. The architectural proposal results from both the programmatic premises and the plastic possibilities of concrete, as a material substance, and the know-how of AOC, in its activity, projection and stability. The program consists of offices, warehouses and garages, as well as an outdoor park including a tennis court, a lake and a cycle and pedestrian maintenance circuit. The project envisages a building subdivided into two distinct program: two floors of offices with entrance to the south and one floor of garage/archives (which also houses a 100 m2 training room in amphitheater) opening to the west. To this construction is attached a warehouse that is recessed into the land at a lower level, also opening to the west. Thus, we have two floors above the ground level of the building and two floors below, the latter being set in a drawer so as to have direct access to the exterior, namely 1st floor and 2nd floor. The exterior space incorporates an access road to the building and parking and manoeuvring areas dedicated to each functional component.

업무공간을 넘어 자연을 온전히 담아내는 콘크리트, AOC 업무센터
Aníbal Cristina 그룹의 새 본사 및 창고는 A1 고속도로 진입로와 가까운 곳에 위치하고 있다. 이 대지는 나투라 네트워크(Rede Natura, 생물의 다양성 보존을 위한 유럽 생태계 네트워크)의 일부로, 주로 소나무와 유칼립투스로 구성된 삼림 지대가 있다. 이 건축적 제안은 물질적 실체로서의 콘크리트의 프로그램적 전제와 소성적 가능성, 그리고 활동성, 투사성, 안정성 측면의 AOC의 노하우에서 비롯되었다. 이 프로그램은 사무실, 창고, 차고뿐만 아니라 테니스 코트, 호수, 자전거 및 보행자 순환로가 있는 야외 공원으로 구성된다. 이 프로젝트는 건물을 두 개의 별개의 프로그램으로 세분하는 계획이다. 남쪽으로 입구가 있는 2개 층의 사무실과 서쪽으로 열리는 차고 및 기록 보관소(100m2의 훈련실을 포함한 원형 극장도 있음)가 있다. 이 건축물에는 저층의 땅으로 움푹 들어간, 서쪽으로 열리는 창고가 붙어 있다. 따라서 건물의 2개 층은 지상에, 2개 층은 지하에 있으며, 후자는 서랍 형식으로 외부, 즉 1층과 2층에 직접 접근할 수 있도록 했다. 외부 공간은 건물로 이어지는 진입로와 각 기능적 구성요소 전용 주차 및 기동 구역을 포함한다.

















Architect mube arquitectura
Location Barreira, Portugal
Gross floor area 3.902,00㎡
Completion 2020
Principal architect Pedro Lemos Cordeiro, Patrícia Selada
Project architect Pedro Lemos Cordeiro, Patrícia Selada
Design team mube arquitectura
Engineer LbbC engenharia
Landscape consultant Nuno Moura
Project manager Pedro Lemos Cordeiro
Interior designer Daniela Cristina designer
Collaborator Paulo Vieira, Tânia Roque
Contractor AOC(Aníbal de Oliveira Cristina, Lda)
Photographer Alexander Bogorodskiy
해당 프로젝트는 건축문화 2021년 11월호(Vol. 486)에 게재되었습니다.
The project was published in the November, 2021 recent projects of the magazine(Vol. 486).
November 2021 : vol. 486
Contents : RECORDS OPEN EXPO 2020 DUBAI, AND KOREA PAVILION 세계에 퍼지는 한국의 친환경 메시지, 그리고 “마당" : NEWS / COMPETITION / BOOKS : SKETCH THE REMARKABLE PLACE IN THE NEIGHBO..
anc.masilwide.com
'Architecture Project > Office' 카테고리의 다른 글
| RE_BORN #1 CO.CO.SPACE (0) | 2022.02.22 |
|---|---|
| CNDI. COMPANY BUILDING (0) | 2022.02.21 |
| VENDÔME (0) | 2022.02.07 |
| SOHUN (0) | 2022.02.03 |
| THE STYLE BUILDING (0) | 2021.11.22 |
마실와이드 | 등록번호 : 서울, 아03630 | 등록일자 : 2015년 03월 11일 | 마실와이드 | 발행ㆍ편집인 : 김명규 | 청소년보호책임자 : 최지희 | 발행소 : 서울시 마포구 월드컵로8길 45-8 1층 | 발행일자 : 매일



