
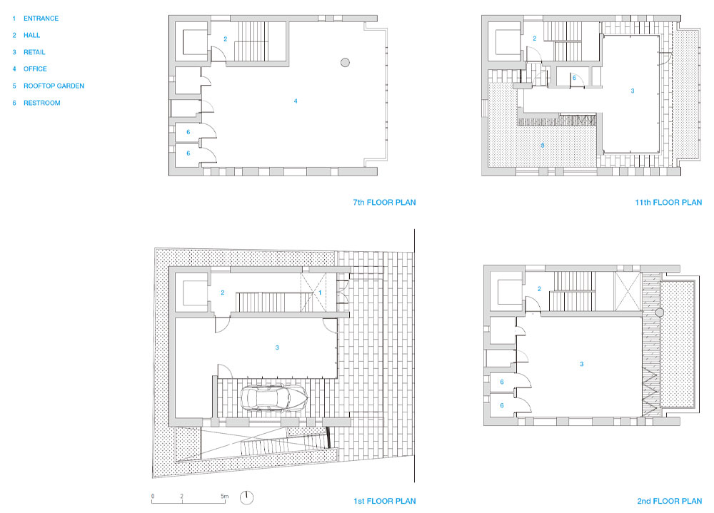
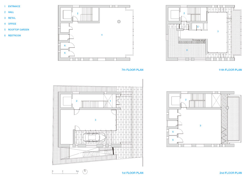
‘The Style Building’ is located on a small site facing a side street in the eastern block of the Seoul Central District Court. It is around 100m away Seoul Nat’l Univ. of Education (Court & Public Prosecutors’ Office) Station. The site faces a relatively narrow alleyway of 8m, but has a considerable amount of floating population. The street was plain, without any joyful sceneries or eye-catching places. We wanted to make a small change here.
There isn’t much space on the first floor, since both a parking space and a small shop had to be placed. Instead, a balcony was formed on the front side of the second floor and trees were planted. The walls on both sides and the mass of the third floor were pushed inside so that this space could stand out as much as possible. Wouldn’t it be possible to present a small but green scenery to those passing by the street? A folding door was installed on the second-floor balcony to allow the green space to be extended in the interior.
The green space on the second floor continues to the roof. Since this space, built on the top floor, was planned to be used as the client’s personal work space, it was made to seem like an independent building built on a separate site as much as possible. When leaving the elevator on the 11th floor, the outside scenery can be seen through a vertically long window at the left end of the staircase. The door that is encountered when turning to the right leads to a small exterior space facing the outside air. It was made to feel like entering a separate space. When opening another door, the main space is accessed through the corridor. A folding door was installed in the corridor so that it could be connected to the exterior garden, and a wooden porch was placed to allow one to sit and admire the small garden. After passing through the corridor and entering the main space, the entire city landscape can be seen through the open window wall. In front of it is a small garden that also serves as a balcony. The U-shaped garden surrounds the top floor with the intention of reviving the external space that was lost as the building filled the land.
Most of the base floors are to be used as offices. We wanted to make a column-free structure to prevent the use of the space obstructed by the columns. The exterior wall itself was built into a structural wall, and no columns were made except for one cylindrical column in the front. Most of the building is supported by the core and the outer wall. The thick outer wall embraces the lightly floating glass mass and holds it, allowing it to settle on the land stably. To avoid the wall appearing too heavy, a diagonal gap was left and vertically long windows were irregularly arranged on the central area of the southern side, allowing it to have a different appearance when approached from the alley. On the south side of the first floor, an exterior staircase leads to the small sunken yard on the basement floor, allowing light and air to pass through the commercial space to be built in the basement. We hope that this new building can revitalize the alley and become the starting point of a small change.

녹색의 풍경을 선사하는 업무공간, 더 스타일 빌딩
더 스타일 빌딩은 서울중앙지방법원 동측 블록의 이면도로에 면한 크지 않은 대지에 위치하고 있다. 교대역과는 불과 100m 남짓 떨어져 있다. 대지는 8m 폭의 좁은 골목에 면해 있으나 유동인구가 적지 않은 곳이다. 거리는 즐거운 풍경도, 눈길이 가는 곳도 별로 없는 평범한 모습이다. 건축가는 이곳에 작은 변화를 만들어내고 싶었다.
1층은 주차공간과 작은 상가가 되어야 해서 마땅한 공간이 없었다. 건축가는 대신 2층 정면에 발코니를 만들어 나무를 심고 이 공간이 최대한 돋보일 수 있도록 양옆의 벽과 3층의 매스를 안쪽으로 밀어 넣었다. 2층 발코니에는 전면 폴딩도어를 설치하여 녹색공간이 내부로 이어진다.
이 녹색공간은 옥상으로도 이어진다. 최상층에 만들어진 녹색공간은 건축주의 개인 업무공간으로 사용될 예정인데, 가능한 별도의 대지에 세워진 독립된 건물처럼 보인다. 11층 엘리베이터에서 내리면 계단실 왼쪽 끝의 세로로 긴 창을 통해 바깥 풍경이 힐끗 보인다. 오른쪽으로 돌아 문을 열면 외부의 작은 바깥 공간으로 이어진다. 분리된 별도의 공간으로 들어가는 느낌을 받을 수 있다. 다시 앞의 현관문을 열면 복도를 통해 주 공간으로 진입할 수 있는데 복도는 외부 정원과 연결되어 폴딩도어와 툇마루가 작은 정원의 분위기를 조성한다. 복도를 지나 주 공간으로 들어서면 전면이 개방된 창호를 통해 도시의 풍경이 한눈에 들어온다. 그 앞에는 발코니를 겸하는 작은 정원이 만들어져 있다. 건물이 땅을 차지해 사라진 자연공간을 옥상의 정원으로 되살리자는 의도로 최상층은 ‘ㄷ’자 형태로 정원이 둘러싸고 있다.
기준층 대부분의 용도는 오피스다. 기둥에 의해 공간의 사용이 방해받지 않도록 기둥 없는 구조로 만들고자 했다. 외벽 자체를 구조벽으로 만들어 전면 쪽 1개의 원기둥을 제외하고는 기둥을 만들지 않았다. 건물 대부분은 코어와 외벽으로 지탱된다. 가볍게 떠 있는 유리매스를 외벽이 감싸며 안정감 있게 대지에 정착되도록 잡아준다. 벽이 너무 무겁게 보이지 않도록 남측 중앙부는 사선으로 틈을 만들고, 세로로 긴 창이 불규칙적으로 배치되어 골목으로 접근할 때 색다른 모습으로 보이게 된다. 1층 남측 면에는 외부 계단이 지하층의 작은 선큰 마당과 연결되어 지하에 들어설 상업공간에도 빛과 공기가 통한다. 더 스타일 빌딩은 골목에도 활기가 돌고 작은 변화를 불러올 공간이다.














Architect TERRA associates, architects & planners
Location Seocho-dong, Seocho-gu, Seoul, Republic of Korea
Program Office & Shops
Site area 275.30㎡
Building area 153.01㎡
Gross floor area 1,375.62㎡
Building scope B2, 1F
Building to land ratio 55.58%
Floor area ratio 499.68%
Design period 2019. 4 - 2019. 12
Construction period 2020. 1 - 2021. 5
Completion 2021. 5
Principal architect Bumkee Min
Project architect Dohee Kim
Design team Sooyeon Lim, Seokyung Ko
Structural engineer Alim Eng.
Mechanical engineer Yeongdong Eng.
Electrical engineer One Enc.
Construction Yemi Construction
Photographer Byungkeun Lee
해당 프로젝트는 건축문화 2021년 9월호(Vol. 484)에 게재되었습니다.
The project was published in the September, 2021 issue of the magazine(Vol. 484).
September 2021 : vol. 484
Contents : RECORDS 39TH SEOUL ARCHITECTURE AWARD 서울시, 제39회 서울특별시 건축상 발표 WOOD PLASTIC COFFEE DECK, THE MATERIAL IN THE LEADING CARBON-NEUTRAL ERA 커피박 합성목재, 선..
anc.masilwide.com
'Architecture Project > Office' 카테고리의 다른 글
| VENDÔME (0) | 2022.02.07 |
|---|---|
| SOHUN (0) | 2022.02.03 |
| HANSUNG COMPUTER MAGOK RESEARCH CENTER (0) | 2021.11.17 |
| BRIGHT SPOT (0) | 2021.11.16 |
| OŌELI COMPLEX_JNBY AND GOA HEADQUARTERS (0) | 2021.09.24 |
마실와이드 | 등록번호 : 서울, 아03630 | 등록일자 : 2015년 03월 11일 | 마실와이드 | 발행ㆍ편집인 : 김명규 | 청소년보호책임자 : 최지희 | 발행소 : 서울시 마포구 월드컵로8길 45-8 1층 | 발행일자 : 매일



