
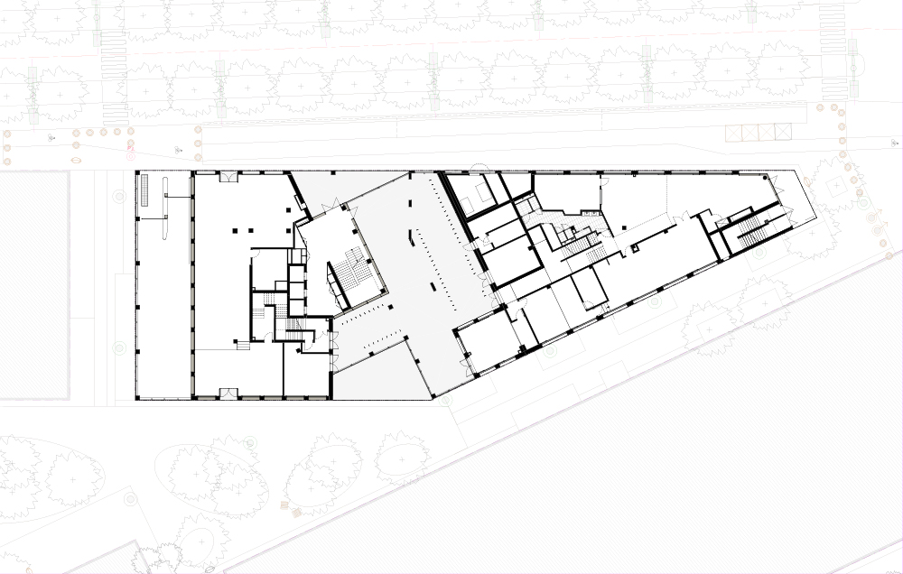
The Vendôme is an atypical building: just a stone’s throw from the important Nantes train station currently being redesigned, it is located at the bow of a block on a plot of land with a complex shape that has generated an original building, both in its volume and its urban treatment.
The building strongly takes into account the “volume of the pedestrian”. This “volume” translates into a north-south transparency of the building, in the open air, and over a height of two levels, which offers the city additional porosity through its various blocks. In spite of the relative density of this district, with in particular a 50m high apartment building, the fluidity and amenity of the public spaces, essentially made up of pedestrian streets leading to the Jardinndes Pins, is thus preserved.
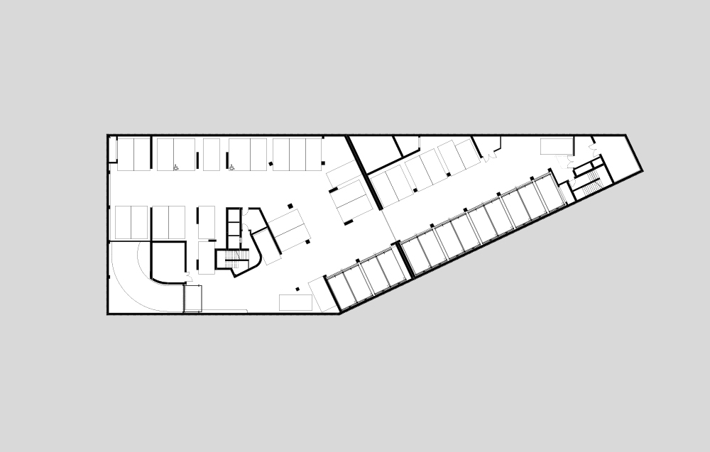
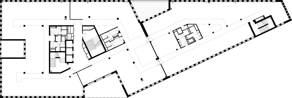
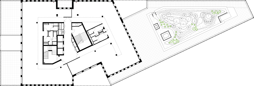
Accompanying this pedestrian volume, the first two levels of the building are equipped with larger windows, reinforcing the status of the eastern part of the building, while the western part should accommodate a shop or restaurant, perhaps spread over these 2 levels. A single hall, very transparent and slipped under the vast porch, distributes the entire building. The offices are spread over 7 stories above the ground floor, and the 4th floor benefits from a vast planted terrace, the foliage of which contributes to the integration and urban quality of the Vendôme. 8 levels to the west and 4 levels to the east, as well as the porch that crosses the building, enable the Vendôme to become part of the town by asserting its verticality, but without imposing its 8,000m² of built space too much.
The facades are made of light-coloured, die-cast concrete, the minerality of which gives this building a strong identity and will ensure its longevity. Located in a seismic zone, the building is made of a load-bearing structure in precast concrete. All the offices are equipped with full height glazed windows that can be opened on the spandrel, in a deep panel that both protects from the sun and diffracts the light by reflection, thus ensuring a real luminous comfort in the work spaces. The building has been the subject of in-depth consideration of its energy, thermal and acoustic performance, as well as the comfort of its occupants. The car park is limited to a single basement, which has been optimised by the installation of a 24-space mechanised car park (Bi-park) allowing two vehicles to be parked independently, one above the other. All the offices are equipped with full height glazed windows that can be opened on the spandrel, in a deep panel that both protects from the sun and diffracts the light by reflection, thus ensuring a real luminous comfort in the work spaces.

최적화된 도시의 삶, 방동 주거복합 빌딩
방돔은 아주 이례적인 건물로, 현재 재설계 중인 낭트 기차역과 매우 가까운 곳에 있다. 이 건물은 원래 복잡한 형태의 대지 위쪽에 있고, 건물은 “보행자 중심의 볼륨”이 크게 고려됐다. 이 건축물의 체적은 야외에서, 그리고 2층 높이에 걸쳐 건물의 남북에 걸쳐 다양한 블록을 통해 도시에 추가적인 다공성을 제공한다. 특히, 50m 높이의 아파트 건물도 있는 이 지역의 상대적인 도시 밀도에도 불구하고 본질적으로 튈트리 공원으로 이어지는 보행자 거리로 구성된 공공 공간의 유동성과 쾌적성은 보존된다.
이 보행자 공간과 함께 건물의 저층부 2개 층에는 더 큰 창문이 설치되어 건물 동측의 위상을 강화하고 서측은 상점이나 레스토랑을 수용하면서 2개 층에 걸쳐 펼쳐지고 있다. 투명하고 중간에 비워진 홀이 광대한 현관 아래 자리 잡고 있으며 이 홀이 건물 전체를 분산시킨다. 사무실은 1층에서 7층에 걸쳐 위치해 있으며 4층에는 방돔의 공간들을 통합시키기 위한 통합과 도시 품질에 기여하는 식물이 심어진 광대한 테라스가 있다. 서쪽으로 8개 층, 동쪽으로 4개 층과 건물을 가로지르는 현관을 통해 방돔은 8,000m2의 건축 공간을 너무 많이 들이지 않으면서도 수직성을 강조하고, 마을의 일부가 될 수 있게 했다.
입면은 밝은 색상의 다이캐스트 콘크리트로 만들어졌으며 미네랄 성분은 이 건물에 강력한 정체성을 부여하고 건물의 수명을 보장한다. 지진대에 위치한 이 건물은 프리캐스트 콘크리트로 하중을 지지하는 구조로 되어 있다. 모든 사무실에는 햇빛을 차단하고 반사에 의해 빛을 굴절시키는 깊은 패널이 있으며, 스팬드럴로 전체를 열 수 있는 층고 높이의 유리창이 있어 작업 공간에 진정한 빛을 발하는 편안함을 보장한다. 건물은 에너지, 열 및 음향 성능뿐만 아니라 거주자의 편안함을 고려했다. 주차장은 지하 1층에 제한되며, 24면의 기계식 주차장(Bi-park)이 설치되어 두 대의 차량을 위아래로 독립적으로 주차할 수 있게 했다. 모든 사무실에는 팬드럴에 열 수 있는 완전 높이의 유리창이 설치돼 있어 햇빛으로부터 보호하고 반사되어 빛을 회수하는 깊이 있는 패널로 작업공간에서 진정한 발광 쾌적함을 보장한다.












Architect Ateliers 2/3/4/
Location Nantes, Bretagne, France
Area 8,564㎡
Building scope (Office) 8F
Competition 2015. 12
Completion 2019. 7
Architecture / Landscape design Ateliers 2/3/4/
Principal architect Olivier ARENE
Client Lamotte constructeur (developer)
Construction Léon Grosse
Photographer Simon Guesdon
해당 프로젝트는 건축문화 2021년 11월호(Vol. 486)에 게재되었습니다.
The project was published in the November, 2021 recent projects of the magazine(Vol. 486).
November 2021 : vol. 486
Contents : RECORDS OPEN EXPO 2020 DUBAI, AND KOREA PAVILION 세계에 퍼지는 한국의 친환경 메시지, 그리고 “마당" : NEWS / COMPETITION / BOOKS : SKETCH THE REMARKABLE PLACE IN THE NEIGHBO..
anc.masilwide.com
'Architecture Project > Office' 카테고리의 다른 글
| CNDI. COMPANY BUILDING (0) | 2022.02.21 |
|---|---|
| AOC BUSINESS CENTER (0) | 2022.02.17 |
| SOHUN (0) | 2022.02.03 |
| THE STYLE BUILDING (0) | 2021.11.22 |
| HANSUNG COMPUTER MAGOK RESEARCH CENTER (0) | 2021.11.17 |
마실와이드 | 등록번호 : 서울, 아03630 | 등록일자 : 2015년 03월 11일 | 마실와이드 | 발행ㆍ편집인 : 김명규 | 청소년보호책임자 : 최지희 | 발행소 : 서울시 마포구 월드컵로8길 45-8 1층 | 발행일자 : 매일



