
Old townscapes of the provinces have something in common. There are old buildings covered with rental advertisements, vacant lots that have been demolished and left as local parking lots, old inns remaining in clusters throughout the alley, and signs attached everywhere, like doorplates, saying ‘monthly rent available’. How long do we have to ignore and neglect these landscapes that are just vaguely waiting for someone? In 1980, Daepyeongjang was newly born within the commercial area near the Industrial Tower, a symbol of the industrial city Ulsan, and it provided a new vision for alternative housing and the young commercial city. The new name, CO.CO. SPACE is a business model in which a shared space coexists with a living cultural space as a community base to restore the local community.
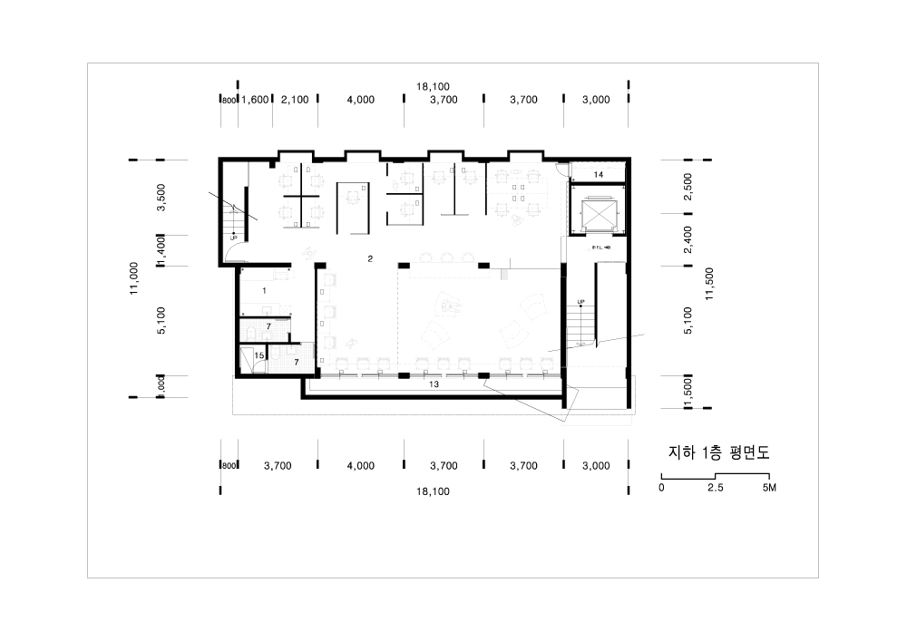
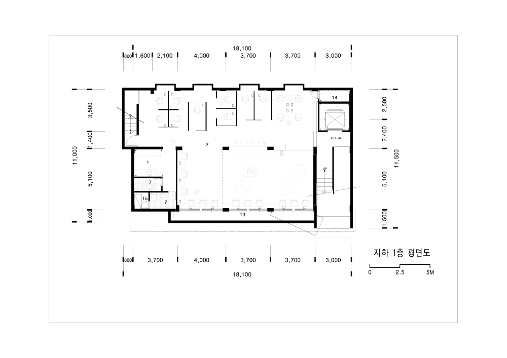
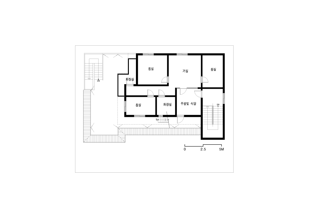
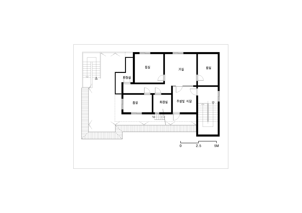
The 28 rooms were reduced to 18 rooms on 3 floors with 6 rooms on each floor as a unit cluster. The basement was opened to maximize natural light and natural ventilation, making it a pleasant co-working rental space, and the first floor was all emptied and organized as an open space with only traces left. To solve the parking problem on the back road, the entrance stairs were demolished, and the entrance was then moved to the stair landing to secure as much parking space as possible in the front, and a culture BOX was installed to draw attention into the alley. Unnecessary finishes were removed while the traces of 40 years were saved as much as possible, and the external facade extends the continuity of the landscape. Befitting the industrial city of Ulsan, the young solo diners who stay for short to medium term become new family members in the shared kitchen, and CO.CO. SPACE is gradually establishing itself as ‘Ulsan-type co-living’. CO.CO. SPACE, the first project of the spatial regeneration platform Re_ink, is a sustainable and effective practice model that attempted to revitalize the vicinity of the Industrial Tower, Ulsan’s first avenue of entertainment, which dominated the 1990s.

지방의 구도심 풍경에는 공통점이 있다. 임대 광고로 도배된 낡은 건물과 아예 철거해버린 채 동네 주차장으로 방치된 공터들, 그리고 골목 곳곳에는 낡은 여관들이 군락을 이룬 채 남아, 곳곳에는 문패처럼 붙어 있는 ‘달방 있음’이 보인다. 누군가를 막연하게 기다리고만 있는 이 풍경들을 우리는 언제까지 외면하고 지나쳐야만 하는 걸까? 1980년, 산업도시 울산의 상징인 공업탑 주변 상업지 속 대평장은 새롭게 태어나 대안 주거공간, 젊은 상업 도시의 새로운 비전을 제시한다. 새로운 이름인 코코스페이스는 지역 커뮤니티를 회복시켜 나가기 위한 커뮤니티 거점으로 공유 공간과 생활문화 공간이 상생하는 비즈니스 모델이다.
28개의 객실은 각층 6개 객실을 단위 클러스터로 하여 3개 층 18실로 축소하고, 지하는 개방하여 자연 채광과 자연 환기를 최대한 끌어들여 쾌적한 코워킹 대여공간으로, 1층은 모두 비우고 흔적만을 남긴 열린 공간으로 정리했다. 이면 도로 주차 문제를 해결하기 위해 진입 계단을 철거하고 계단참으로 출입구를 이동시켜 전면에 최대한 주차공간을 확보하고, 문화 BOX를 설치하여 골목 안으로 시선을 끌었다. 불필요한 마감은 없애고 40년의 흔적을 최대한 살려내어, 외부 파사드는 경관적 연속성을 이어간다. 산업도시 울산답게 중단기 체류형의 젊은 혼밥족들은 공유 키친에서 새로운 식구(食口)가 되고, 코코 스페이스는 차츰 ‘울산형 코리빙’으로 자리를 잡아간다. 공간재생플랫폼 Re_ink의 첫 번째 프로젝트 코코스페이스는 1990년대를 풍미하던 울산의 유흥 1번가 공업탑 인근의 재활성화를 도모하고자 시도한 지속가능하고 유효한 실천 모델이다.














Architect GEUMHONG SEO(DONG-A UNIVERSITY) + HAENGLIM ARCHITECTURE
Location Jungang-ro, Nam-gu, Ulsan, Republic of Korea
Program Co-living house, Co-Working space, Community lounge
Site area 330.80㎡
Building area 182.36㎡
Gross floor area 999.97㎡
Building scope B1, 5F
Building to land ratio 55.12%
Floor area ratio 256%
Design period 2019. 8 - 2020. 2
Construction period 2020. 5 - 2021. 2
Completion 2021. 3
Principal architect / Project architect Geumhong Seo
Design team Soeun Choi, Chungin Lee, Teayun Lee, Dongha Won, Jiwon Kim
Structural engineer JUAN ENG
Mechanical engineer (HANUL ENG) Junhee Lee
Electrical engineer (HANUL ENG) Junhee Lee
Construction Space Regeneration Platform Re_ink
Client Space Regeneration Platform Re_ink
Photographer (L2 ARCHIVE) Namseon Lee
해당 프로젝트는 건축문화 2021년 12월호(Vol. 487)에 게재되었습니다.
The project was published in the December, 2021 recent projects of the magazine(Vol. 487).
December 2021 : vol. 487
Contents : RECORDS MESSAGES OF SYMBIOSIS, CONNECTION, AND BALANCE WITHOUT WALLS 구획을 벗어나 보여지는 공생, 연결, 균형의 메시지들 : NEWS / COMPETITION / BOOKS : SKETCH VLADIVOSTOK S..
anc.masilwide.com
'Architecture Project > Office' 카테고리의 다른 글
| TOKYO TORCH Tokiwabashi Tower (0) | 2022.04.19 |
|---|---|
| EMK MUSICAL COMPANY (0) | 2022.04.18 |
| CNDI. COMPANY BUILDING (0) | 2022.02.21 |
| AOC BUSINESS CENTER (0) | 2022.02.17 |
| VENDÔME (0) | 2022.02.07 |
마실와이드 | 등록번호 : 서울, 아03630 | 등록일자 : 2015년 03월 11일 | 마실와이드 | 발행ㆍ편집인 : 김명규 | 청소년보호책임자 : 최지희 | 발행소 : 서울시 마포구 월드컵로8길 45-8 1층 | 발행일자 : 매일


