
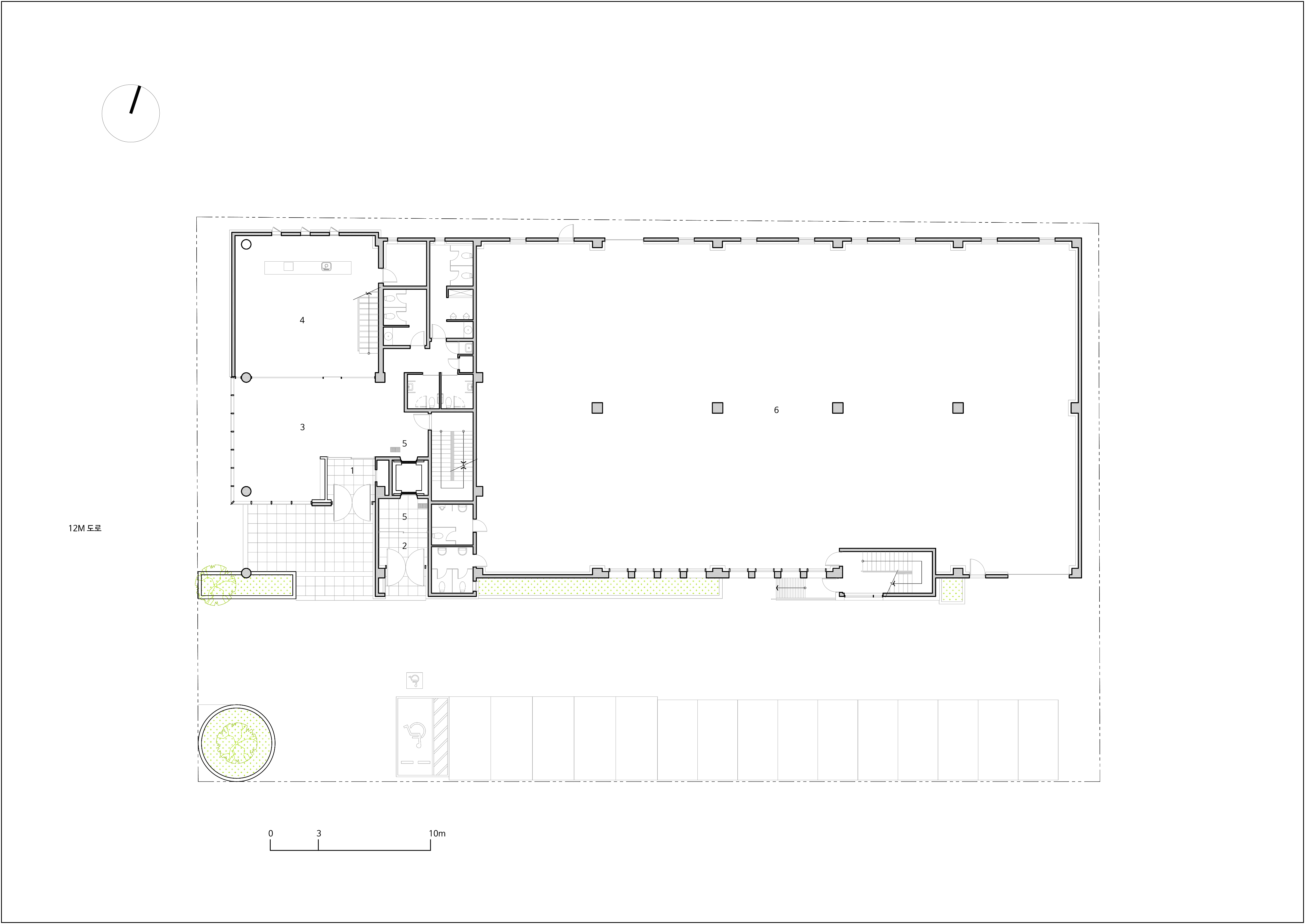
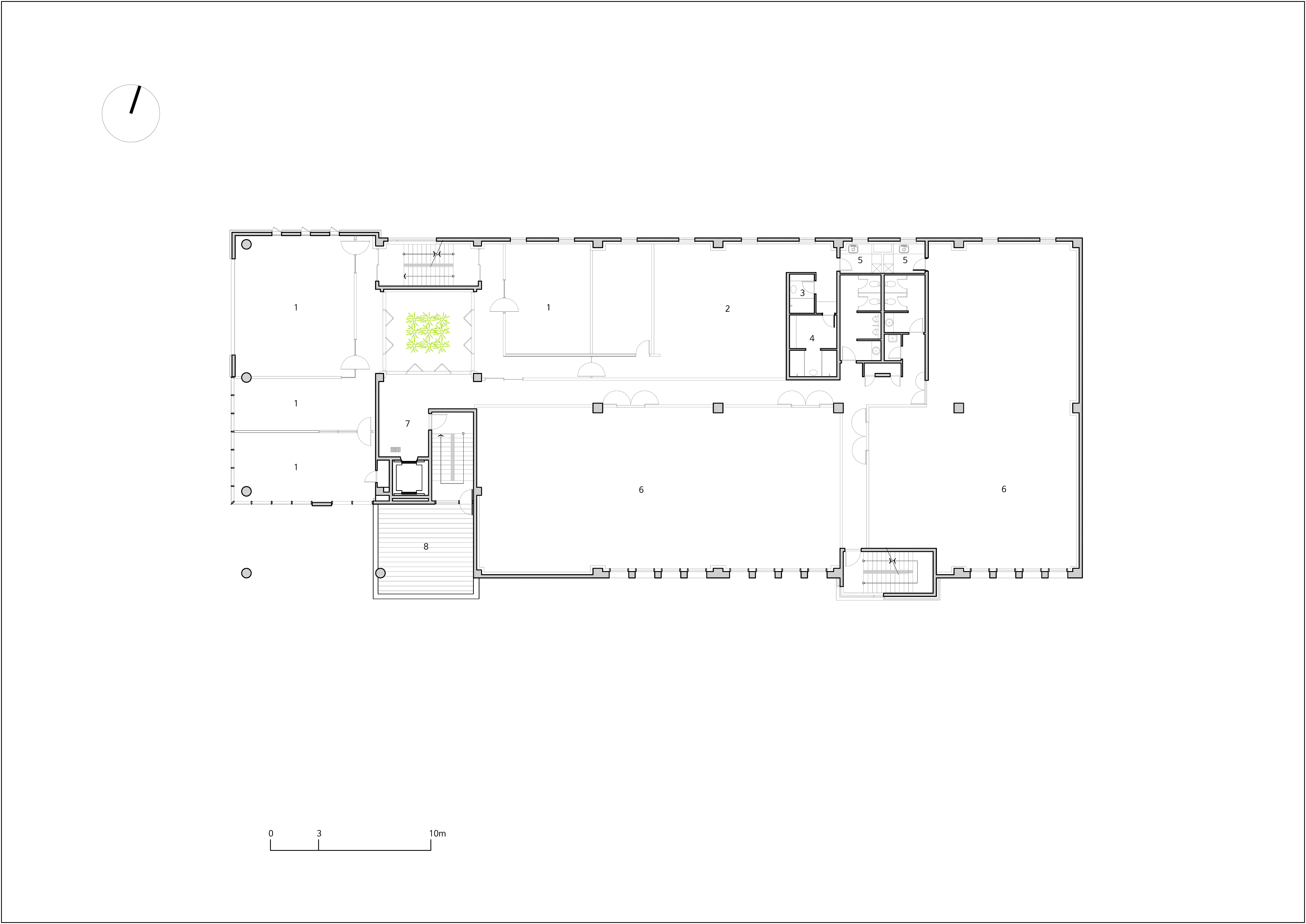
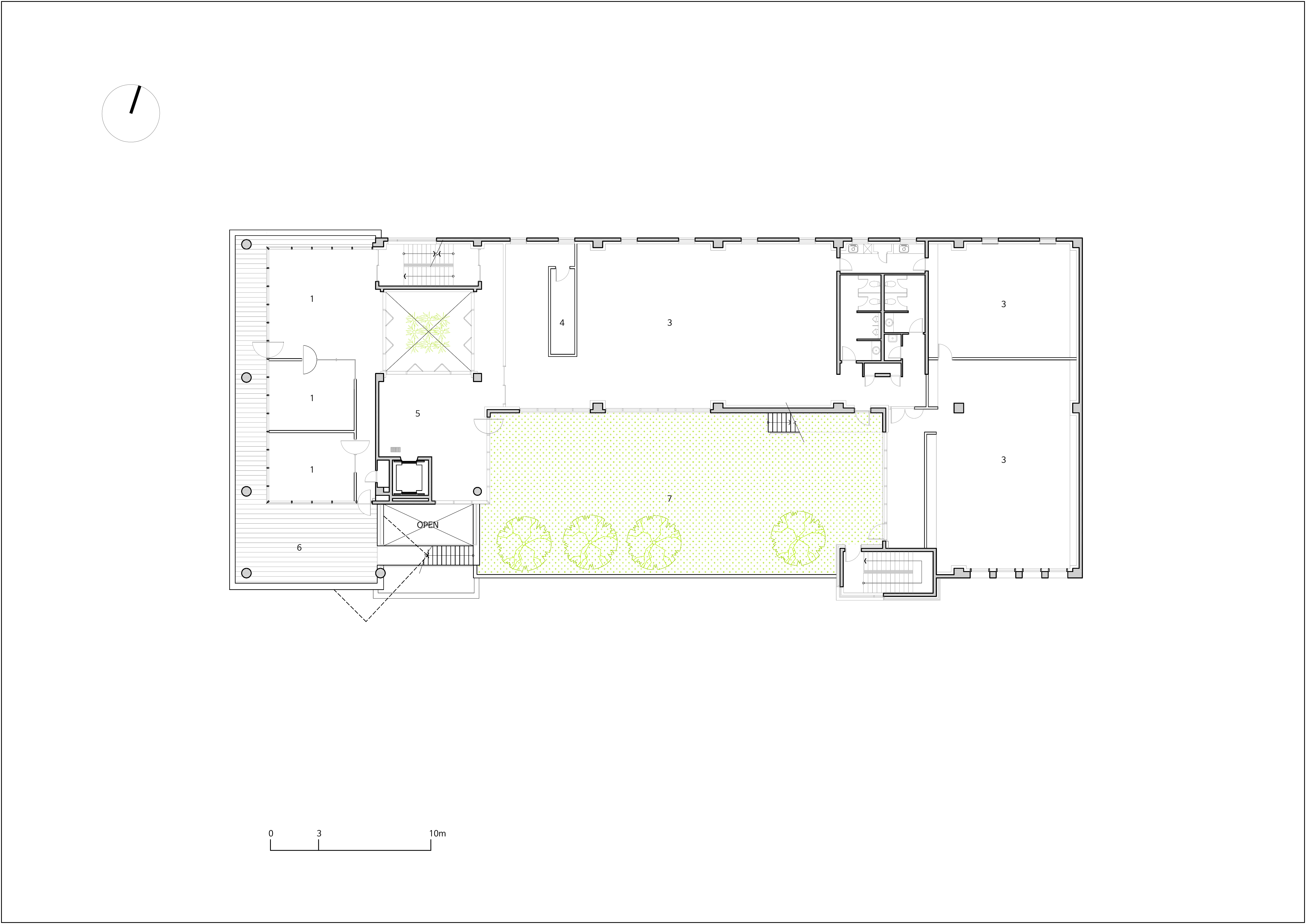
The Maehwa Industrial Complex in Siheung-si is an industrial complex, and the site is a land within the complex that has level differences. If the research institute was arranged towards the east to secure the wide space in front of the factory, it would inevitably seem stifling because of the office building built close to the site boundary in three directions: east, north, and south. As a result, the CNDI. Company Building was stretched from east to west and space was procured to the south, allowing light to the south to be secured, and the space was separated into the research area and production area. The courtyard, which was made to overcome the lighting difficulties caused by the mass that was rather elongated from east to west, also serves to spatially divide the office area in the west and the production area in the east. Moreover, the two areas were configured in a skip-floor method. This means smooth communication between the office area and the production area only by moving half a floor. Due to the nature of the building, where not only research is carried out but also products are produced, it was necessary to consider both security as well as rest, and this is resolved with a small, simple garden where sufficient nature can be felt from the interior. The public garden planned on the third floor is connected by an external staircase from the deck on the fourth floor, and an aerial staircase from the office building on the second floor, allowing it to be easily accessed without having to go through the main stairs connecting each floor. In addition, the courtyard, which secures light and ventilation between the research area and production area, and the terraces on each floor become a space where one can access the outside air from anywhere.
The conference room on the fourth floor, installed as a cantilever, is a device to maintain the significance and tension of a meeting. Although its location is not comfortably accessible and situated at the end of the internal circulation, the open-type conference room that can be seen from any place shows that the research institute values communication with employees.

입체적 볼룸 사이 일과 휴식, 씨앤디아이 주식회사 사옥
시흥시 매화일반산업단지는 산을 깎아 조성된 산업단지로서 단지 내 필지에 레벨 차이가 있는 땅이다. 사옥은 공장의 전면 넓은 공간 확보를 위해 동쪽으로 치우쳐 배치했을 시 동, 북, 남쪽 세 방향으로 대지 경계선까지 근접하여 지어진 공장건물들로 인해 답답해질 수밖에 없는 상황이다. 이에 남측으로 공간을 확보하고 동서 측으로 길게 놓여져 남쪽으로의 채광을 확보함과 동시에 연구영역과 생산영역의 공간으로 분리된다. 동서 측으로 다소 길어진 매스로 인해 발생하는 채광의 어려움을 극복하기 위한 중정은 서쪽 사무영역과 동쪽 생산영역을 공간적으로 구분하는 역할도 한다. 또한, 두 영역은 스킵방식으로 구성하였다. 이는 반개 층의 이동으로 사무영역과 생산영역의 원활한 소통을 가능하게 한다.
제품의 생산뿐만 아니라 연구도 병행하고 있는 건물의 특성상 휴식과 더불어 보안까지 함께 고려해야 했는데, 이는 내부에서도 충분한 자연을 느낄 수 있는 공중 정원으로 해소된다. 3층에 계획한 공중정원은 4층 데크에서는 외부계단으로, 2층 사무동에서는 공중계단으로 연결해, 굳이 각층을 연결하는 메인계단을 통하지 않고도 쉽게 접근할 수 있도록 하였다. 그 외에 연구영역과 생산영역 사이의 채광과 환기를 확보하는 중정과 각 층의 테라스는 짧은 이동으로 외부와 접할 수 있는 공간이 된다.
캔틸레버로 설치된 4층 회의실은 회의의 중요성과 긴장감을 유지하기 위한 장치이다. 접근의 편안한 위치가 아니라 내부동선의 끝자락에 있지만 어느 장소에서나 볼 수 있는 오픈된 형태의 회의실은 직원들과의 소통을 중시하는 건축주의 의견이 반영되어 있다.

















Architect 秀&秀 design architects
Location Maehwa General Industrial Complex A3-2, Siheung-si, Gyeonggi-do, Republic of Korea
Program Factory
Site area 1,970.00㎡
Building area 1,086.75㎡
Gross floor area 3,601.21㎡
Building scope B1, 4F
Building to land ratio 56.16%
Floor area ratio 176.09%
Design period 2020. 3 - 7
Construction period 2020. 8 - 2021. 7
Completion 2021. 8
Principal architect Junsu Choi
Project architect Seoungsu Choi
Project manager Kongyul Kim
Design team Cheoneung Ahn
Structural engineer NOORI Structural Engineering Inc
Mechanical engineer / Electrical engineer Gunchang engineering
Construction (Sinteayang)Gihyung Nam, Wanggeun Kim
Client CNDI
Photographer Yongsu Kim
해당 프로젝트는 건축문화 2021년 12월호(Vol. 487)에 게재되었습니다.
The project was published in the December, 2021 recent projects of the magazine(Vol. 487).
December 2021 : vol. 487
Contents : RECORDS MESSAGES OF SYMBIOSIS, CONNECTION, AND BALANCE WITHOUT WALLS 구획을 벗어나 보여지는 공생, 연결, 균형의 메시지들 : NEWS / COMPETITION / BOOKS : SKETCH VLADIVOSTOK S..
anc.masilwide.com
'Architecture Project > Office' 카테고리의 다른 글
| EMK MUSICAL COMPANY (0) | 2022.04.18 |
|---|---|
| RE_BORN #1 CO.CO.SPACE (0) | 2022.02.22 |
| AOC BUSINESS CENTER (0) | 2022.02.17 |
| VENDÔME (0) | 2022.02.07 |
| SOHUN (0) | 2022.02.03 |
마실와이드 | 등록번호 : 서울, 아03630 | 등록일자 : 2015년 03월 11일 | 마실와이드 | 발행ㆍ편집인 : 김명규 | 청소년보호책임자 : 최지희 | 발행소 : 서울시 마포구 월드컵로8길 45-8 1층 | 발행일자 : 매일



