
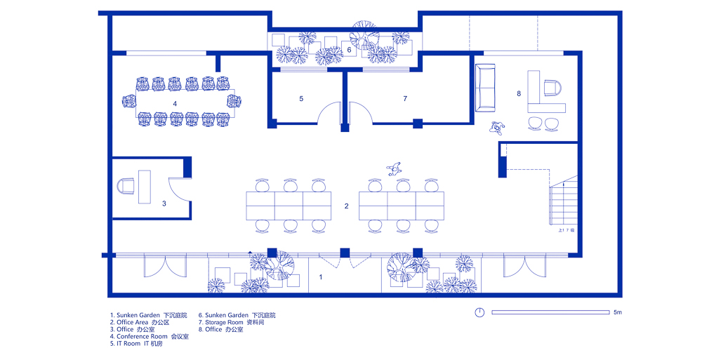
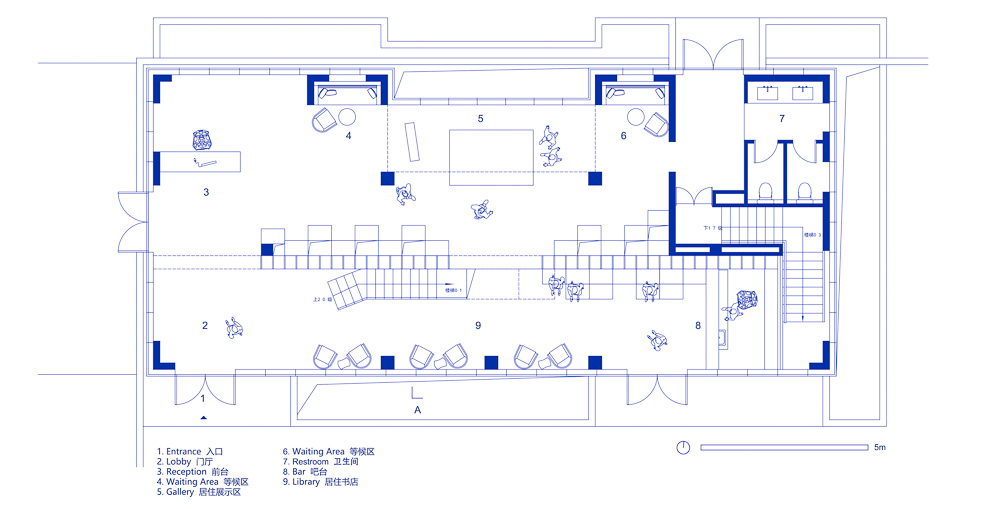
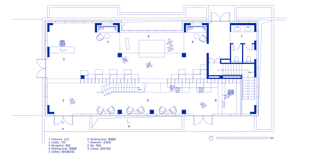
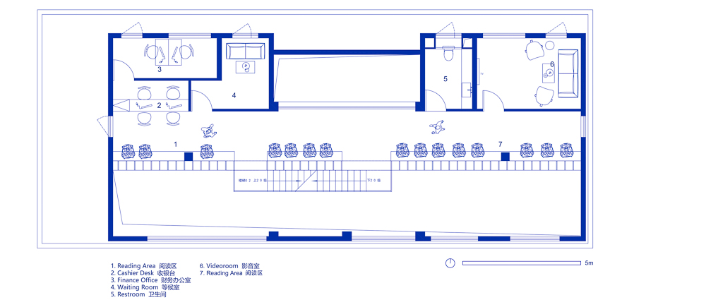
This sales center locates near the famous water town Zhujiajiao of Qingpu District in Shanghai, about 50 minutes’s way from the downtown by car. In such a quiet and natural environment with frondent trees around, designers takes the connection between interior and outdoor spaces as the original intention of design. Due to some restrictions on the time schedule and budget, designers try to create a new kind relationship among the indoor space, outdoor space and landscape in the simplest way. They chose a special kind of aluminum grille frame with different height as the architectural expression of “cloud”, meanwhile this special frame makes a unconventional division on these several layers of space on the facade, which just meets the intention of this project. For example, they expand the use of grille not only on the facade but also the groud part, on the one hand, the ground part surrounded by grille becomes the courtyard; on the other hand, the 1st floor’s vitreous facade become completely transparent, makes indoor and outdoor’s segment more ambiguous.

이 쇼핑센터는 시내에서 자동차로 약 50분 거리에 있는 상하이 칭푸구의 유명한 수상 마을 주자자오(Zhujiajiao) 근처에 있다. 주변에 무성한 나무가 있는 조용하고 자연적인 환경에서 디자이너들은 내부와 외부 공간의 연결을 디자인의 본래 의도로 삼는다. 건축가는 제한된 일정과 예산 안에서 가장 간단한 방법으로 실내, 실외 공간 및 풍경 사이에 새로운 종류의 관계를 만들어냈다. 건축물은 마치 ‘구름’이 건축적으로 표현된 것처럼, 높이가 다른 특별한 종류의 알루미늄 그릴 프레임으로 표현됐다. 특수하게 제작된 이 프레임은 색다른 분할을 만들며, 파사드 뿐만 아니라 지상 부분에도 철재 프레임이 계속하여 사용됐다. 1층의 유리같은 파사드는 완전히 투명한 유리로 마감되어 내부와 외부의 경계를 흐리게 만든다.

















Architects TEAM_BLDG
Location Zhujiajiao, Shanghai, China
Program Sales office, Exhibition space
Built area 649㎡
Design period 2015.5 - 8
Construction period 2015. 8 - 11
Project architect Xiao Lei, Yang Yuqiong, Bai Lu
Photographer Eiichi Kano
해당 프로젝트는 건축문화 2022년 3월호(Vol. 490)에 게재되었습니다.
The project was published in the March, 2022 recent projects of the magazine(Vol. 490).
March 2022 : vol. 490
Contents : RECORDS THE BEGINNING OF THE JOURNEY TO THE MUSEUM OF ART IN THE FOREST, 《MMCA GWACHEON PROJECT 2021: ART BUS SHELTER》 숲 속 미술관으로 가는 여정의 시작, 《MMCA 과천프로젝트 2..
anc.masilwide.com
'Architecture Project > Single Family' 카테고리의 다른 글
| YAH (Yen-A-Kart House) (0) | 2022.06.13 |
|---|---|
| CONCRETE HOUSE (0) | 2022.06.08 |
| IBIS SENDAGAYA (0) | 2022.06.07 |
| BONGCHEONYEONGA (0) | 2022.06.03 |
| BEGINNING YOON (0) | 2022.06.02 |
마실와이드 | 등록번호 : 서울, 아03630 | 등록일자 : 2015년 03월 11일 | 마실와이드 | 발행ㆍ편집인 : 김명규 | 청소년보호책임자 : 최지희 | 발행소 : 서울시 마포구 월드컵로8길 45-8 1층 | 발행일자 : 매일



