
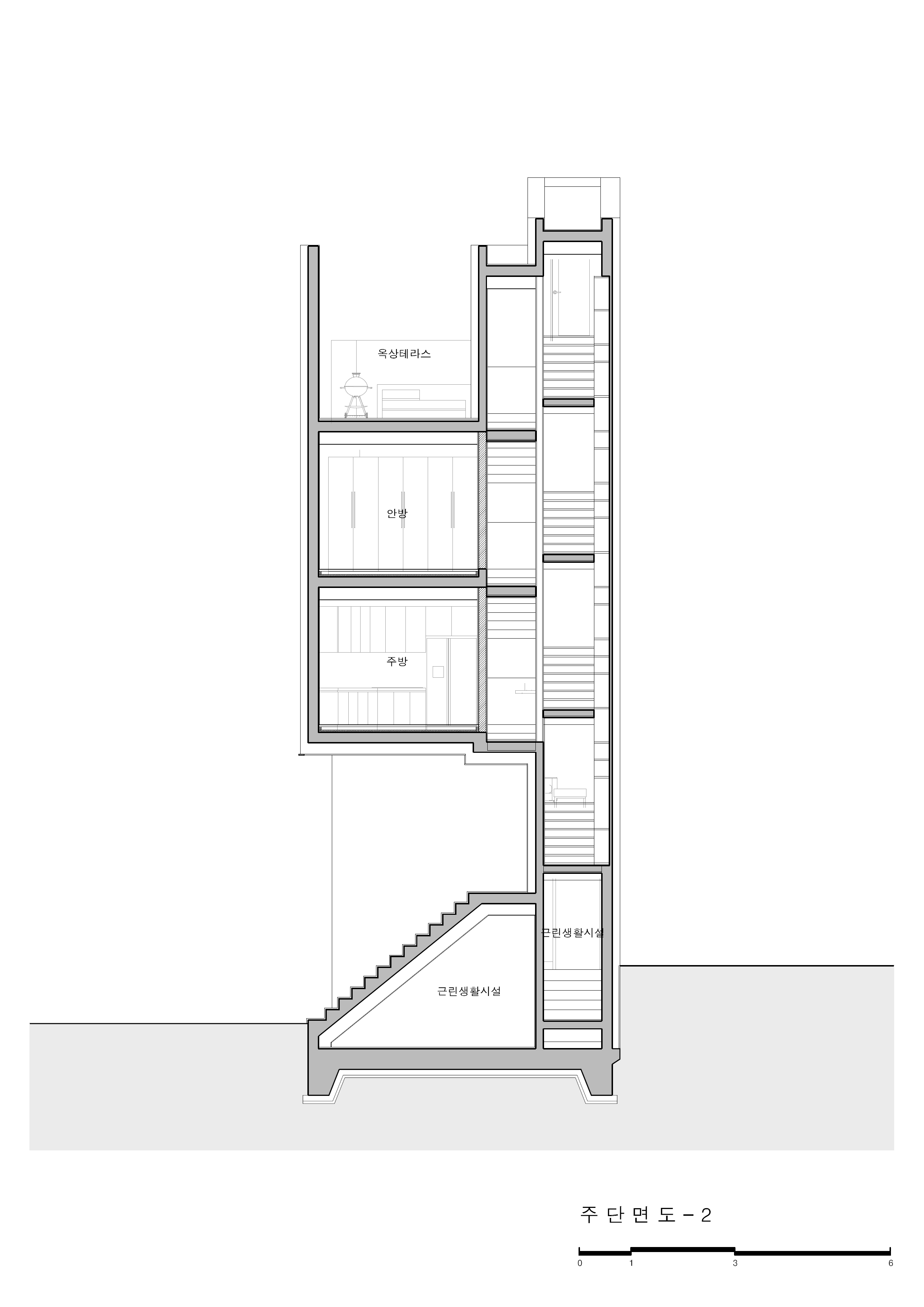
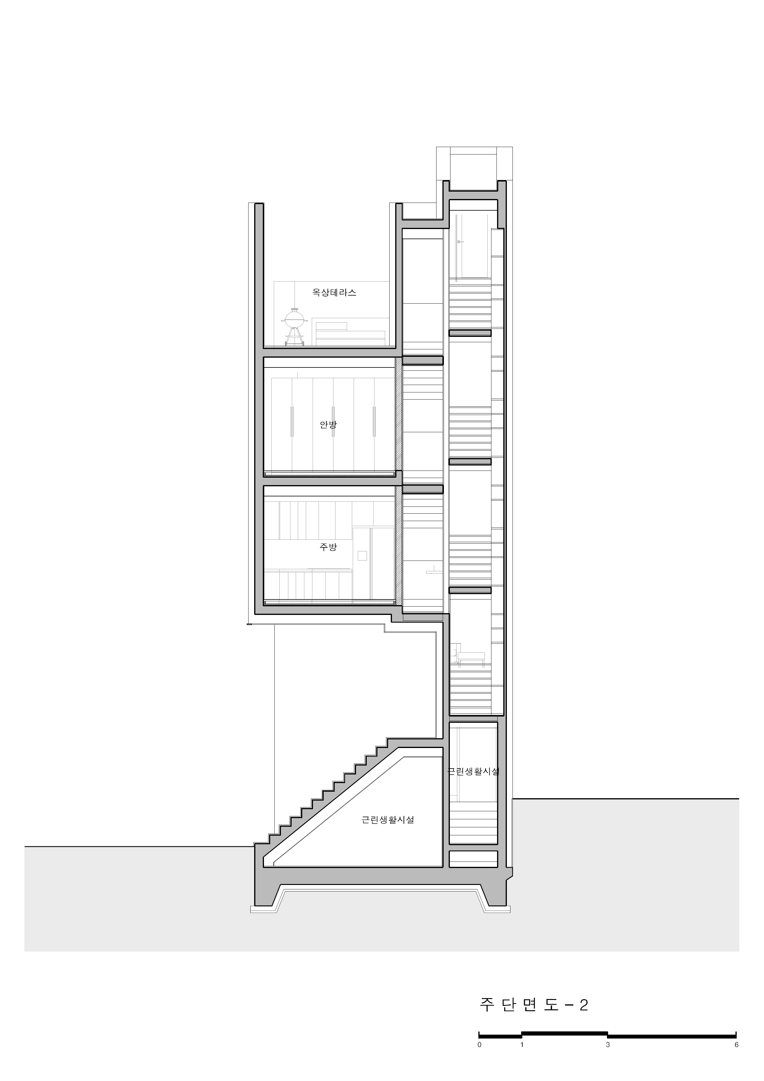
Bongcheon Yeonga(奉天聯家) is located on one side of Bongcheon Hill, at the corner of the road and at the intersection of the road, between the forests of five-story buildings, and is on 10-pyeong lot next to the sloping road. A beautiful streetscape that catches the curiosity and attention of residents while adapting to the existing city skyline was completed in a location where anyone passing by could see it but passed by without seeing it. In a limited space of 10 pyeong, a skip floor using stair landings connects the spaces above and below, and with 4 private rooms and 3 bathrooms, 3 generations from old parents to their children will live in the future.

봉천연가(奉天聯家)는 봉천고개 한 켠, 길과 길이 만나는 모서리땅, 5층 높이의 주변 건물 숲 사이, 경사진 도로 옆의 나지막한 10평 대지에 위치해 있다. 지나가는 누구나 볼 수 있는 위치지만 보지 않고 지나쳐 버리던 그 곳에, 기존 도시의 스카이라인에 순응하면서 주민의 호기심과 시선을 끄는 아름다운 가로풍경이 완성되었다. 10평의 건축면적이라는 한정된 공간 안에 계단참을 활용한 스킵 플로어로 위아래의 공간들을 연결하고, 4개의 개별 방과 3개의 욕실로 노부모부터 자식까지 3대가 앞으로 살아갈 터전을 마련했다.
















Architects ATOP ARCHITECTS & DESIGN LAB
Location Bongcheon-dong, Gwanak-gu, Seoul, Republic of Korea
Site area 60㎡
Building area 35.94㎡
Gross floor area 142.6㎡
Building scope B1, 4F
Building to land ratio 59.9%
Floor area ratio 199.95%
Construction period 2020. 03 - 2021. 05
Completion 2021. 05
Principal architect Junghan Kim
Project architect Junghan Kim
Design team Eunyoung Oh, Inseo Kim
Construction Kyounghwon Na
Photographer Namsun Lee
해당 프로젝트는 리빙즈, 디테일 03호에 게재되었습니다.
The project was published in LIVINGS, Detail 03
[BOOK] LIVINGS, Detail 리빙즈, 디테일 03호, 04호
<LIVINGS, Detail 리빙즈, 디테일 03호, 04호> 72개의 형태와 라이프스타일을 담은 주거공간, 국내외 “디테일한 주택 프로젝트”의 엮음 매월 국내외 다양한 건축물들을 소개해 온 <월간 건축문화>가 <
www.masilwide.com
'Architecture Project > Single Family' 카테고리의 다른 글
| INSIDE THE CLOUD (0) | 2022.06.07 |
|---|---|
| IBIS SENDAGAYA (0) | 2022.06.07 |
| BEGINNING YOON (0) | 2022.06.02 |
| HAHYUNGAE (0) | 2022.05.31 |
| SIMON HOUSE (0) | 2022.05.30 |
마실와이드 | 등록번호 : 서울, 아03630 | 등록일자 : 2015년 03월 11일 | 마실와이드 | 발행ㆍ편집인 : 김명규 | 청소년보호책임자 : 최지희 | 발행소 : 서울시 마포구 월드컵로8길 45-8 1층 | 발행일자 : 매일



