
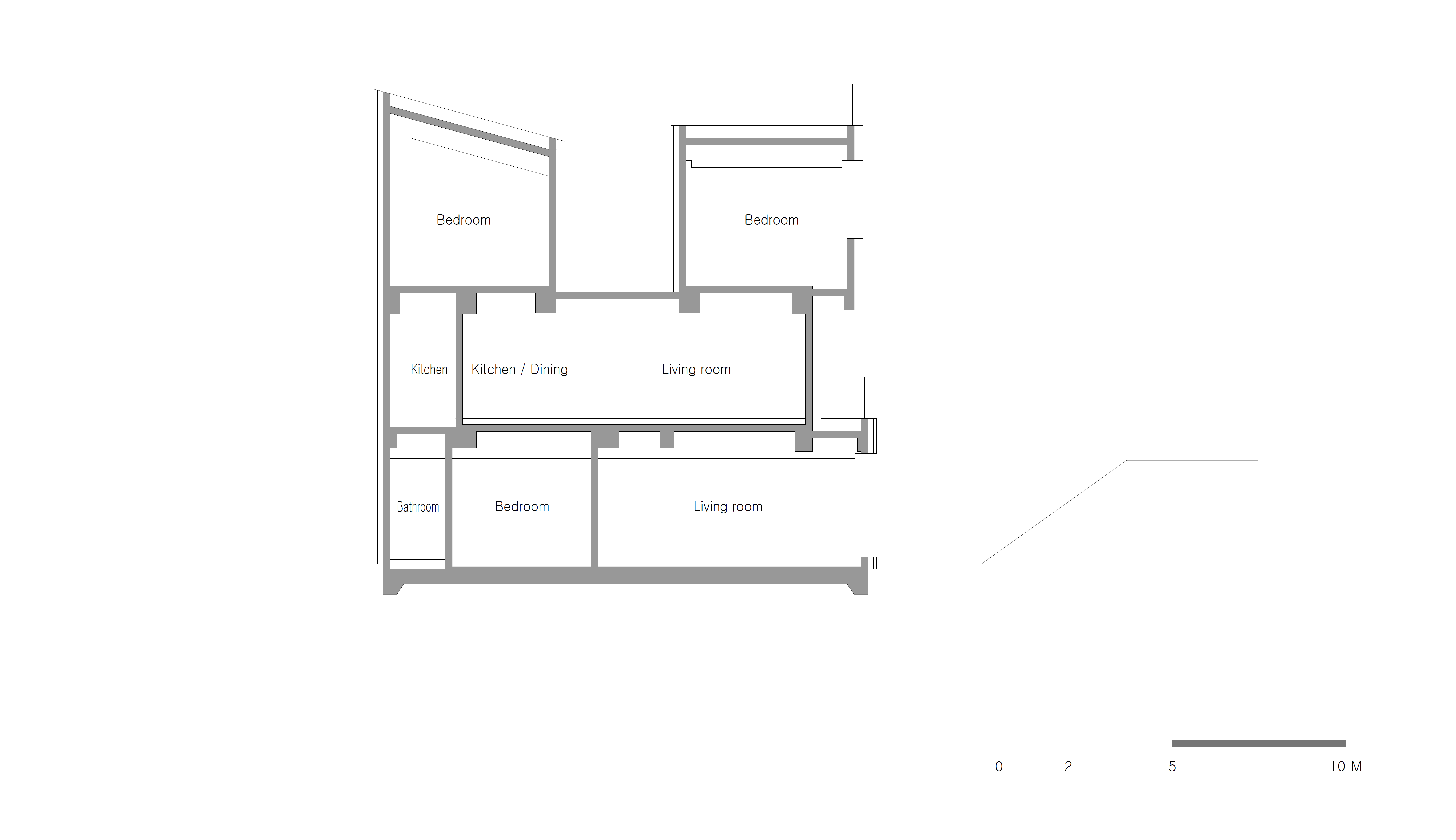
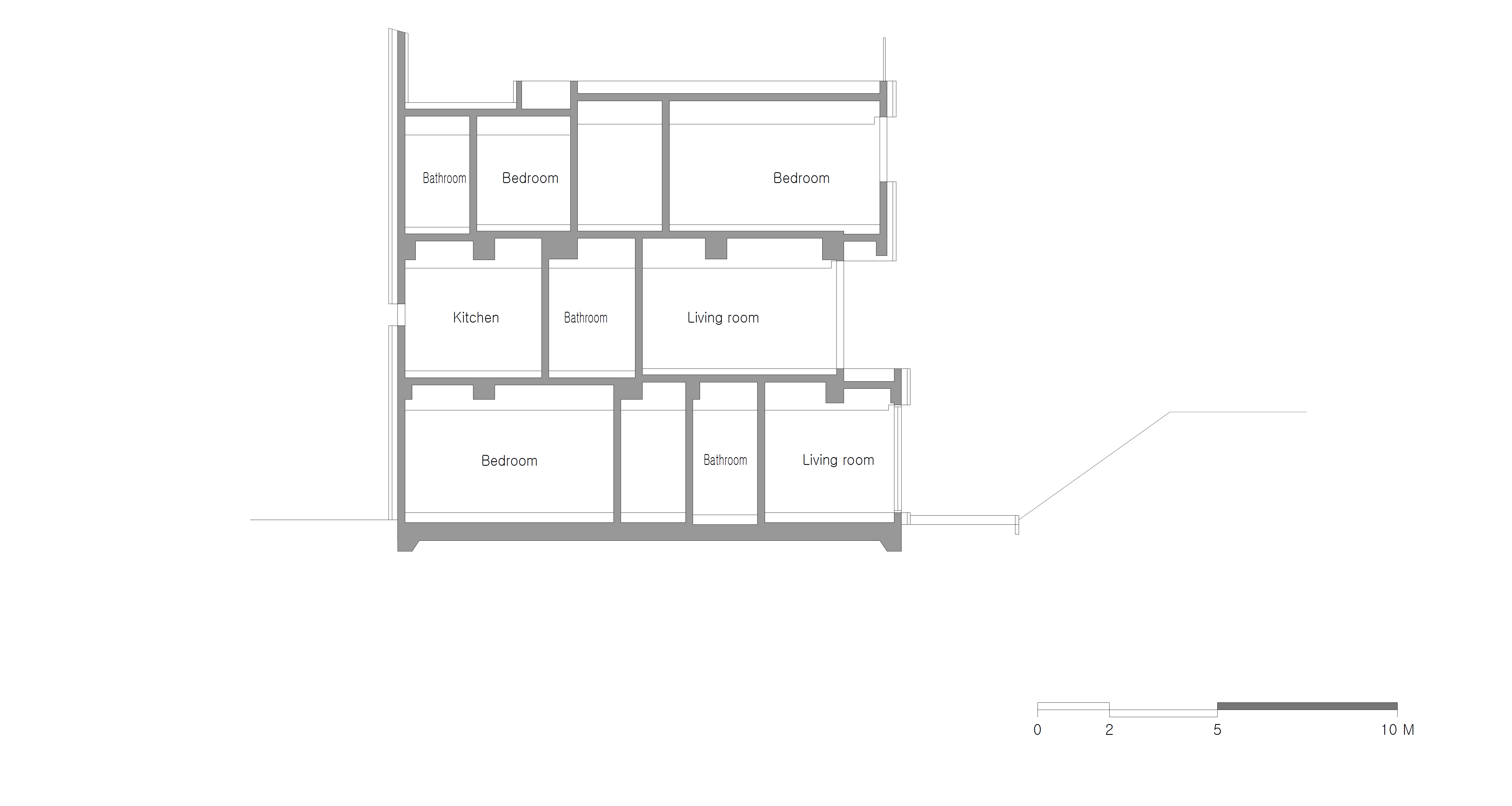
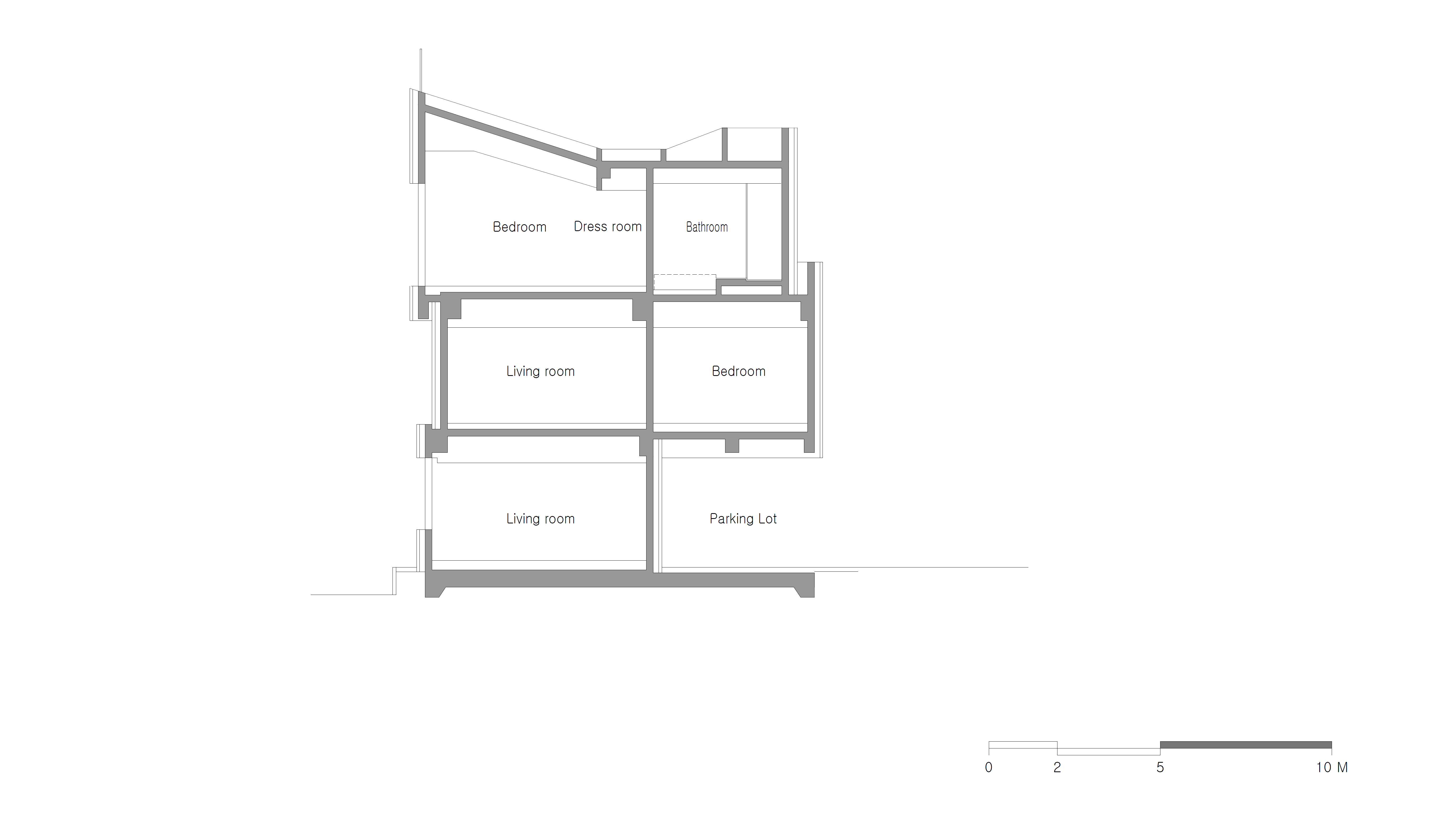
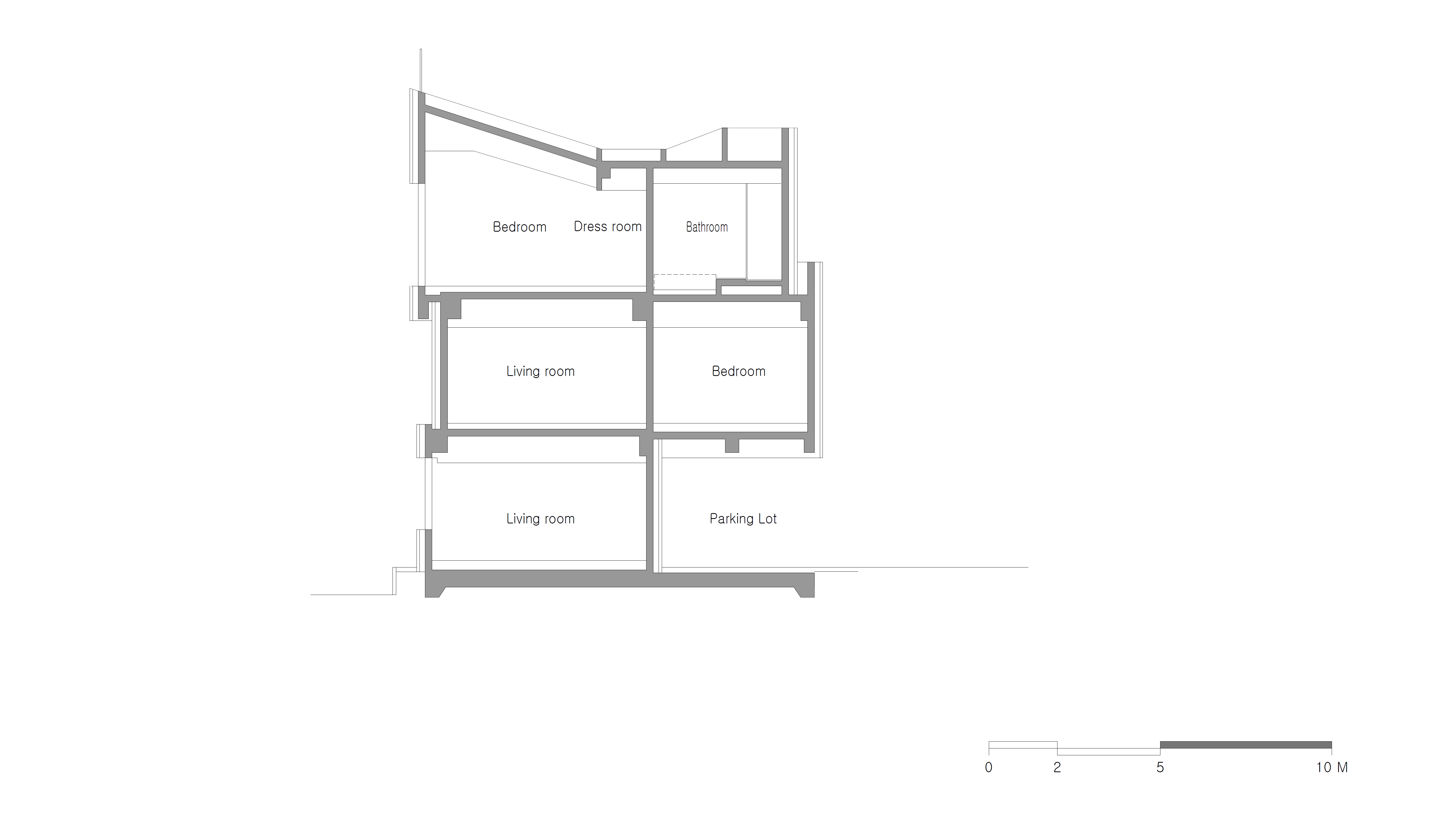
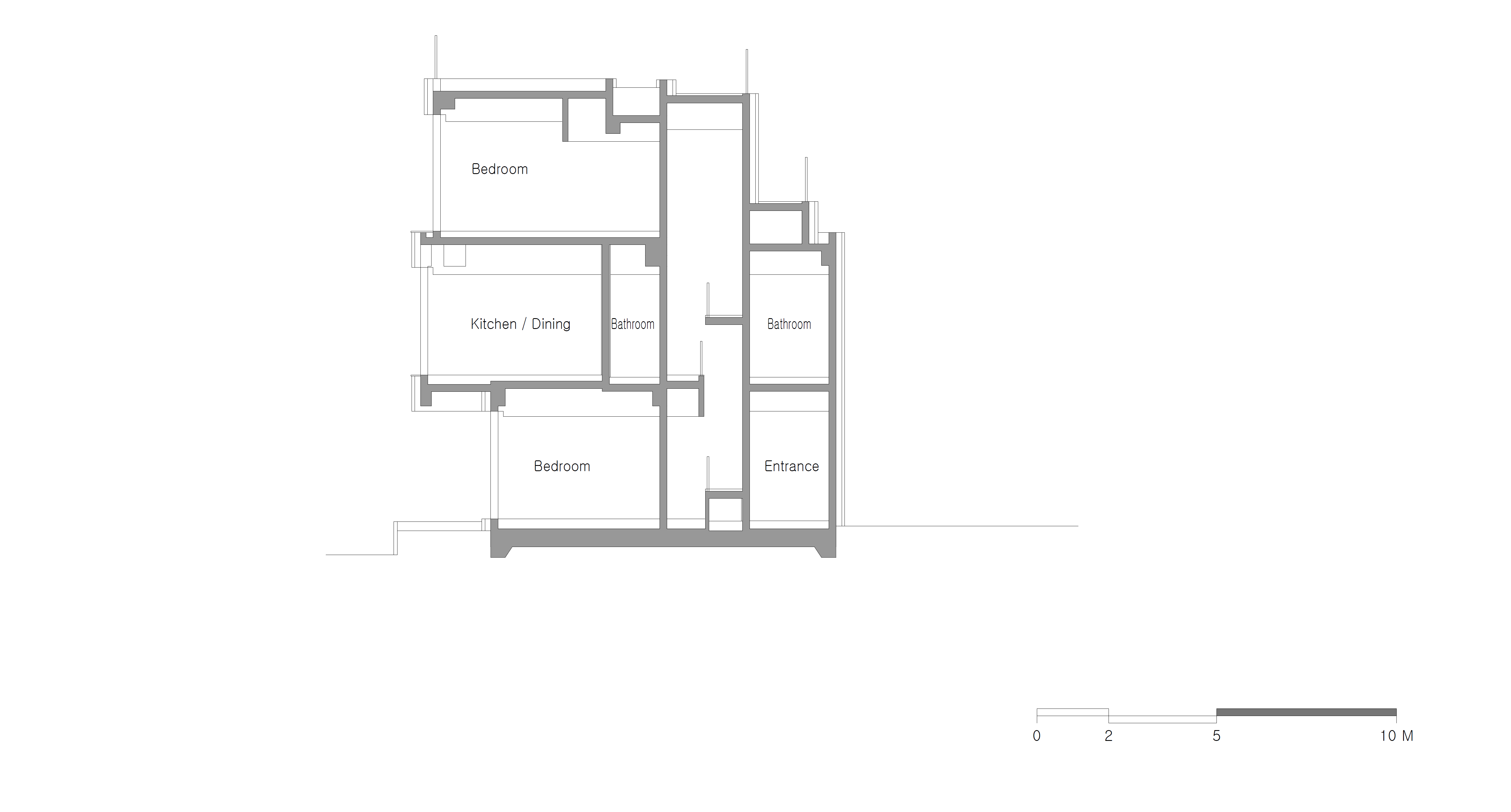
The client wanted to build a house that would grow older together with him. Just like his own desire to become older as a parent on whom his two children, who are now teenagers, would be able to come back to rely even after they go out to the world in search of their own lives in the future, he wanted his house as well to be the place where his children could come and rest at any time. Each member's individual space had to have a structure not only to satisfy the current use but also to allow his future independent children to stay with their own families for a short period of time. Accordingly, each member's bedroom had to be able not only to occupy an independent position in the interior, but also be of sufficient size to be capable of functioning independently. As it is difficult to secure the program requested by the client within the floor area ratio stipulated in the law, the design began by seeking a way to secure the maximum area. During the design process, the COVID-19 era has come. The sufficient size and independence of the space, which were the requirements of the client, have become essential elements in the era where people must prolong their stay at home. It means that the space that they used to come in at night and then go to sleep is being transformed into the space that they stay for 24 hours and contain all the actions of sleeping, resting, working, and excreting.
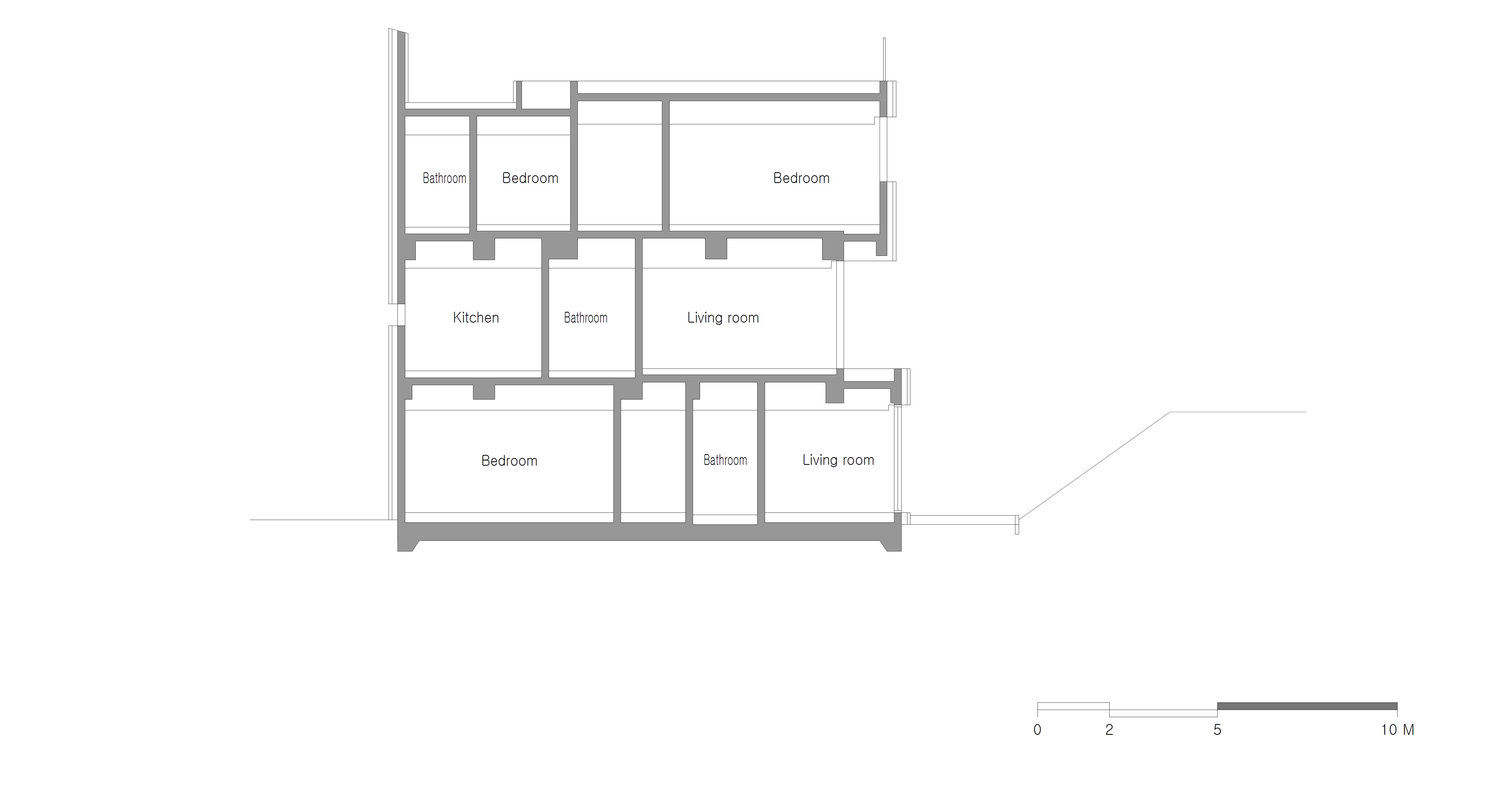
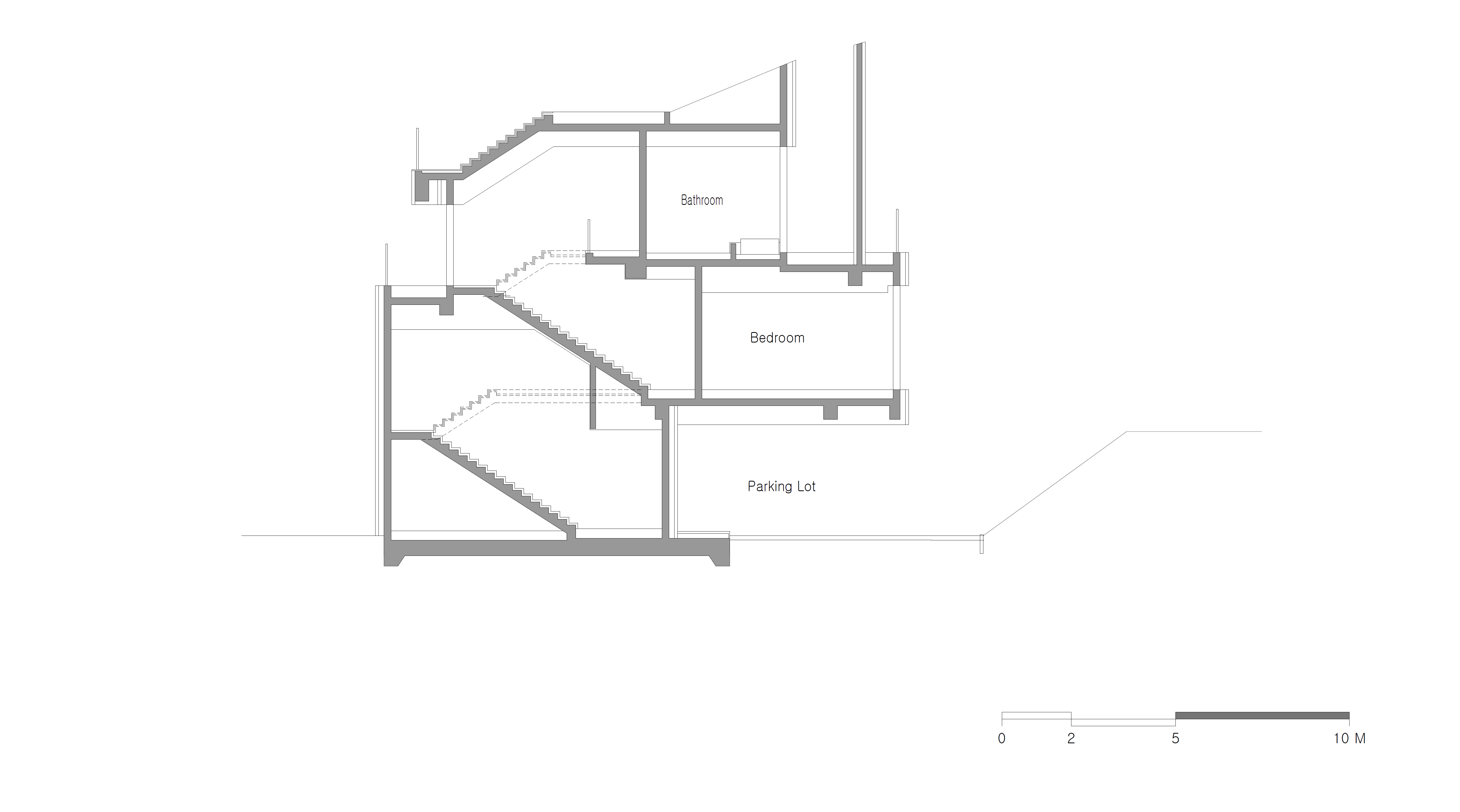
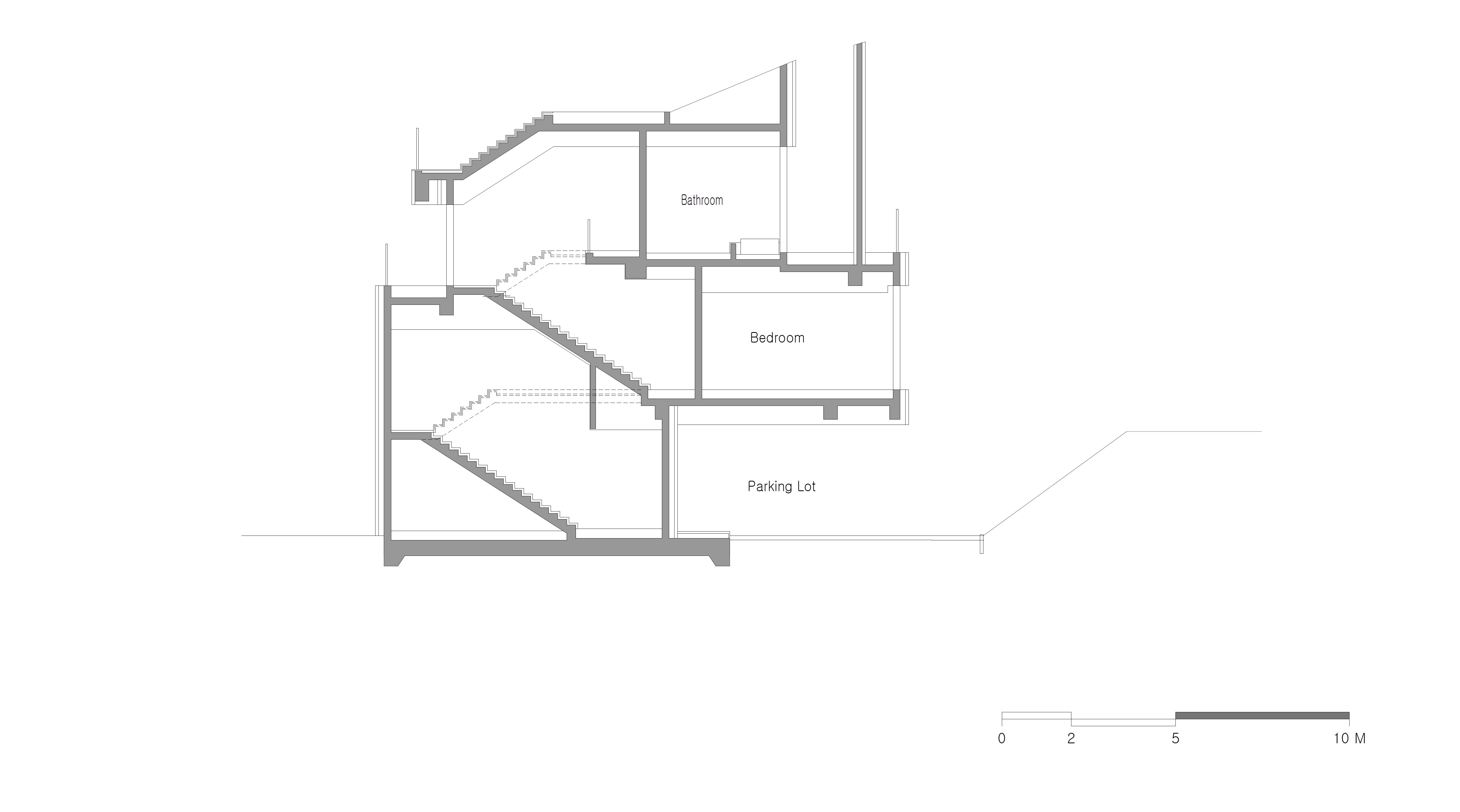
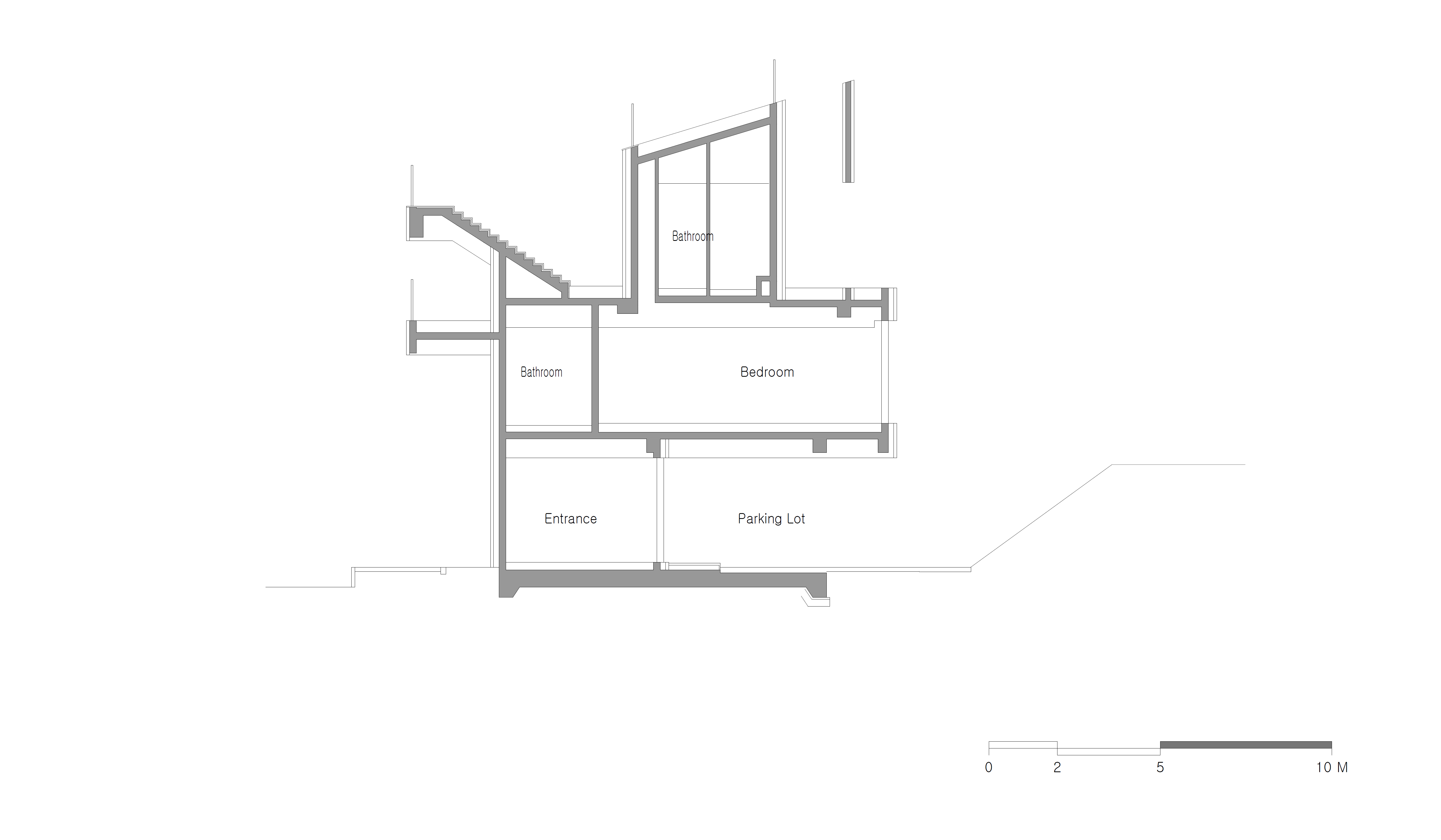
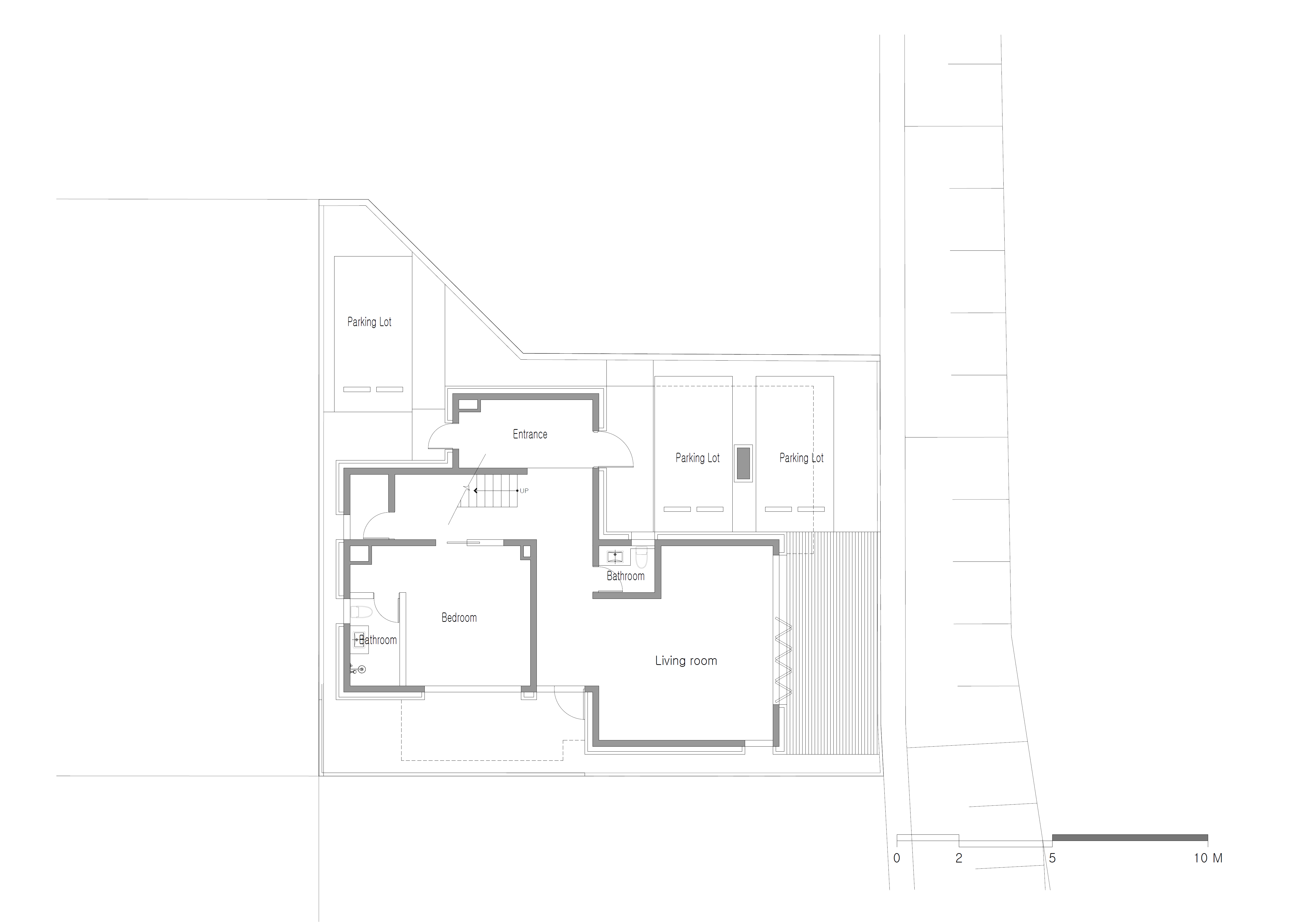
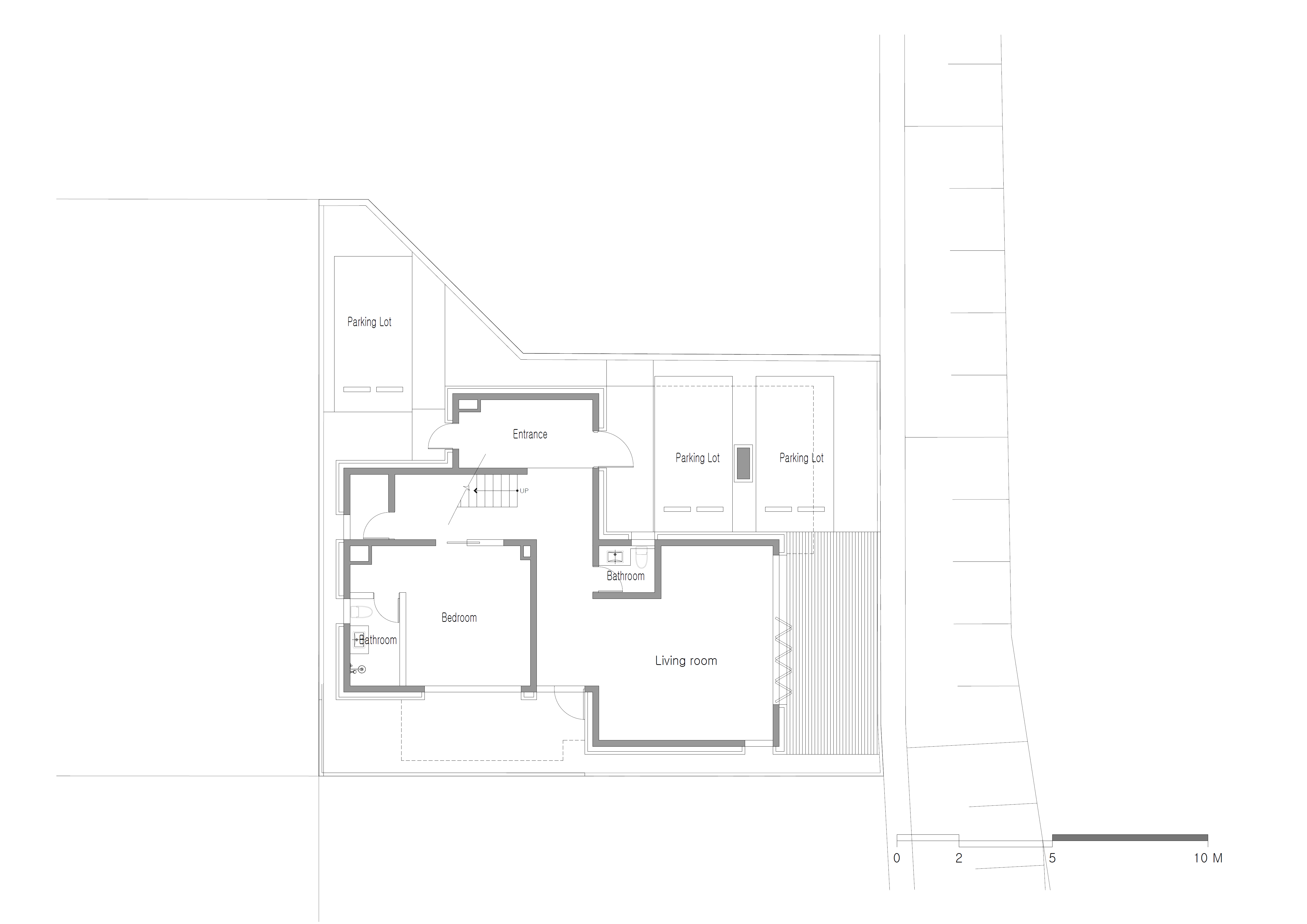
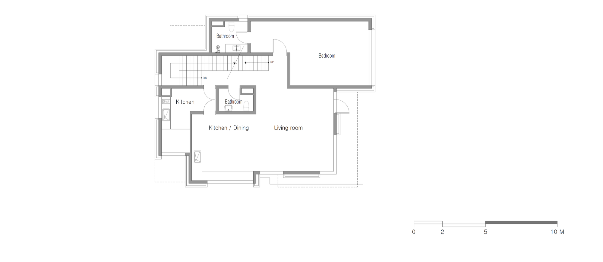
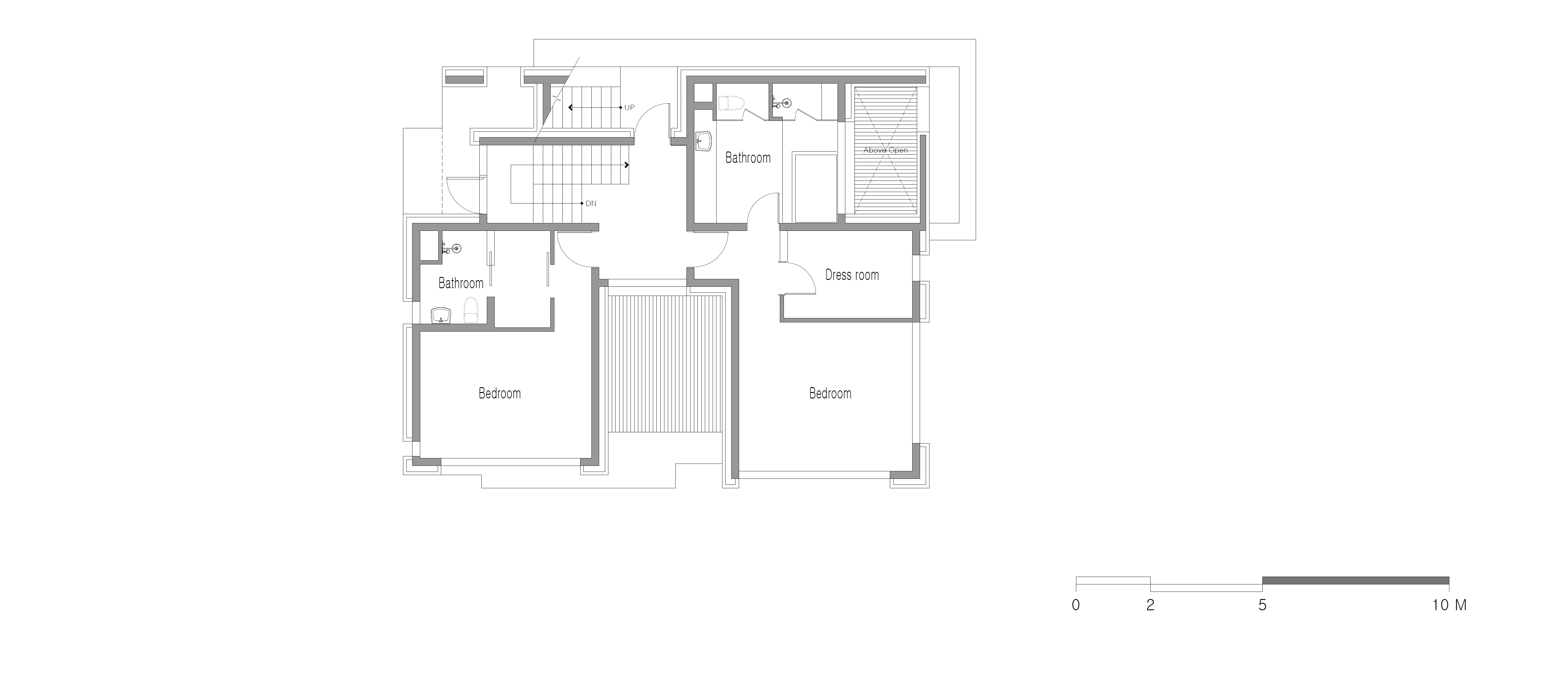
The bedrooms of each member are distributed on each floor to secure the position of an independent individual space, and the living room and the kitchen, shared by the family, were also made to have an independent structure. Each bedroom has a separate toilet, so that they may live independently. In addition, considering the fact that the size of the interior space cannot help being limited, a window was planned to visually bring in the natural and urban exterior space surrounding the site.
The longer the time spent at home becomes, the greater the requirements for external space will become naturally. Since the external space cannot be physically contained in the small-size site, the yard from a traditional concept was designed to be replaced with the balcony space prepared on the upper part of roofs and on each floor. Each balcony space is intended to be attached to the commonly-used space and to have the character as an expanded common-use space. In addition, by arranging windows so that the scenery of the park located on the east side of the site can be seen from the inside, it was intended to have the effect of expanding the space even if the client’s family might stay inside only. In terms of materials, bricks were utilized as a main material, since they could firmly hold its shape even while the time is accumulated with the client and this house and could contain the trace of years as stained more as time goes by. By using the roof gradient defined in the city planning, the shape of each space was made to be exposed to the outside to give visual properties, and the slope of the roof becomes the slope of the interior space to create a rich space.

사이먼 하우스는 건축주의 가족을 위한 개별공간을 가지면서 미래에는 가변적으로 사용가능한 주택이다. 각 구성원의 침실은 내부에서 독립적인 위치를 가지고 있으며, 충분한 크기를 갖추고 독립적으로 기능한다. 설계가 진행되는 당시 코로나 시대가 도래했다. 사이먼 하우스가 가지는 개별공간의 충분한 크기와 독립성은 집에서 머무는 시간이 길어지는 시대에 적합하며, 24시간 머무르며 삶의 모든 행위를 담아내는 공간이기도 하다.
가족 구성원의 침실들은 층별로 분산되어 독립적인 개별공간의 위치를 확보하고, 가족이 공유하는 거실 주방도 독립적인 구조를 가진다. 각 침실에는 개별적인 화장실이 구성되어 있어 독립적으로 생활이 가능한 구조를 가지고 있다. 또한, 집 주변 자연과 도시의 외부공간을 시각적으로 내부로 들여오는 창들이 공간을 더욱 넓어보이게 한다.
집에서 머무는 시간이 길어질수록 외부공간에 대한 요구사항은 커질 수밖에 없다. 물리적으로 작은 크기의 대지에 외부공간을 담아낼 수 없기에, 건축가는 전통적인 개념의 마당을 지붕의 상부와 각 층에 마련된 발코니 공간으로 치환하여 설계했다. 각 발코니 공간들은 공용으로 사용하는 공간에 부속되도록 의도되어, 확장되는 공용공간으로서의 성격을 가진다. 또한, 대지의 동측에 자리한 공원의 풍경을 내부에서 차경(借景)할 수 있도록 창을 배치하여 내부에서만 머무르더라도 공간이 시각적으로 확장되는 효과를 가진다.
사이먼 하우스의 마감은 건축주가 이 집과 함께 쌓아갈 시간에도 굳건히 형태를 유지해 나가고 때가 타면서 세월을 담아낼 수 있는 벽돌이 주재료다. 도시계획에서 정의해 놓은 지붕의 경사도를 이용하여 각 공간의 형태가 밖으로 드러나도록 하여 시각적 특성을 부여하였으며, 지붕의 경사는 내부공간의 경사가 된다.


















Architects D-Werker Architects
Location Dongpae-ro, Paju-si, Gyeonggi-do, Republic of Korea
Site area 265.30㎡
Building area 154.87㎡
Gross floor area 301.36㎡
Building scope 3F
Building to land ratio 58.38%
Floor area ratio 113.59%
Design period 2019. 09 - 2020. 03
Construction period 2020. 04 - 2021. 04
Completion 2021
Project architect Jieun Lee, Hwon Yoon
Construction IT Construction
Photographer Inwoo Yeo
해당 프로젝트는 리빙즈, 디테일 03호에 게재되었습니다.
The project was published in LIVINGS, Detail 03
[BOOK] LIVINGS, Detail 리빙즈, 디테일 03호, 04호
<LIVINGS, Detail 리빙즈, 디테일 03호, 04호> 72개의 형태와 라이프스타일을 담은 주거공간, 국내외 “디테일한 주택 프로젝트”의 엮음 매월 국내외 다양한 건축물들을 소개해 온 <월간 건축문화>가 <
www.masilwide.com
'Architecture Project > Single Family' 카테고리의 다른 글
| BEGINNING YOON (0) | 2022.06.02 |
|---|---|
| HAHYUNGAE (0) | 2022.05.31 |
| JAEHO HOUSE (0) | 2022.05.27 |
| VILLA LP (0) | 2022.05.27 |
| SWISSHOUSE XXXVI (0) | 2022.05.26 |
마실와이드 | 등록번호 : 서울, 아03630 | 등록일자 : 2015년 03월 11일 | 마실와이드 | 발행ㆍ편집인 : 김명규 | 청소년보호책임자 : 최지희 | 발행소 : 서울시 마포구 월드컵로8길 45-8 1층 | 발행일자 : 매일



