
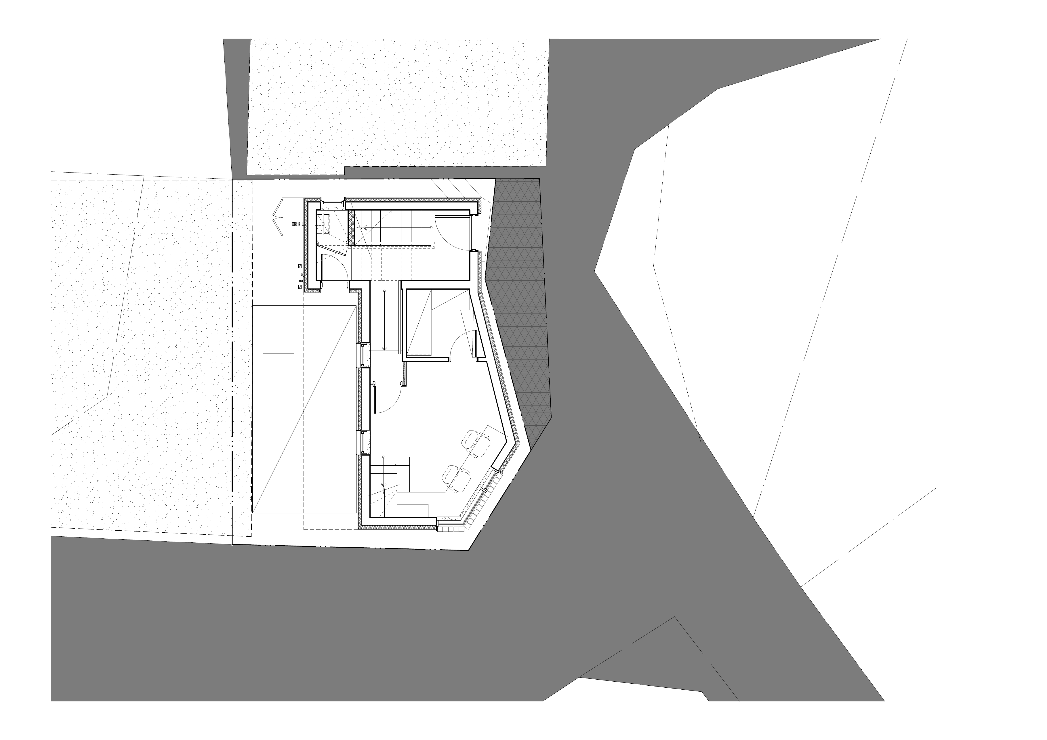
“Bigining Yoon” is a detached house with a son of an elementary school student and a double-income couple on a 53㎡ site facing a narrow road in Jongam-dong's residential area. Since grandmothers living nearby have a lot of time to take care of their young grandchildren, they had to realize a space where three adults and children could live together on a small site.
Most parents who plan small houses for their children often make bold choices to present a unique space where their children can run at home and are not unifed, while recognizing that small houses may be inconvenient compared to their daily residential spaces, they have lived in. The start of “Bigining Yoon” is no different. However, it was a project in which the size of the land and surrounding conditions were very difficult. In order to secure the required width of the deadend road, about 7m2 of the land area, which was not wide, had to be released as a road, and it was impossible to secure the area prescribed by the law due to neighboring illegal buildings. In addition, the ground condition was not stable, so it was not easy to construct the basement.
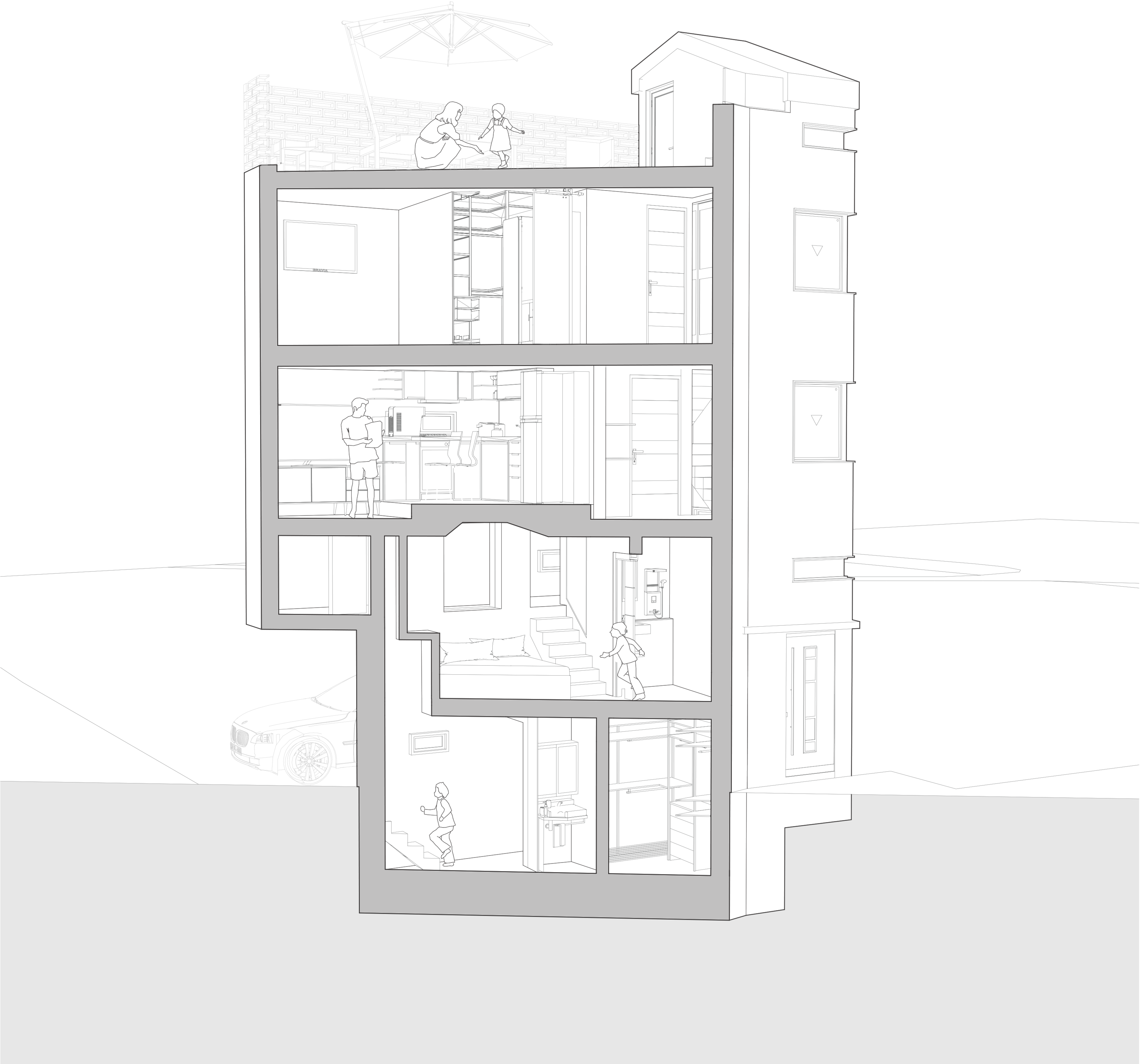
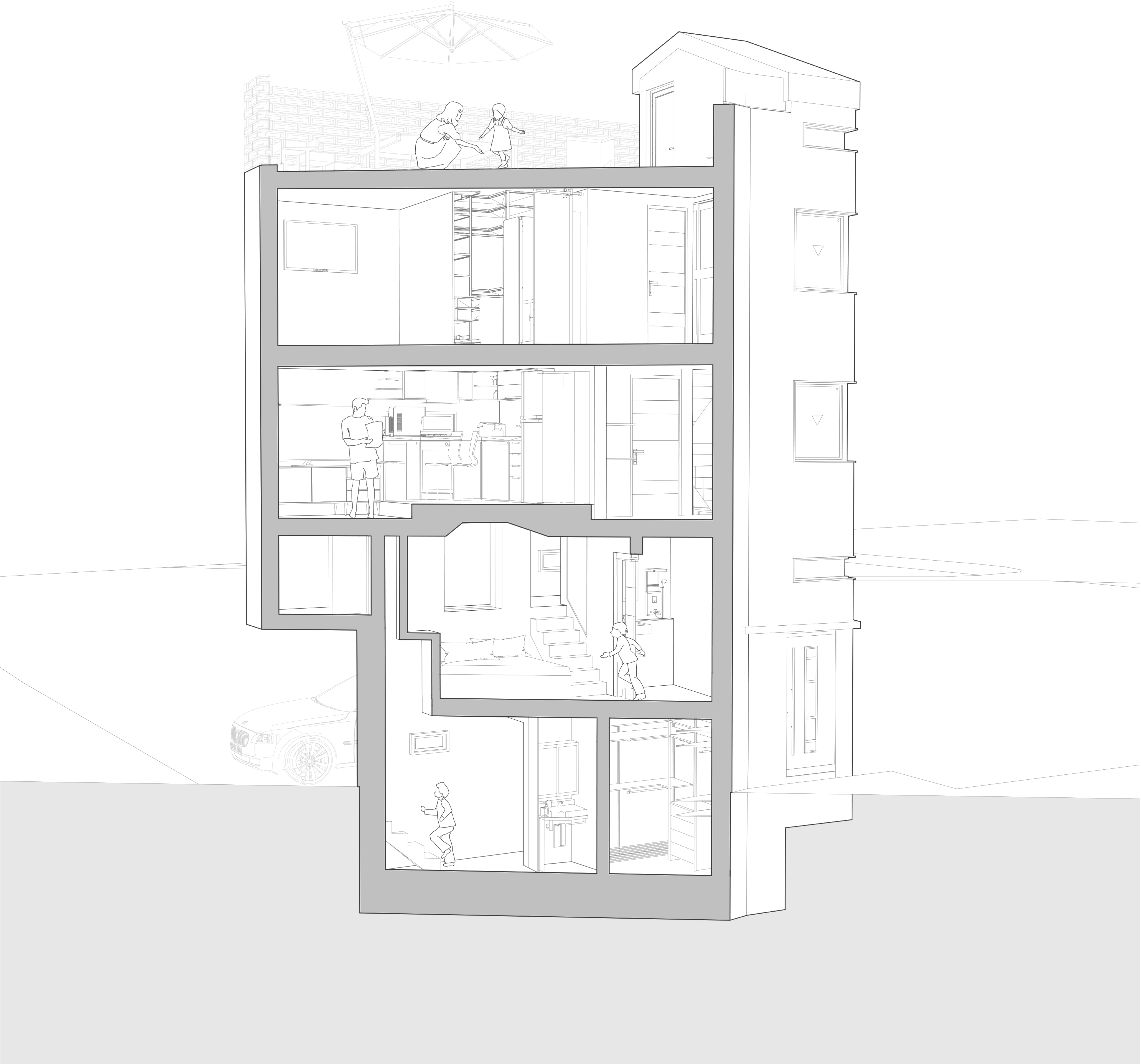
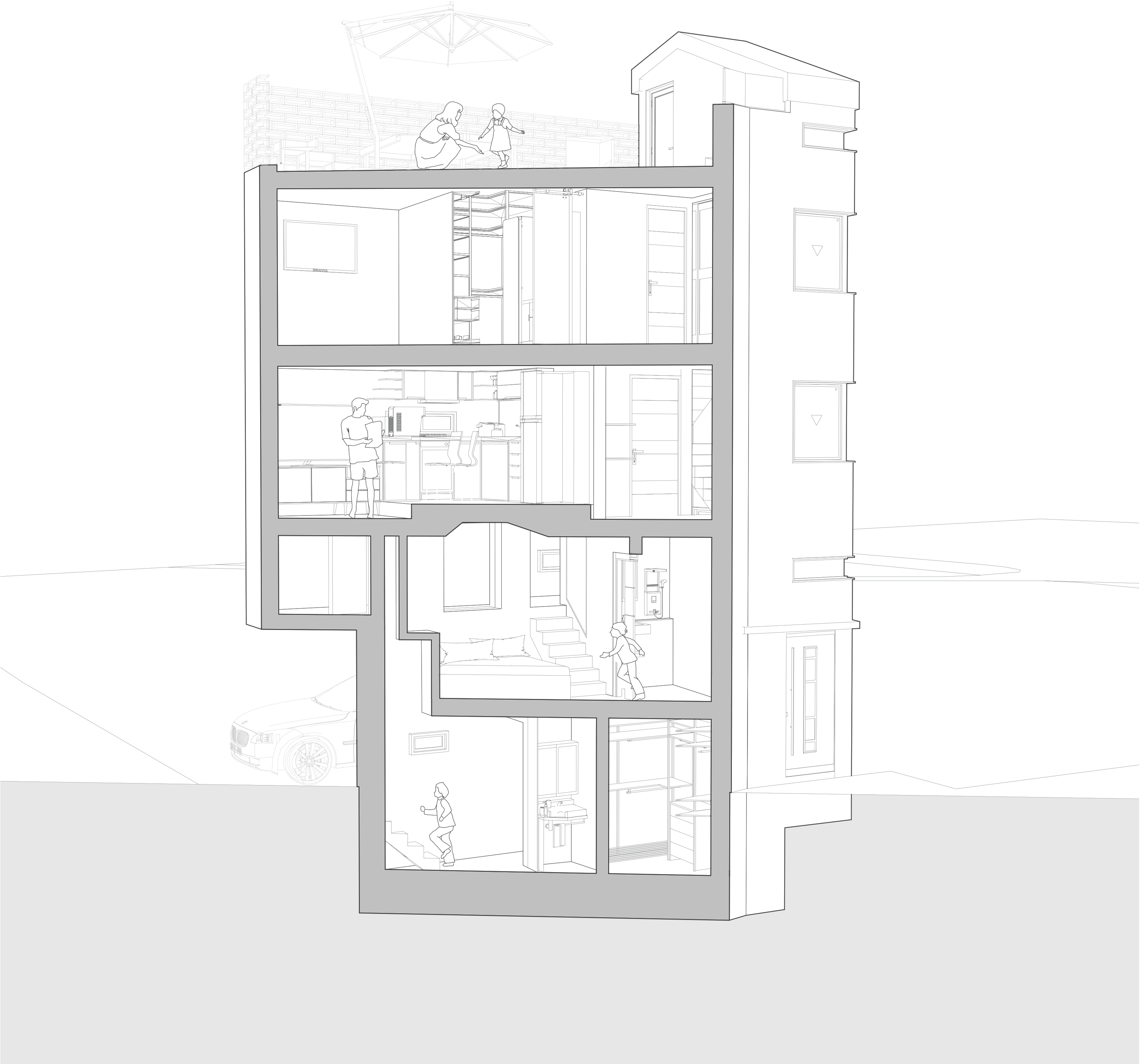
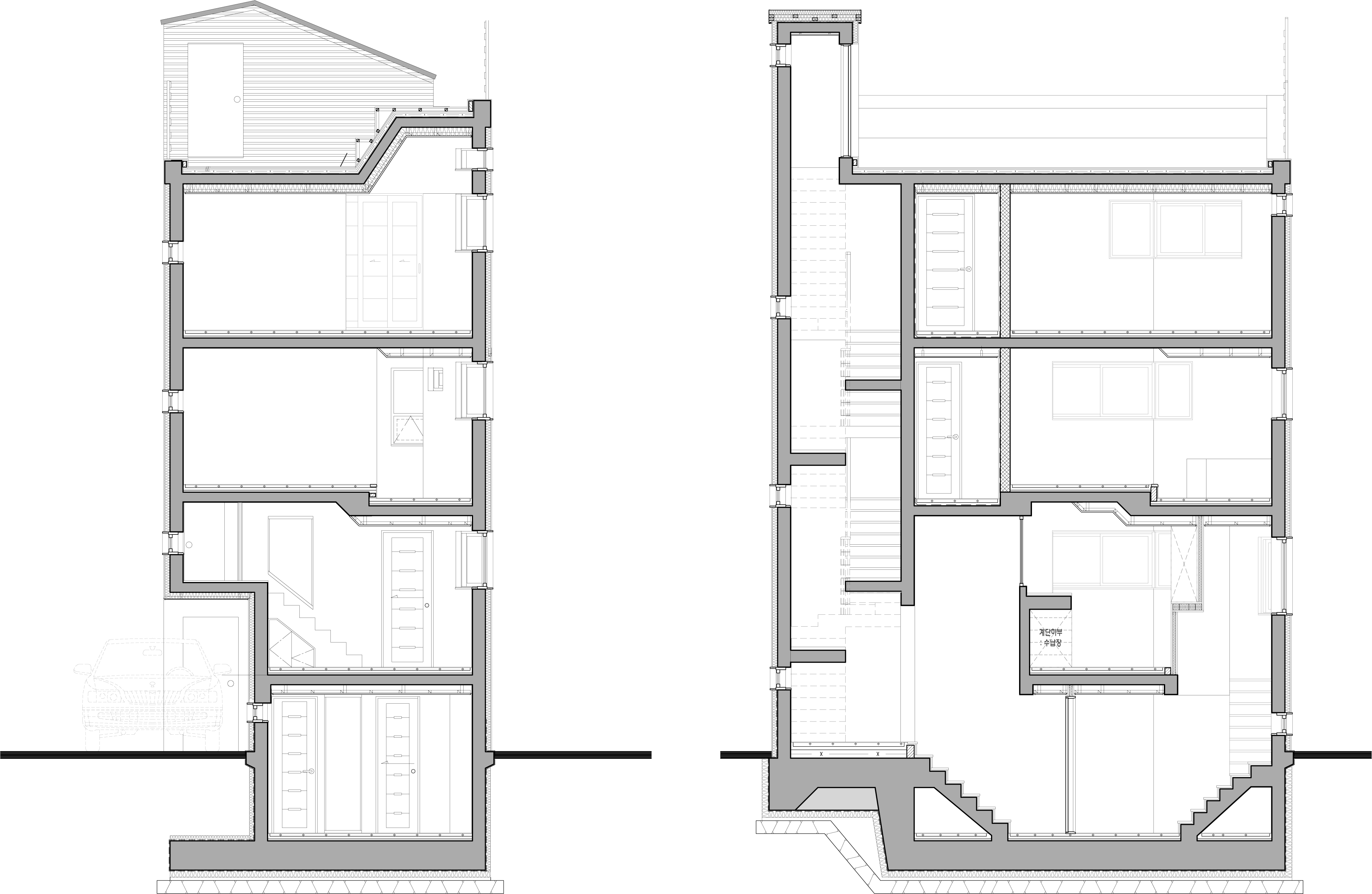
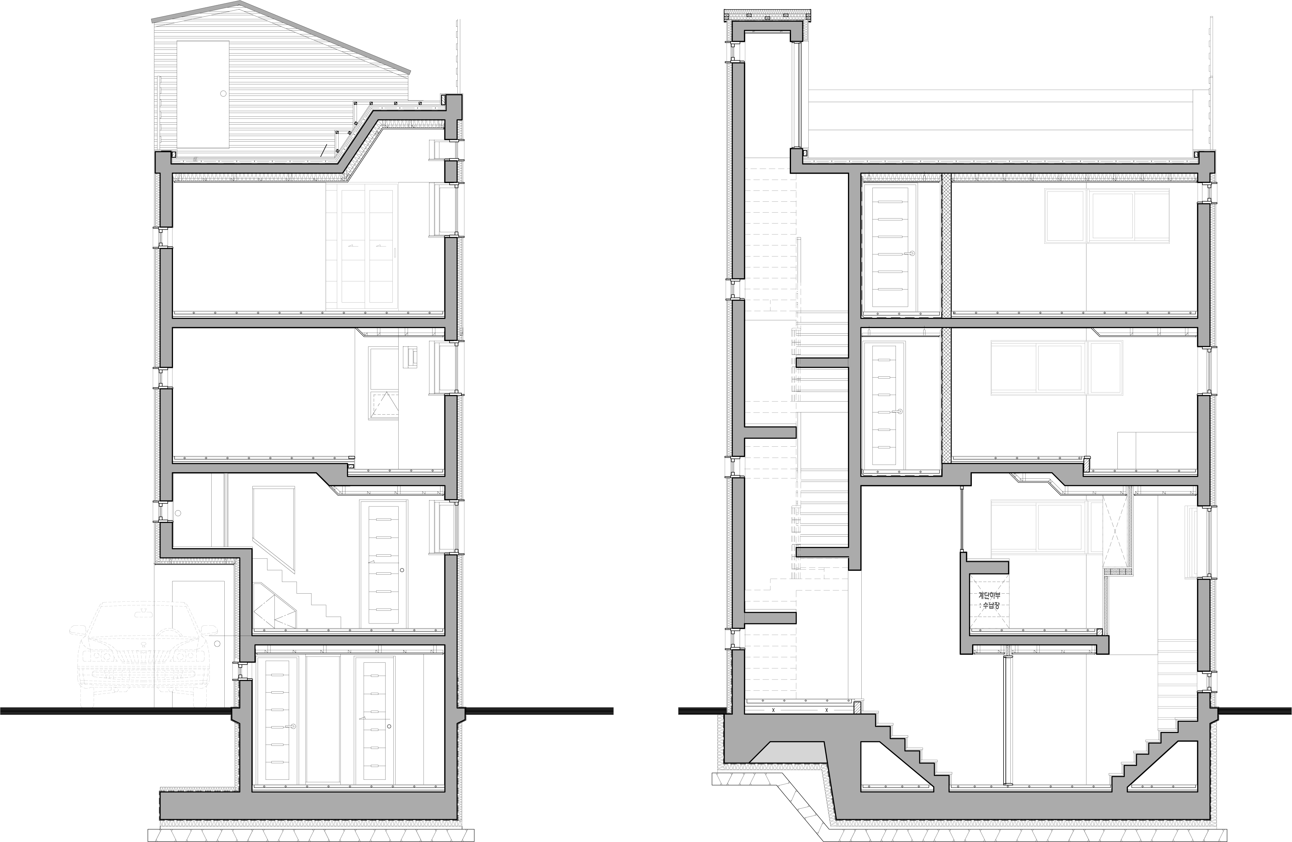
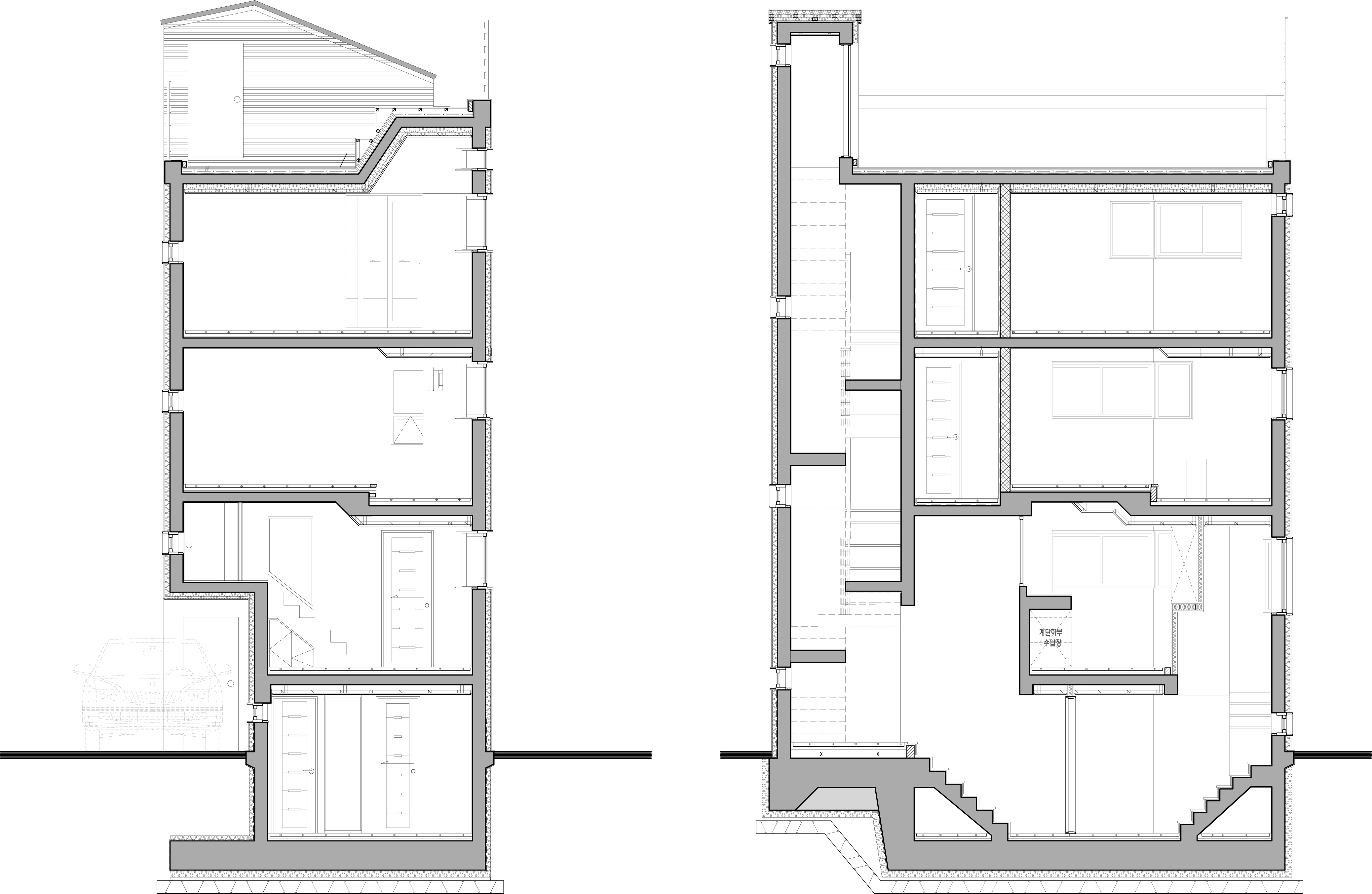
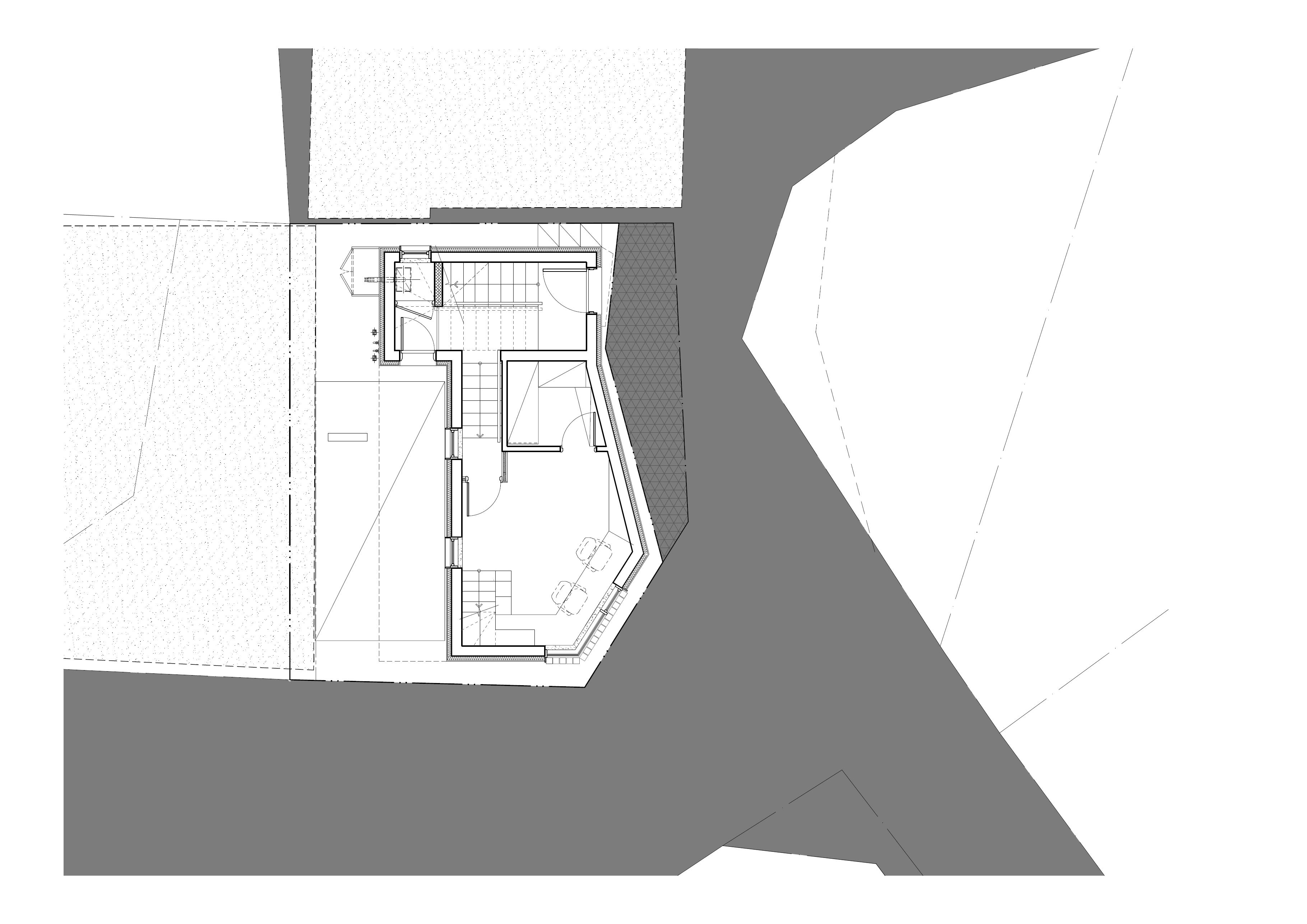
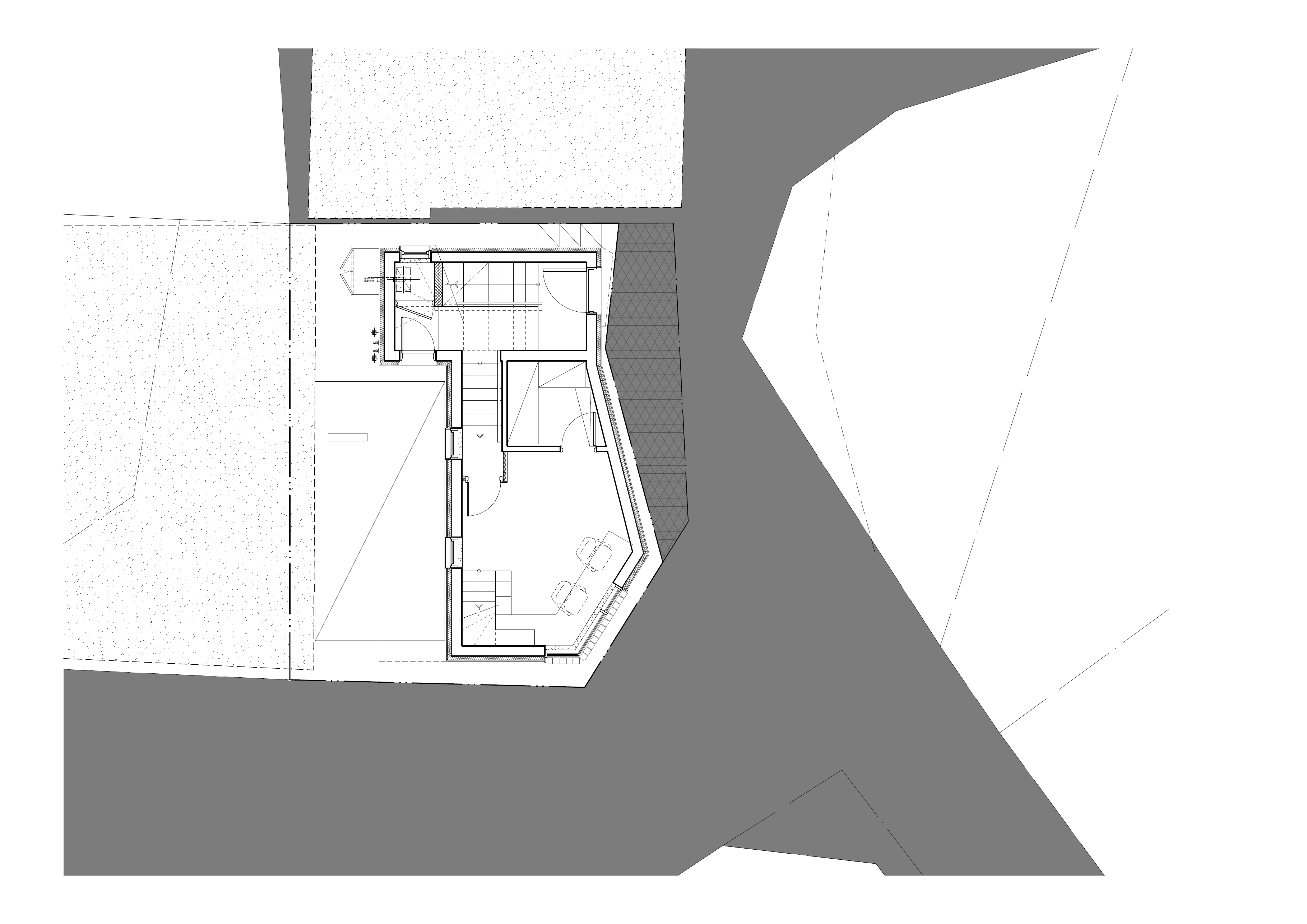
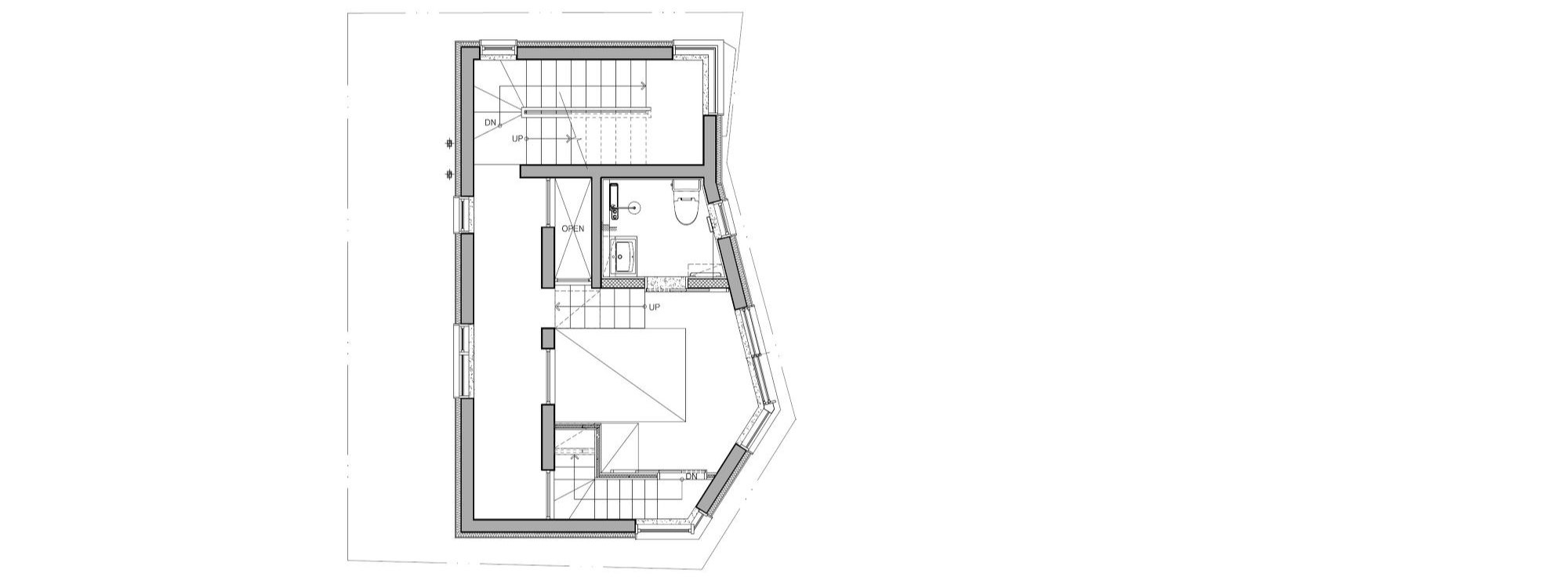
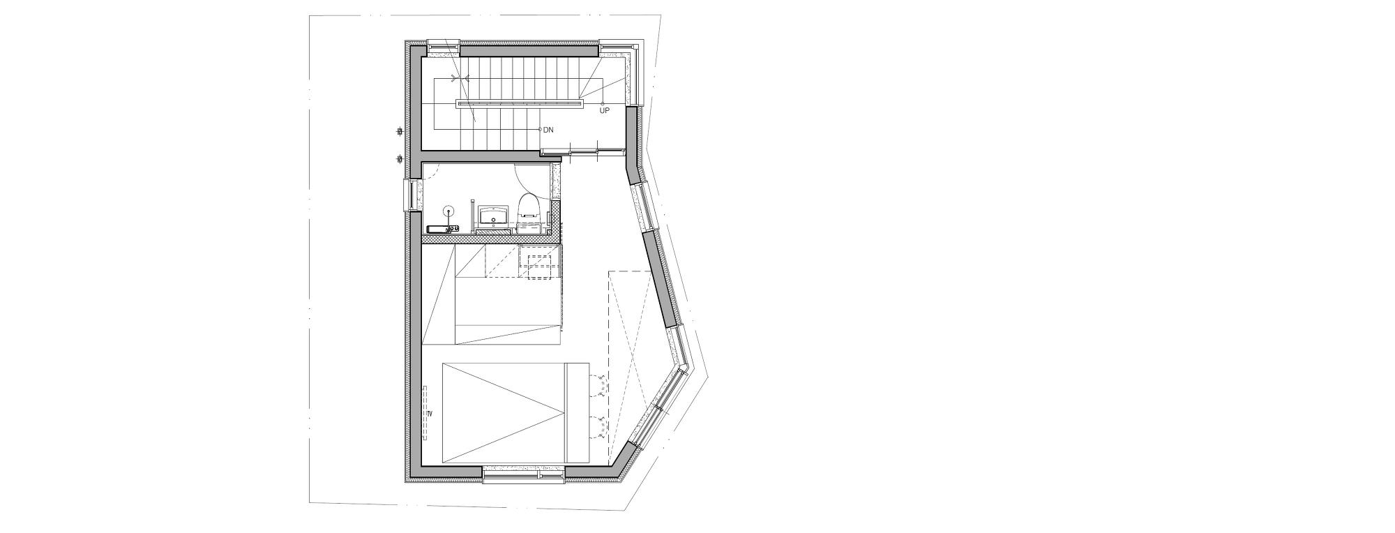
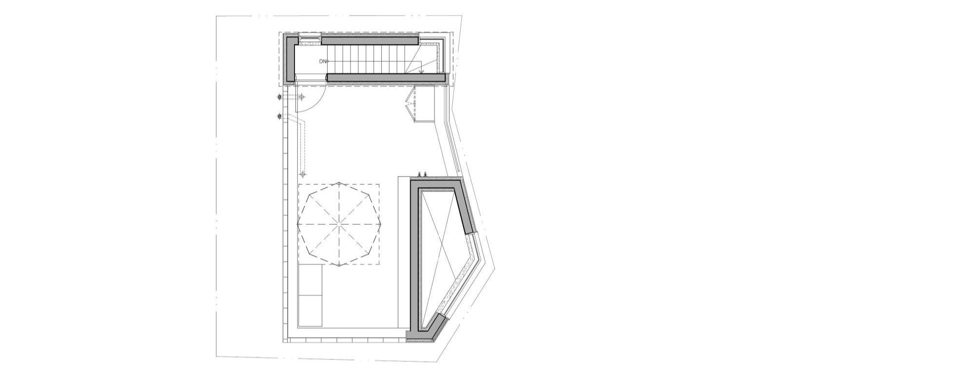
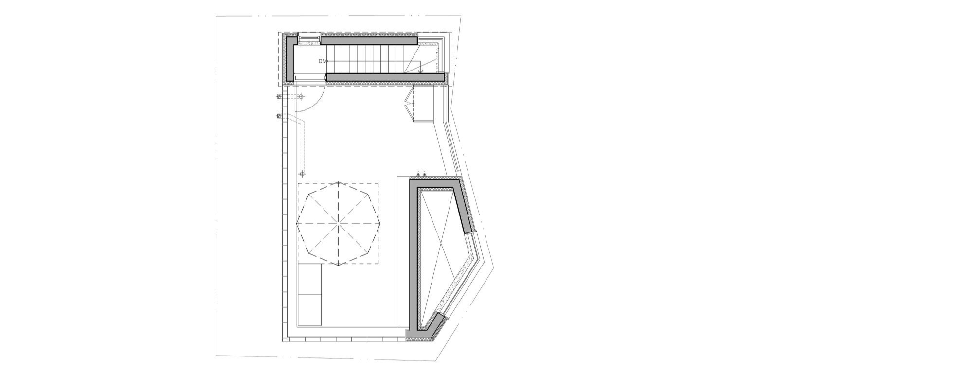
To overcome this difficulty, the building’s floor got minimized, and part of the 1st floor has buried under the ground. Entering the entrance to the ground floor, the main staircase comes in front of you, but the child who has to spend the most time in this house goes down to his space through the stairs at right angles of the main staircase. The space was composed of a child's study room, and the upper part of the study room was composed of a double-decker bedroom. By securing movements from the bedroom to the attic(upper parking lot) and connecting to the main stairs from the attic, the focus was on minimizing underground space that is burdensome to the family and providing children and cats with fun and efficiency.
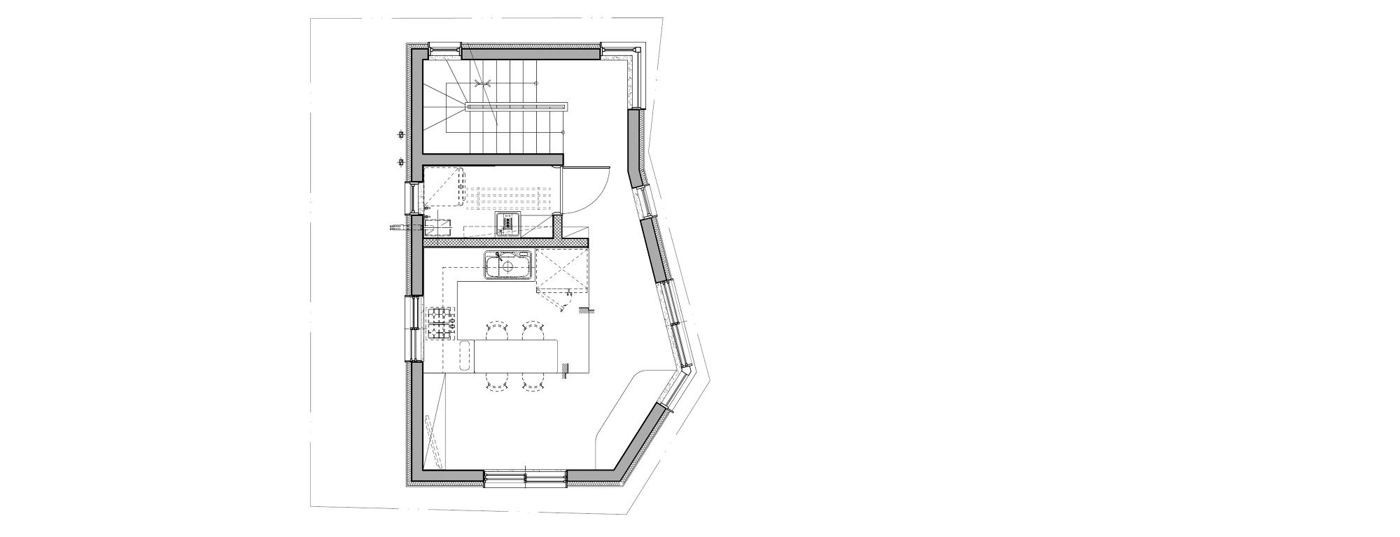
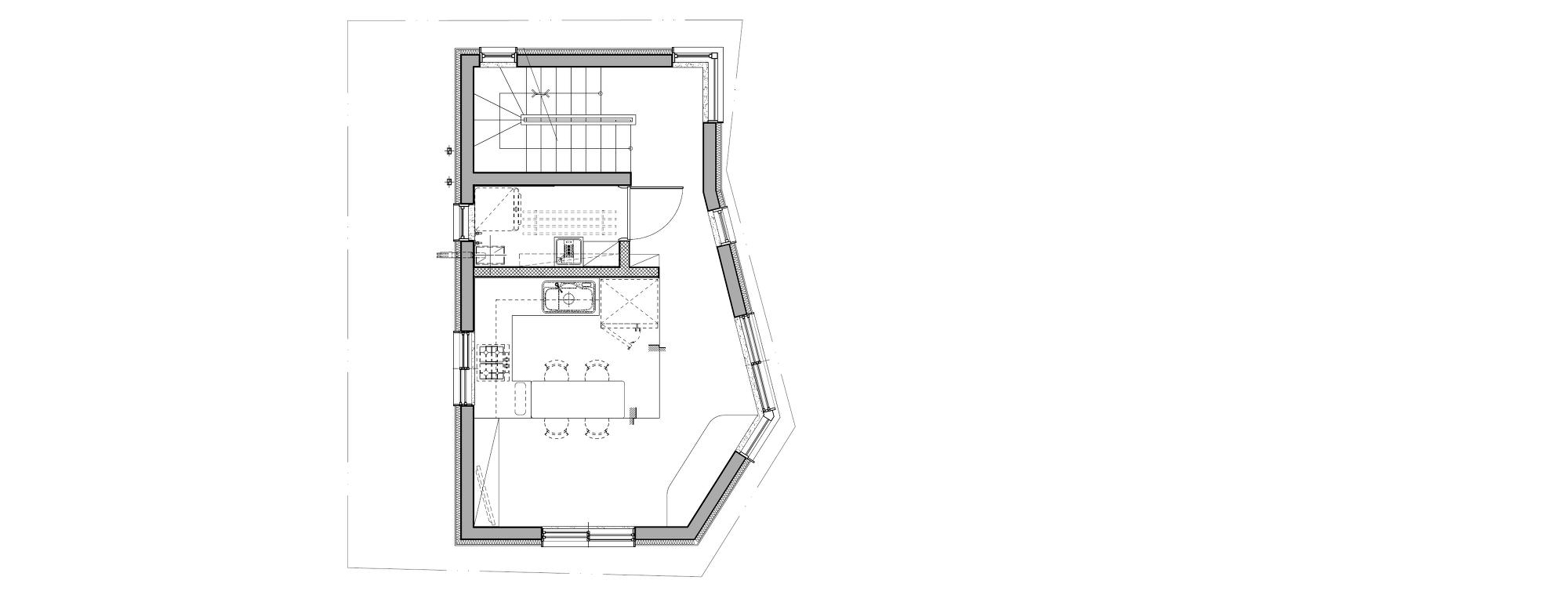
The third floor above the ground consists of a living room and a kitchen, and the fourth floor above the ground consists of a couple's bedroom, considering the accessibility of Yoon-yi and her grandmother through an attic connected by the main staircase(two-story staircase). Giving two floors to the child, especially because the ceiling on the fourth floor above the ground is low, the height of the ceiling is changed to secure openness while securing mining on the south side of the couple's bedroom, and the changed height is naturally used as a flat surface on the rooftop. To the extent that it does not violate the right to sunlight, the rooftop space is a life-like space for small houses. In Beginning Yoon, the space prepared to secure the openness of the couple's bedroom on the fourth floor above the ground provides another convenience, making it a very special space for families.

비기닝 윤은 종암동 주택가 좁은 도로에 접해있는 약 53㎡ 대지에 초등학생 아들과 맞벌이 부부가 함께하는 단독주택이다. 인근에 거주하는 할머니께서 어린 손자를 돌보는 시간이 적지 않으므로, 협소한 부지에 어른 3명과 아이가 함께 생활할 수 있는 공간을 구현해야 했다.
아이를 위해 협소주택을 계획하는 대다수 부모는 그동안 거주하던 일상적인 주거공간과 비교해, 협소주택이 불편한 점이 있을 수 있다는 점을 인지하면서도, 아이가 집에서 뛸 수 있고, 획일화되지 않는 개성 있는 공간을 선물하기 위해 과감한 선택을 하게 되는 경우가 많다. 비기닝 윤 또한 그 출발은 다르지 않다. 다만, 대지의 규모나 주변 여건이 매우 어려운 프로젝트였다. 막다른 도로의 소요 폭을 확보하기 위해 안 그래도 넓지 않은 대지면적 중 약 7m2는 도로로 내어놓아야 했으며, 이웃한 불법건축물들 때문에 법규에서 정한 면적을 확보하는 것이 불가능했기 때문이다. 또한, 지반 상태가 안정적이지 않아 지하층 공사 또한 쉽지 않은 상황이었다.
이러한 난관을 극복하기 위해 건축물의 층고를 최소로 했으며, 지상 1층의 일정 부분을 땅속에 묻었다. 지상 1층 현관을 들어서면 주 계단이 눈앞에 들어오지만, 이 집에서 가장 많은 시간을 보내야 하는 아이는 주 계단 직각 방향에 있는 계단을 통해 자신의 공간으로 내려가게 된다. 그 공간을 아이의 공부방으로 구성하고, 공부방 상부를 복층 형태의 침실로 구성했다. 그리고 그 침실에서 다락(주차장 상부)으로 연결되는 동선을 확보하고 그 다락에서 주 계단으로 연결될 수 있도록 동선을 확보함으로써, 공사에 부담이 되는 지하공간을 최소화하지만, 가족에게 필요한 최소한의 면적을 확보하는 것에 주안점을 두었다. 또한, 순환하는 동선 구성을 통해 아이와 반려묘에게 재미와 효율성을 고려한 동선을 제공함과 더불어, 자투리 공간의 활용성(다양한 수납공간) 또한 극대화 하는 것에 중점을 두었다.
주 계단으로 연계되는 다락(주 계단 2층 높이의 계단참)을 통해 아이와 할머니의 접근성을 고려한 지상 3층은 거실 겸 주방, 지상 4층은 부부침실로 구성하였다. 아이에게 2개 층을 내어주다 보니, 특히 지상 4층의 천정이 낮아 답답할 수 있기에, 부부침실 남향 측에 채광을 확보하면서 개방감을 확보하기 위해 천정의 높이에 변화를 주었으며, 그 높이가 변화된 공간은 옥상에서 자연스레 평상으로 이용할 수 있도록 공간을 구성했다. 일조권에 저촉되지 않는 범위에서 옥상 공간은 협소주택에 있어 생명과 같은 공간이다. 비기닝 윤에서는 지상 4층 부부 침실의 개방감 확보를 위해 마련한 공간이 또 다른 꺼리를 제공해, 가족들에게 아주 특별한 공간으로 자리하고 있다.

















Architects JOYUL Architecture
Location Seongbuk-gu, Seoul, Republic of Korea
Site area 53.17㎡
Building area 31.83㎡
Gross floor area 105.19㎡
Building scope 4F
Building to land ratio 59.86%
Floor area ratio 197.84%
Construction period 2020. 05 – 2021 .02
Completion 2021. 02
Principal architect Jaesun Kim
Project architect Jaesun Kim
Design team Woongkyu Lee, Jongrok Lee, Sanghun Kwon, Nuri Han
Structural engineer INTERWORLD ENG. STRUCTURAL CONSULTANTS
Mechanical engineer JOEUN ENG.
Electrical engineer JOEUN ENG.
Construction Design DONO
Photographer Changmook Kim
해당 프로젝트는 리빙즈, 디테일 03호에 게재되었습니다.
The project was published in LIVINGS, Detail 03
[BOOK] LIVINGS, Detail 리빙즈, 디테일 03호, 04호
<LIVINGS, Detail 리빙즈, 디테일 03호, 04호> 72개의 형태와 라이프스타일을 담은 주거공간, 국내외 “디테일한 주택 프로젝트”의 엮음 매월 국내외 다양한 건축물들을 소개해 온 <월간 건축문화>가 <
www.masilwide.com
'Architecture Project > Single Family' 카테고리의 다른 글
| IBIS SENDAGAYA (0) | 2022.06.07 |
|---|---|
| BONGCHEONYEONGA (0) | 2022.06.03 |
| HAHYUNGAE (0) | 2022.05.31 |
| SIMON HOUSE (0) | 2022.05.30 |
| JAEHO HOUSE (0) | 2022.05.27 |
마실와이드 | 등록번호 : 서울, 아03630 | 등록일자 : 2015년 03월 11일 | 마실와이드 | 발행ㆍ편집인 : 김명규 | 청소년보호책임자 : 최지희 | 발행소 : 서울시 마포구 월드컵로8길 45-8 1층 | 발행일자 : 매일



