
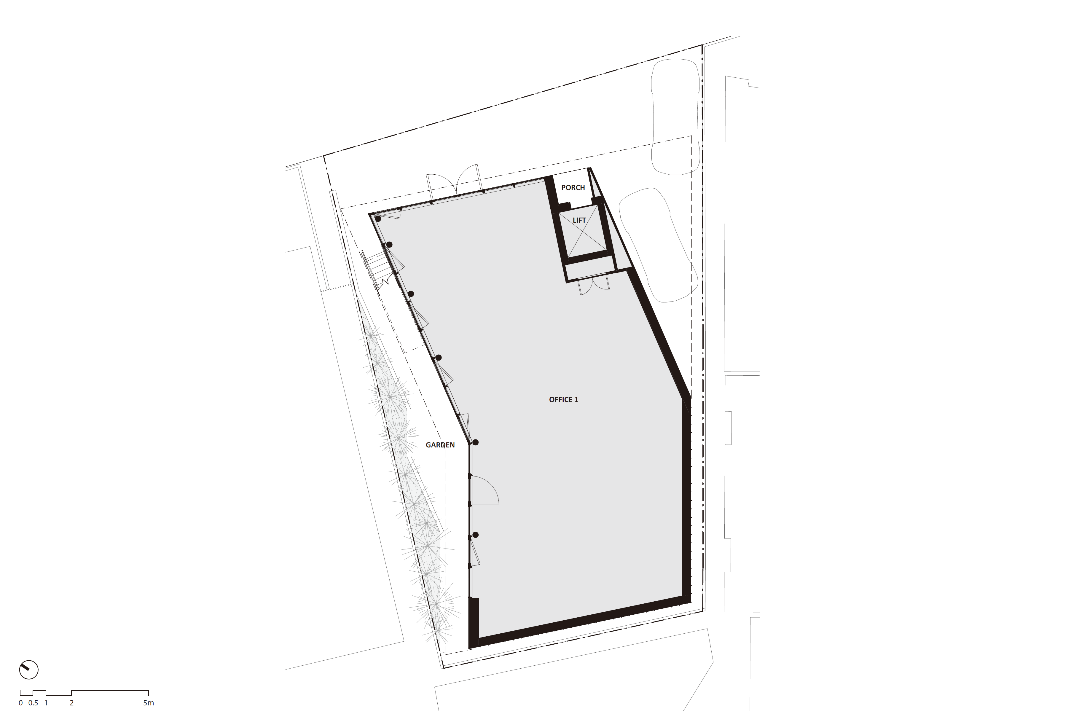
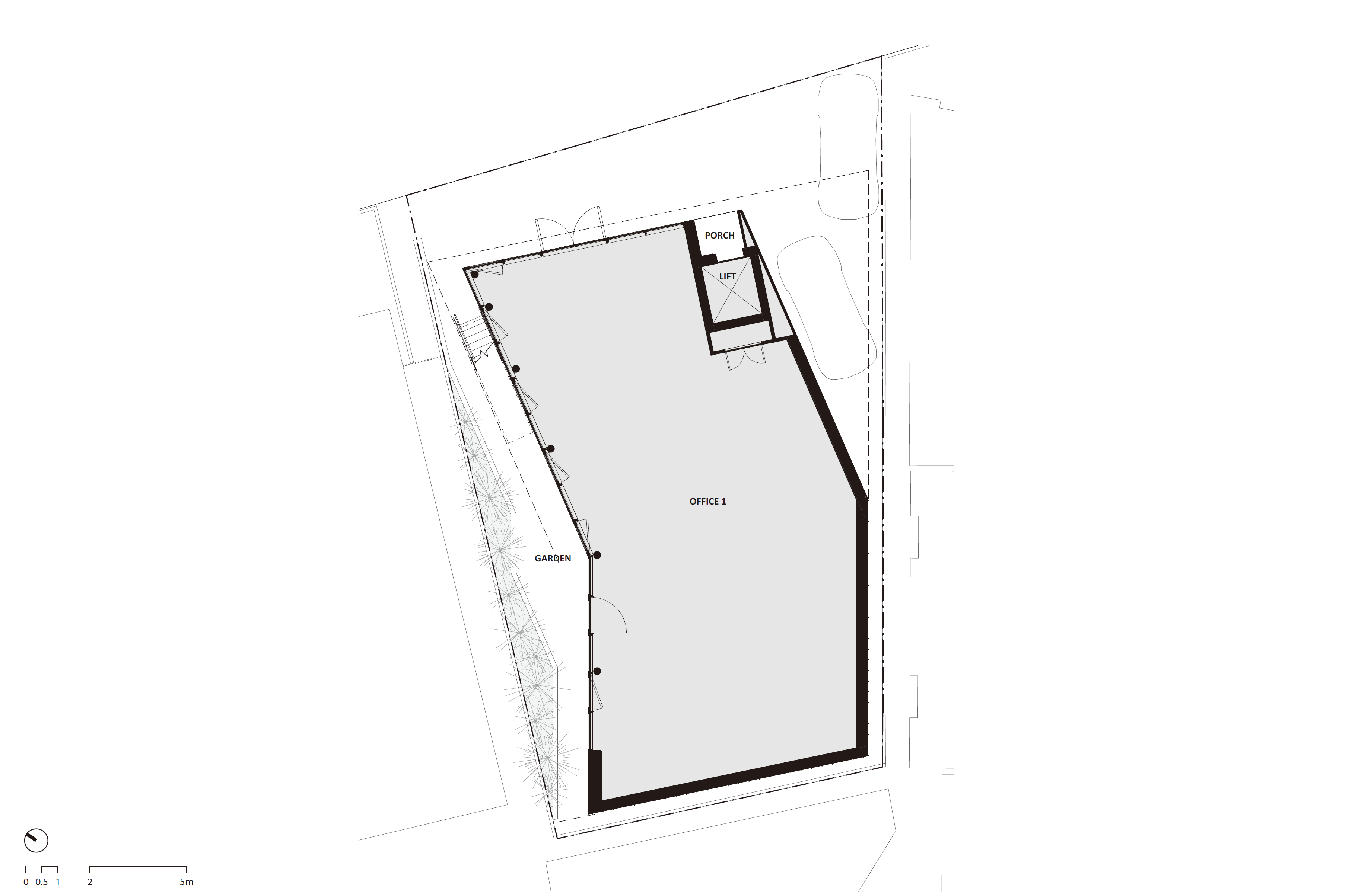
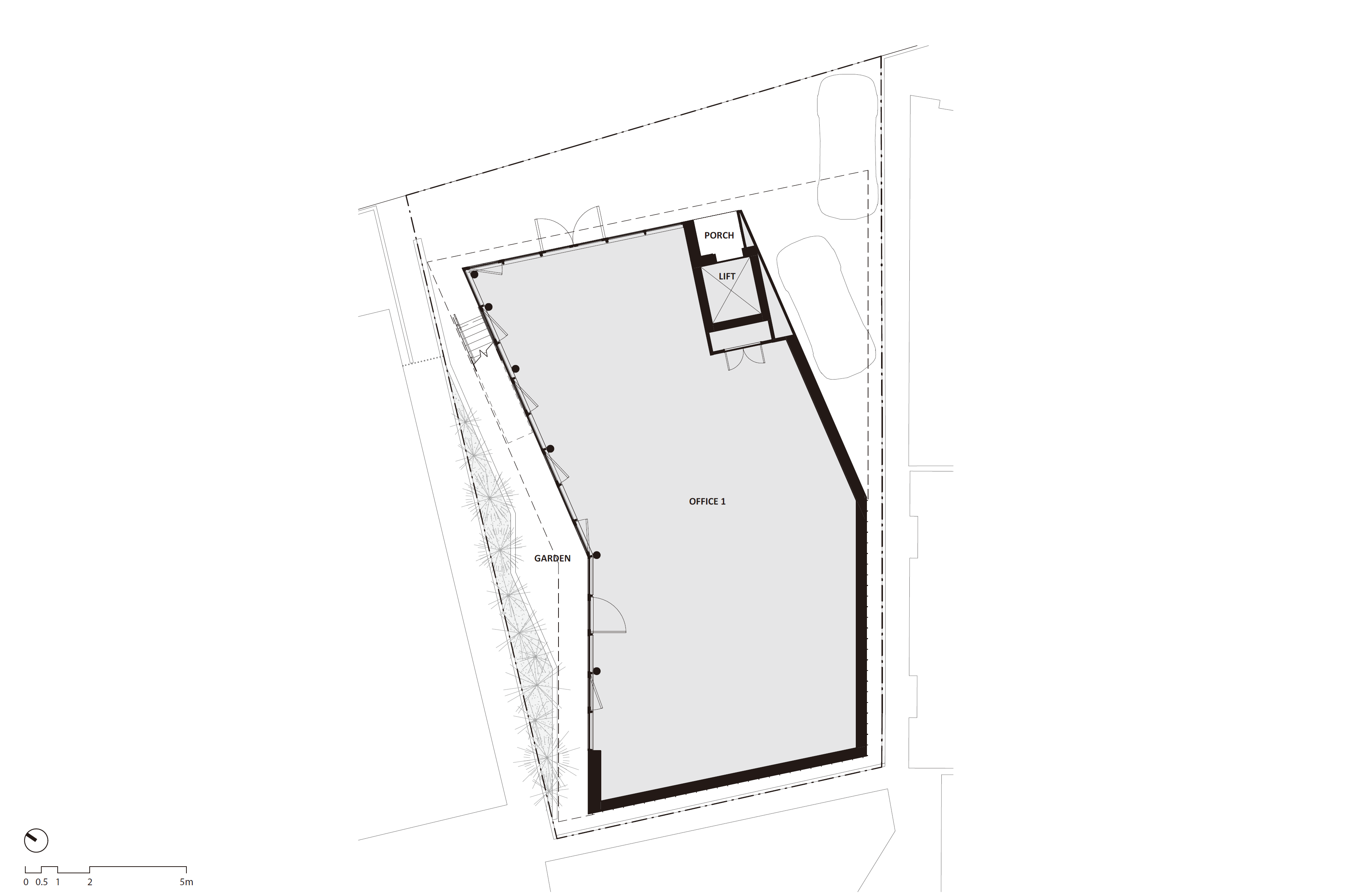
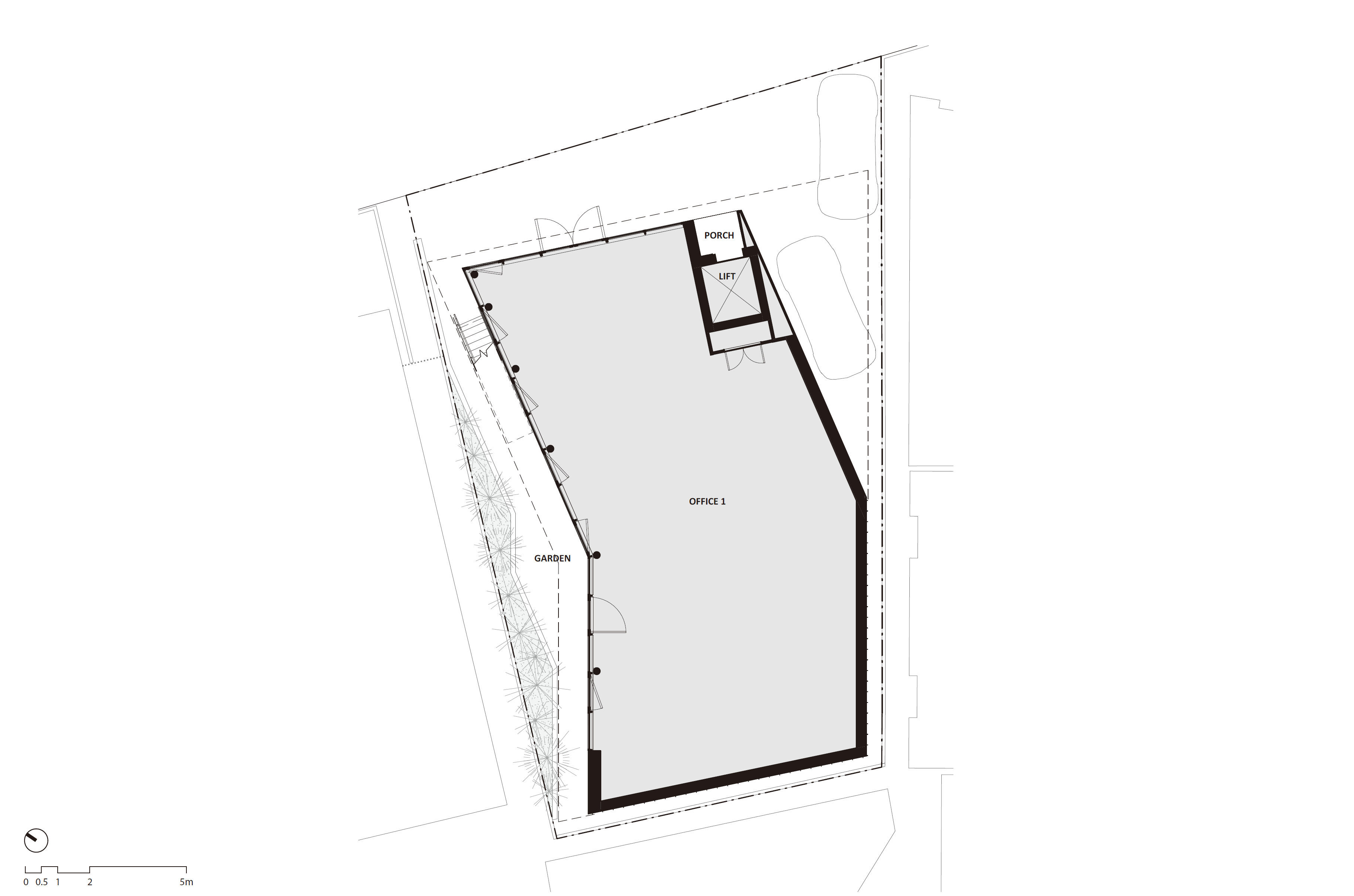
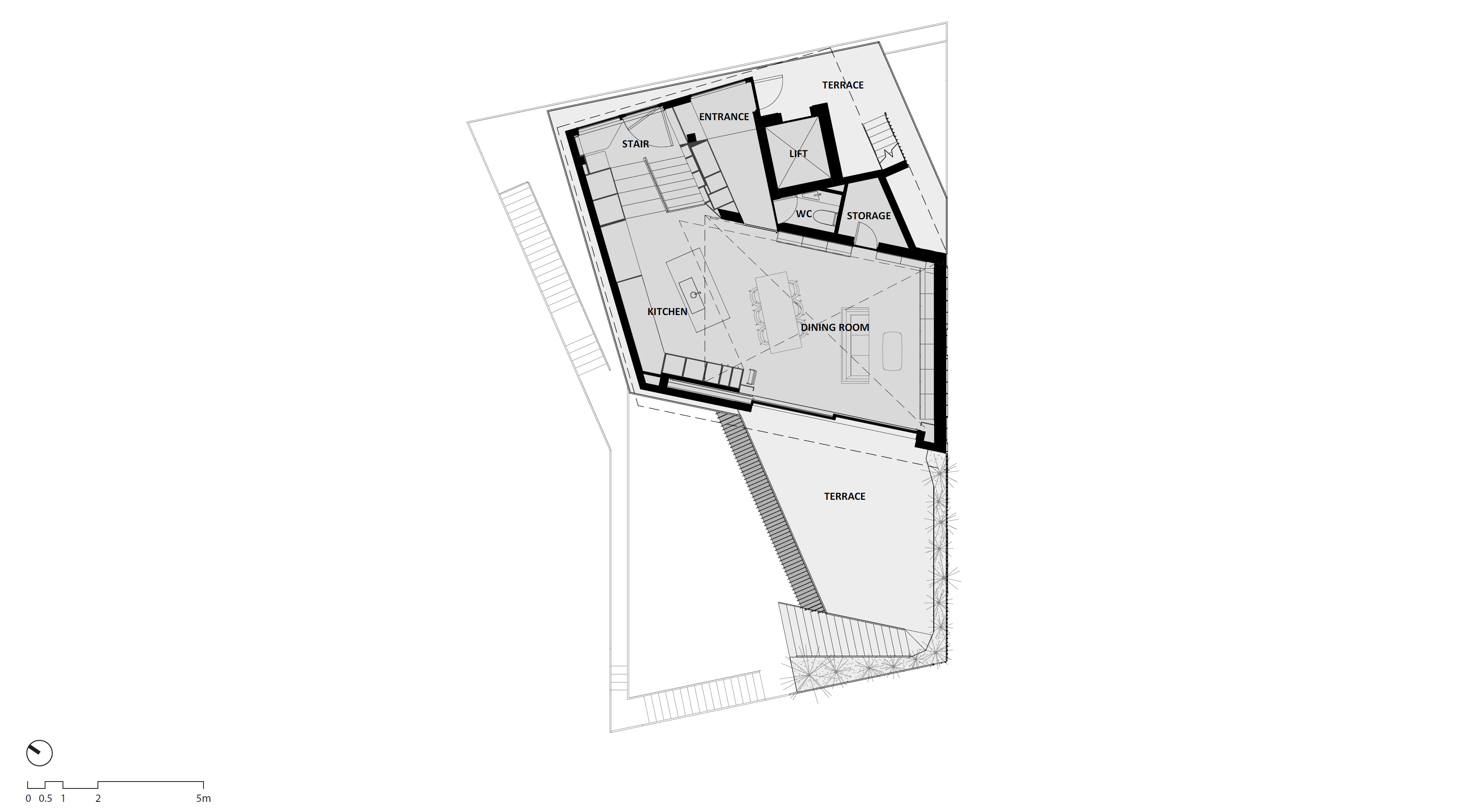
Located near the National Stadium in Sendagaya, Tokyo, the project is composed of two floors of tenant spaces and the client’s two-story residence above them. The main challenge is how to accommodate comfortable residential environments and sufficiently profitable tenant spaces within the site constraints with limited floor area. While the street level is relatively dense, we found potential open voids to create comfortable environments above the surrounding low buildings. By adapting complicated shadow calculations to maximize the height, the building volume is developed to be taller on the northern side, elevating the duplex residence higher than neighbouring roofs capturing open views all around. Each level's floor plate is uniquely skewed according to the shadow regulation, usages, and vertical relationships. This stacking generates shading overhangs and various outdoor spaces. Deep slab volumes to structurally support Irregular stacking are utilized as service layers such as mechanical space, planting pit, storage and loft. Their linear façades are wrapped by metal bands with repetitive vertical slats like louvers, integrating the code requirements forcing a vertical slats balustrade into the façade design. Through the fully openable sliding windows at each floor, both 4F Living room and 3F Hall extend towards the generously planted terraces which become a part of the living spaces. Openly connected generous spaces create a spatial continuum of Inside and outside that forms a 'three-dimensional loop' of the living spaces, where light, air, view, and all the flow of life and nature circulate seamlessly besides joyful kids running around. A roof terrace spirals up to the wide slope covered by the artificial turf, resembling an exclusive playground almost floating over the sky. Through an elaborate analysis and studies of the site's constraints, a distinctive building resembling a fortress stands out from the urban fabric thanks to Its irregular terraces and lush vegetation.

이비스 센다가야는 도쿄 센다가야 국립경기장 인근에 임대용 두 개 층과 건축주의 거주 공간인 두 개 층을 가진 상가주택이다. 상대적으로 낮고 조밀한 거리의 건물들 보다 위에 편안한 환경을 조성할 수 있는 열린 공간이 필요한 상황이었고, 이비스 센다가야는 층층이 쌓인 형태가 되었다. 특히, 북쪽의 볼륨은 다른 부분보다 더 높게 설계되어 있어 3, 4층의 거주 공간은 이웃 지붕보다 높은 뷰를 가지고 사방으로 탁 트인 전망을 갖는다. 각 층의 바닥 판은 음영 규정과 용도, 수직 관계에 따라 독특하게 기울어져 있다. 이러한 적층 구조는 차양과 다양한 옥외 공간을 만들어낸다. 불규칙한 형태의 적층을 구조적으로 지지해주는 깊은 슬래브 볼륨은 기계 설비 공간이나 텃밭, 창고, 다락방과 같은 공간으로 사용된다. 선형을 띠는 파사드는 루버와 같은 반복적인 수직 슬랫이 있는 금속 밴드로 감싸져 있고 요구된 파사드 디자인에 걸맞게 수직 슬레이트 난간을 사용했다. 각 층마다 있는 미닫이창을 열면 4층 거실과 3층 홀 각각에서 식물들을 심어놓은 발코니로 이어지고 거실 일부가 된다. 개방 가능한 넓은 거실 공간은 내부와 외부를 연결해주며 ‘3차원 지붕’을 만들어낸다. 이와 더불어 빛, 공기, 전망, 삶과 자연의 모든 것이 원활하게 순환되고 아이들이 즐겁게 뛰어다닌다. 옥상의 발코니는 인조잔디를 깔았고 나선형으로 경사면까지 이어져 마치 하늘에 떠 있는 것 같은 놀이터이다. 부지의 제약 조건들을 세심하게 분석하고 연구하여 요새를 닮은 듯한 독특한 건물을 만들어 냈고 불규칙한 발코니와 울창한 작은 나무들이 있어 도시 속에서도 눈에 띈다.























Architects KOMPAS
Location Sendagaya, Shibuya, Tokyo, Japan
Site area 269㎡
Building area 164㎡
Gross floor area 429㎡
Building scope 4F
Building to land ratio 61%
Floor area ratio 160%
Construction period 2019. 12 - 2021. 04
Completion 2021
Principal architect Mai Komuro
Project architect Mai Komuro
Design team Hidenori Sakai
Structural engineer HSC / Yoshiyuki Hiraiwa
Mechanical engineer ZO Consulting Engineers
Electrical engineer ZO Consulting Engineers
Construction O'hara Architectural and Construction
Landscape Onshitsu / Yuichi Tsukada
Photographer Vincent Hecht
해당 프로젝트는 리빙즈, 디테일 03호에 게재되었습니다.
The project was published in LIVINGS, Detail 03
[BOOK] LIVINGS, Detail 리빙즈, 디테일 03호, 04호
<LIVINGS, Detail 리빙즈, 디테일 03호, 04호> 72개의 형태와 라이프스타일을 담은 주거공간, 국내외 “디테일한 주택 프로젝트”의 엮음 매월 국내외 다양한 건축물들을 소개해 온 <월간 건축문화>가 <
www.masilwide.com
'Architecture Project > Single Family' 카테고리의 다른 글
| CONCRETE HOUSE (0) | 2022.06.08 |
|---|---|
| INSIDE THE CLOUD (0) | 2022.06.07 |
| BONGCHEONYEONGA (0) | 2022.06.03 |
| BEGINNING YOON (0) | 2022.06.02 |
| HAHYUNGAE (0) | 2022.05.31 |
마실와이드 | 등록번호 : 서울, 아03630 | 등록일자 : 2015년 03월 11일 | 마실와이드 | 발행ㆍ편집인 : 김명규 | 청소년보호책임자 : 최지희 | 발행소 : 서울시 마포구 월드컵로8길 45-8 1층 | 발행일자 : 매일



