
The design brief was to build a setting, grounded with texture and colour imbibing a calm and minimalistic environment. At first glance the four vertically stacked triangular planes of concrete which form the front facade defines this concrete home in Indore, India. The 538.83m2 suburban home sits in a plot size of 222.96m2 The site, surrounded by a residential community with bungalows and apartments provides a comfortable location to design a modern day residence.
The raw surfaces of exposed concrete walls forming the facade have been casted with pine wood shuttering to exhibit the natural impression of the wooden grains left by the form work. It has been later Dye finished with powdered ochre to the colour of pine bark to soothe the coarseness that the exposed concrete usually imposes and provide some warmth to the material. Whilst in the interiors, the surfaces of concrete walls, and carefully picked decor change in color and contrast depending on light levels, adding depth and texture to their surroundings.
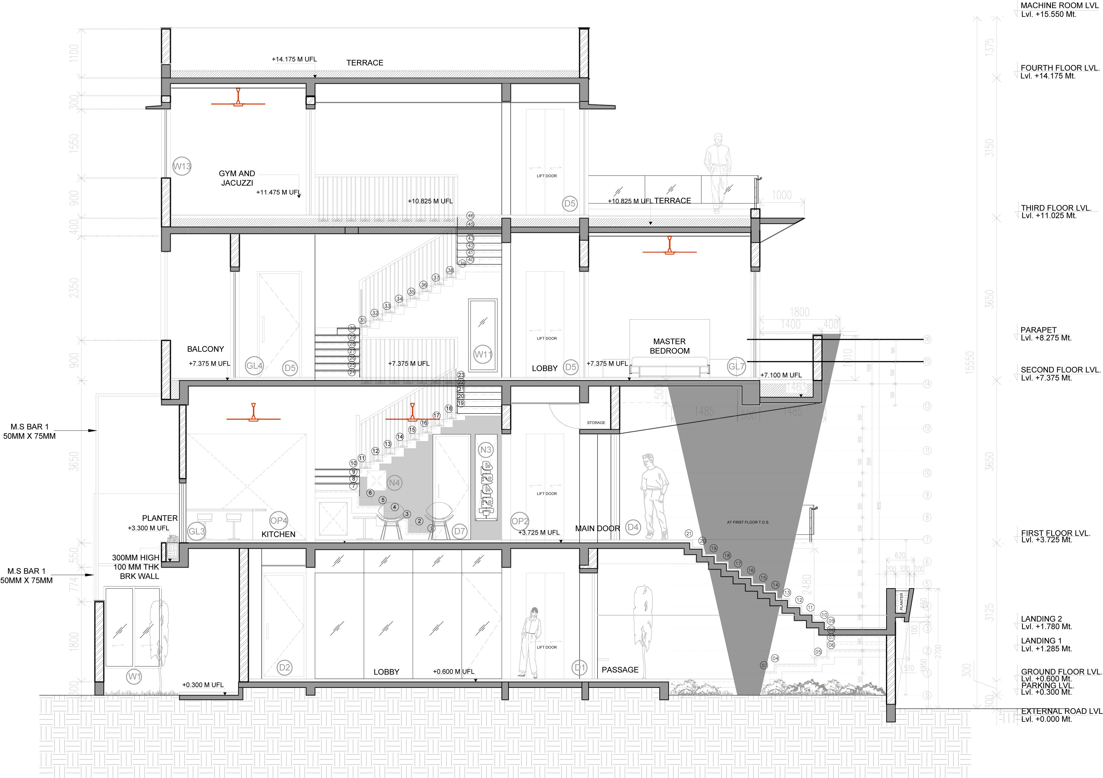
On the ground floor, these planes which are widely spaced concrete cores, create an open space for car and bicycle parking. The ground floor also houses an office space with a guest bedroom and the necessary service rooms required for maintenance. A series of long wide steps take off from the ground floor garden patches(veranda) to the residence above and detach this seemingly formal space from the abode and renders dramatic the transition from the outside world to one’s personal space,. These steps lad to a niche between the central concrete planes framing a grand opening to the home. The large geometric planes contribute to the dynamic volumes of this open space. Taking into consideration the moderately hot tropical climate of the surrounding, it was important to imbibe a self-sustaining systems of ample light and ventilation into the design. The west facing building has most of its natural air movement from the east to the west which led way to designing large open balconies juxtaposed with the triangular planes in the front. Having a water body / central courtyard has been a traditional part of architecture design in India. Hence, introducing this feature into the modern day home not only added interest, but also fulfilled a crucial need .Tall buildings on the adjacent side of the plot did not provide much room to have wide openings on the north and south sides of the home, but to maintain a well-lit ventilated house, the courtyard concept has been re-imagined as a very linear water body at the first floor along a large cladded wall with green vertical patches extending to the second floor and seen below from the bedrooms above. The large enclosed space zoned along this water body is actually the heart of the home with the informal living the dining and the kitchen all functioning in cohesion. Tiles with geometric patterns, selected with respect to the colour theme of the building form a tessellation on the floor adding yet another layer of ethnicity to the design. The second floor comprises of the bedroom spaces. The master bedroom located in the front is set back with a large balcony running along its 3 sides giving a panoramic view of the cityscape. The meticulously detailed custom-made furniture with monochrome fixtures and fittings, provide the residents to mould the space to display their personalities with time. The third floor houses the Gym that extends out to a semi-open garden and a terrace. The garden itself creates a charming atmosphere with circular planters suspended from the structure above. The green patches along with a hot water-tub create a surreal environment for relaxation and gatherings. The open terrace extension holds a small patio to enjoy the wide view of the city.

콘크리트 하우스는 차분하고 깔끔한 질감과 색상을 기반으로 한 인도 인도르의 단독주택이다. 수직으로 쌓여진 삼각형 평면은 방갈로와 아파트 같은 공동주거 시설들이 즐비한 이 지역의 일대에서 현대식 새로운 주거 공간을 보여준다. 입면에 사용된 노출 콘크리트는 송판무늬를 가지고 있어 자연스러운 느낌을 준다. 뿐만 아니라, 소나무 껍질에 들어있는 황토 색의 분말이 사용되어 노출 콘크리트가 원래 가지고 있던 날것의 느낌을 완화하고 약간의 온기를 준다. 내부에서도 동일한 콘크리트가 사용되었고 벽면과 세심하게 장식된 등에 따라 색과 대비가 달라져 깊이 있는 주거 공간을 만든다. 1층은 자동차와 자전거 주차를 위한 개방 공간이며, 사무실 공간과 주택의 유지를 위해 필요한 서비스 실들이 있다. 길고 넓은 계단들은 2층의 정원 베란다, 그 위의 주거 공간들까지 이어진다. 빛이 스며드는 콘크리트 사이 계단은 주택으로 향하는 거대한 현관이다. 평면은 인도의 더운 열대 기후를 고려하여 충분한 빛과 환기에 유리하도록 설계되어 있고, 집의 대부분이 서쪽을 향하고 있어 기류에 따라 동쪽에서 서쪽으로 공기가 이동한다. 이러한 공기의 흐름은 방들과 개방된 대형 발코니에 의한 것이기도 하다. 또한, 콘크리트 하우스에서 보이는 중앙 중정(뜰)의 공간은 인도의 주거 시설에서 보이는 큰 특징 중 하나인데, 콘크리트 하우스에는 대지 측면의 인접한 높은 건축물들로 인해 집의 북쪽과 남쪽 면에 넓은 창문은 없지만 채광이 잘 들고 통풍이 되는 집의 환경을 유지할 수 있도록 식물들이 심어진 안뜰이 3층까지 거대한 벽을 따라 이어진다. 3층은 침실 공간들로 구성된다. 정면에 위치한 안방은 3면을 따라 이어지는 커다란 발코니가 있어 도시 경관을 한눈에 볼 수 있다. 단색의 고정 및 반고정 세간들로 이뤄진 꼼꼼한 디테일을 갖춘 맞춤 가구들은 거주자들의 취향과 개성을 드러낸다. 4층에는 피트니스 공간이 있는데, 반개방형 정원과 테라스로 확장되어 있다. 식물들이 매달려 있어 정원 자체로 매력적인 분위기를 자아낸다. 욕조와 함께 식물들은 이 집에서 가장 초현실적인 환경을 만들어내며, 휴식을 위한 최적의 장소를 만든다. 탁 트인 확장 테라스에서는 도시의 넓은 전망을 즐길 수 있다.






















Architects Span Architects
Location Indore, India
Site area 222.96㎡
Gross floor area 538.83㎡
Completion 2020
Design team Prerna Jain, Anika Saklecha, Manvendra Shukla, Aditya Chintawar
Engineer Nilesh Sharma
Photographer Ruuhchitra, Viplove Jain
해당 프로젝트는 리빙즈, 디테일 03호에 게재되었습니다.
The project was published in LIVINGS, Detail 03
[BOOK] LIVINGS, Detail 리빙즈, 디테일 03호, 04호
<LIVINGS, Detail 리빙즈, 디테일 03호, 04호> 72개의 형태와 라이프스타일을 담은 주거공간, 국내외 “디테일한 주택 프로젝트”의 엮음 매월 국내외 다양한 건축물들을 소개해 온 <월간 건축문화>가 <
www.masilwide.com
'Architecture Project > Single Family' 카테고리의 다른 글
| SAME & DIFFERENT (0) | 2022.06.13 |
|---|---|
| YAH (Yen-A-Kart House) (0) | 2022.06.13 |
| INSIDE THE CLOUD (0) | 2022.06.07 |
| IBIS SENDAGAYA (0) | 2022.06.07 |
| BONGCHEONYEONGA (0) | 2022.06.03 |
마실와이드 | 등록번호 : 서울, 아03630 | 등록일자 : 2015년 03월 11일 | 마실와이드 | 발행ㆍ편집인 : 김명규 | 청소년보호책임자 : 최지희 | 발행소 : 서울시 마포구 월드컵로8길 45-8 1층 | 발행일자 : 매일



