
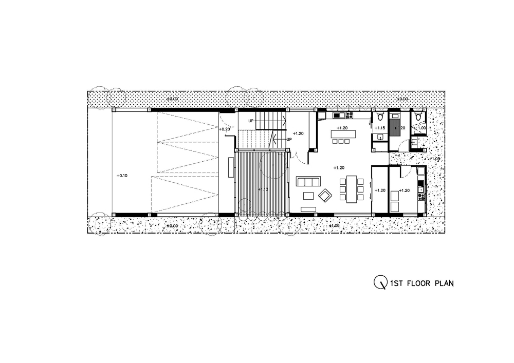
ASWA designed a split-level house divided by its staircase in the middle of the house to create a central courtyard for privacy between spaces and another smaller court in the front of the house to offer every room a court view.
Yen-A-Kart house with 600 square meters is located in the well-known residential area, Yen-A-Kart, Bangkok, Thailand. The site is narrow with around 11.50 x 29.50 square meters, used to be the house's garden on the right-hand side, and is surrounded by a residential area. The site's context gives a question of how to design a narrow home with good ventilation and with an airy view for the users.
The idea of a split- level house is to separate each function by the central circulation, such as the staircase, and allow all users to have a comfortable view even in the narrow width house with natural light and ventilation while still having privacy in every room. The staircase divided the functions into the front and back parts of the house.
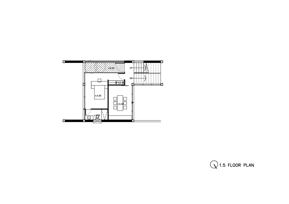
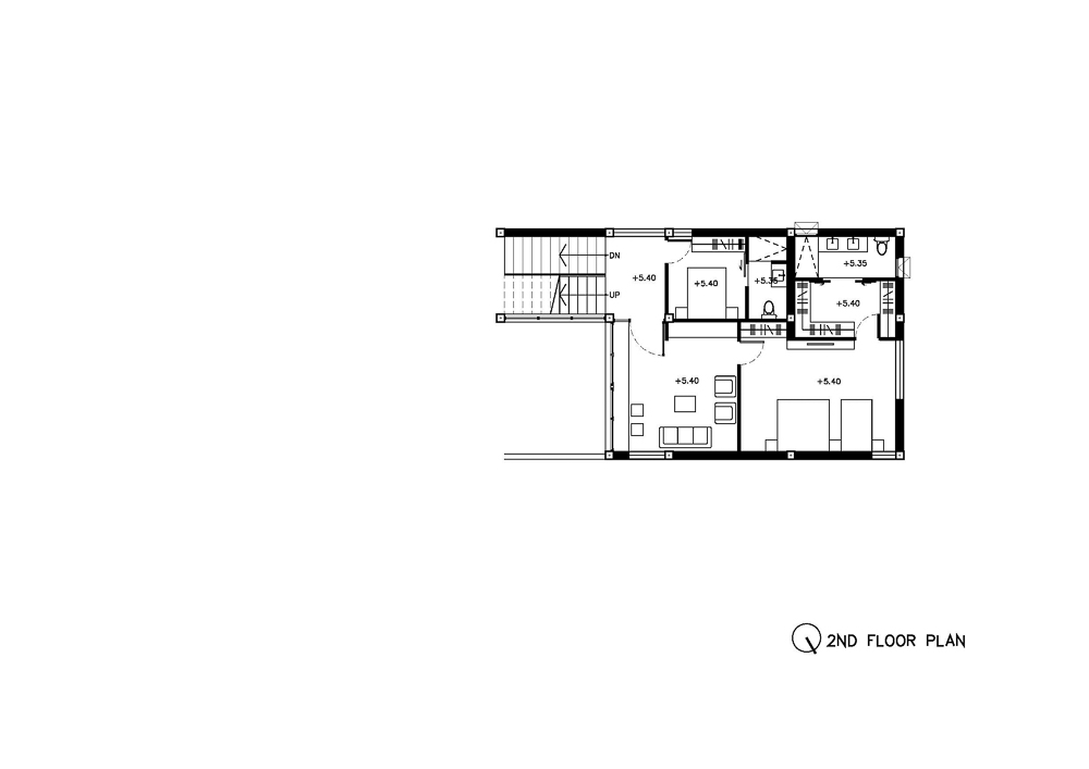
The exterior of this three-leveled house has a recessed stepped facade with the building frame and the vertical void, which allows the natural light to play a leading role in casting the shadow from the opening skylight. At the same time, the recessed facade can provide shading for the floor below. The ground level starts with six parking lots, partitioned for the living area's privacy by a raised courtyard of 4 x 5 square meters with a green boundary to separate the privacy of the living area from the street level. At the same time, the half flight of a staircase divides functions from the front and back of a building. The main entrance leads to a central living area in the back part of the house, which is elevated between parking lots and the study room on its opposite side - the front, the space between two sides located in a central courtyard which provides privacy for each function. While this split level concept is applied to the whole building on level 2 for the study room, guest bedroom, level 2.5 for the master bedroom, level 3 for two bedrooms, level 3.5 for the exercise area, and the stair leads to a rooftop garden. The smaller vertical void with the green space on levels 2 and 3 in the front part fulfills the natural light and ventilation for the guest bedroom on level 2 and the bedroom on level 3, which do not connect with the central court.
The exterior design tends to be a simple mass cut out of voids with a textured gray wall selected as the primary material to express a monotone look for the outer atmosphere to reflect an atmosphere by casting a shadow of the landscape on the wall.

에이에스더블유에이는 칸막이로 분할된 집을 설계하여 공간 사이의 프라이버시를 위한 중앙 뜰과 집 앞에 있는 또 다른 작은 정원을 만들어 모든 방에 정원 뷰를 제공한다.
태국 방콕의 유명 주택가인 엔아카트에는 600㎡ 규모의 엔-아-카트 하우스가 자리 잡고 있다. 대지는 11.50 x 29.50㎡로 좁고, 주택가에 둘러싸여 있다. 이 대지의 맥락은 좁고 긴 집에서 어떻게 사용자에게 통풍이 잘 되도록 설계할 것인가에 대한 질문을 제공한다.
스플릿 레벨(부분별로 높이가 다르게 되어 있는) 하우스의 아이디어는 계단과 같은 중앙 순환 동선에 의해 각 기능을 분리하고, 모든 방에서 프라이버시를 유지하면서 자연 채광과 환기가 있는 좁은 너비의 집에서도 모든 사용자가 편안한 시야를 가질 수 있도록 하는 방법이다. 계단은 기능을 집의 앞부분과 뒷부분으로 나누는 역할을 한다.
이 3층 주택의 외관은 건물 프레임과 수직 공간이 있는 오목한 계단식 파사드를 가지고 있어 자연광이 개구부 천창에서 그림자를 드리우는 주도적인 역할을 할 수 있다. 동시에, 움푹 들어간 정면은 아래 바닥에 음영을 제공한다. 1층은 6개의 주차장으로 시작하며, 거실 공간의 프라이버시를 위해 4 x 5㎡ 높이의 안뜰로 구분되며, 녹지 경계가 있어 거실 공간과 거리의 레벨을 분리한다. 동시에 계단의 반쪽이 건물의 전면과 후면의 기능을 나눈다. 주 출입구는 주택 뒤편의 중앙 거실로 이어지며 반대편의 주차장과 서재 사이에 위치한다. 전면, 양쪽 사이 공간은 중앙 안뜰에 위치하여 각각의 프라이버시를 제공한다. 스플릿 레벨 개념은 건물 전체에 적용되는데 서재와 게스트 침실이 2층에 있고, 마스터 침실의 경우 2.5층에, 두개의 다른 침실은 3층에, 그리고 운동실은 3.5층에 위치하며 여기에서 옥상정원으로 이어지는 계단이 있다. 정면에 있는 2층과 3층의 녹지 공간의 작은 수직 보이드는 중앙 안뜰과 연결되지 않은 2층의 게스트 침실과 3층의 침실을 위한 자연 채광과 환기를 충족시킨다.
외관 디자인은 질감이 있는 회색 벽이 주 재료로 선택되어 공극을 단순하게 오려낸 형태로 벽에 풍경 그림자를 드리워, 외부 분위기를 반영해 모노톤으로 표현되었다.
























Architects ASWA
Location Bangkok, Thailand
Program Residential
Site area 340㎡
Building area 230㎡
Gross floor area 600㎡
Building to land ratio 25%
Grooss Floor area ratio 175%
Project architect Phuttipan Aswakool
Design team Phuttipan Aswakool, Chotiros Techamongklapiwat, Jedsada Baiya
Structure Concrete
Exterior Finish Plaster, Textured Color
Interior Finish Plaster
Photographer Phuttipan Aswakool
ASWA
www.aswarchitect.com
'Architecture Project > Single Family' 카테고리의 다른 글
| HADOHILLJO TOWNHOUSE (0) | 2022.06.20 |
|---|---|
| SAME & DIFFERENT (0) | 2022.06.13 |
| CONCRETE HOUSE (0) | 2022.06.08 |
| INSIDE THE CLOUD (0) | 2022.06.07 |
| IBIS SENDAGAYA (0) | 2022.06.07 |
마실와이드 | 등록번호 : 서울, 아03630 | 등록일자 : 2015년 03월 11일 | 마실와이드 | 발행ㆍ편집인 : 김명규 | 청소년보호책임자 : 최지희 | 발행소 : 서울시 마포구 월드컵로8길 45-8 1층 | 발행일자 : 매일



