
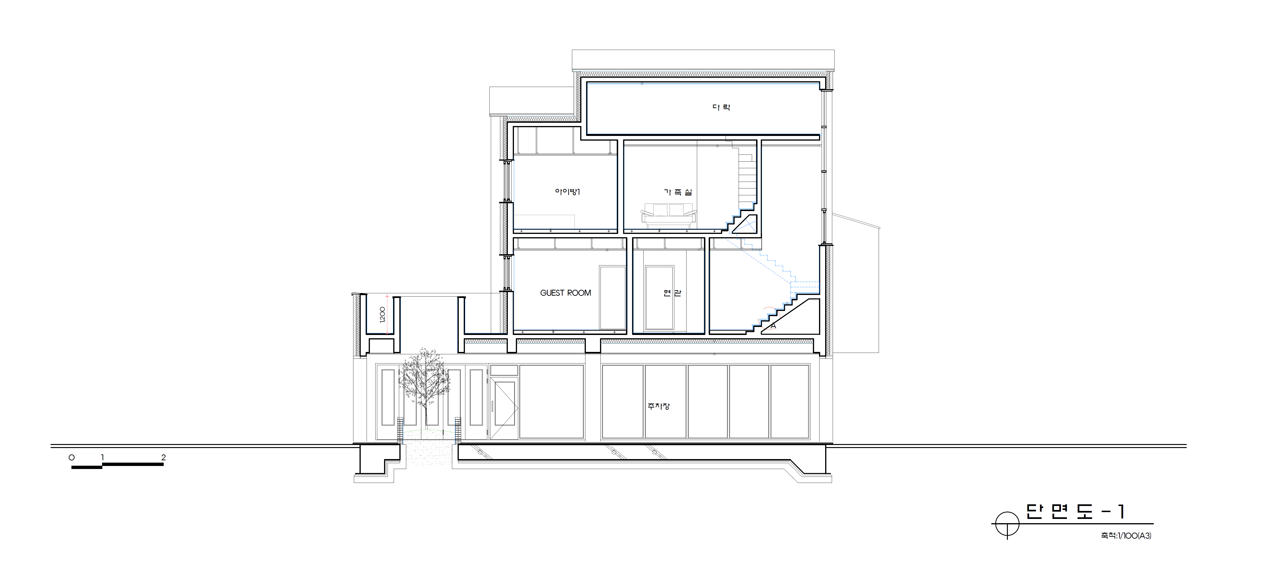
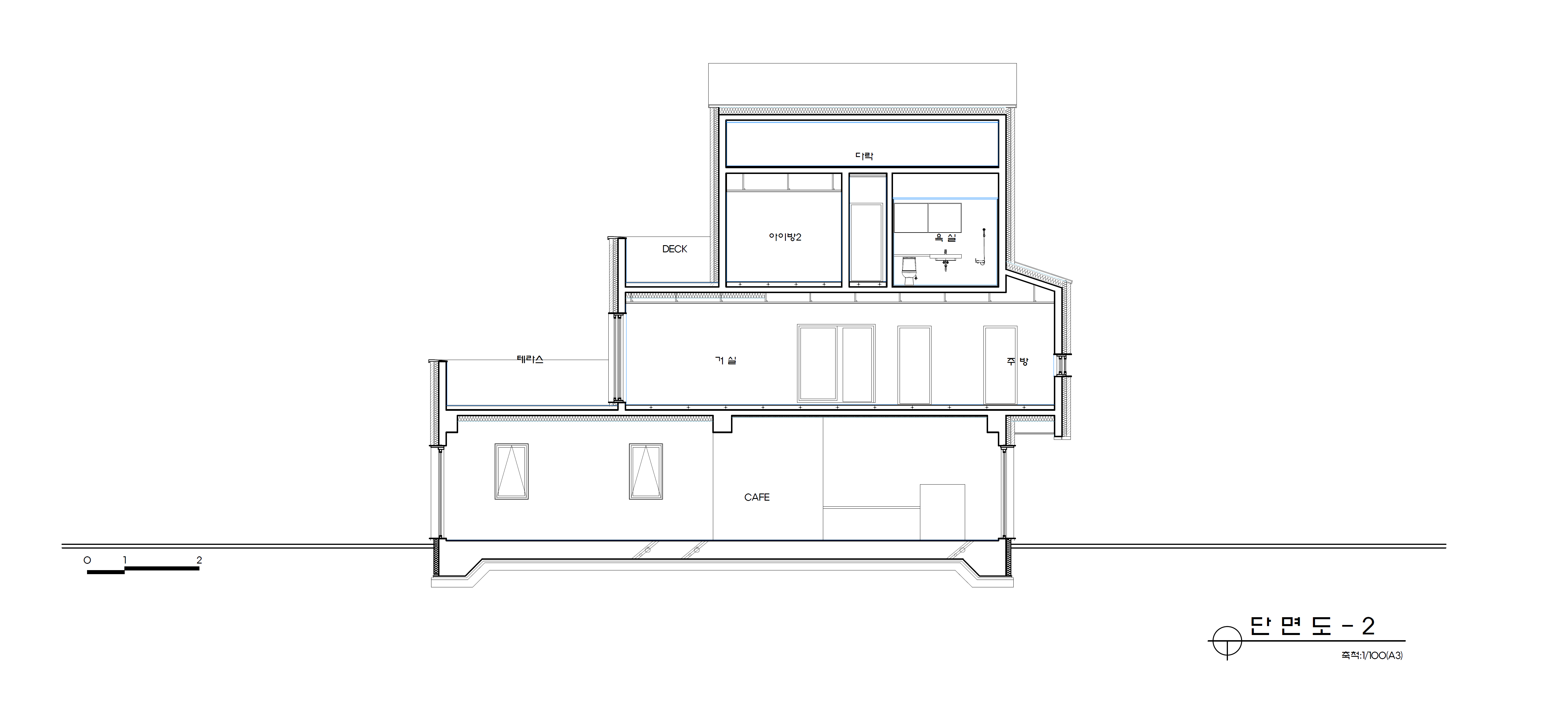
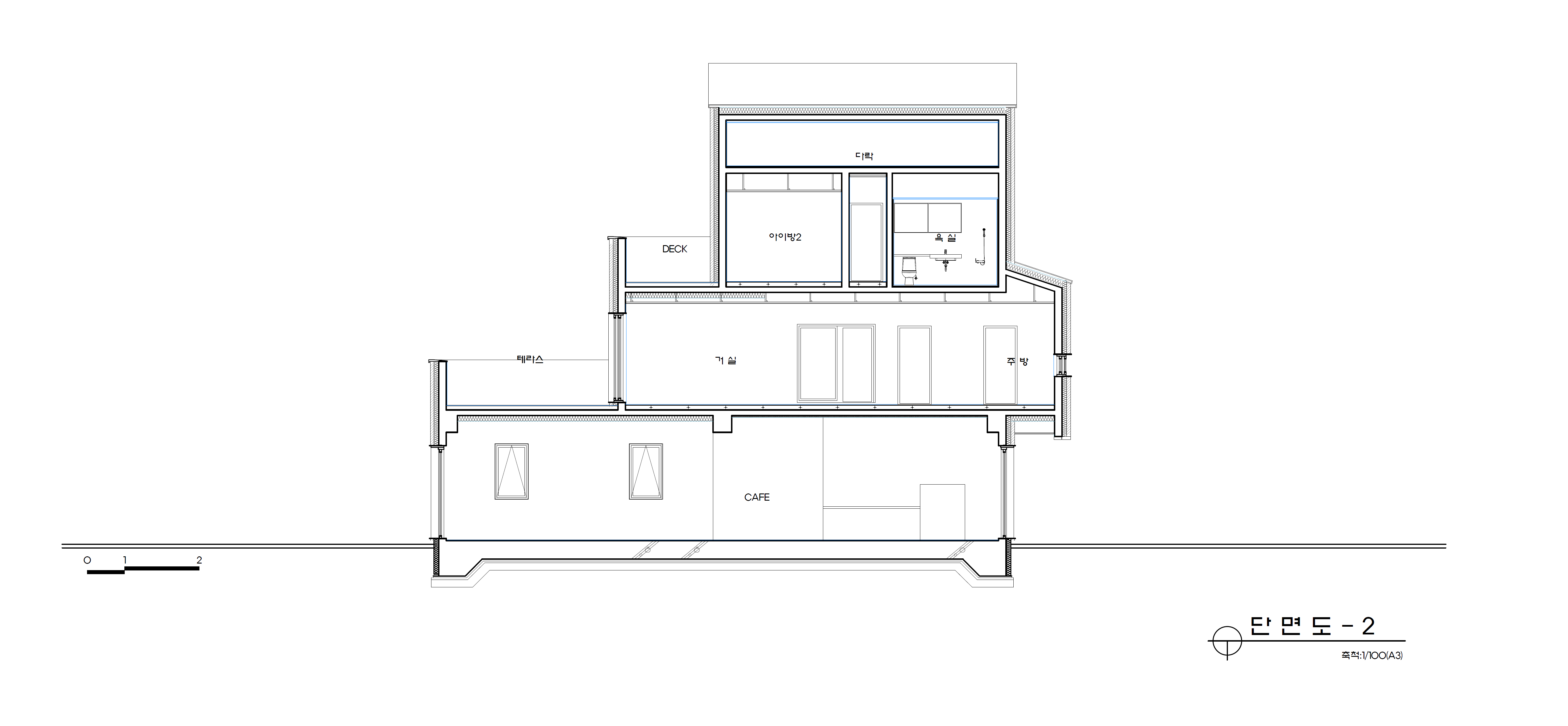
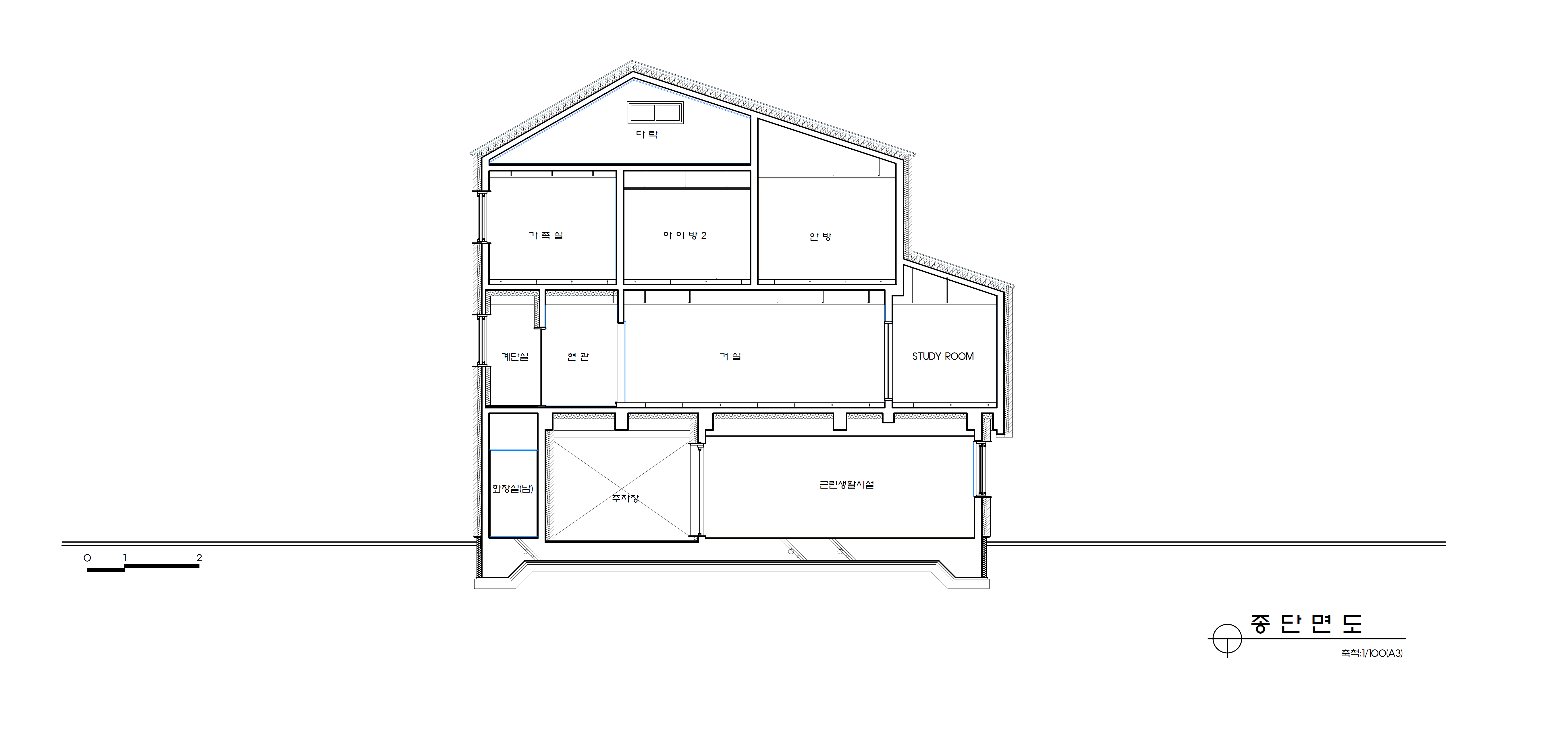
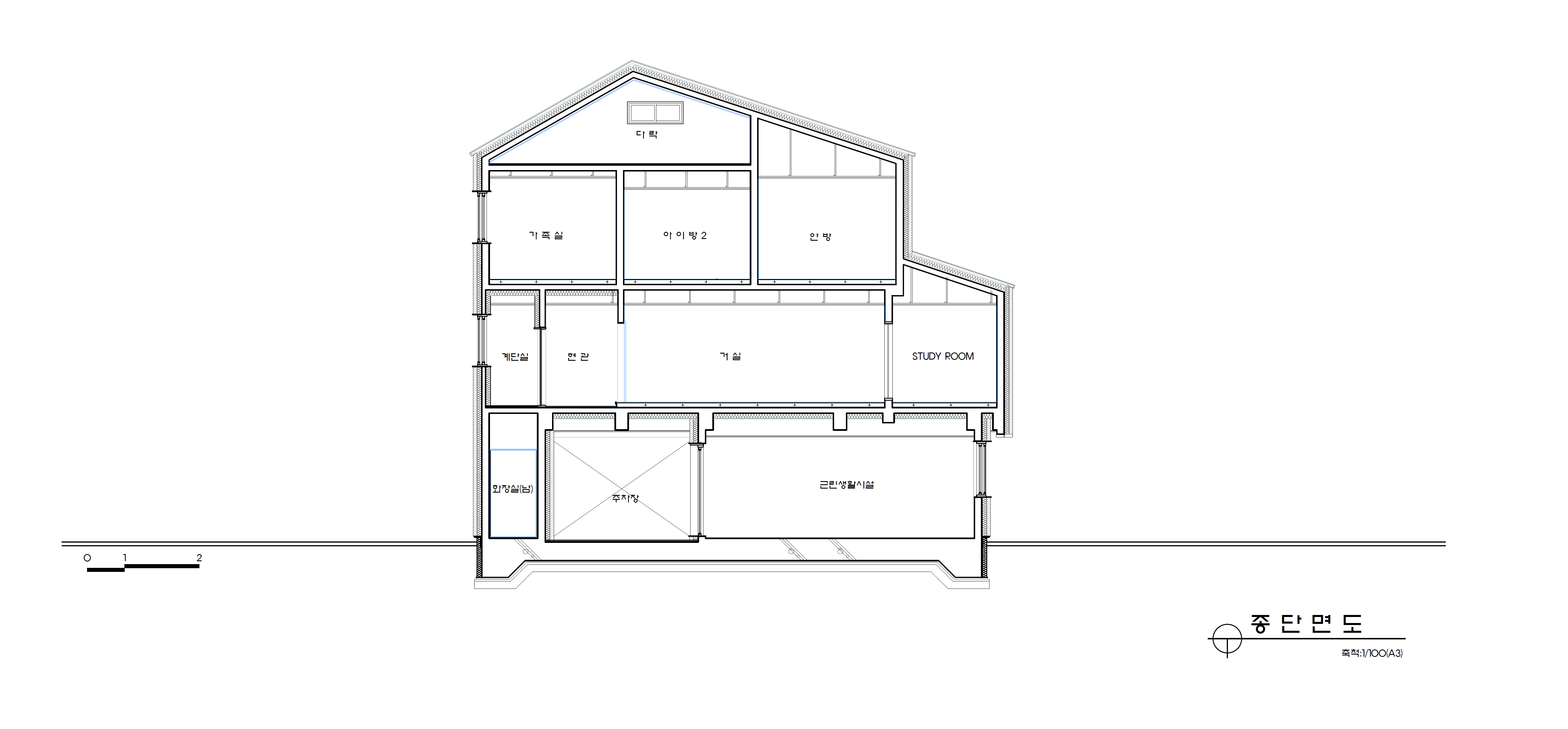
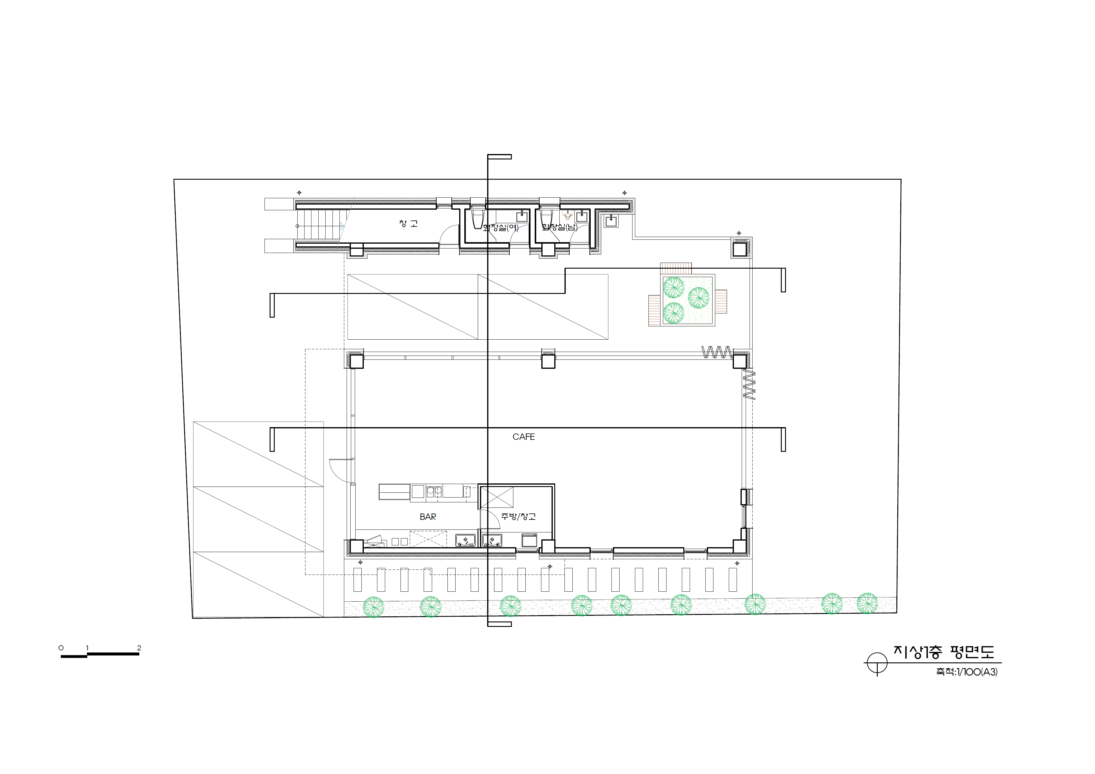
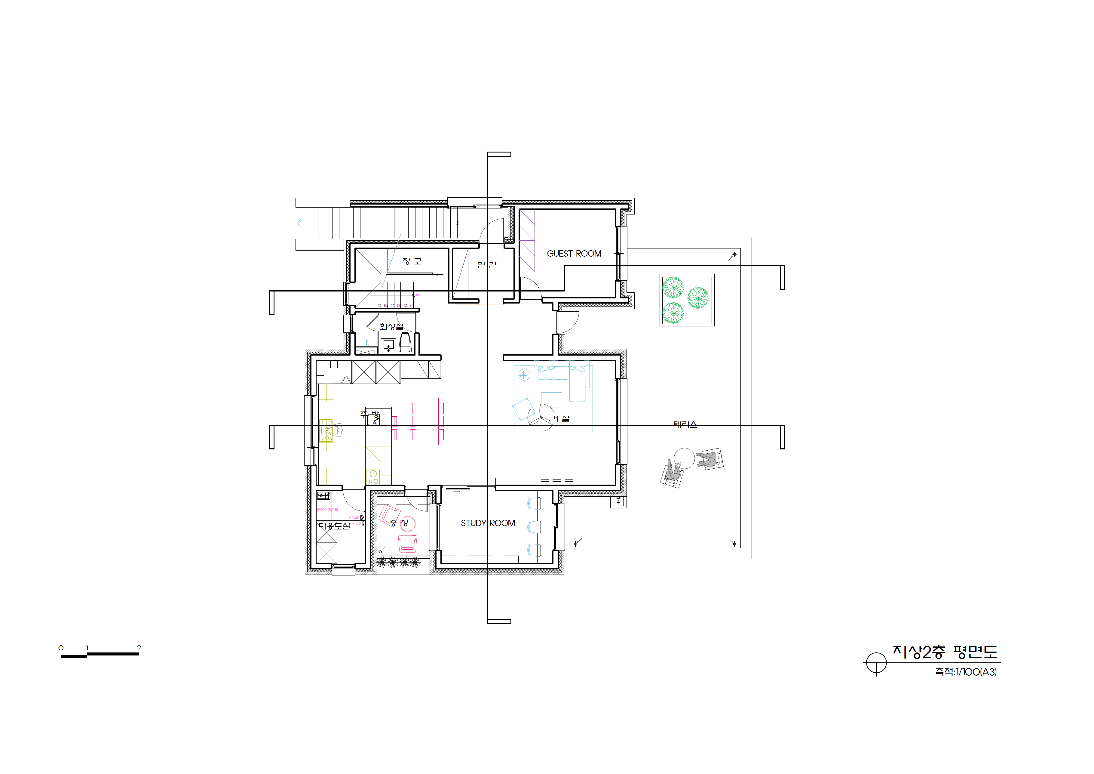
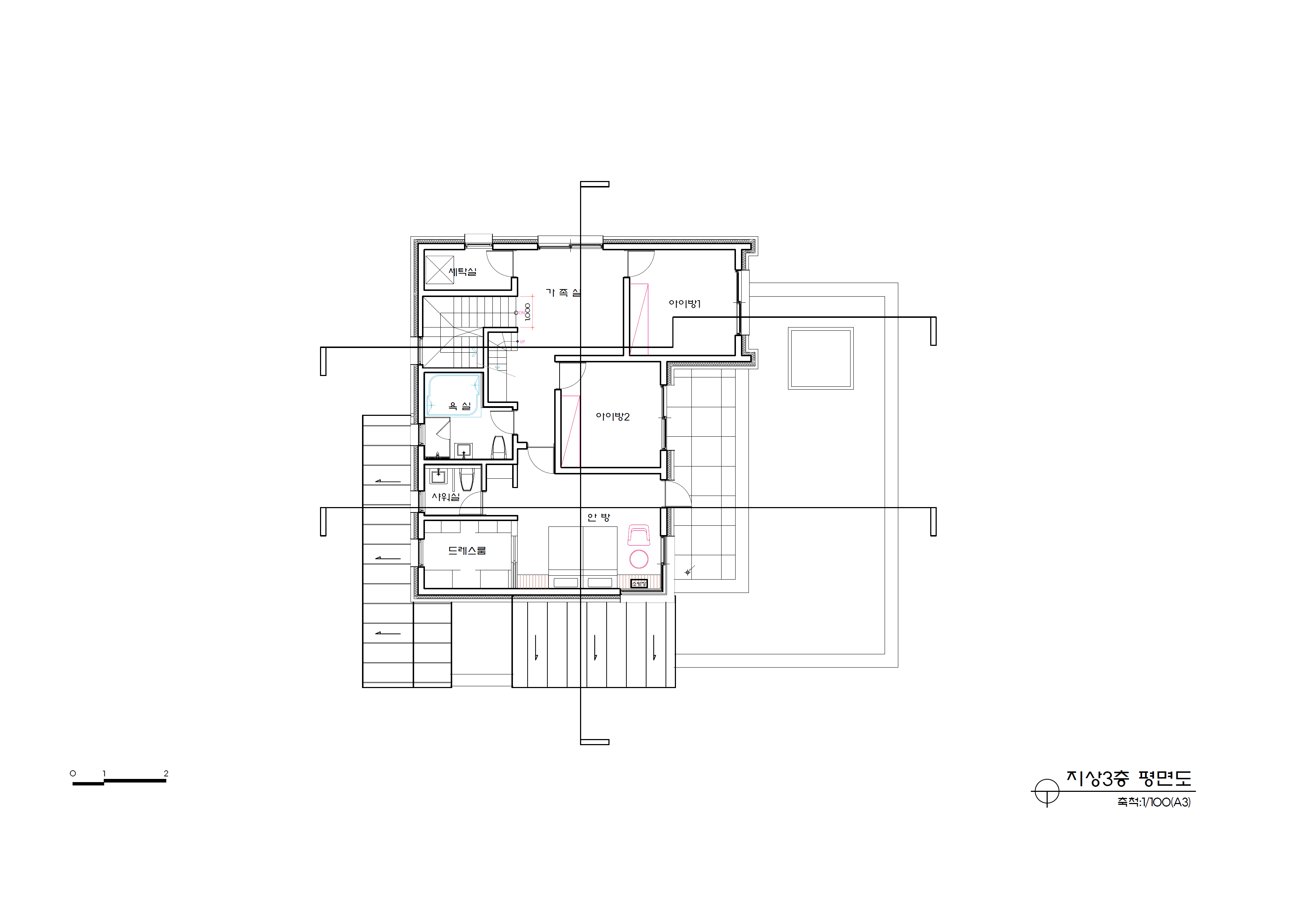
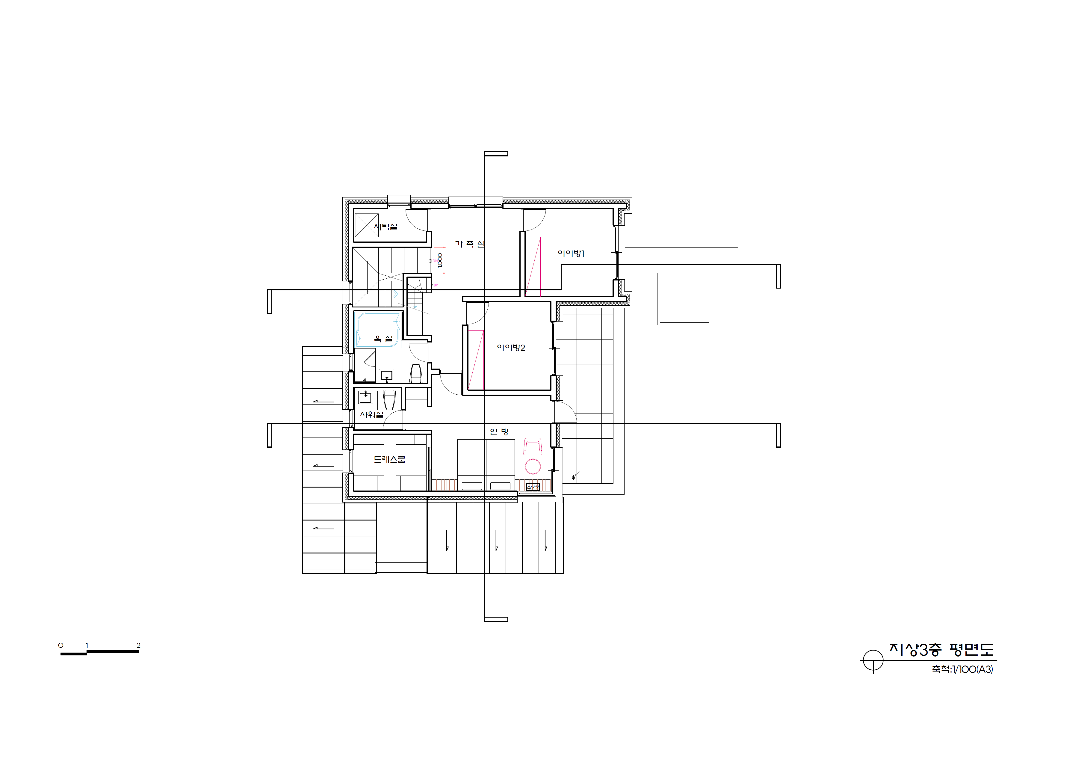
Hahyunjae is a space where work and residence coexist through the creation of a new home in a quiet place overlooking a small lake, away from the city center, for a family who loves succulents. The parking area for the cafe on the first floor had to be abundant, and they also wanted a usable yard and an external section that could be used with the upper residential part for a family. Hahyunjae was thoroughly planned with an emphasis on efficient use of the internal space rather than the external form. Storage and the cafe restroom were placed under the main stairs leading up to the residential area, and the piloti space, which was emptied between the stairs and the cafe, was planned as a parking lot and a landscaped expanse. On the second floor, there is a living room, kitchen, a study room for the children, bedroom, etc. A tree planted on the first floor are growing in an open space up through the second floor. The front of 11-shaped kitchen has a small courtyard terrace where they can go outside and have tea. The third floor contains spaces for each family member. There is a master bedroom for the couple, a children's room, and a small family room that has a small staircase leading up to the attic. This staircase is designed to take up minimum space. The attic has become a space for the children and father to play and rest. The window of the stairwell, which starts on the second floor, was lengthened and extends to the attic. Sitting on the attic floor and looking at the sunset sky reflected in the lake becomes a wonderful picture to relieve the fatigue of the day. By arranging the spaces for the movement and needs of the family in this way, it was possible to naturally create a rich sense of volume on the outside of the house, and each of the four sides of Hahyunjae viewed from the outside could be approached with a different feeling. Looking at the small lake in the village where the sunset is beautiful, the architect hope that this house will be a space full of new memories and pleasant stories for the whole family.

하현재는 도심을 떠나 작은 호수가 보이는 고즈넉한 곳에 새로운 터전을 마련한 한 가족의 일상과 일이 공존하는 주택이다. 부부는 대지를 최대한 효율적으로 활용하기를 원했다. 1층의 카페를 위한 주차 공간도 풍부해야 했고, 활용할 수 있는 마당과 상부 주거 공간에 다양한 테라스도 있어야 했다. 하현재는 내부의 공간들을 효율적으로 활용하는 데 중점을 둔다. 주거공간으로 올라가는 주 계단 하부에 창고와 카페 화장실 등이 있으며, 계단 공간과 카페 사이를 비운 필로티 공간은 주차장 겸 조경 공간으로 쓰인다. 조경 공간에는 상부 2층 테라스 바닥이 오픈되어 1층에서 심은 나무가 2층 테라스를 지나 계속 자라난다. 2층은 손님을 위한 게스트룸과 가족이 공용으로 사용하는 거실이나 주방, 아이들과 부부를 위한 서재 같은 공간이 있으며 2층에서도 마당처럼 누릴 수 있는 넓은 테라스가 있다. 테라스에서는 1층에서 심어진 나무를 감상할 수 있다. 또한, 11자형 주방은 건축주의 동선을 최적화하며, 주방 앞 식사 공간에서 외부로 나가 차를 마시며 쉴 수 있는 작은 중정형 테라스도 있다. 3층은 가족 구성원 각자의 공간이다. 부부를 위한 안방과 아이들방이 있고 작은 가족실에는 다락으로 올라가는 작은 계단이 있다. 다락은 아이들과 아빠의 놀이 공간이자 쉼의 공간이다. 2층에서 시작된 계단실의 창을 다락까지 길게 연결되어 다락 바닥에 앉아서 바라보는 호수에 비친 노을진 하늘은 하루의 피로를 풀어주는 멋진 그림이 된다. 하현재는 노을이 아름다운 마을에작은 호수를 바라보며 온 가족이 새로운 추억과 즐거운 이야기를 채워나갈 집이다.






















Architects Inwoo architects
Location Damyang-eup, Damyang-gun, Jeollanam-do, Republic of Korea
Site area 459.80m2
Buiding area 207.48m2
Gross floor area 383.76m2
Building scope 3F
Building to land ratio 45.12%
Floor area ratio 69.01%
Construction period 2020. 08 - 2021. 07
Completion 2021.07
Project architect Daeyeong Kim
Structural engineer MIDAS
Construction ESAN construction
Photographer Sunghee Kim
해당 프로젝트는 리빙즈, 디테일 03호에 게재되었습니다.
The project was published in LIVINGS, Detail 03
[BOOK] LIVINGS, Detail 리빙즈, 디테일 03호, 04호
<LIVINGS, Detail 리빙즈, 디테일 03호, 04호> 72개의 형태와 라이프스타일을 담은 주거공간, 국내외 “디테일한 주택 프로젝트”의 엮음 매월 국내외 다양한 건축물들을 소개해 온 <월간 건축문화>가 <
www.masilwide.com
'Architecture Project > Single Family' 카테고리의 다른 글
| BONGCHEONYEONGA (0) | 2022.06.03 |
|---|---|
| BEGINNING YOON (0) | 2022.06.02 |
| SIMON HOUSE (0) | 2022.05.30 |
| JAEHO HOUSE (0) | 2022.05.27 |
| VILLA LP (0) | 2022.05.27 |
마실와이드 | 등록번호 : 서울, 아03630 | 등록일자 : 2015년 03월 11일 | 마실와이드 | 발행ㆍ편집인 : 김명규 | 청소년보호책임자 : 최지희 | 발행소 : 서울시 마포구 월드컵로8길 45-8 1층 | 발행일자 : 매일



