
The Hermine is built in Gentilly on the outskirts of Paris. The project prioritizes pedestrian use and sustainable transportations (Bikes, seaways, pedestrians, etc…) linked with the nearby pedestrian walkway that goes through the city.
Both buildings are generously opened toward the collective garden through loggias, terraces and decks. All the facades have the same designing concept excluding any less qualitative “Rear Facade”. The rounded corners offer great fluidity between the four facades, in the end we can say that this building has only one long unrolled facade.
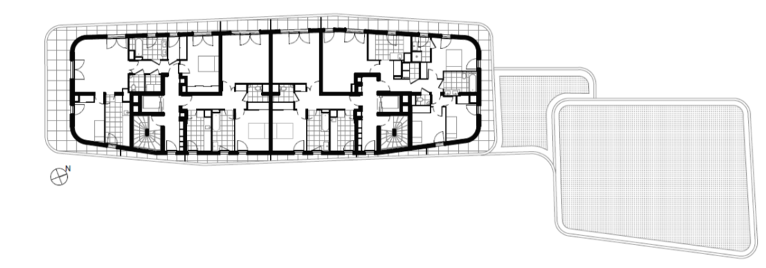
The project is composed of 46 apartments ranging from 2 rooms to 5 rooms apartments. For every apartment size several different organizations are proposed to meet the need of every Family. Several 4 room apartments have a bedroom that has its own bathroom and that are directly accessible from the apartment entrance, enabling parent(s) or a teenager or even guest to have an autonomy. The kitchens can either be separated from the living rooms or already are, and have their own access from the entrance, the idea is the be able to use the living room as a bedroom if you are for example a single parents living with a child in a two rooms apartment.
100% of the apartments are double oriented, often with opposing orientations. All apartments have a generous exterior space, either a loggia, a deck or a terrace. The living rooms are predominantly positioned in the angles of the building, benefiting of two views, two orientations and an excellent sunning. The floor landings are conceived as comfortable meeting spaces, every single one of them has natural lightning and a sight on the building’s garden. The staircases are also lit naturally, making their use more comfortable for the first floors inhabitants.

헤르미네(Hermine)는 파리 외곽의 젠틸리(Gentilly)에 지어진 공동주거용 주택으로 보행자나 도시를 통과하는 인근 보행자의 통로들과 연결되어 지속가능한 환경을 만드는 교통수단(자전거, 해로, 보행자 등)을 이용하여 접근 가능한 곳이기도 하다.
두 개의 건물은 모두 발코니와 테라스, 데크가 공용정원을 향해 열려있다. 모든 파사드는 질적으로 조금 떨어지는 “후면 파사드”를 제외하고 동일한 설계 콘셉트를 가지고 있다. 둥근 모서리는 네 개의 파사드 사이에 큰 유동성을 제공한다. 결국 이 건물에는 길게 펼쳐진 하나의 파사드가 있다고 말할 수 있다. 이 프로젝트는 방 2개 유닛부터 방 5개 유닛의 46세대로 구성되어 있다. 전 세대의 크기는 모든 가족의 요구를 충족시키기 위해 여러가지 다른 구조로 되어 있다. 자체 욕실이 있는 침실도 배치되어 있는 방이 4개 있는 주거세대는 이 아파트 건물 입구에서 바로 접근할 수 있어 부모나 청소년 또는 손님이 자율적으로 이용할 수 있다. 주방은 거실과 분리되어 있거나 분리가 안되어 있을 수 있으며 입구에서 자체적으로 접근할 수 있다. 예를 들어, 방이 두 개인 세대에서 아이와 함께 사는 편부모라면 거실을 침실로 사용할 수도 있다.
아파트의 전 세대는 두 방향을 조망하며 종종 서로 반대되는 방향을 바라본다. 모든 아파트에는 발코니, 데크, 테라스와 같이 넓은 외부 공간이 있다. 거실은 주로 건물의 각도에 위치하여 두 곳의 전망, 방향 및 뛰어난 일광욕의 이점을 누릴 수 있다. 바닥 계단참은 편안한 회의 공간으로 쓰이며, 모든 공간에는 자연광이 들어오며 건물 정원이 보인다. 계단에도 자연스럽게 빛이 들어와 1층 주민들이 보다 편안하게 사용할 수 있다.


















Architects tectone architectes urbanistes
Location Gentilly, Paris, France
Site area 2,030㎡
Building area 564㎡
Gross floor area 4,010.0㎡
Building scope B1, 7F
Construction period 2016. 06 - 2019. 01
Completion 2019
Principal architect Etienne Chevreul-Demas, Pascal Chombart de Lauwe
Project architect Laurence Asmar, Jennifer Dot
Design team Laurence Asmar, Jennifer Dot
General engineer EPDC
Construction VFB, Euromib, ETF, Sofra IDF, Privillège Vert
Photographers Pierre LExcellent, Christophe Demonfaucon
해당 프로젝트는 리빙즈, 디테일 02호에 게재되었습니다.
The project was published in LIVINGS, Detail 02
[BOOK] LIVINGS, Detail 리빙즈, 디테일 01호, 02호
단행본 발행 67개의 형태와 라이프스타일을 담은 주거공간, 국내외 "디테일한 주택 프로젝트"의 엮음
www.masilwide.com
'Architecture Project > Multifamily' 카테고리의 다른 글
| ZELLIGE (0) | 2022.03.04 |
|---|---|
| The Village (0) | 2022.03.03 |
| Viale Giulini Affordable Housing (0) | 2022.02.28 |
| Bottière Chénaie (0) | 2022.02.25 |
| Essenza (0) | 2022.02.24 |
마실와이드 | 등록번호 : 서울, 아03630 | 등록일자 : 2015년 03월 11일 | 마실와이드 | 발행ㆍ편집인 : 김명규 | 청소년보호책임자 : 최지희 | 발행소 : 서울시 마포구 월드컵로8길 45-8 1층 | 발행일자 : 매일



