
The renovation project is located in a well-known urban village at the Siyou Second Road in Yuexiu District, Guangzhou. The residential buildings in the urban village are basically the matchbox type corridor houses built in the last century. As the front connecting the city with the urban village, how the transformed facade increases the degree of integration to link with the city and maintain cohesion with the community is one of the key demands for the facade reconstruction. We studied the punching method and proportion of the aluminum plate on the facade. Then we chose the wavy punching aluminum plate to wrap the facade extending from the two ends of the atrium to the exterior, trying to ‘reduce the weight’ of the entire building through the semi-transparent covering layer and lighting setting. The ‘dialogue’ with the original buildings in the urban village behind highlighted the contrast between the new and old languages, and the symbiosis with the surrounding buildings of big and small sizes emphasized the sense of ‘collage’ of the texture level of the city facade.

더 빌리지는 광저우 웨슈구 시유 2번가에 20세기에 지어진 성냥갑 형태의 공용 안마당(회랑)이 있는 주거용 건물의 리노베이션 프로젝트다. 더 빌리지는 빛이 투과되는 듯한 새로운 파사드를 통해 지역 사회가 응집될 수 있는 분위기로 도시 풍경 속에 연결되며 녹아든다. 이 전면의 촘촘한 알루미늄 판은 개구부 비율과 형태에 대한 건축가의 세세한 연구를 통해, 기존의 건축물을 덮는 반투명한 커버가 되며, 조명을 통해 기존의 건축물이 가지고 있는 무거운 ‘중량’을 가볍고 밝은 이미지로 바꿨다. 안마당의 양쪽 끝에서 바깥으로 이어지며 파사드를 감싸는 알루미늄 판의 물결 형태는 이런 밝고 활기있는 분위기를 한층 더 강화한다. 더 빌리지 뒤에 있는 기존 건물과의 ‘소통’은 신구 언어의 대비를 강조하고, 크고 작은 주변 건물과의 공생은 도시로 향한 파사드의 ‘콜라주’로 표현되어 있다.
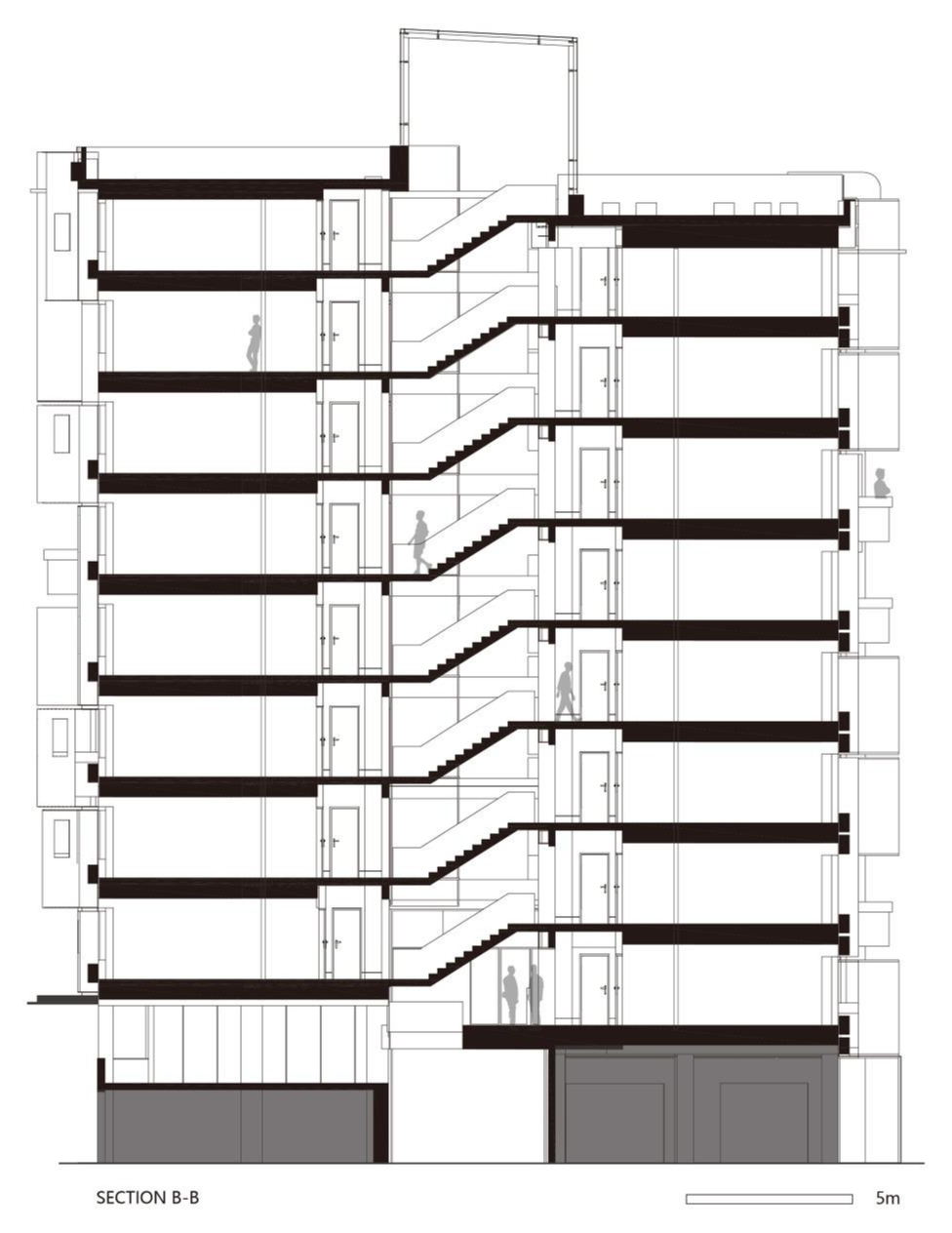
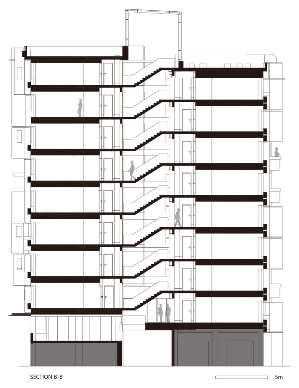
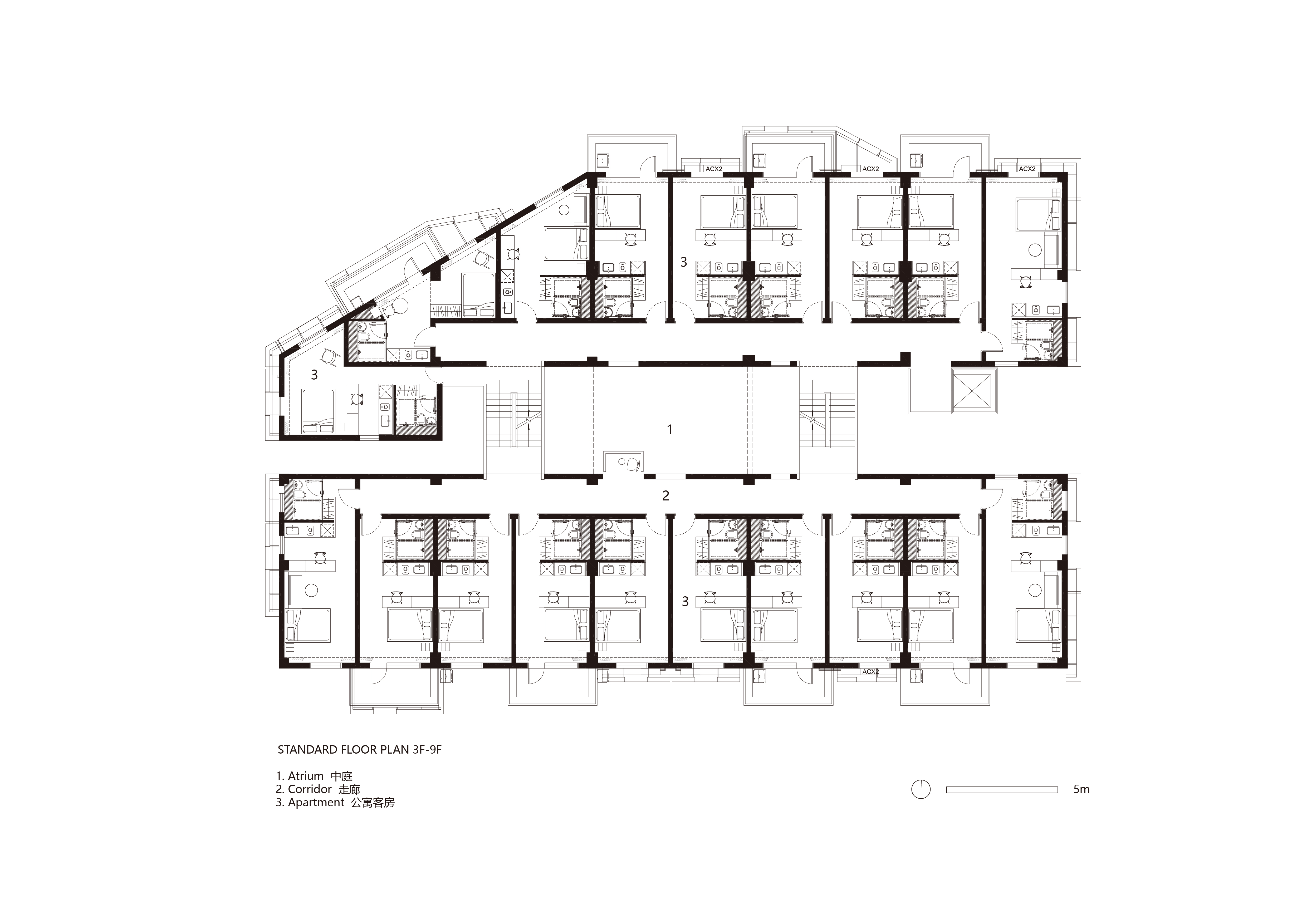
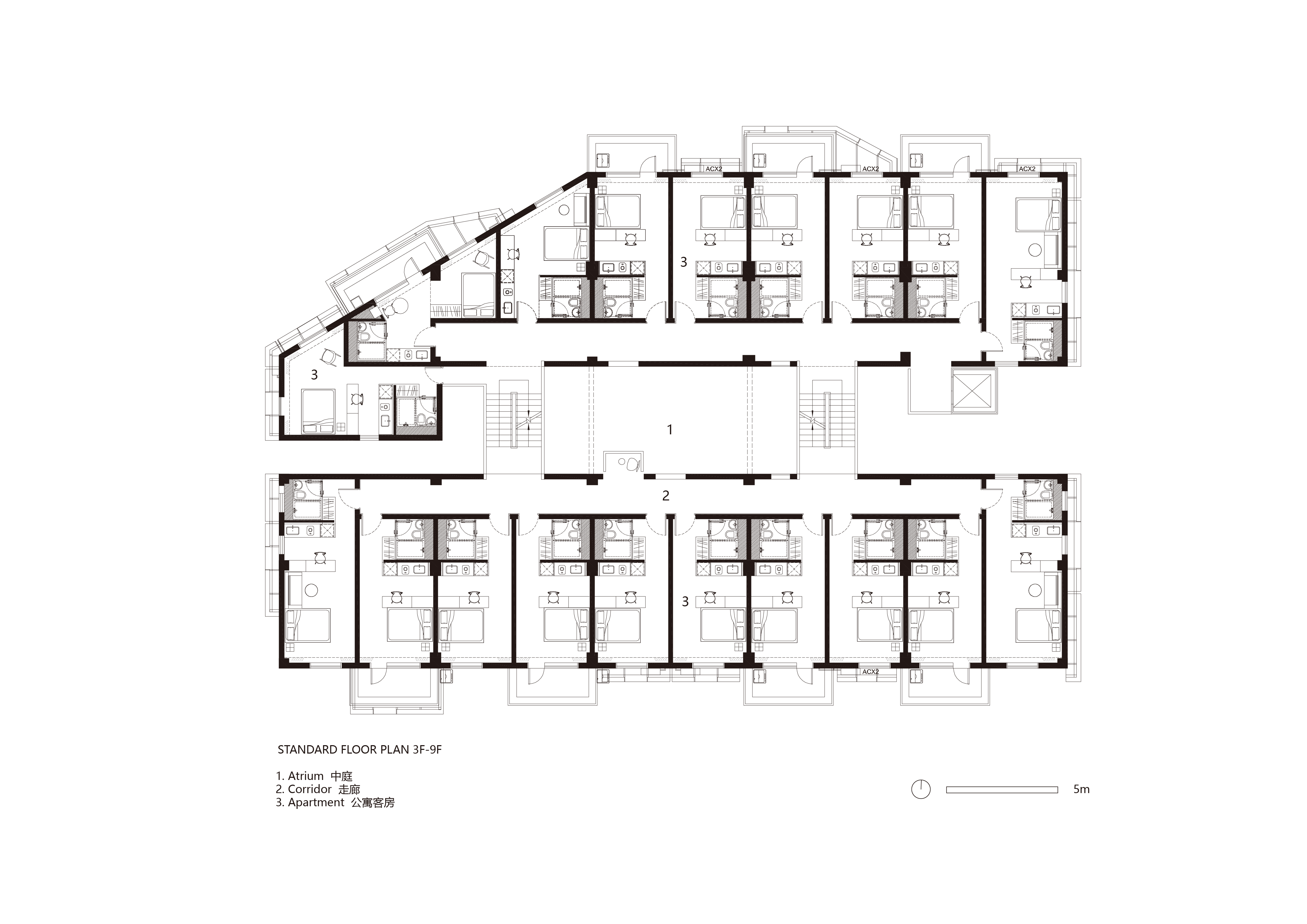
기존 안마당에는 에어컨과 전선, 굴뚝 등이 마구잡이로 흩어진 설치물들이 있었고, 이러한 설치물들은 이 공동주거 공간의 유일하게 개방된 공용 공간을 지저분하게 보이도록 하고 있었다. 건축가는 중앙 안마당 안에 있던 설치물, 구조물들을 치우고, 안마당의 개방성과 편안함을 가져오는 공간으로 탈바꿈시켰다. 에어컨과 다양한 라인 및 파이프는 따로 분리됐으며, 기존 건물의 세 개로 나눠지는 주요한 동선의 중심인 공공공간은 누구나 쉴 수 있는 아늑한 안마당으로 조성되어 있다. 또한, 이 공동주택의 엇갈린 복도 사이 개방된 안마당이 시각적으로 흥미로운 시선들의 교차들을 만들어내며, 거주자들의 쾌적한 생활을 이어가도록 만든다.





















Architects TEAM_BLDG
Location Guangzhou, Guangdong, China
Building area 6,000㎡
Building scope 9F
Construction period 2019. 02 - 10
Completion 2019. 10
Principal architect Xiao Lei
Project architect Shigeno Yuji
Design team Yang Yuqiong, Wang Zipeng, Cao Yi, Pedro Manzano Ruiz
Photographer Jonathan Leijonhufvud
해당 프로젝트는 리빙즈, 디테일 02호에 게재되었습니다.
The project was published in LIVINGS, Detail 02
[BOOK] LIVINGS, Detail 리빙즈, 디테일 01호, 02호
단행본 발행 67개의 형태와 라이프스타일을 담은 주거공간, 국내외 "디테일한 주택 프로젝트"의 엮음
www.masilwide.com
'Architecture Project > Multifamily' 카테고리의 다른 글
| BAN VILLA (0) | 2022.03.10 |
|---|---|
| ZELLIGE (0) | 2022.03.04 |
| HERMINE (0) | 2022.03.02 |
| Viale Giulini Affordable Housing (0) | 2022.02.28 |
| Bottière Chénaie (0) | 2022.02.25 |
마실와이드 | 등록번호 : 서울, 아03630 | 등록일자 : 2015년 03월 11일 | 마실와이드 | 발행ㆍ편집인 : 김명규 | 청소년보호책임자 : 최지희 | 발행소 : 서울시 마포구 월드컵로8길 45-8 1층 | 발행일자 : 매일



