
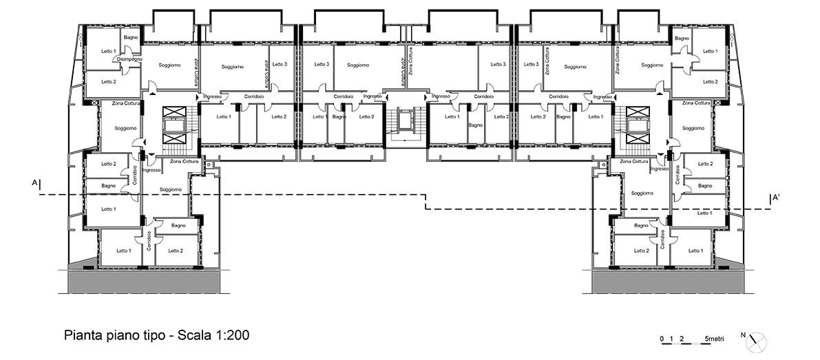
With the Viale Giulini Affordable Housing project redesigning the outskirts of Barletta(Puglia) through a social housing intervention. The project, located in the south-west of the city, in the new Zona 167 district, aims to fuse the urban macro-scale with the domestic dimension, within a larger system of projects to revitalize the neighbourhood. For this project, the architect created "compact and down-to-earth architecture". With a sober and rigorous profile, the building relates to the city in a sculptural way, in stark contrast to the diverse, deafening context in which it is nestled, which lack green spaces and are characterized by ostentatious decorative solutions, and rigid housing and urban typologies. The complex, which has 50 units including underground car parks and a ground floor dedicated to commercial activities, looks like a C-shaped monolith, spanning a height of six floors and a total area of over 5,000㎡. The regularity of the elevations represents the main character of the building: the uniform dark grey brick curtain becomes a sort of neutral score where dynamic rhythms are delivered by protuding, niche white metal sheet elements. To balance the gravity of the volume, whose profile on the 1st floor bends to expand the public space, the architect imagined a series of light and permeable balconies hanging on the facade, ‘democratically’ attributing extra space to everyone. The balconies project outwards, as a natural extension of the apartments. What’s more, thanks to their white and perforated surfaces, they reflect natural light within the domestic environment, and they add a further 10 to 15m2 to the apartments, enhancing the spatial quality of the more modest and limited typological cuts. During the day, natural light reduces the apparent weight of the building, the volumes of the balconies become slight, combining the material and the abstract, lightness and gravity with maximum simplicity. The 1st floor of the building also transmits solidity and dynamism at once.
Rigorous lines, essential shapes and balanced colours: the result is a simple and refined design - in contrast with the eccentricity of the surrounding buildings - which restores dignity to social housing in the suburbs. A project that, with the same grace with which it stands, brings the theme of quality accommodation at affordable prices back to the heart of the architectural debate.

비알레 줄리니 어포더블 하우징은 사회 주택 개입을 통해 바를레타(풀리아)(Barletta, Puglia)의 외곽에 세워진 사회적주택이다. 도시의 남서쪽, 새로운 구역 167지구에 위치한 이 공동주택은 지역을 재활성화하기 위한 대규모 프로젝트의 일부로 거시적으로는 도시와 지역을 융합하는 것이 목표다. 건축가는 이 프로젝트를 위해 ‘실용적인 소형 건축’을 만들었다. 냉정하고 엄격하게 구성되어 있는 이 건축물은 주변 자연 요소가 부족하고, 과시적이며 장식 위주의 해결책, 딱딱한 건축물과 도시 사이의 전형적인 관계와는 대조되는 방식으로 이 도시환경과 관계 맺는다. 지하 주차장과 상업 활동 전용인 1층을 포함해 50세대가 있는 이 단지는 높이 6층, 총 면적 5,000m2에 걸쳐 ‘ㄷ’자 모양의 성벽처럼 보인다.
입면의 규칙성은 건물의 주된 특징을 드러낸다. 돌출된 흰색 금속판 요소가 역동적인 리듬을 전달하는데, 균일한 짙은 회색 벽돌 커튼은 일종의 중립적인 요소가 된다. 공공공간 확장을 위해 1층의 외벽을 기울이고, 이런 매스의 균형을 맞추기 위해 건축가는 파사드에 매달려 있는 일련의 가벼운 발코니를 구상하여 모든 사람에게 ‘공평하게’ 여분의 공간을 부여했다. 발코니는 아파트의 자연스러운 확장으로, 바깥쪽으로 돌출되어 있다. 더 나아가서 발코니의 흰색과 타공된 표면 덕분에 실내까지 자연광을 받아들이고 아파트에 10~15m2의 공간을 추가하여 보다 유형적 공간의 품질을 향상시킨다. 낮에는 자연 채광이 건물의 무게감을 줄여주고, 발코니의 부피가 작아 보이게 하면서 재료와 추상성, 가벼움과 중력을 최대한 단순하게 결합시킨다. 건물의 1층은 견고함과 역동성을 동시에 전달한다.
엄격한 선, 필수적인 형태 및 균형 잡힌 색상은 주변 건물과는 대조적인 단순하고 세련된 디자인으로, 교외 사회 주택의 품위를 회복시킨다. 건물이 지닌 그 우아함으로 합리적인 비용에 양질의 생활 공간이라는 주제를 건축 논쟁의 중심으로 되돌려 놓는다.
















Architects Alvisi Kirimoto
Location Barletta, Italy
Gross floor area 5,380㎡
Building scope 6F
Completion 2020. 01
Principal architect Massimo Alvisi, Junko Kirimoto
Project architect Massimo Alvisi, Junko Kirimoto
Design team Massimo Alvisi, Junko Kirimoto, Chiara Quadraccia, Donato Labella
Structural engineer Ing. Antonio Salzo
Installations and fire-prevention system engineer Tumulo & Denuzi Engineers
Construction Edilbari s.r.l.
Photographer Marco Cappelletti
해당 프로젝트는 리빙즈, 디테일 02호에 게재되었습니다.
The project was published in LIVINGS, Detail 02
[BOOK] LIVINGS, Detail 리빙즈, 디테일 01호, 02호
단행본 발행 67개의 형태와 라이프스타일을 담은 주거공간, 국내외 "디테일한 주택 프로젝트"의 엮음
www.masilwide.com
'Architecture Project > Multifamily' 카테고리의 다른 글
| The Village (0) | 2022.03.03 |
|---|---|
| HERMINE (0) | 2022.03.02 |
| Bottière Chénaie (0) | 2022.02.25 |
| Essenza (0) | 2022.02.24 |
| IRRIGACIÓN 93(I93) (0) | 2022.02.23 |
마실와이드 | 등록번호 : 서울, 아03630 | 등록일자 : 2015년 03월 11일 | 마실와이드 | 발행ㆍ편집인 : 김명규 | 청소년보호책임자 : 최지희 | 발행소 : 서울시 마포구 월드컵로8길 45-8 1층 | 발행일자 : 매일



