
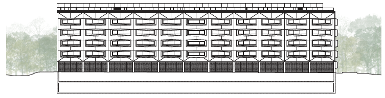
Essenza is a luxury multifamily residential building located at the doorstep of Porto's City Park, in Portugal. Following all the guidelines and metrics defined by the Park's Urbanization Plan for the nascent urban front, the volume lives in total coherence with the surroundings, while standing out for its unusual properties. The building's most striking feature is the facade's three-dimensionality, created through geometric rips that cut the concrete, like if there is a body's reaction in each tear - a kind of blister. This geometric effect creates the illusion of undulation and is adapted to the facade facing the park, where the openings are much larger, and the protrusion effect is smaller. This design makes better use of the park's views while maintaining the building's conceptual consistency. The gated community has a reception, which provides security to its residents and contributes to the building's unitary image. The facade's skin effect extends to the base of the volume, covered from one end to the other by a golden grid with a design inspired by the tapered geometry oculi. This solution allows solving the proximity to the street, integrating housing programs, a lobby, and garages entrances on a sole basis, without interfering with the object's reading. Semi-translucent and delicate, this surface acts as a membrane that prevents the passage but allows light to enter. Essenza was designed to be experienced, combining technology with a selection of luxury finishes to provide maximum comfort and functionality to its residents. We highlight the home automation system, the radiant floor heating used in the circulation spaces, bedrooms, living rooms, and the Carrara marble used throughout the bathrooms. In permanent dialogue with the Park, Essenza promotes the extension of its physical spaces, in a symbiosis between interior and exterior, as if it were a marriage between architecture and nature.

에센자 아파트먼트는 포르투갈 포르토의 도시 공원 초입에 위치한 고급 공동주택이다. 초기 도시계획에 따라, 모든 가이드라인 안에서 정해진 형태는 독특한 입면을 가지면서 눈에 띄긴 하지만, 주변 맥락과 통일된 느낌을 가지고 있기도 하다. 에센자의 가장 큰 특징은 입체적인 정면 파사드다. 건물의 창호마다 반응하고 있는 듯한 기하학적이고 돌출된 입면은 마치 입면 파사드에 파도를 일으켜 살아있는 것 처럼 느껴지도록 한다. 이러한 돌출된 입면은 에센자 바로 앞에 있는 공원을 정면서에서 시원하게 탁트인 시야로 바라볼 수 있도록 만든다.
울타리 쳐진 커뮤니티는 그 거주민들에게 보안을 제공하고 건물의 일원화 된 이미지에 기여하는 리셉션 공간이 있으며, 점점 가늘어지는 기하학적인 원형 창에 영감받은 디자인을 가진 황금 그리드에 의해 한 끝단에서 다른 쪽까지 덮인 파사드는 건축물의 바닥 끝까지 연장된다. 이러한 디자인의 연장은 물체에 의해 시야를 방해받지 않으면서도 거리, 주거 프로그램, 로비, 그리고 단독 기반의 차고 입구로 접근을 편리하게 만든다. 반투명하면서도 정교하게 만들어진 이 입면은 일정 부분의 시야를 차단하면서도 자연스럽게 빛을 집 내부로 끌어들이도록 만든다. 거주자들은 최대한의 편안함과 기능성을 제공받으며, 고급스럽게 마감되어 에센자는 한층 더 높은 질의 주거 공간을 경함할 수 있다. 이 뿐만 아니라, 건축가는 주거 자동화시스템, 동선 공간, 침실, 거실에 활용되는 방열 바닥, 화장실 전체에 사용된 카라라 대리석을 사용하는 것으로 이러한 분위기를 한층 더 고급스럽게 만들었다. 공원과의 지속적인 교류를 위해, 에센자는 마치 건축물과 자연 사이에 긴밀한 연결을 만들어내고, 내부와 외부공간에서 함께 공존하며 주거 공간의 물리적 공간을 확장해 나아간다.














Architects Ventura & Partners
Location Porto, Portugal
Site area 2,197㎡
Gross floor area 11,740㎡
Building scope B2, 5F
Construction period 2017 - 2020
Completion 2020
Principal architect Manuel Ventura
Project architect Amanda Maria, Sofia Sousa
Design team Cládia Vaz, Rui Almeida, Cristina Figueiredo, Pablo Hernandez
Client Desafios Geniais - INVESTIMENTOS IMOBILIARIOS, S.A.
Construction Lucios - Engineering and Construction
Photographer Nelson Garrido, Antonio Teixeira
해당 프로젝트는 리빙즈, 디테일 02호에 게재되었습니다.
The project was published in LIVINGS, Detail 01
[BOOK] LIVINGS, Detail 리빙즈, 디테일 01호, 02호
단행본 발행 67개의 형태와 라이프스타일을 담은 주거공간, 국내외 "디테일한 주택 프로젝트"의 엮음
www.masilwide.com
'Architecture Project > Multifamily' 카테고리의 다른 글
| Viale Giulini Affordable Housing (0) | 2022.02.28 |
|---|---|
| Bottière Chénaie (0) | 2022.02.25 |
| IRRIGACIÓN 93(I93) (0) | 2022.02.23 |
| GNR_IL GENERALE (0) | 2022.02.22 |
| TRILOGIE – 201 LOGEMENTS COLLECTIFS (0) | 2022.02.09 |
마실와이드 | 등록번호 : 서울, 아03630 | 등록일자 : 2015년 03월 11일 | 마실와이드 | 발행ㆍ편집인 : 김명규 | 청소년보호책임자 : 최지희 | 발행소 : 서울시 마포구 월드컵로8길 45-8 1층 | 발행일자 : 매일



