
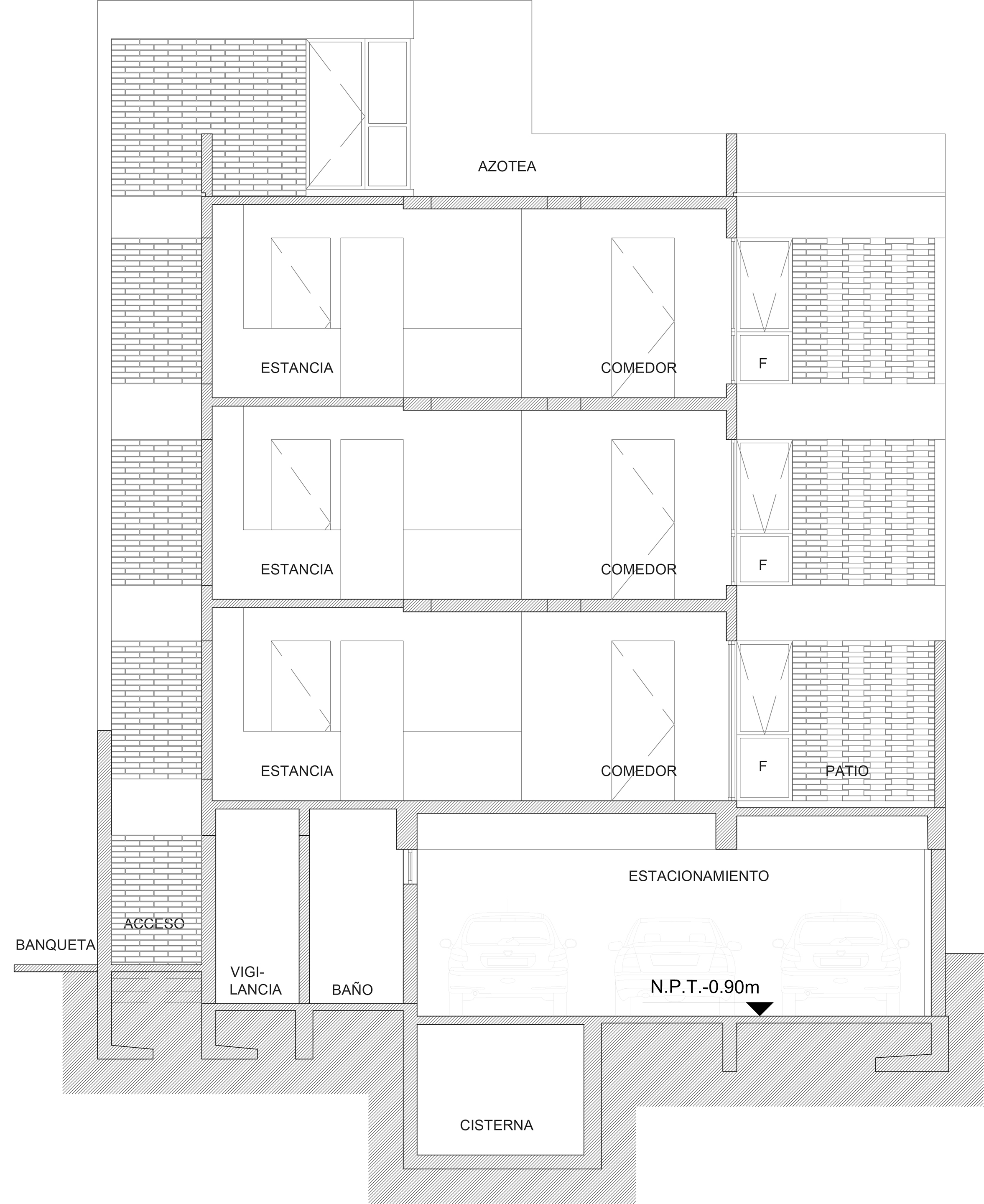
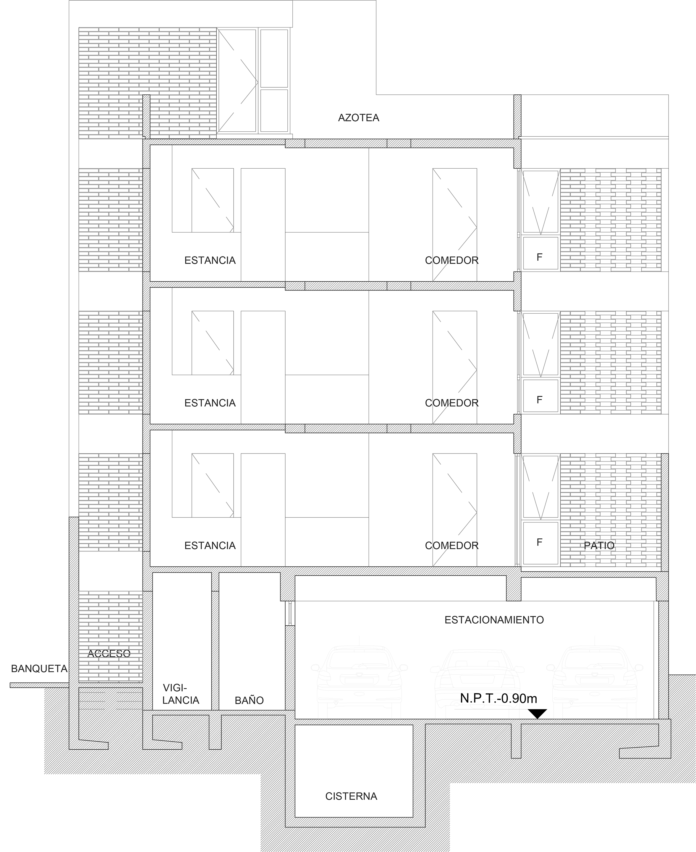
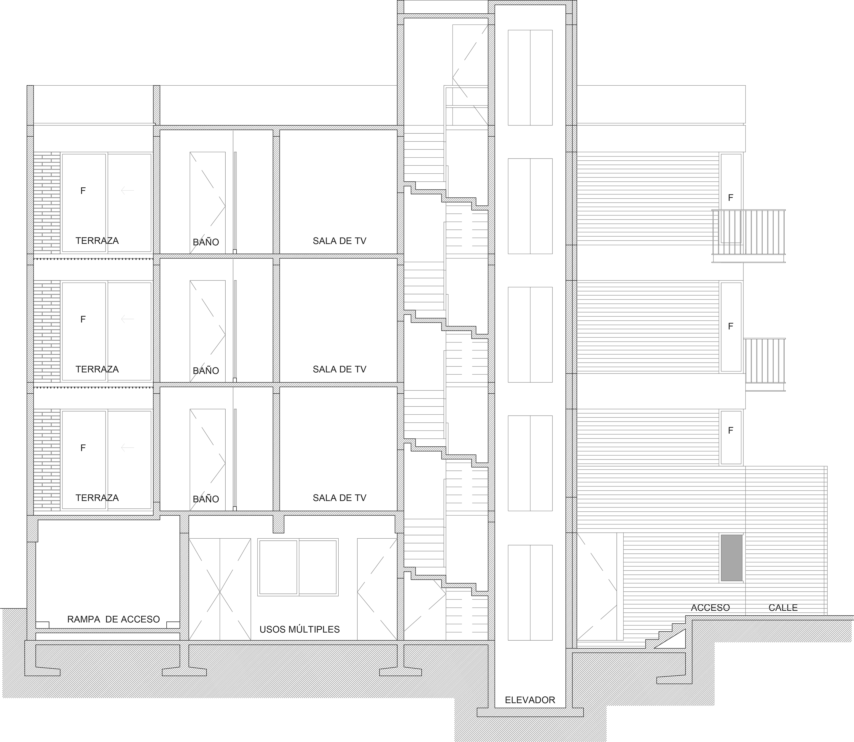
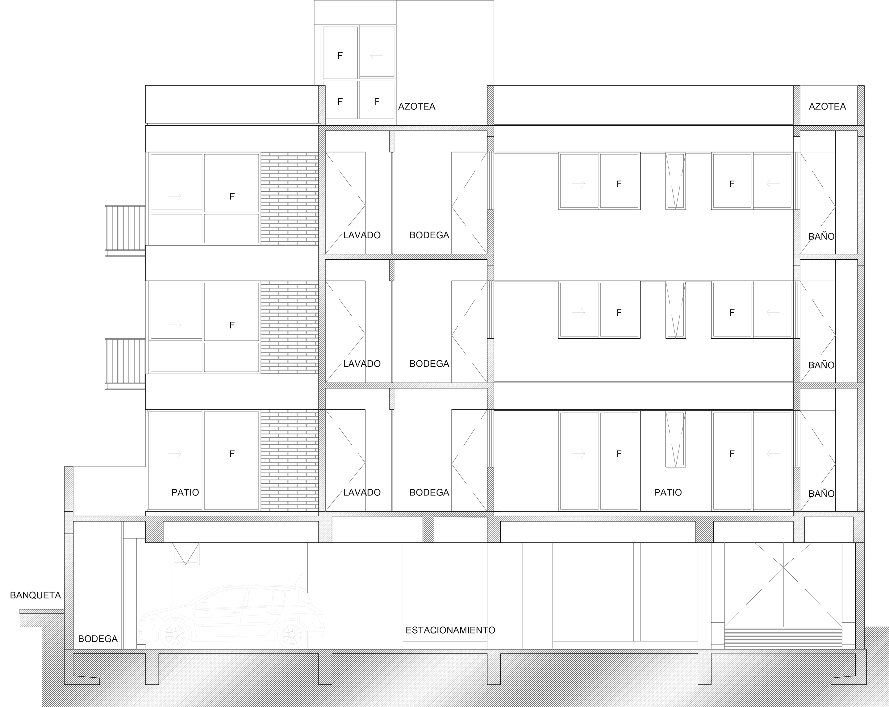
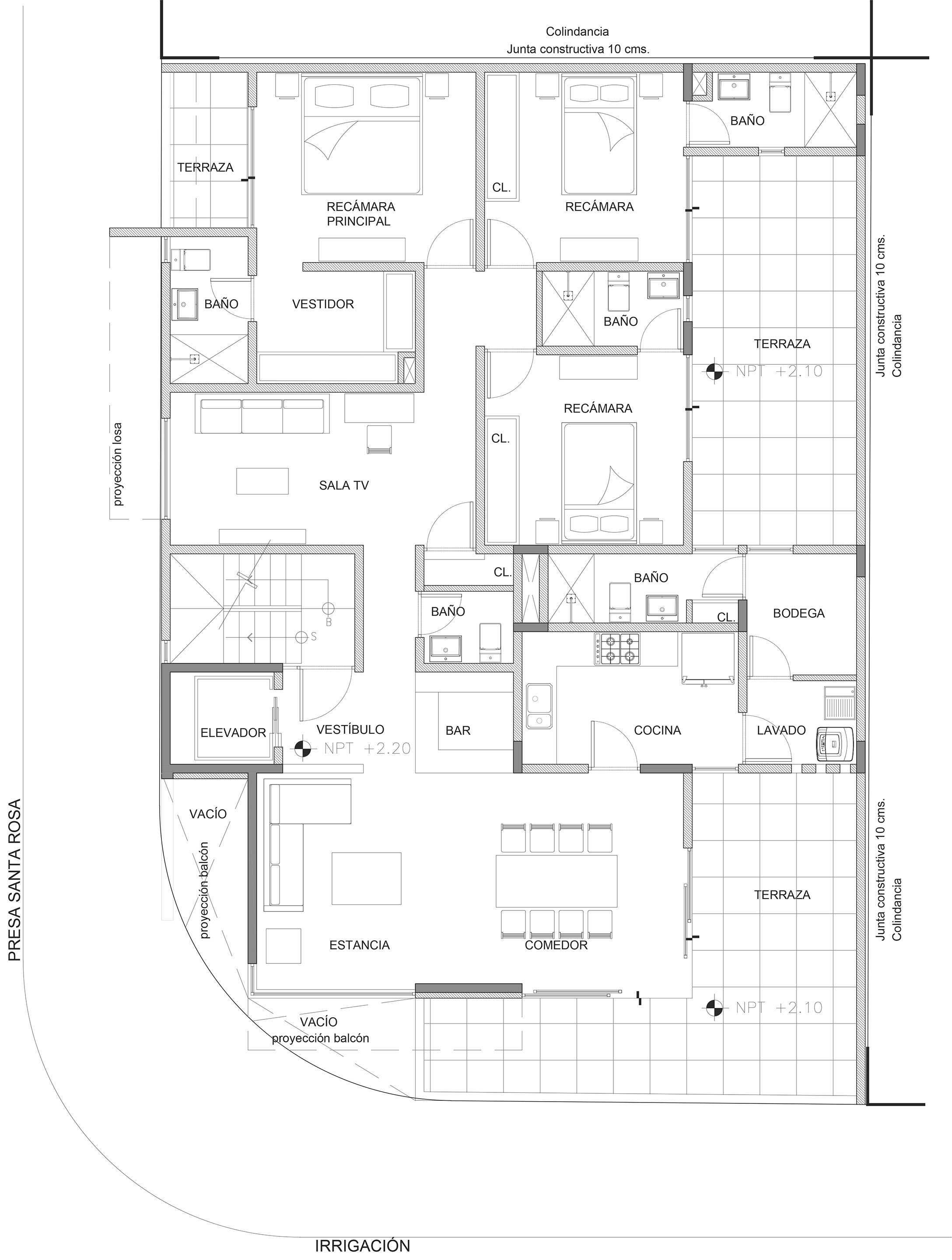
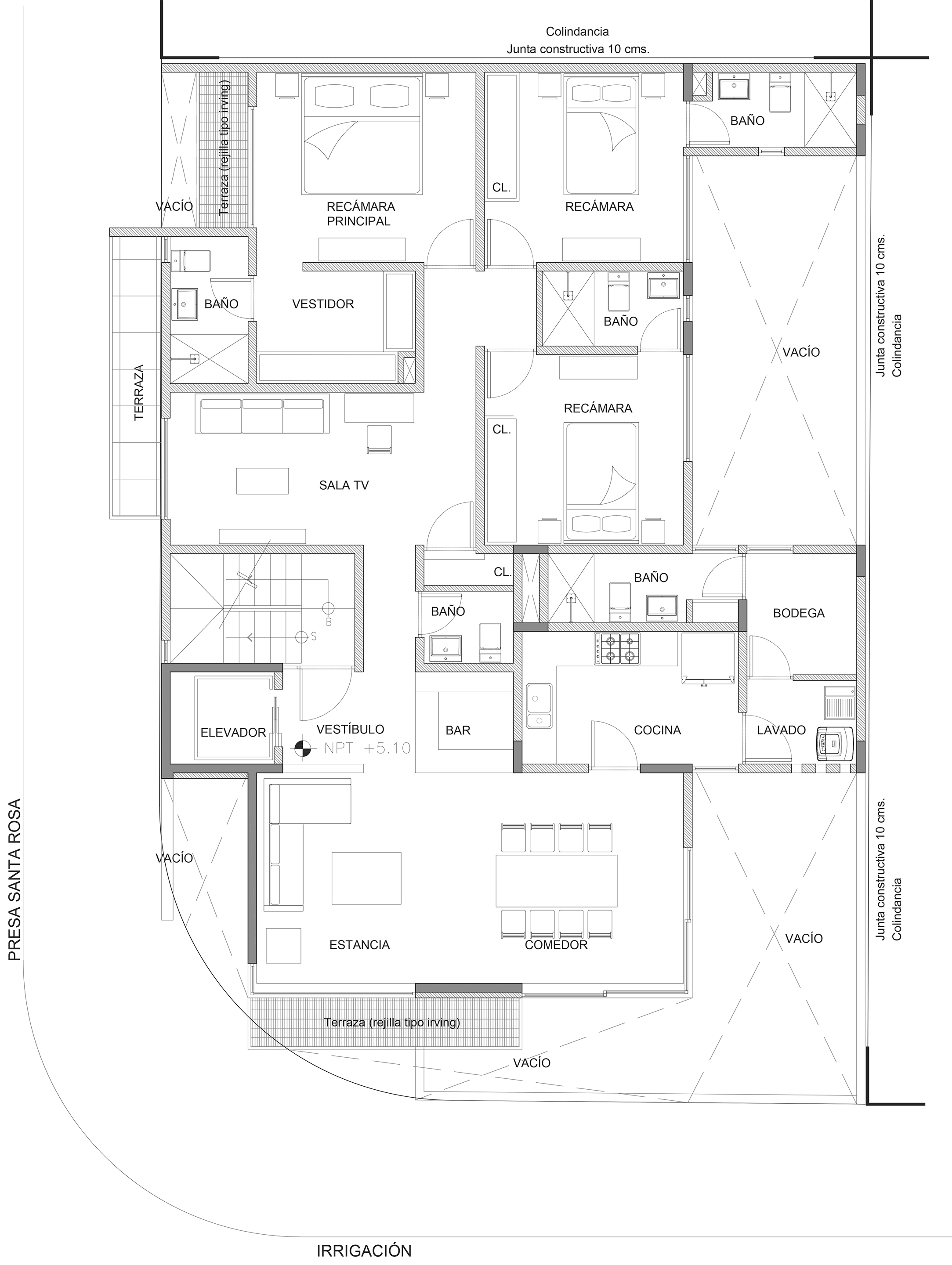
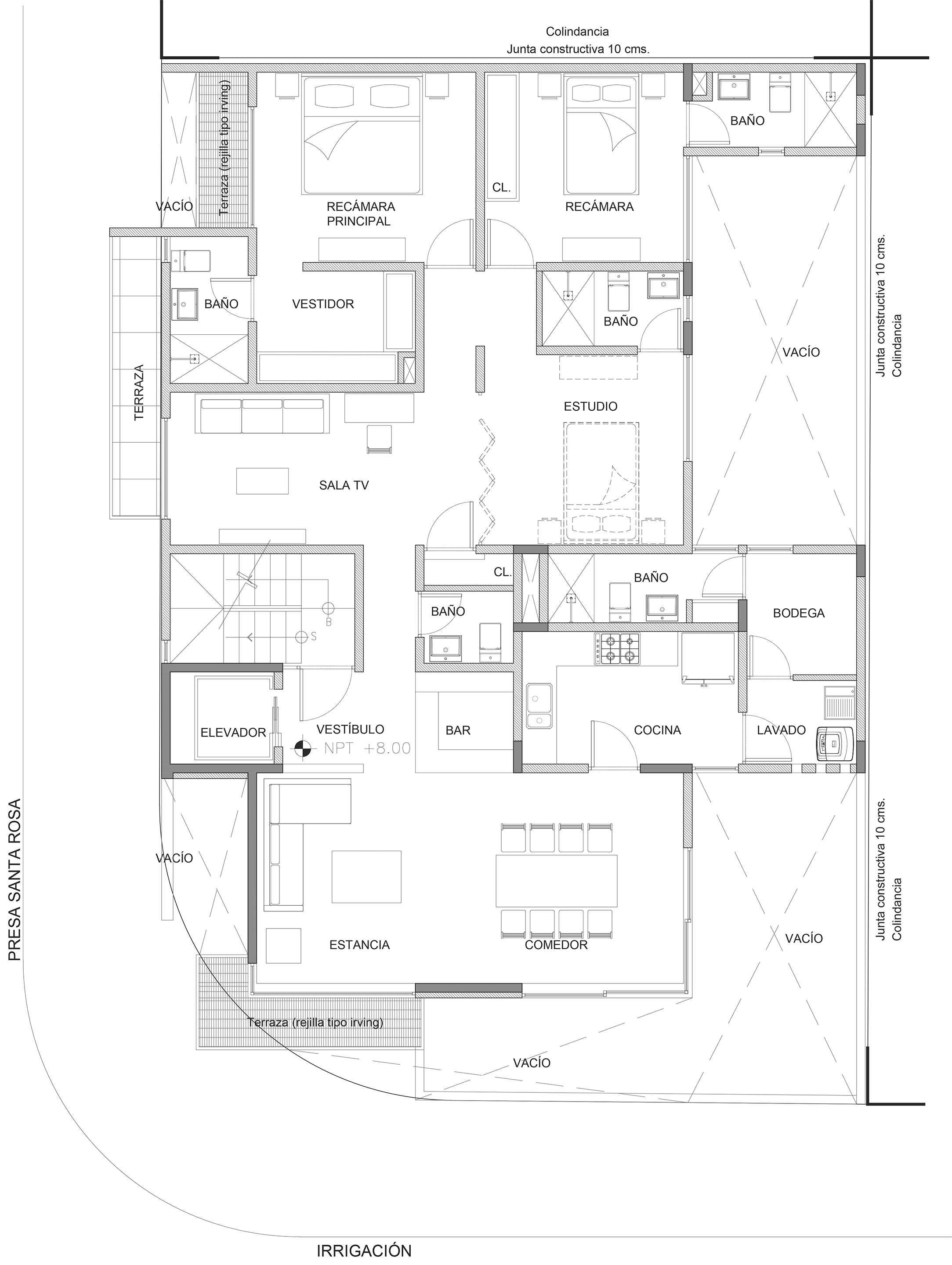
Irrigacion 93(I93) sits on the corner of Irrigacion Avenue and Presa Santa Rosa, in one of the fastest growing neighborhoods in Mexico City. At 216m2, the property is inspired by modern architecture, and designed with a unique approach to production that makes great use of raw materials. With three residential apartments inside, the space is designed to take full advantage of each angle, meeting all the tenants’ needs. I93 consists of straight, clean lines, that provide the space with an intention and strong presence. You’ll notice a use of concrete that stands out from the basement all throughout the framing, in all three levels of the building, providing subtle accent and structure. One noteworthy aspect of this project is the simplicity on material used; concrete, black block and iron, which stand out along the two main facades. Another defining characteristic is the use of the core vertical circulations, present in the building‘s volume. Vertical circulations divide the 3 levels while introducing a different perspective to the configuration depending on where you stand. Lastly, the ventilation of the space is designed to keep the original vertical windows, keeping the air feeling very natural. Moving to the interiors of each apartment, practically all the bathrooms, bedrooms and living rooms have natural light and ventilation, demanding the level of comfort that our client wanted to achieve. Each 150m2 apartment consists of 3 bedrooms (each with its own full bathroom), a study or office, a half bathroom, a living room or dining room, a kitchen, a service area and room, as well as balconies and an additional open space. Standing slightly apart from the others, Apartment 1 has two additional patios, which contribute a feeling of spaciousness to its interior. Apartments 2 and 3 have a private open space at the roof top, giving each a unique added value. As in many of our projects, finishing touches include landscaping where possible, private rooftops, and of course the use of natural materials as much as possible. To top it all off, I93 has a parking structure half a level below the sidewalk where tenants can find 24-hour surveillance, parking, pedestrian sidewalk access, and a multipurpose space for homeowners to take advantage of.

I93은 멕시코시티에서 가장 빠르게 성장하는 지역 중 하나인 이리가시온 에비뉴(Irrigacion Avenue)와 프레사 산타 로사(Presa Santa Rosa)의 모퉁이에 위치해 있다. 이 집은 현대건축에서 영감을 받아 건축적 자재의 본래의 느낌이 그대로 사용되는 방식으로 지어졌다. 건축물 내부에 세 개의 주거용 세대가 있으며, 각각 세입자의 요구 사항들이 충족되도록 설계됐다. I93은 곧게 뻗은 깨끗한 직선으로 구성되어 공간은 건축가의 의도와 강한 존재감을 드러낸다. 3층 건물 전체의 프레임과 지하실에도 노출콘크리트가 사용되어 미묘하게 강조된 구조를 가지고 있다. I93에서 한 가지 주목할 점은 사용된 재료의 소박함으로, 두 개의 주요 입면에서 콘크리트와 검은색 벽돌과 철재 난간만이 눈에 띈다는 점이 특징이다. 또 다른 특징은 건물의 볼륨으로 확연하게 드러나는 수직 코어의 동선이다. 수직 동선은 건축물 주변, 즉 건축물을 바라볼 때 서 있는 위치마다 각기 다른 형태를 제시한다. 마지막으로 원래의 수직 창을 유지하도록 설계된 공간의 환기로, 이러한 공기의 수직 흐름은 자연스러운 환기가 원할하게 일어나도록 돕는다. 각 주거세대 내부로 이동하면 모든 욕실과 침실, 거실에 채광과 통풍이 자연스럽게 일어나도록 설계되어 거주자들이 원하는 수준의 편안함을 누릴 수 있다. 거주세대는 각각의 욕실이 완비된 침실 3개와 서재 또는 사무실, 하프 욕실, 거실 또는 식당, 주방, 서비스 공간과 방, 발코니 그 외에 개방된 공간으로 구성되어 있다. 다른 아파트와 약간 떨어져 있는 거주세대1에는 내부를 넓어 보이게 하는 2개의 발코니가 있으며, 거주세대2와 거주세대3은 옥상에 개별 개방 공간이 있어 각각에 특별한 공간들을 가지도록 설계되어 있다. 이 뿐만 아니라, 개인 옥상과 가능한 한 많은 정원이 만들어져 있으며, 무엇보다도 I93은 보도보다 반 층 정도 아래에 24시간 감시되는 주차장이 마련되어 있다. 보행자의 보도 접근성도 좋으며 주택 거주자들에게는 유용한 다목적 공간도 1층에 마련되어 있다.














Architects Wolff-Yapur
Location Mexico City, Mexico
Completion 2020
Principal architect Yair Wolff, Erik Yapur
Project architect Yair Wolff, Erik Yapur
Design team Yair Wolff, Erik Yapur, Roberto Yañez, Javier Sepulveda, Jair Valdes, Hugo Cuevas, Alejandro Moreno, Adriana Vega, Selene Yamilet Medina, Ivonne Viveros
Photographer Herman Schumacher, Mauricio Salas
해당 프로젝트는 리빙즈, 디테일 02호에 게재되었습니다.
The project was published in LIVINGS, Detail 01
[BOOK] LIVINGS, Detail 리빙즈, 디테일 01호, 02호
단행본 발행 67개의 형태와 라이프스타일을 담은 주거공간, 국내외 "디테일한 주택 프로젝트"의 엮음
www.masilwide.com
'Architecture Project > Multifamily' 카테고리의 다른 글
| Bottière Chénaie (0) | 2022.02.25 |
|---|---|
| Essenza (0) | 2022.02.24 |
| GNR_IL GENERALE (0) | 2022.02.22 |
| TRILOGIE – 201 LOGEMENTS COLLECTIFS (0) | 2022.02.09 |
| MAISONS OUTREMONT (0) | 2021.09.08 |
마실와이드 | 등록번호 : 서울, 아03630 | 등록일자 : 2015년 03월 11일 | 마실와이드 | 발행ㆍ편집인 : 김명규 | 청소년보호책임자 : 최지희 | 발행소 : 서울시 마포구 월드컵로8길 45-8 1층 | 발행일자 : 매일



