
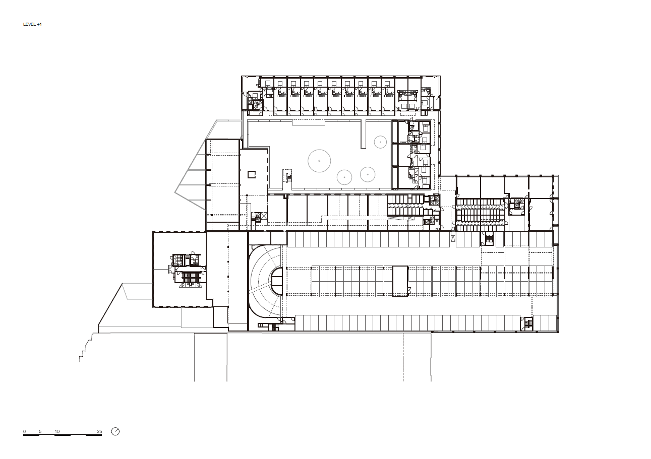
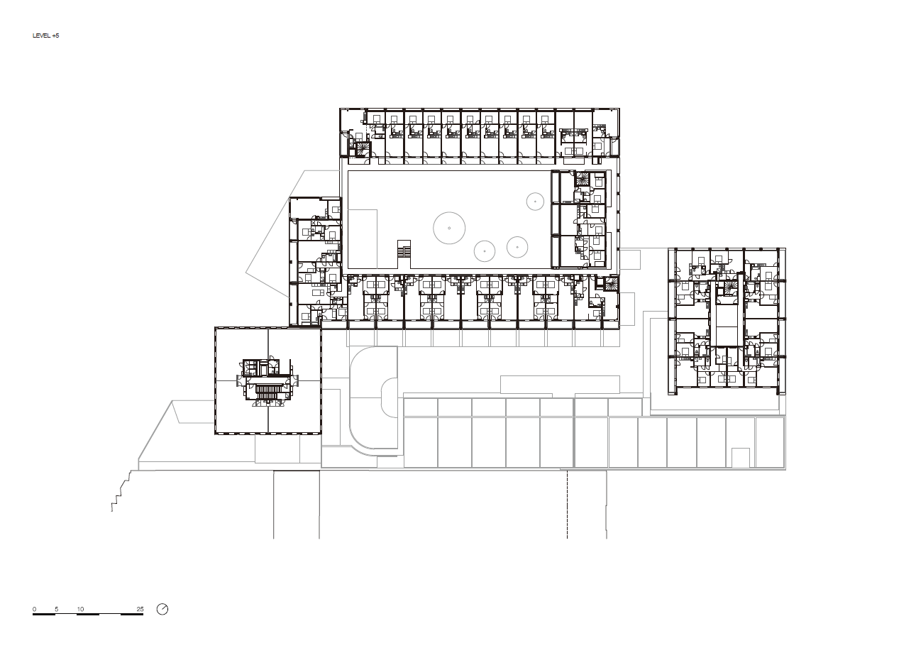
Extremely compact, the Bottière Chénaie features a multifunctional plinth, composed of commercial spaces, a supermarket and a car park. Above this base rise two 5-storey residential blocks comprising 172 apartments in total. The first volume is dedicated to market-rate housing, while the second hosts a social housing complex.
To the North-West, the larger housing volume unfolds around a spacious courtyard planted with trees, where external walkways overlooking the green surroundings provide access to the dual aspect apartments. Inspired by the Dutch residential architecture tradition, this circulation solution is adapted to its context and minimizes vertical connections, allowing diverse configurations to the housing units - from private outdoor spaces to loggias with living areas. Moreover, these orientational anomalies are flanked by light-wells spreading natural daylight to the lower floors: a vertical rupture that generates informal spaces to foster residents’ socialization.
To the east, the second volume accommodates 39 social housing apartments, which, according to their position, benefit from a double orientation, different typology of loggias and look out over the trees or towards the city. Lastly, to the south-west, the office block, organized around a central core, reinforces the volume juxtaposition and completes the new urban landscape. Monumental in its consistency, the simple massing of Bottière Chénaie is accompanied by a cohesive repertoire of surfaces. Monolithic at first glance, the project is enriched by high-quality facades composed of a regular 60x60cm post-and-beam structure in precast concrete that generates large transparent surfaces and singular fully glazed corners.
The project’s compactness allowed the optimization of economic standards and environmental recommendations throughout the whole building process. The facades provide abundant daylight to the interiors and naturally link them to the city, both during the day and at night. Towards the courtyards and walkways, the vertical surfaces are cladded in grey stained timber giving them a characteristic domestic feel and reinforcing the duality between exterior and interior while elevating the inner public space as the beating heart of the project.

콤팩트하게 짜인 입면을 가진 보티에르 체니에는 상업 공간, 슈퍼마켓, 주차장으로 구성된 다기능시설을 수용하는 공동주택이다. 이러한 시설들을 기반으로, 172세대가 거주할 수 있는 5층짜리 2개의 블록으로 크게 구분할 수 있다. 한 동은 일반주택이며, 다른 한 동은 사회적주택이다.
북서쪽으로는 나무가 심어진 널찍한 안뜰을 가지고, 그 중심으로 더 큰 주택 규모가 펼쳐지는데, 녹색 주변을 내려다보는 외부 보행로가 이원형 아파트로 접근하도록 만든다. 네덜란드 아파트 건축 양식에서 영향을 받은 보티에르 체니에는 도시적 맥락에 맞게 수직 연결은 최소화되며, 개인 실외 공간부터 거주 공간이 있는 베란다로 자연스러운 동선을 이어지게 만들고, 주거 단위 별 다양한 구성을 가능하도록 만든다. 이러한 방향성 현상은 자연스러운 채광을 아래층까지 끌어들이도록 만들어 마치 빛으로 채워진 우물 같은 공간이 측면에 생기도록 만든다. 끊어진 수직 동선은 오히려 주민들의 사회적 공동체를 위한 일상적인 소통의 공간이기도 하다.
동쪽에 있는 두 번째 동은 39세대의 사회적 주택이다. 위치에 따라 이중향과 베란다 등 각각 공간에 마련된 공간을 누리면서 나무들이 우거진 곳을 바라보거나 도시를 향한 곳을 바라볼 수 있도록 설계되어 있다. 남서쪽의 중앙 코어를 중심으로 구성된 사무실 건물은 병치를 강화하고 새로운 도시 경관을 완성한다. 이렇게 보티에르 체니에의 간단하면서도 응집력이 느껴지는 형태는 각각 건물에 일관성을 준다.
언뜻 보기에 일체식으로 보이는 이 대형 주거 공간은 거대한 투명 파사드과 단일한 완벽한 유리 모서리를 가지는 일반 60x60cm의 프리캐스트 콘크리트로 만들어졌다. 포스트 앤 빔 구조로 구성되어 이러한 양질의 고품질 파사드는 이 건축물의 전체 건축 과정을 간결하게 만들어, 경제적 비용 절감 효과와 친환경적인 측면에서도 최적화되어 있는 프로젝트다. 파사드는 내부에 풍부한 일광을 제공하고 낮과 밤 모두 자연스럽게 도시와 연결되게 해준다. 안뜰과 보도를 향한 수직 표면은 회색 스테인드 목재로 마감되어 독특한 내부 분위기를 선사하며, 외부와 내부의 상반되면서도 어울리는 이중성을 강화하고, 내부 공간 깊은 곳에서부터 보티에르 체니에의 핵심으로 삶을 끌어 올린다.














Architects KAAN Architecten
Location Nantes, France
Site area 17,200m2
Construction period 2014. 07 - 2016. 10
Completion 2019. 12
Principal architect Kees Kaan, Vincent Panhuysen, Dikkie Scipio
Design team Dante Borgo, Sebastiaan Buitenhuis, Marc Coma, Sebastian van Damme, Paolo Faleschini, Marylene Gallon, Renata Gilio, Narine Gyulkhasyan, Sophie Ize, Jan Teunis ten Kate,
Wouter Langeveld, Julie Le Baud, Yinghao Lin, Aimee Mackenzie, Elsa Marchal, Ismael Planelles Naya, Ana Rivero Esteban, Cecile Sanchez, Yannick Signani, Christian Sluijmer, Joeri Spijkers
Structural engineer AIA Ingenierie, Nantes
Photographer Sebastian van Damme
해당 프로젝트는 리빙즈, 디테일 02호에 게재되었습니다.
The project was published in LIVINGS, Detail 01
[BOOK] LIVINGS, Detail 리빙즈, 디테일 01호, 02호
단행본 발행 67개의 형태와 라이프스타일을 담은 주거공간, 국내외 "디테일한 주택 프로젝트"의 엮음
www.masilwide.com
'Architecture Project > Multifamily' 카테고리의 다른 글
| HERMINE (0) | 2022.03.02 |
|---|---|
| Viale Giulini Affordable Housing (0) | 2022.02.28 |
| Essenza (0) | 2022.02.24 |
| IRRIGACIÓN 93(I93) (0) | 2022.02.23 |
| GNR_IL GENERALE (0) | 2022.02.22 |
마실와이드 | 등록번호 : 서울, 아03630 | 등록일자 : 2015년 03월 11일 | 마실와이드 | 발행ㆍ편집인 : 김명규 | 청소년보호책임자 : 최지희 | 발행소 : 서울시 마포구 월드컵로8길 45-8 1층 | 발행일자 : 매일



