
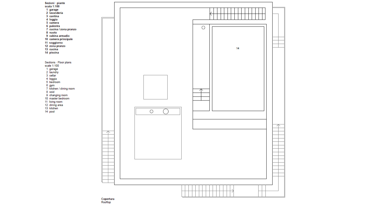
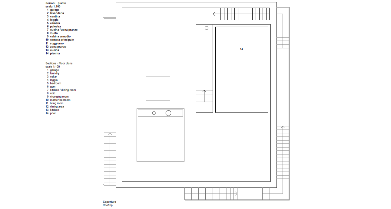
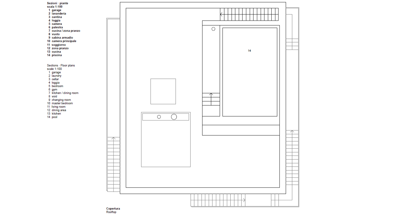
The works consist of energy efficiency upgrading, structural renovation, along with the total restyling of a residential building from the Sixties, which can be divided into three independent apartments. From the original structure, we can appreciate its impressive volume in relation to the surrounding, residential area on the hills of Ivrea. The project highlights this feature by removing all the overhangs from the existing building; solids and voids are redesigned with large squared holes and the roof is transformed into a useful floor area – a private rooftop from where you can enjoy a high view over the Alpes and the Serra Moraine of Ivrea. Only the skeleton was left and then reinforced in order to improve its resistance to earthquakes.
The energy efficiency upgrades include an external insulation system covered by lightweight cement boards, which were then roughly plastered with natural lime mortar. The fortress-like appearance of the building, due to its massive presence, is in contrast with its large transparent holes. Its severe relationship to the ground is emphasized by a large rock, on which the building is sited, and a play of voids and double heights on the southern side renders the rock visible from all floors. In order to fulfill the equirements of flexibility imposed by today’s dynamic society, the building can be divided into three units: three apartments, three entrances, three finishes on the facade.
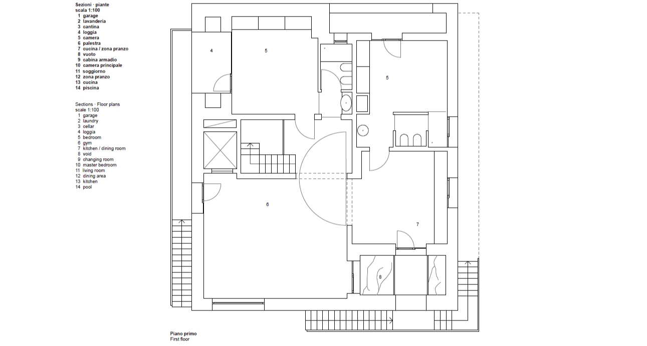
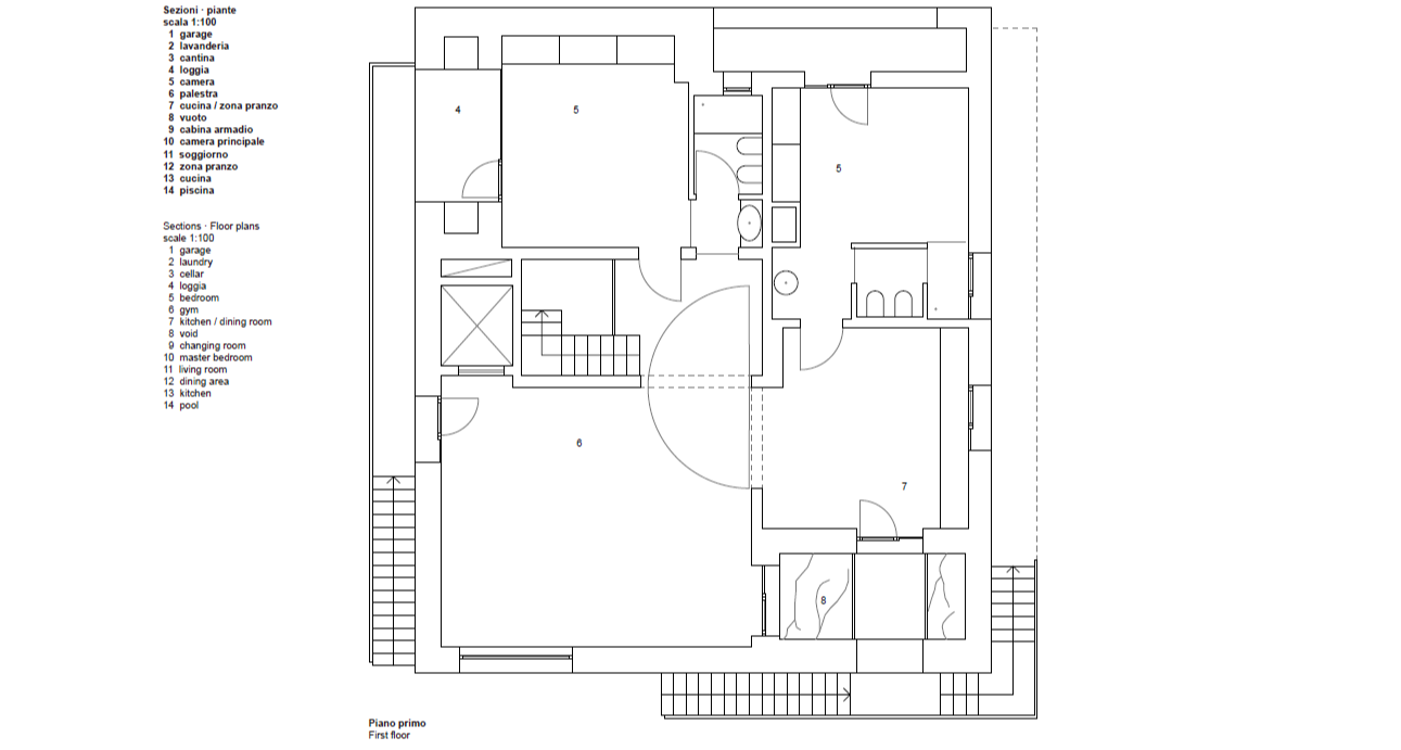
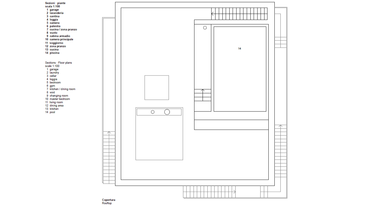
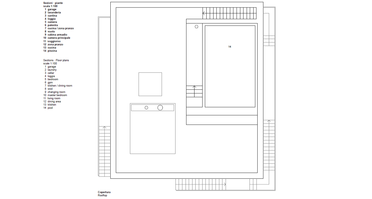
The 1st floor is occupied by a garage and a rock cellar. All the apartments can be connected through the elevator and the interior stairwell, whereas the external metal stairs make the apartments and the rooftop independently accessible. On the 2nd floor, two small-sized apartments share a living space, which is possible to reconfigure if need be thanks to a 180-degree rotating wooden panel. The main apartment is located on the top floor and the rooftop is surrounded by forest trees on the northern side; the walls of the master bedroom are made of raw, reinforced concrete, acting as the main support of not only the existing structure, but also the swimming pool on the rooftop. The walls of the fluid interior spaces are roughly plastered in continuity with the exterior and the floors are in polished concrete unctuated with sections of grinded concrete and parquet. The severe atmosphere created by straight lines is softened by custom-made furnishing, wooden doors and windows, as well as large views of the green forest and light cuts intercepting the different levels of the building.

지앤알_일 아파트먼트는 60년대 주택의 전체적인 리모델링을 통해 세 개의 독립된 가구(아파트먼트)를 수용하는 건축물이다. 이 리모델링에는 에너지효율과 건축물 구조에 대한 개보수 과정이 있었다. 이브레아 언덕의 주변 주거지를 떠올리게 만드는 기존의 건축물은 인상적인 볼륨을 가지고 있었는데, 새로운 공간은 기존 건물에 있던 모든 돌출부를 지우고, 큰 사각형의 새 개구부가 새롭게 생겨났다. 뿐만 아니라, 지붕은 공동으로 사용할 수 있는 루프탑으로 변경됐는데, 이 옥상은 알프스와 이브레아의 전망을 즐길 수 있는 주거민들의 프라이빗한 공간이다. 내진 설계를 위하여 기본적인 골조는 남겨두고 전체적인 구조도 보강됐다.
에너지 효율 강화를 위해 경량시멘트 보드로 덮인 외부 단열시스템이 설치됐으며, 천연 석회 모르타르의 거친 질감 마감이 더해졌다. 사각형의 거대한 크기는 마치 요새 같이 보이는데, 건축물 중간 중간 커다란 사격형의 유리 개구부가 뚫려있어 서로 대조되는 느낌을 주기도 한다. 건축물이 자리 잡은 곳에는 커다란 바위가 있는데, 이 바위는 집 안까지 침투되어 있는 것 처럼 보인다. 집 내부 모든 층에서 이 바위를 바라볼 수 있도록 층마다 일부 바닥면이 오픈되어 있다. 지앤알_일 아파트먼트는 세 가지의 주거공간, 세 개의 분리된 입구, 세 종류의 파사드 마감을 가진다. 1층에는 차고와 바위가 파고든 것 처럼 보이는 지하실이 있다. 모든 아파트는 엘리베이터와 내부 계단을 통해 연결되며, 외부 계단은 거주 세대와 옥상으로 별도의 접근이 가능하다. 1층에는 두 개의 작은 아파트가 생활 공간을 공유하며, 180도 회전하는 목재 패널 덕분에 필요에 따라 공간을 구획할 수 있다. 주요 주거공간 세대는 3층에 위치하고 옥상은 북쪽의 나무 숲으로 둘러싸여 있다. 벽들은 철근콘크리트로 보강되어 기존 구조뿐만 아니라 옥상 수영장의 주요 구조를 받친다. 유동적인 내부 벽은 외부와 연속적으로 거칠게 마감되어 있고, 바닥은 연마된 콘크리트와 광택 콘크리트로 되어 있다. 격자형의 평면에 따른 견고한 분위기는 맞춤형 가구, 나무 문과 창문, 녹색 숲의 넓은 조망과 건물의 다른 층을 가로지르는 빛으로 부드러워진다.
























Architects Archisbang
Location Ivrea, Turin, Italy
Building area 450㎡
Completion 2019. 12
Principal architect Silvia Minutolo, Marco Giai Via, Alberto Perino
Project architect Silvia Minutolo, Marco Giai Via, Alberto Perino
Structural engineer Marco Cuccureddu
Constructor Perino Costruzioni S.r.l.
Photographer Aldo Amoretti
해당 프로젝트는 리빙즈, 디테일 02호에 게재되었습니다.
The project was published in LIVINGS, Detail 01
[BOOK] LIVINGS, Detail 리빙즈, 디테일 01호, 02호
단행본 발행 67개의 형태와 라이프스타일을 담은 주거공간, 국내외 "디테일한 주택 프로젝트"의 엮음
www.masilwide.com
'Architecture Project > Multifamily' 카테고리의 다른 글
| Essenza (0) | 2022.02.24 |
|---|---|
| IRRIGACIÓN 93(I93) (0) | 2022.02.23 |
| TRILOGIE – 201 LOGEMENTS COLLECTIFS (0) | 2022.02.09 |
| MAISONS OUTREMONT (0) | 2021.09.08 |
| VILLA REDEN (0) | 2021.08.19 |
마실와이드 | 등록번호 : 서울, 아03630 | 등록일자 : 2015년 03월 11일 | 마실와이드 | 발행ㆍ편집인 : 김명규 | 청소년보호책임자 : 최지희 | 발행소 : 서울시 마포구 월드컵로8길 45-8 1층 | 발행일자 : 매일



