
BAN Villa provides possibilities of new village life for urban dwellers. As a typical picturesque Chinese Jiangnan town, the village of Jijiadun locates about 1.5-hour drive from the central city of Shanghai. The project of BAN Villa sits at the entrance of the Jijiadun village. The site is surrounded on three sides by a small river, and there are croplands not far away from the site. The project is an open and shared home. A small portion of the villaserves as a private residence for the owner, and the rest is an open space shared with guests.
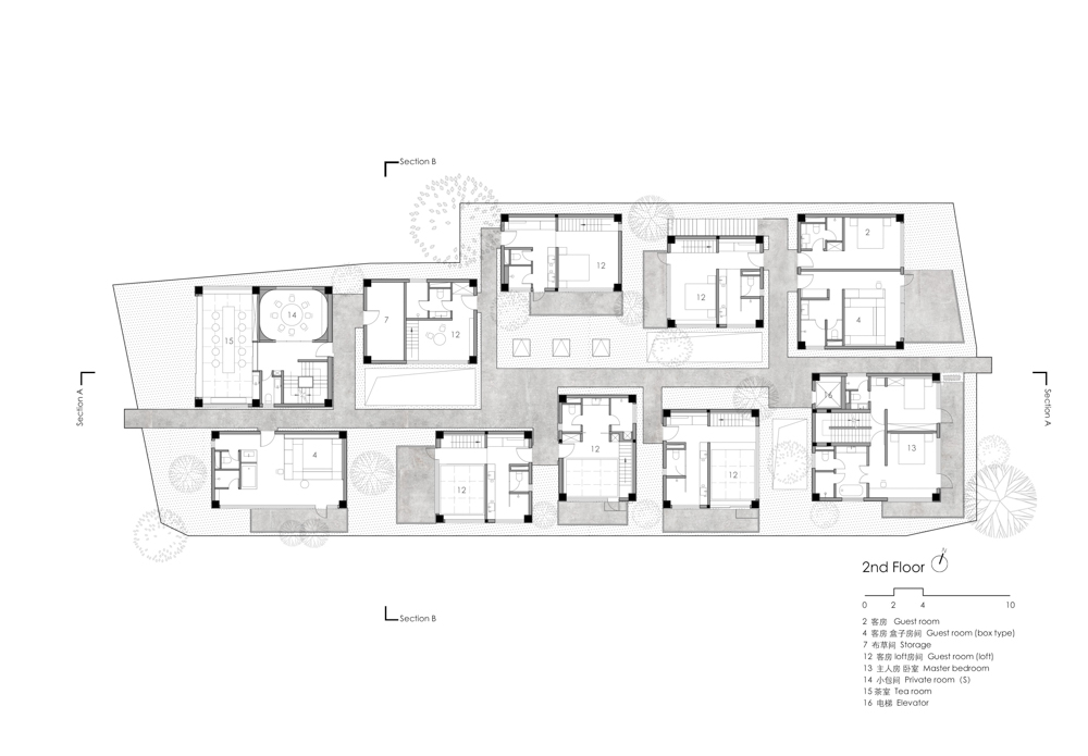
The designers imagine the architecture of the villa as a comfortable space integrated with nature that gently grows from the texture and fabric of traditional Jiangnan watertown. The method is to break up the whole volume into several small-scale architecture and to further establish a new order by arranging and planning. The scattered volumes in an ordered way are spatially independent while interconnected in space. Due to the gaps between the architecture, nature gets the opportunity to penetrate into the interior, blurring the boundary between the inside and outside. The main concept is about forming ten independent boxes that are connected in series by a large continuous space. The
boxes include public and social functions of restaurants, tearoom, and guest rooms.
Meanwhile, these boxes also include private living space for the owner of the villa. Vertically, the architecture is divided into two layers by a continuous roof plane. On the first floor, guest rooms and main functional spaces are arranged in a staggered form along the riverside to ensure that each room features a good view and necessary privacy. The space of the second floor appears more open and natural. The ten scattered boxes divided by the continuous large roof look like a small floating village from a distance. The facade of the ground floor is featuredby laminated bamboo since the material integrate itself respectfully with the surroundings, both natural environment and built architecture. The upper floor’s materials present a more pure atmosphere. The overall space of this level is off-white as a whole, including the white stucco for wall and matte white metal roofing. The pure whiteness shows a sense of simplicity and neatness.

반 빌라 연립형 주거시설은 도시에 거주했던 이들에게 새로운 마을 거주 생활을 제안하는 건축물이다. 중국의 전통적이고 아름다운 장난 마을 중 지지둔 마을은 상하이에서 차로 약 1시간 반 거리에 있는 곳으로, 반 빌라는 이 지지둔 마을에 위치한다. 대지는 삼면이 작은 강으로 둘러싸여 있었으며, 멀지 않은 곳에는 농경지가 펼쳐지는 곳이다.
반 빌라는 개방적이고 공유되는 주거 시스템을 가지고 있다. 건축물의 작은 일부분은 건축주의 거주 공간이고, 나머지는 손님들과 공유하는 열린 공간이다. 건축가는 전통을 가진 장난 수향마을의 특징을 담아내면서도 자연과 연결되는 편안한 공간을 제안한다. 이들은 여러 개의 소규모 매스들로 나누었으며, 나아가 배치와 설계로 이 주거시설만의 새로운 질서를 확립했다. 정렬된 방식으로 흩어져 있는 볼륨은 공간적으로 독립적이지만 공간적으로는 서로 연결된다. 곳곳에 볼륨이 비워진 공간들은 자연은 내부로 침투할 수 있는 공간이며, 이로써 내부와 외부의 경계를 모호해진다. 직렬로 이어지는 공간들은 모두 10개의 독립적인 볼륨을 하나로 만든다. 각각의 볼륨에는 식당, 다실, 게스트룸의 공공적이고 사회적인 공간들이 포함되어 있다.
앞서 말했듯이 건축주를 위한 개인 거주공간도 포함되어 있는데, 이 공간은 수직적인 공간의 특성을 가진다. 1층에는 방들과 주요 기능 공간을 강변을 따라 엇갈린 형태로 배치해 각 객실마다 조망권과 필요한 프라이버시가 보장된다.2층의 공간이 더 개방적이고 자연스러워 보인다. 연속된 큰 지붕으로 나누어진 열 개의 흩어져 있는 상자는 멀리서 보면 작은 떠다니는 마을처럼 보인다. 1층의 정면은 대나무가 적층된 것이 특징인데, 이는 자연환경과 건축양식이 모두 잘 어우러지기 때문이다. 위층의 재질은 좀 더 순수한 분위기를 자아낸다. 이 층의 전체적인 공간은 담벼락을 위한 흰색 스터코와 무광택의 흰색 금속 지붕을 포함하여 전체적으로 소박함과 깔끔함을 보여주는 백색으로 꾸며져 있다.













Architects B.L.U.E. Architecture Studio
Location Kunshan, Suzhou, Jiangsu, China
Program Boutique Guesthouse
Building area 1,800㎡
Building scope 2F
Design period 2019. 1 - 10
Construction period 2019. 10 - 2021. 3
Completion 2021. 3
Principal architect / Project architect Shuhei Aoyama, Yoko Fujii, Yixin Yang, Yu Cao, Lu Chen
Client BAN Villa
Photographer Zhi Xia
해당 프로젝트는 건축문화 2021년 12월호(Vol. 487)에 게재되었습니다.
The project was published in the December, 2021 recent projects of the magazine(Vol. 487).
December 2021 : vol. 487
Contents : RECORDS MESSAGES OF SYMBIOSIS, CONNECTION, AND BALANCE WITHOUT WALLS 구획을 벗어나 보여지는 공생, 연결, 균형의 메시지들 : NEWS / COMPETITION / BOOKS : SKETCH VLADIVOSTOK S..
anc.masilwide.com
'Architecture Project > Multifamily' 카테고리의 다른 글
| SAENGGAK OF SONGHAK-RI (0) | 2022.04.05 |
|---|---|
| RED HOUSE (0) | 2022.03.28 |
| ZELLIGE (0) | 2022.03.04 |
| The Village (0) | 2022.03.03 |
| HERMINE (0) | 2022.03.02 |
마실와이드 | 등록번호 : 서울, 아03630 | 등록일자 : 2015년 03월 11일 | 마실와이드 | 발행ㆍ편집인 : 김명규 | 청소년보호책임자 : 최지희 | 발행소 : 서울시 마포구 월드컵로8길 45-8 1층 | 발행일자 : 매일



