
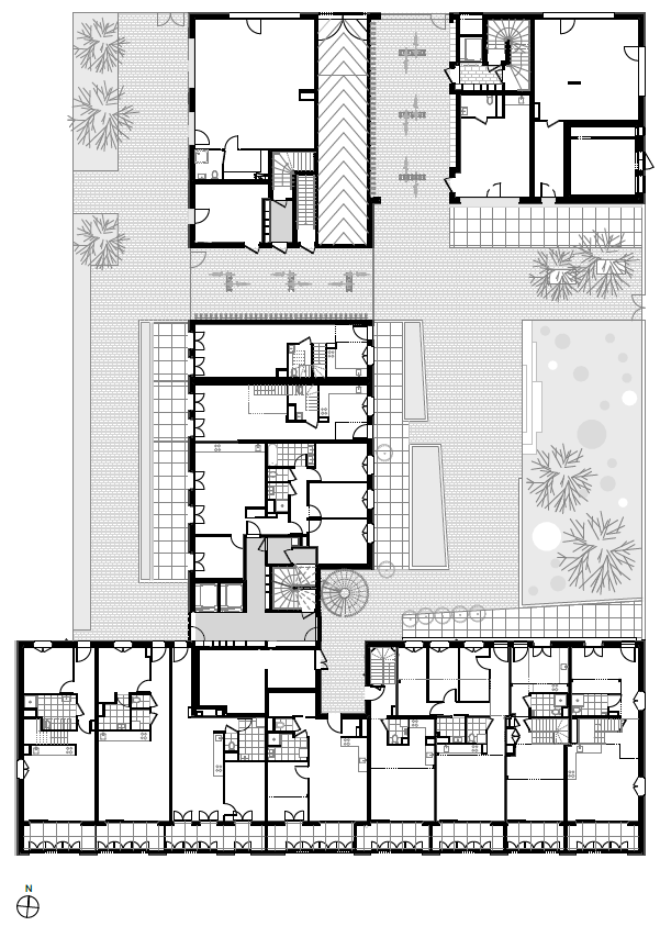
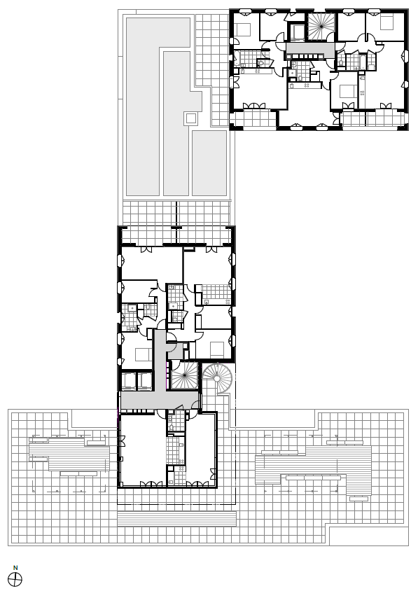
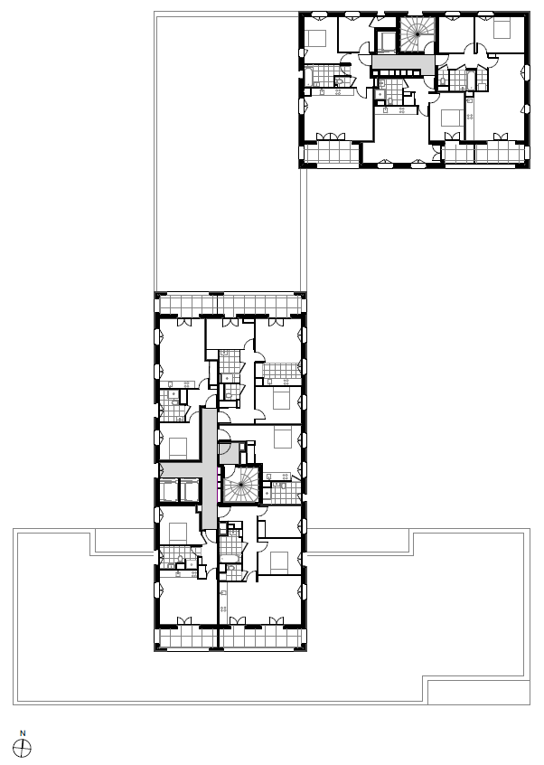
This 100 apartments project complex on Nantes island was designed through the collaboration of tectōne and tact architecture studios. Nantes island is a situated in Nantes city in western France and has been the center of the region industry for decades until the 90s when it was progressively abandoned. The project is part of the huge restructuration of this abandoned part of city that has started in 2000’s. In 2015 the architects where selected to lead the construction of 100 apartments counting 15 co-houses in the future quarter of Prairie au Duc. This project is very impacted by the fact that it combines three very different housing programs, social rents, collaborative and to-buy apartments. Our design concentrated on a collaborative approach, creating a great discussion between all the project actors, including all the cohousing families. Zellige project is composed of three compact volumes of four, six and twelve floors interacting with each other, responding to the urban planner’s request for high density. Sobriety and measured rigor are what has driven Zellige design, always looking for the simplest solution, refusing complexity and eccentricity. They concentrated their effort on creating meeting and common spaces: some within each program and others reaching for all the apartments, even expanding to the quarter and the city. A collaborative workshop, three common living spaces, two common terraces, one common garden, a laundry space and even a shared apartment are designed. One of the most interesting part of this building conception are the fifteen cohousing apartments. Indeed, the future inhabitant have been associated to the design of their apartment form the very beginning of the operation, even before the architect had been chosen. Thanks to that, these apartments are exceptionally adapted to them and their way of life.

낭트에 있는 이 100세대의 아파트 프로젝트 단지는 텍톤과 택트 건축 스튜디오가 합작으로 설계했다. 낭트 섬은 프랑스 서부의 낭트시에 위치하고 있으며, 점차적으로 쇠퇴해진 90년대까지 수십 년 동안 지역 산업의 중심지였다. 2000년대에 시작된 우리 프로젝트는 이 버려진 도시의 거대한 재건의 일부이다. 2015년에 텍톤과 텍트 건축 스튜디오는 쁘헤히 오 듀크(Prairie au Duc)의 향후 분기에 15개의 공동 주택을 포함하는 100개의 아파트 건설을 이끄는 건축사로 선택됐다. 이 프로젝트는 세 종류의 서로 다른 주택 프로그램, 사회적 임대, 공동 주택 및 구입 아파트를 결합한다는 사실에 큰 영향을 받았다. 디자인은 모든 공동 주택 가족을 포함하여 모든 프로젝트 주체들 사이에 훌륭한 토론을 만드는 협업 접근 방식에 집중했다. 젤리지는 고밀도에 대한 도시 계획 자의 요청에 따라 서로 상호 작용하는 4층, 6층 및 12층의 3개의 작은 볼륨으로 구성된다. 절제와 신중한 엄격함이 젤리지 디자인의 원동력이며, 항상 가장 단순한 대안을 찾고 복잡함과 특이함을 거부한다. 텍톤과 텍트 스튜디오는 회의 및 공용 공간을 만드는 데 노력을 기울였다. 이 노력의 일부는 각 프로그램 내에 있고 다른 일부는 모든 아파트에 도달하며 심지어 분기와 도시로 확장됐다. 공동작업장, 3개의 공동 생활 공간, 2개의 공용 테라스, 1개의 공용 정원, 세탁 공간 및 공유 아파트가 설계됐다. 이 건물 개념의 가장 흥미로운 부분 중 하나는 15세대의 공동 주택 아파트다. 작업 초기, 심지어 건축가가 정해지기 전에도 실제로 이곳의 미래 거주자는 아파트 형태의 디자인에 참여했다. 덕분에 이 아파트는 그들과 그들의 생활 방식에 매우 잘 적응한다.























Architects tectone architectes urbanistes, tact architectes
Location Nantes, France
Site area 2,409㎡
Building area 1,338㎡
Gross floor area 6,825㎡
Building scope B1, 11F
Construction period 2017. 05 - 2020. 07
Completion 2020
Principal architect Eienne Chevreul-Demas, Pascal Chombart de Lauwe / Maële Tessier
Project architect Etienne Chevreul-Demas / Maële Tessier
Design team Etienne Chevreul-Demas / Maële Tessier
Structural engineer IBA
Electrical engineer Ing. ieries
Construction Blanloeil - CHA - Ploquin - Engie Axima - Baies Alu - Cybstores - Coignard - CMBS - Rossi - DBL - L&R Métallerie - ABH - Enelat - IDverde
Client Maison Familiale de Loire-Atlantique, CDC habitat, Les Ruches(co-housing)
Photographer Cyrille Lallement, Franck Badaire
해당 프로젝트는 리빙즈, 디테일 02호에 게재되었습니다.
The project was published in LIVINGS, Detail 02
[BOOK] LIVINGS, Detail 리빙즈, 디테일 01호, 02호
단행본 발행 67개의 형태와 라이프스타일을 담은 주거공간, 국내외 "디테일한 주택 프로젝트"의 엮음
www.masilwide.com
'Architecture Project > Multifamily' 카테고리의 다른 글
| RED HOUSE (0) | 2022.03.28 |
|---|---|
| BAN VILLA (0) | 2022.03.10 |
| The Village (0) | 2022.03.03 |
| HERMINE (0) | 2022.03.02 |
| Viale Giulini Affordable Housing (0) | 2022.02.28 |
마실와이드 | 등록번호 : 서울, 아03630 | 등록일자 : 2015년 03월 11일 | 마실와이드 | 발행ㆍ편집인 : 김명규 | 청소년보호책임자 : 최지희 | 발행소 : 서울시 마포구 월드컵로8길 45-8 1층 | 발행일자 : 매일



