
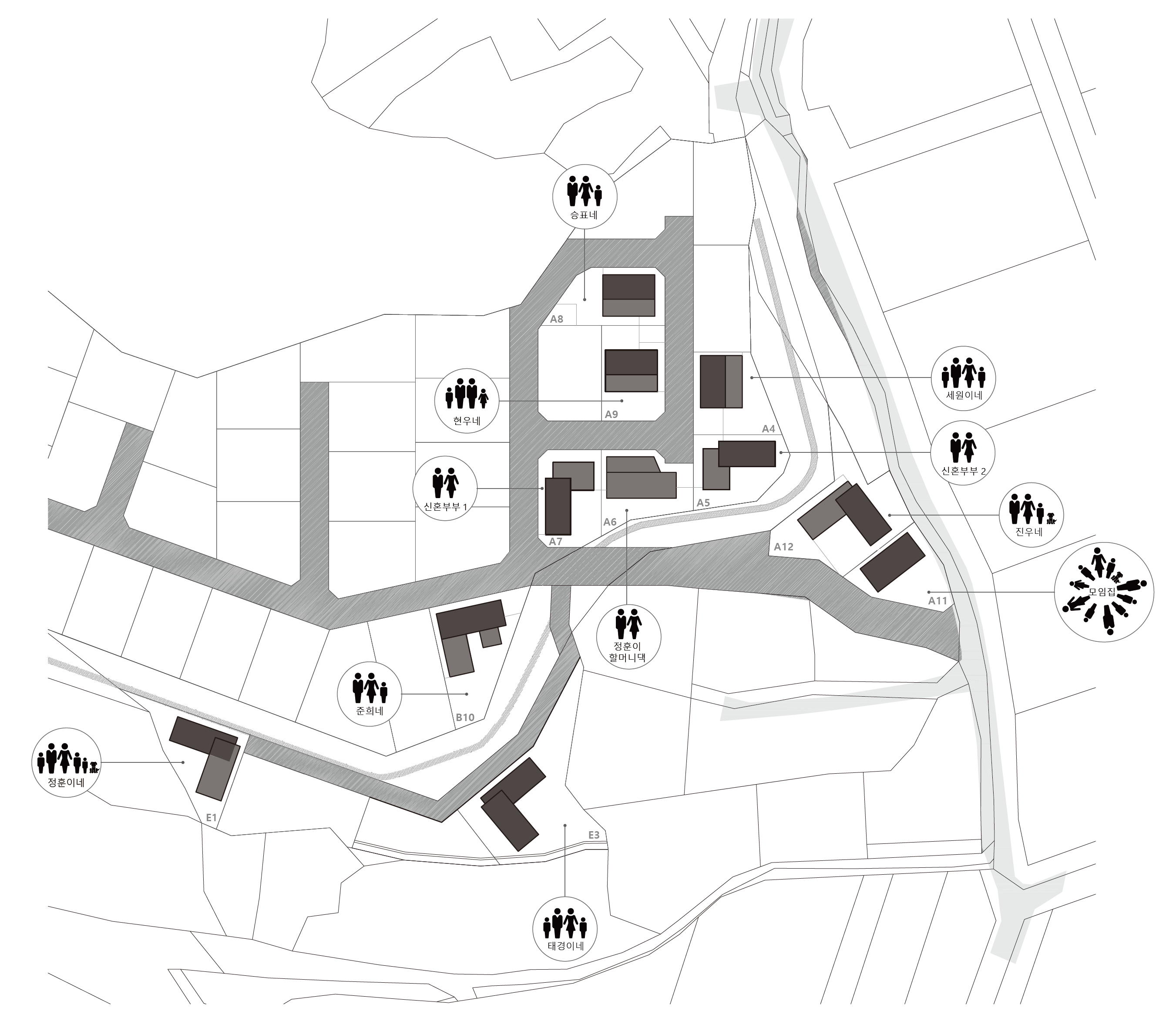
Saenggak of Songhak-ri in Yangpyeong is a town community and townhouse made to allow parents, who share concerns and thoughts on a good environment that the children have to live in, to share their values and raise their children together. It began with the idea of seven families, whose children go to a kindergarten that promotes nature-friendly education, to make a neighborhood friend that the children can naturally visit without the help of parents. The reason that the families, each with different budgets and preferences, wanted to build a house together was to share the stories of each house and take time to understand each other more through the process of building a house.
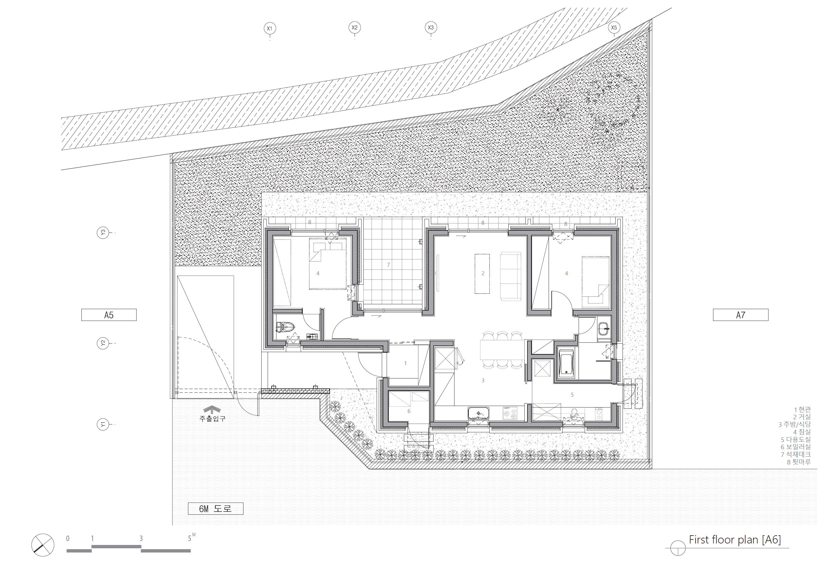
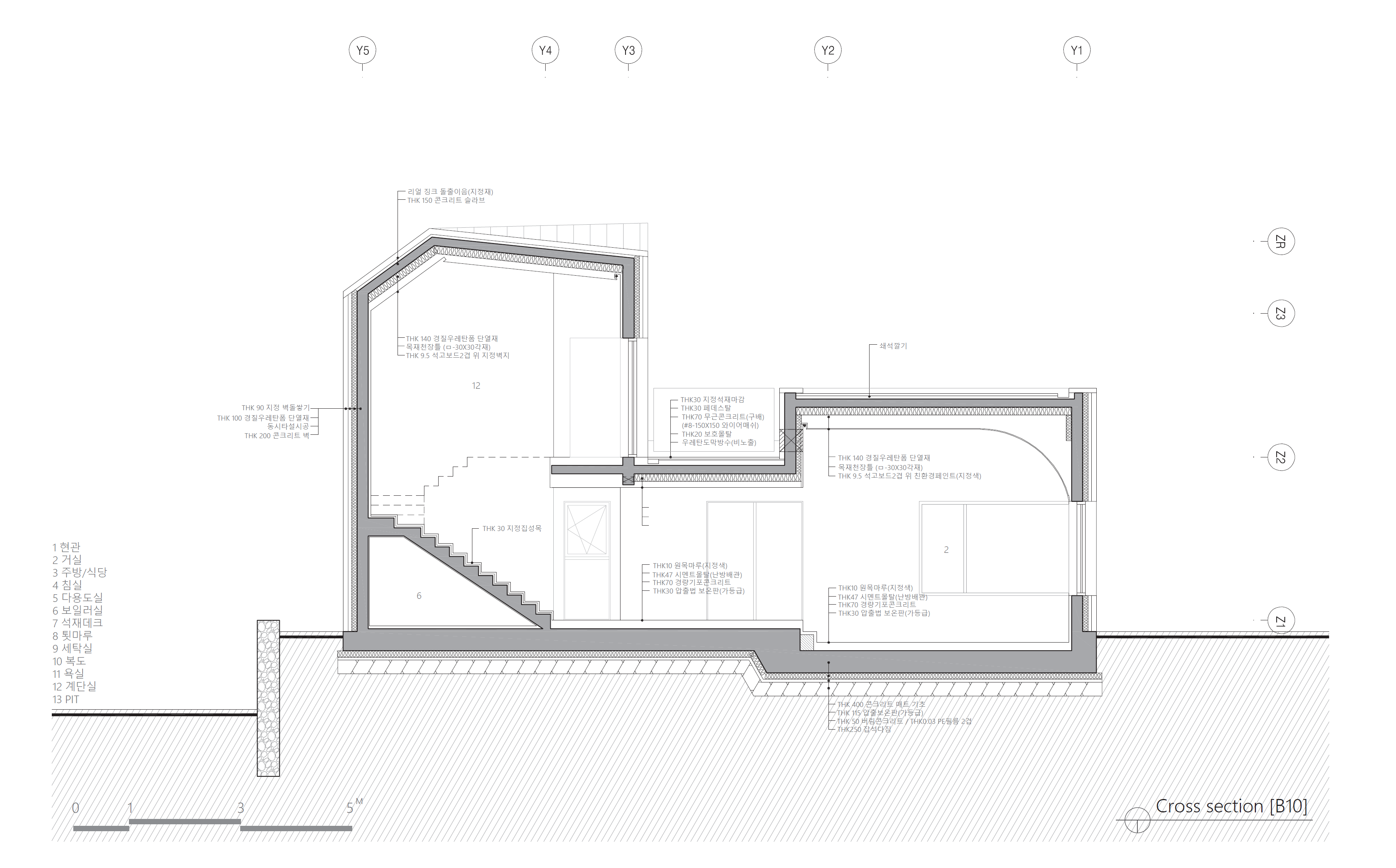
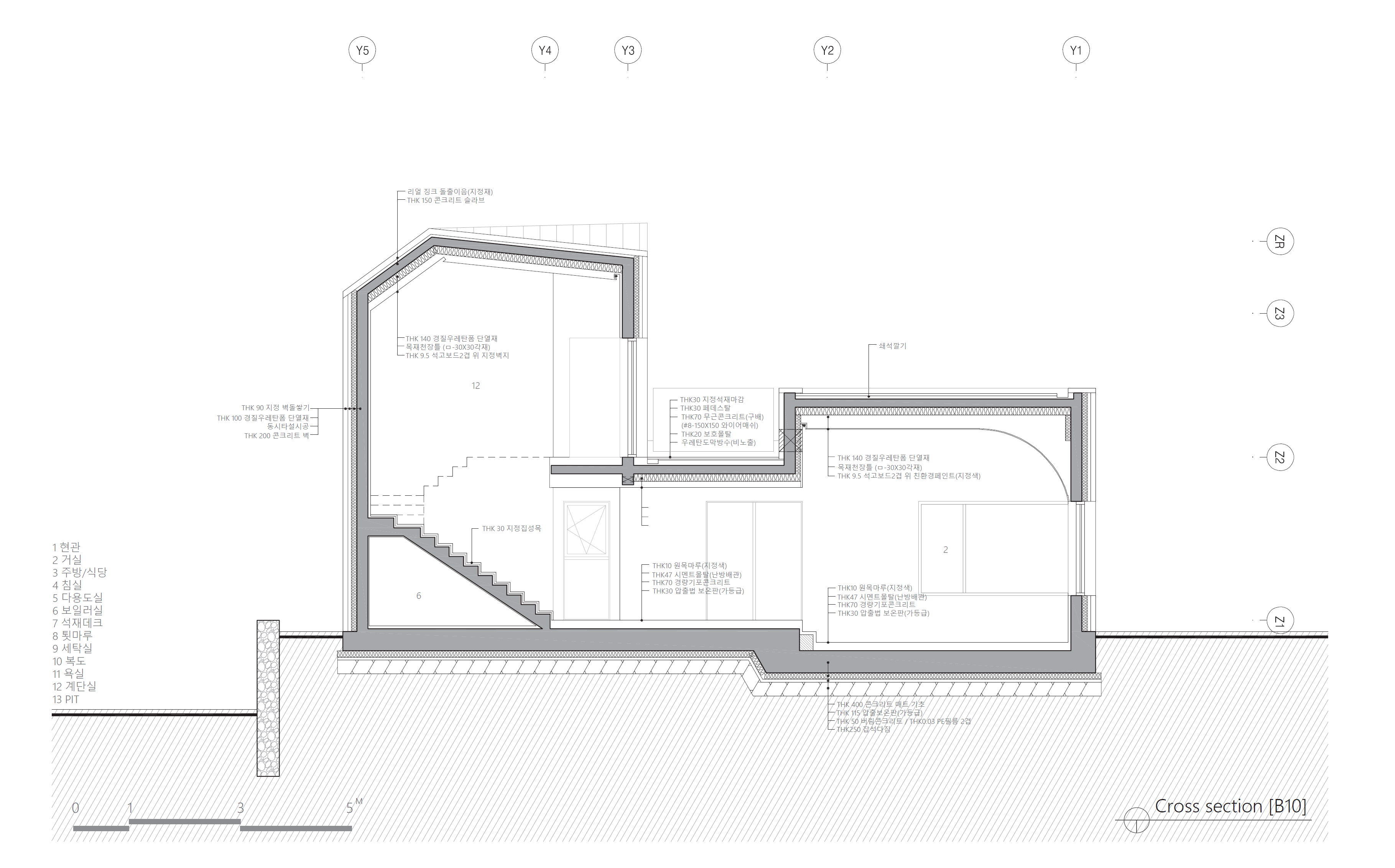
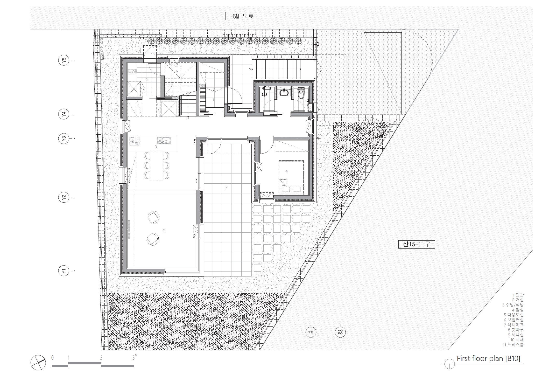
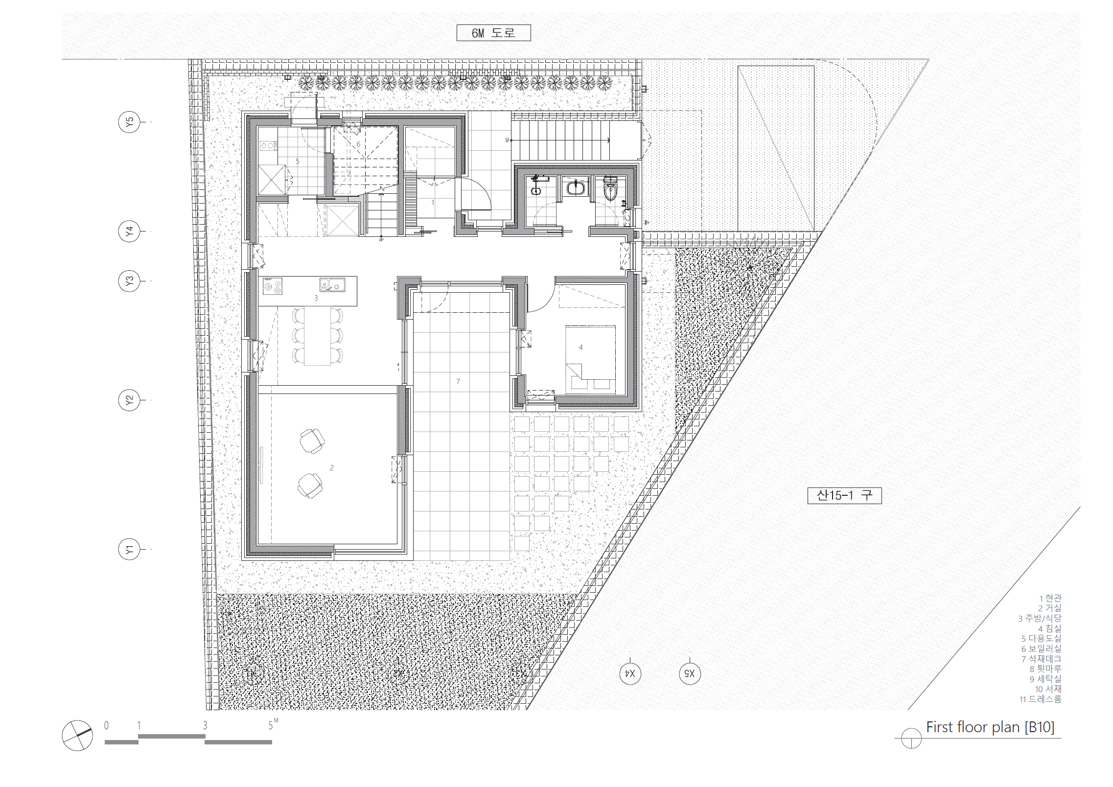
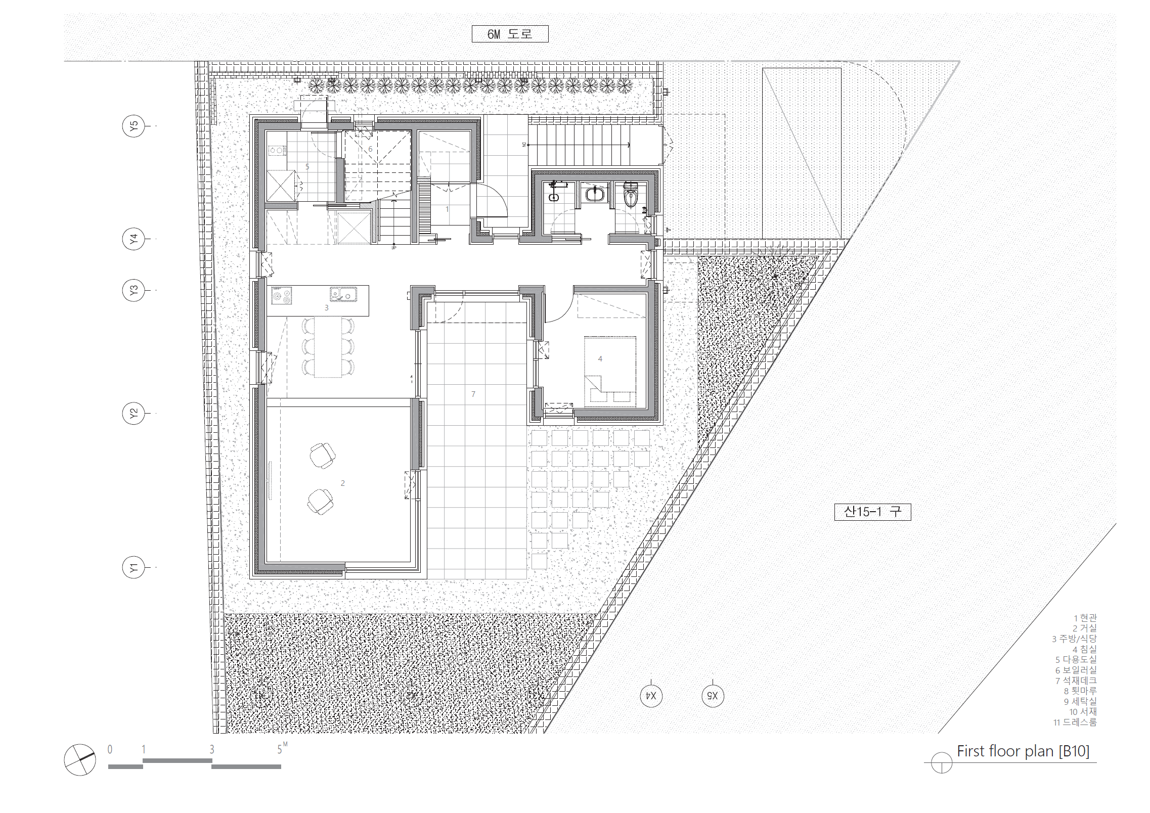
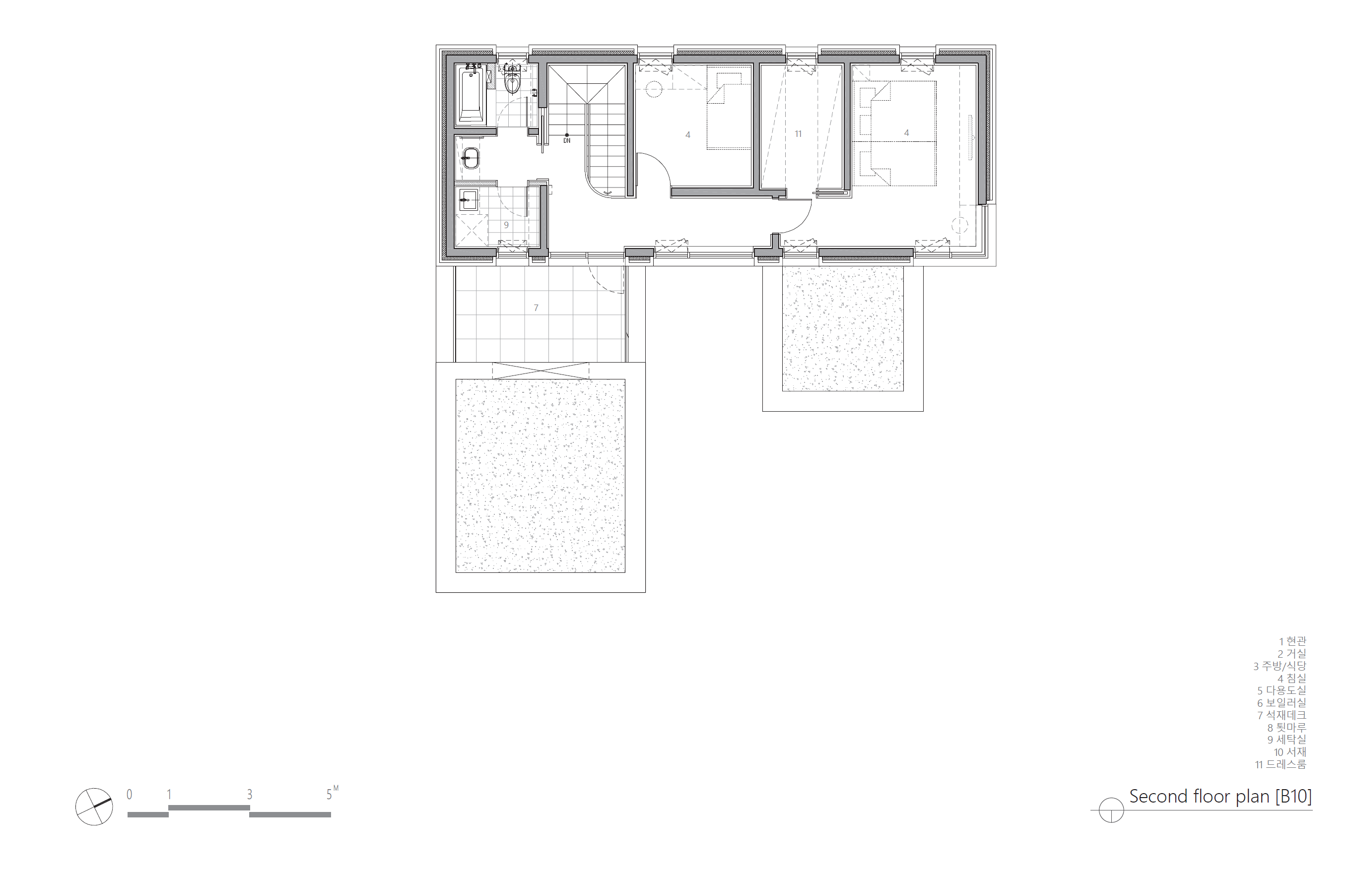
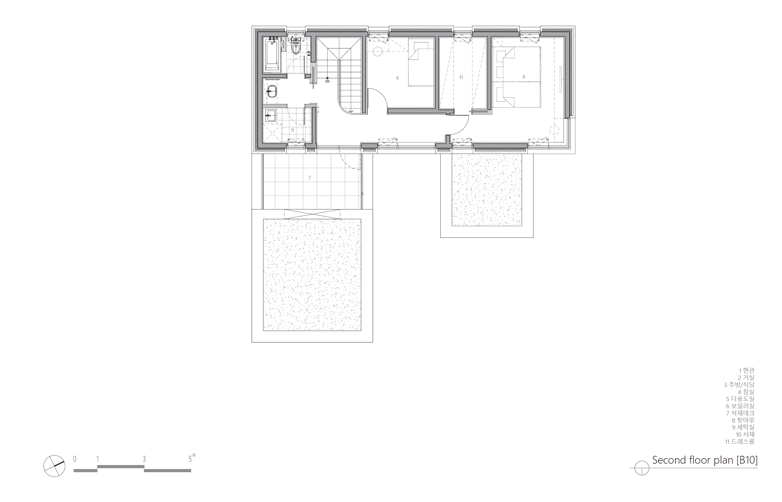
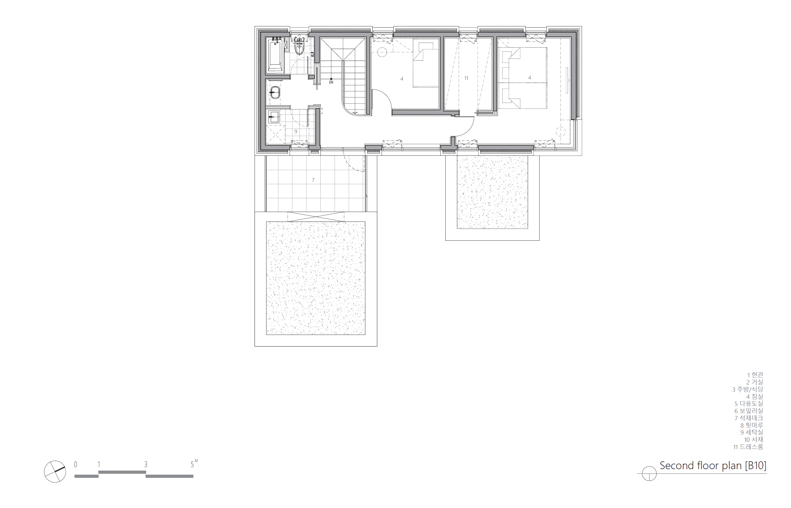
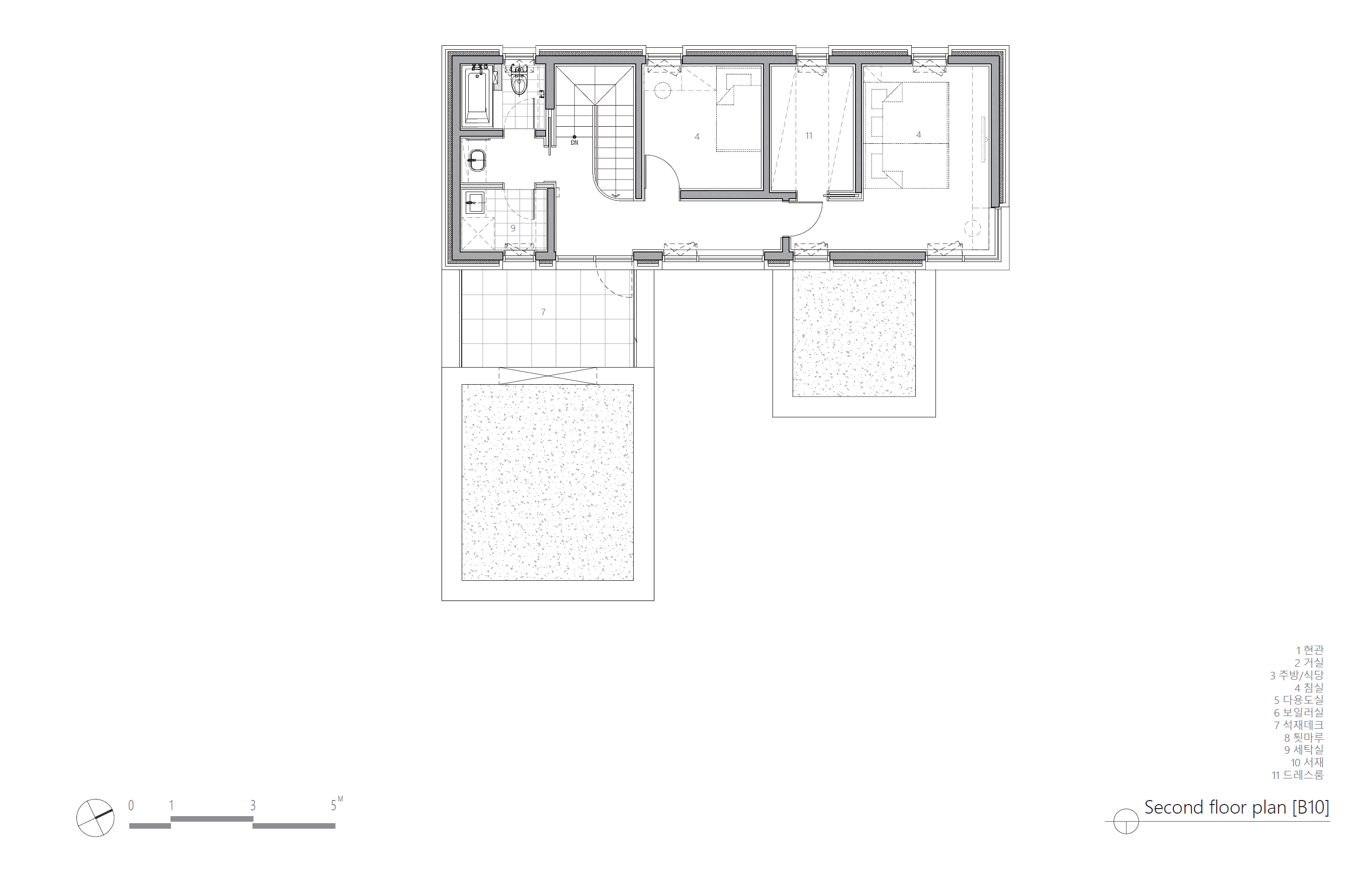
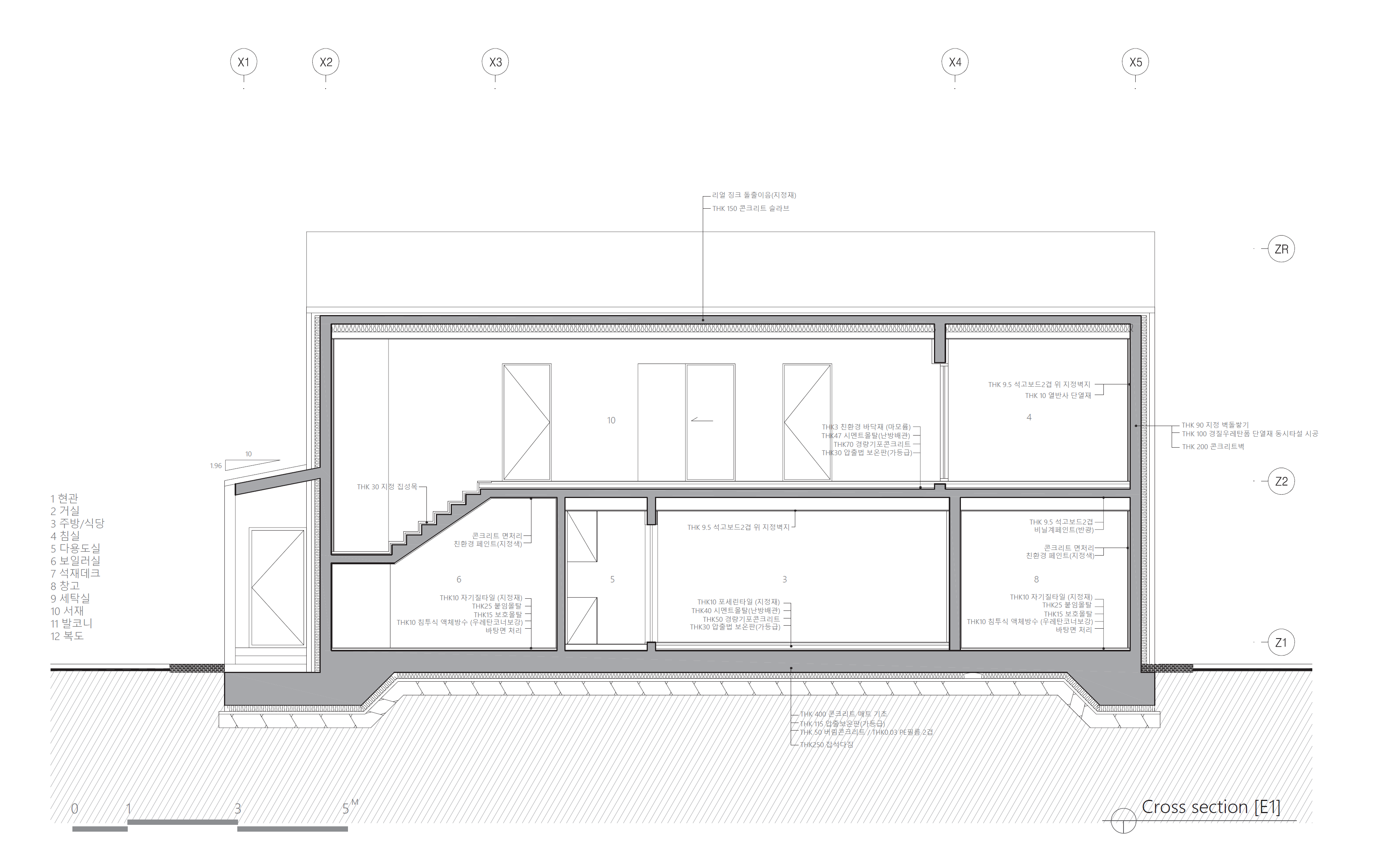
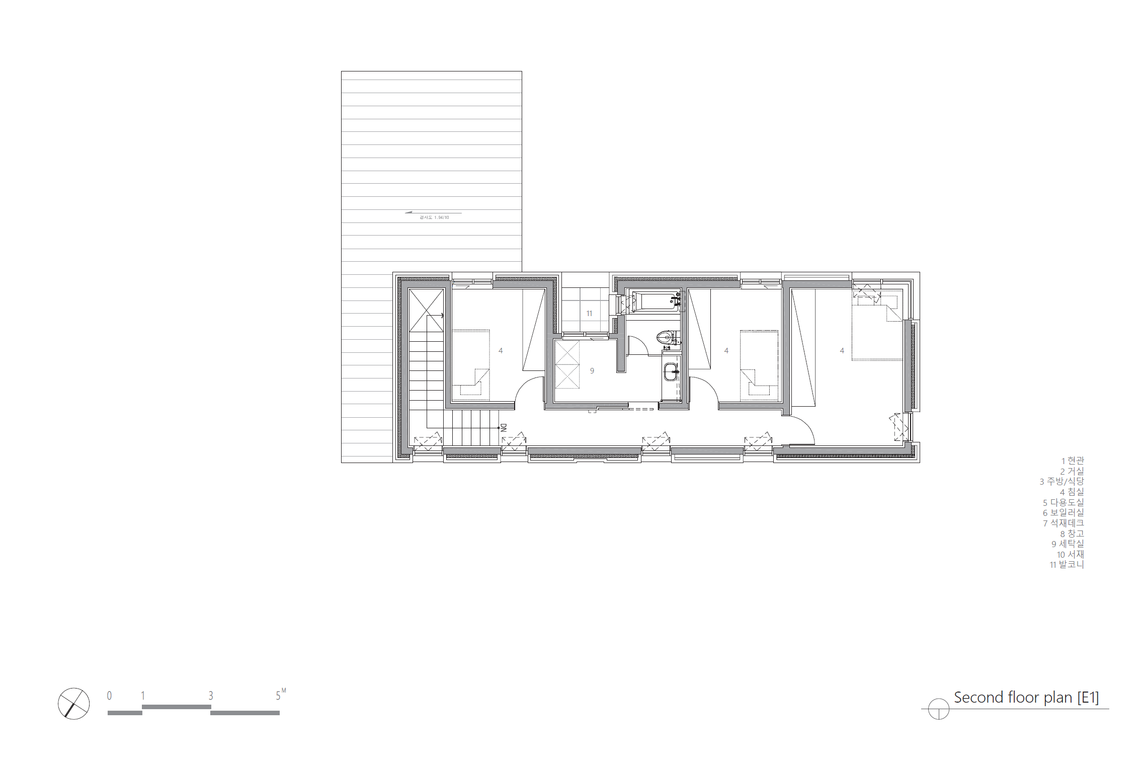
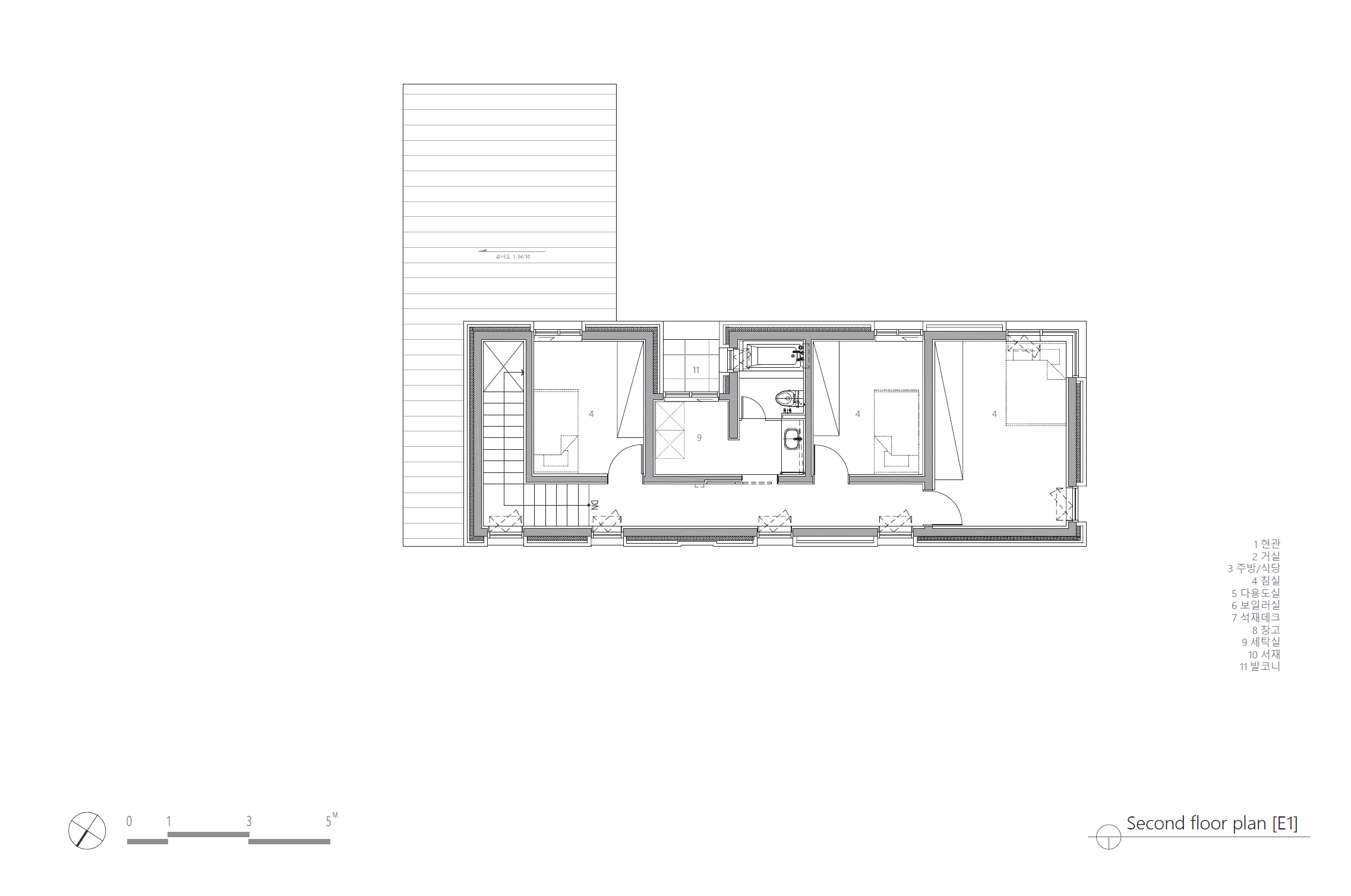
The average area of the sites was around 80 pyeongs and it was not a large size for a detached housing site. Unlike existing townhouse complexes, where the same types of houses are built, the shape of the seven sites were all different and conditions such as the direction of the site, view, etc. were all different. After classifying the site conditions and finding out the preferences of the families through a survey, the form of the house was largely proposed in three types: the square-shaped type, L-shaped type and C-shaped type. The square-shaped type is an economically reasonable type that can be applied on a small and well-organized square site, and the L-shaped type is a rather large-sized type that can be applied on an atypical site with uneven width and where the direction of the site and the direction of view are opposite each other. The C-shape type has a large and open site, and it is a type with a courtyard space where privacy can be secured. Although they are houses of different sizes and forms, the materials and details were unified as an attempt to create a harmonious townscape. The interior of the houses that began with three types, unlike the unity of the exterior, began to gradually change reflecting the preferences of the families, and everyone is each living in their own different house.
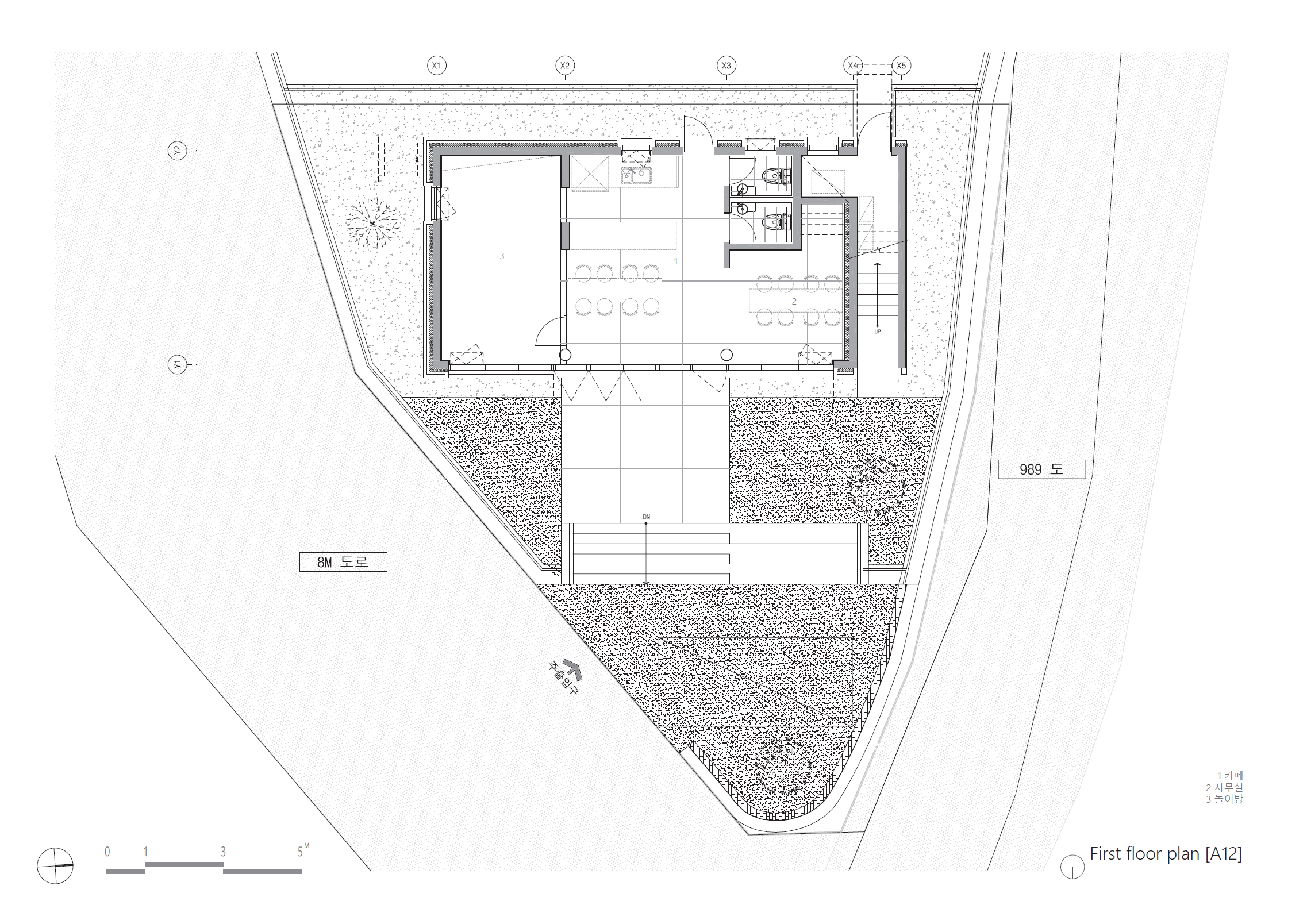
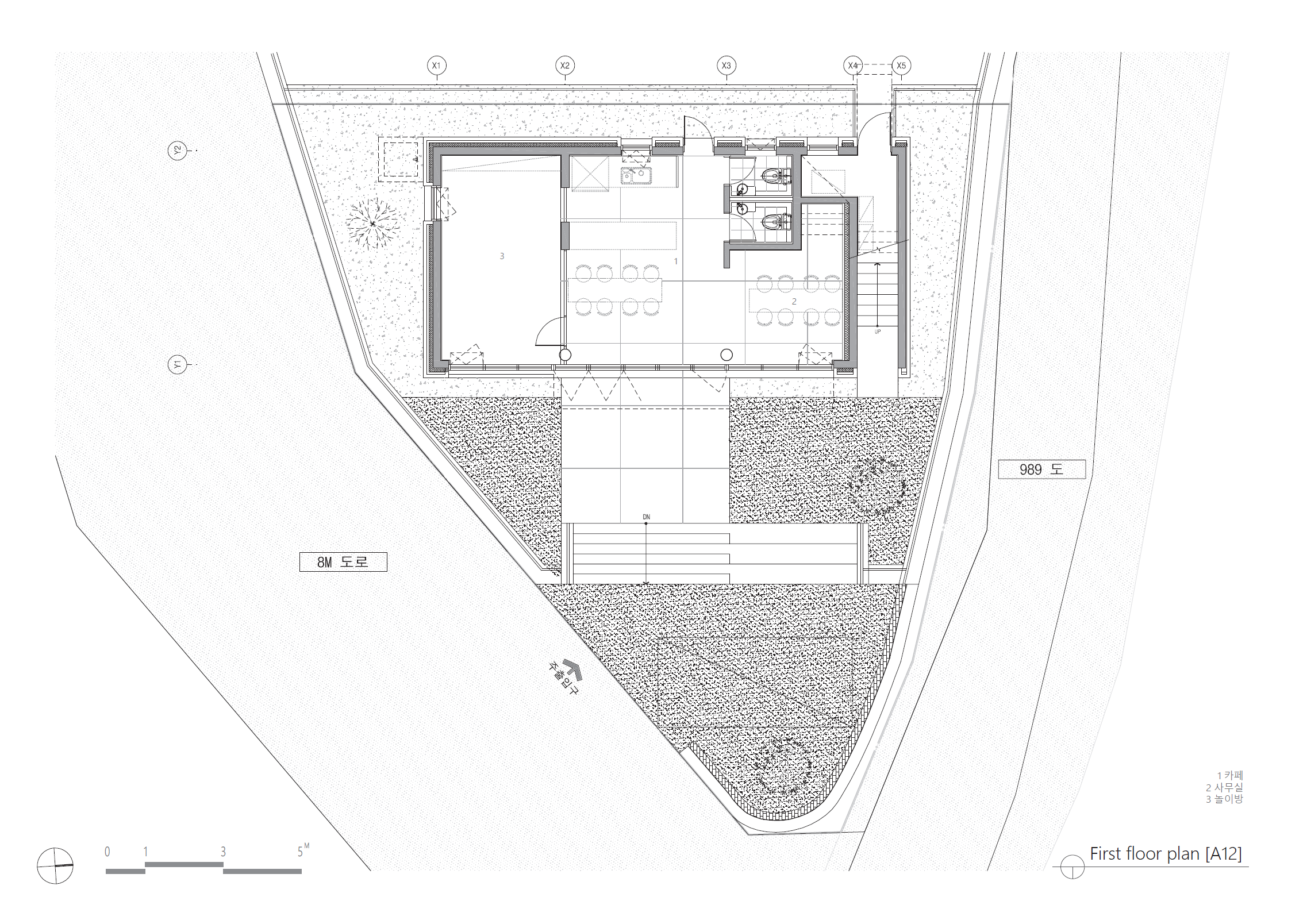
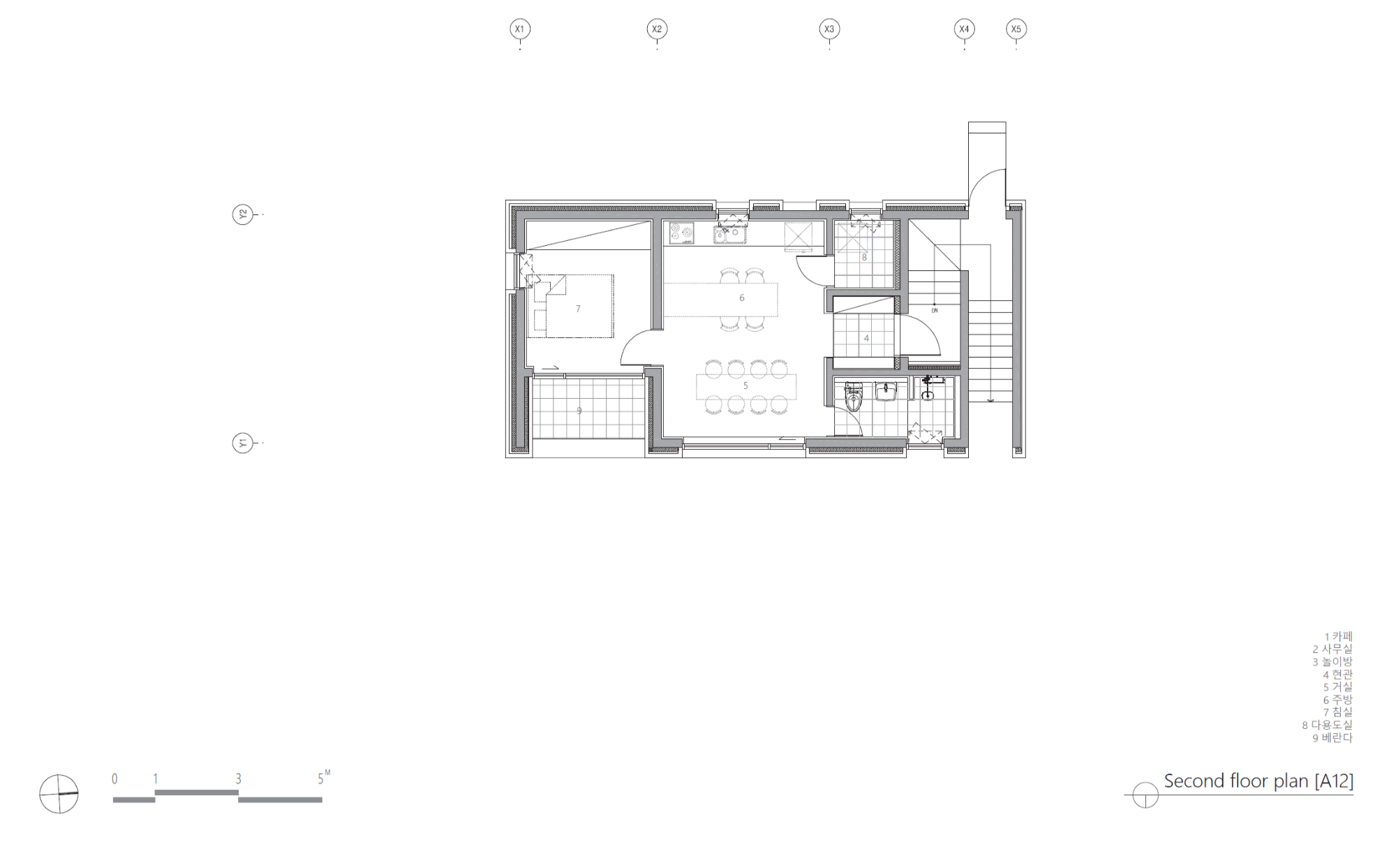
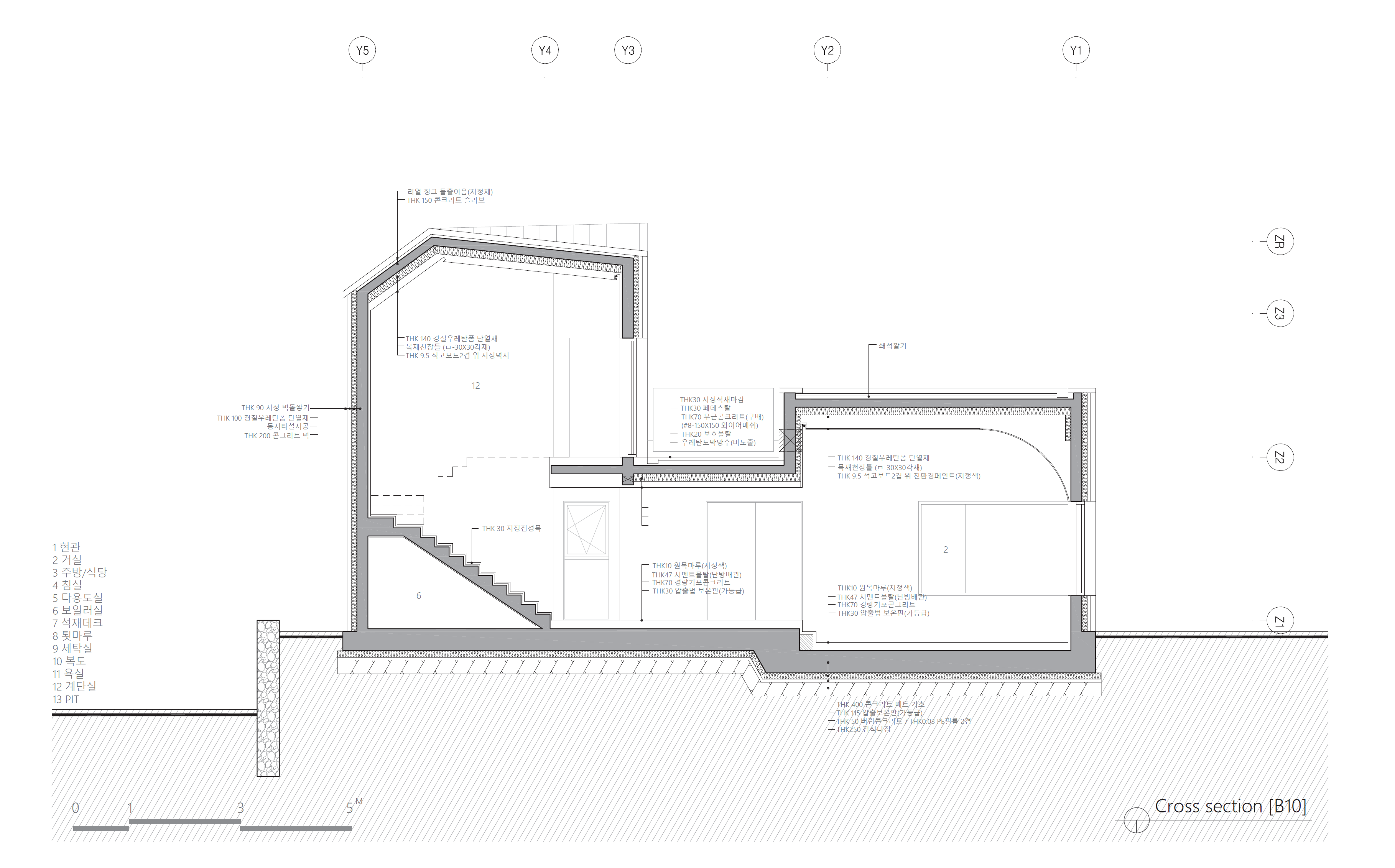
Saenggak of Songhak-ri is a town where people live together and share. Several architectural devices that allow the town residents to interact and communicate with each other were proposed. The building named ‘Saenggak (thought)’ situated at the entrance of the town is a central space for small and large events that take place in the town. In the community facility, there is a small space where the children can gather and draw pictures and study, as well as a cafe where people can drink tea and chat. Also, there is a guest house where a visitor can stay at when they visit a house of the town resident on the second floor. In all houses, toenmarus (traditional wooden porches) in hanoks of the past were embodied in stone. These are reflective spaces, where neighbors passing by can sit for a moment and chat with the owner. Each house has a different type of semi-exterior space other than the toenmaru depending on the type. The semi-exterior spaces are devices that create a point of contact with neighbors while protecting the private aspects. The houses that are each arranged differently on the heteromorphic site become a good landscape for each other. Since the yard of each house is visually connected to other houses, more points of contact are created.

양평 송학리의 생각은 아이들이 살아가야 할 좋은 환경에 대한 고민을 나누는 부모님들이 가치를 공유하며 아이를 함께 키울 수 있도록 만든 마을 공동체다. 자연친화적 교육을 지향하는 유치원에 다니는 일곱 가족이 부모의 도움 없이도 자연스럽게 친구 집에 놀러 갈 수 있는 동네 친구를 만들어주자는 생각에서 시작됐다. 예산과 취향이 다른 가족들이 함께 집을 짓고자 했던 것은 집을 짓는 과정을 통해 집집마다의 이야기를 나누고 서로를 좀 더 이해하는 시간을 갖고자 했던 것이다.
대지의 평균 면적은 80평 정도였고 단독주택 용지로는 크지 않은 규모의 땅이었다. 동일한 형식의 집들이 들어서는 기존의 타운하우스 단지와 달리 일곱 개의 필지의 형태가 모두 제각각이었으며, 향과 조망 등의 조건들도 모두 달랐다. 건축가는 일곱 집의 의견을 모아 하나의 프로토타입을 적용하기에는 힘든 조건이었기에 대지 조건을 분류하고, 가족들의 성향을 설문지를 통해 파악하여 집의 형태를 크게 ㅁ자형, ㄴ자형, ㄷ자형 세 가지 타입으로 제안했다. ㅁ자형은 작은 규모의 정방형으로 잘 정리된 대지에 적용할 수 있는 경제적으로 합리적인 유형이며, ㄴ자형은 대지의 폭이 일정하지 않고 향과 조망의 방향이 반대인 이형의 대지에 적용할 수 있는 다소 규모가 큰 타입이다. ㄷ자형은 대지의 규모가 크고 개방성이 강한 대지에 프라이버시를 확보할 수 있는 중정 공간을 가진 유형이다. 서로 다른 크기와 형태의 집이지만 재료와 디테일이 통일되어 조화로운 마을 풍경을 만든다. 통일된 외관과는 달리 세 가지 타입으로 시작한 집의 내부는 가족들의 취향을 반영하여 조금씩 다른 모습을 가지고 있다.
송학리의 생각은 모여 살면서 함께 나누는 마을이다. 마을 주민들끼리 서로 교류하고 소통할 수 있는 몇 가지 건축적 장치들을 제안한다. 마을 초입에 위치한 ‘생각’이라는 이름의 건물은 마을에서 일어나는 크고 작은 행사의 중심 공간이다. 커뮤니티 시설에는 아이들이 삼삼오오 모여서 그림도 그리고, 공부도 하는 작은 공간과 차를 마시며 이야기를 나눌 수 있는 카페가 있고, 2층은 마을 주민의 집에 손님들이 찾아오면 숙박할 수 있는 게스트하우스가 있다. 이러한 모임집 덕분에 마을 주민들은 각자의 생활 공간의 프라이버시를 지키면서 더 활발하게 교류하고 있다. 모든 집에는 과거 한옥에 있었던 툇마루가 석재로 구현됐다. 툇마루는 집 안의 연장인 동시에 마당의 연장이기도 한 공간이다. 지나가던 이웃은 잠시 이곳에 걸터앉아 집주인과 이야기를 나눌 수 있다. 각 집에는 툇마루 이외에 타입별로 다른 유형의 반외부 공간이 존재한다. ㅁ자형에는 지붕이 덮인 포치 공간이, ㄴ·ㄷ자형에는 응접실과 이어지는 넓은 석재 데크가 있다. 이러한 반외부 공간들은 사적 영역을 지키면서 이웃과의 접점을 만들어주는 장치다. 이형의 대지에 각기 다르게 배치된 집은 서로의 좋은 풍경이 되고, 각 집의 마당은 다른 집과 시각적으로 연결되어 있어 좀 더 많은 접점의 순간을 만들어 준다. 아이들은 각자의 마당에서 친구들의 집을 살피며 눈이 마주치면 손짓하고 그렇게 놀이는 시작된다.


























Archotects SOSU ARCHITECTS
Location Songhak-ri, Gangsang-myeon, Yangpyeong-gun, Gyeonggi-do, Republic of Korea
Site area 262.00㎡ ~ 448.13㎡
Building area TYPE AS-28 : 92.79㎡
Building area TYPE AD-38 : 77.26㎡
Building area TYPE LD-45 : 93.76㎡
Building area TYPE CD-45 : 111.69㎡
Building area TYPE GS-38 : 65.72㎡
Gross floor area TYPE AS-28 : 92.79㎡
Gross floor area TYPE AD-38 : 123.61㎡
Gross floor area TYPE LD-45 : 148.86㎡
Gross floor area TYPE CD-45 : 145.37㎡
Gross floor area TYPE GS-38 : 125.27㎡
Building scope 1~2F
Building to land ratio 22.09%~32.73%
Floor area ratio 33.22% ~53.63%
Construction period 2018. 04 - 2020. 05
Completion 2018. 09 - 2020. 09
Principal architect Mihee Kim
Project architect Mihee Kim, Seokhong Go
Design team Yeseul Hwang, Esther Seo, Hyejin Kim, Byeongjun Kim
Structural engineer Hangil Structural Engineering
Mechanical engineer Kunchang Engineering
Electrical engineer Ellim Engineering
Construction RIAN Construction
Photographer studio espacio, SOSU ARCHITECTS
해당 프로젝트는 리빙즈, 디테일 02호에 게재되었습니다.
The project was published in LIVINGS, Detail 02
[BOOK] LIVINGS, Detail 리빙즈, 디테일 01호, 02호
단행본 발행 67개의 형태와 라이프스타일을 담은 주거공간, 국내외 "디테일한 주택 프로젝트"의 엮음
www.masilwide.com
'Architecture Project > Multifamily' 카테고리의 다른 글
| 1+4 HOUSE (0) | 2022.04.07 |
|---|---|
| Y HOUSE (0) | 2022.04.06 |
| RED HOUSE (0) | 2022.03.28 |
| BAN VILLA (0) | 2022.03.10 |
| ZELLIGE (0) | 2022.03.04 |
마실와이드 | 등록번호 : 서울, 아03630 | 등록일자 : 2015년 03월 11일 | 마실와이드 | 발행ㆍ편집인 : 김명규 | 청소년보호책임자 : 최지희 | 발행소 : 서울시 마포구 월드컵로8길 45-8 1층 | 발행일자 : 매일



