
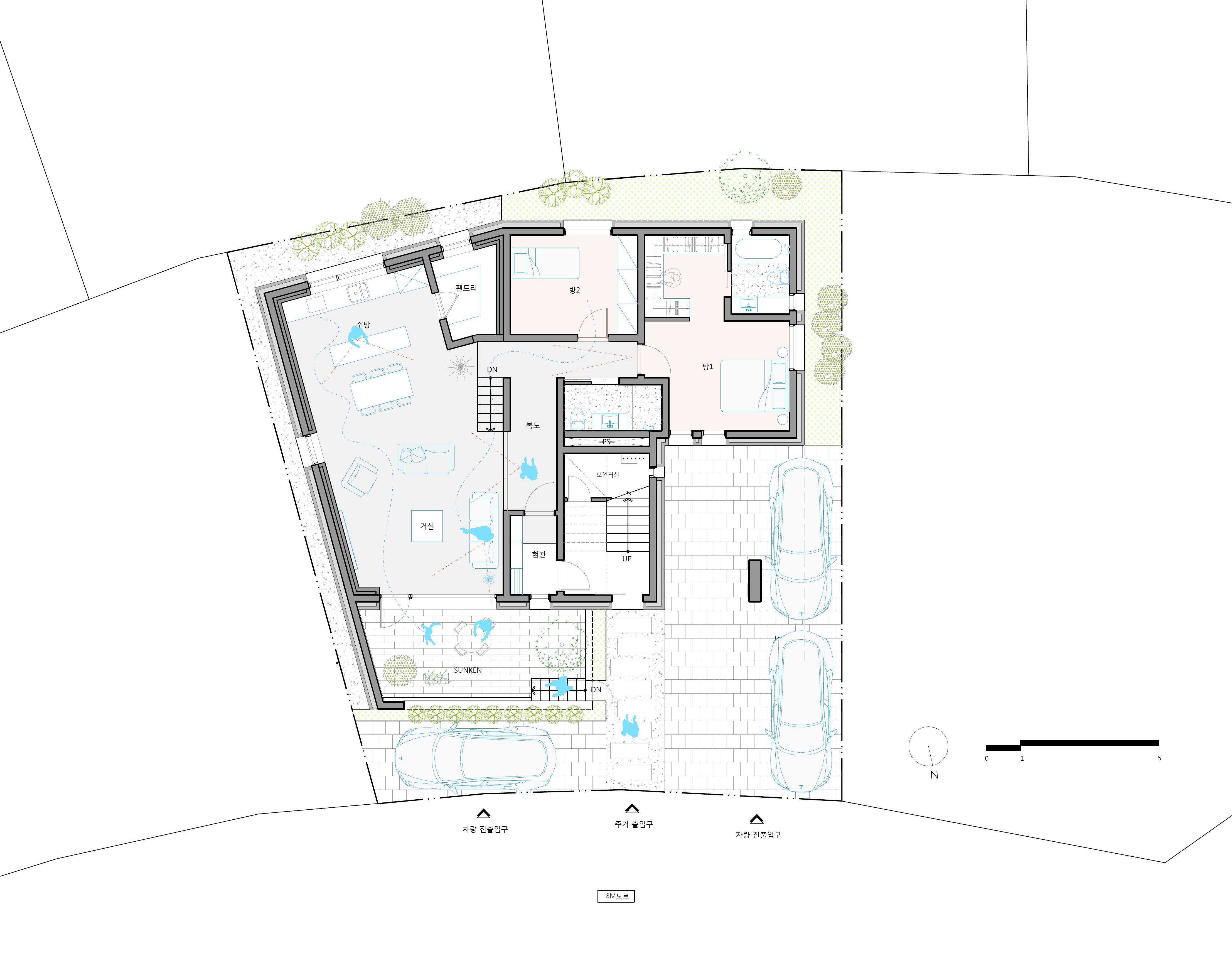
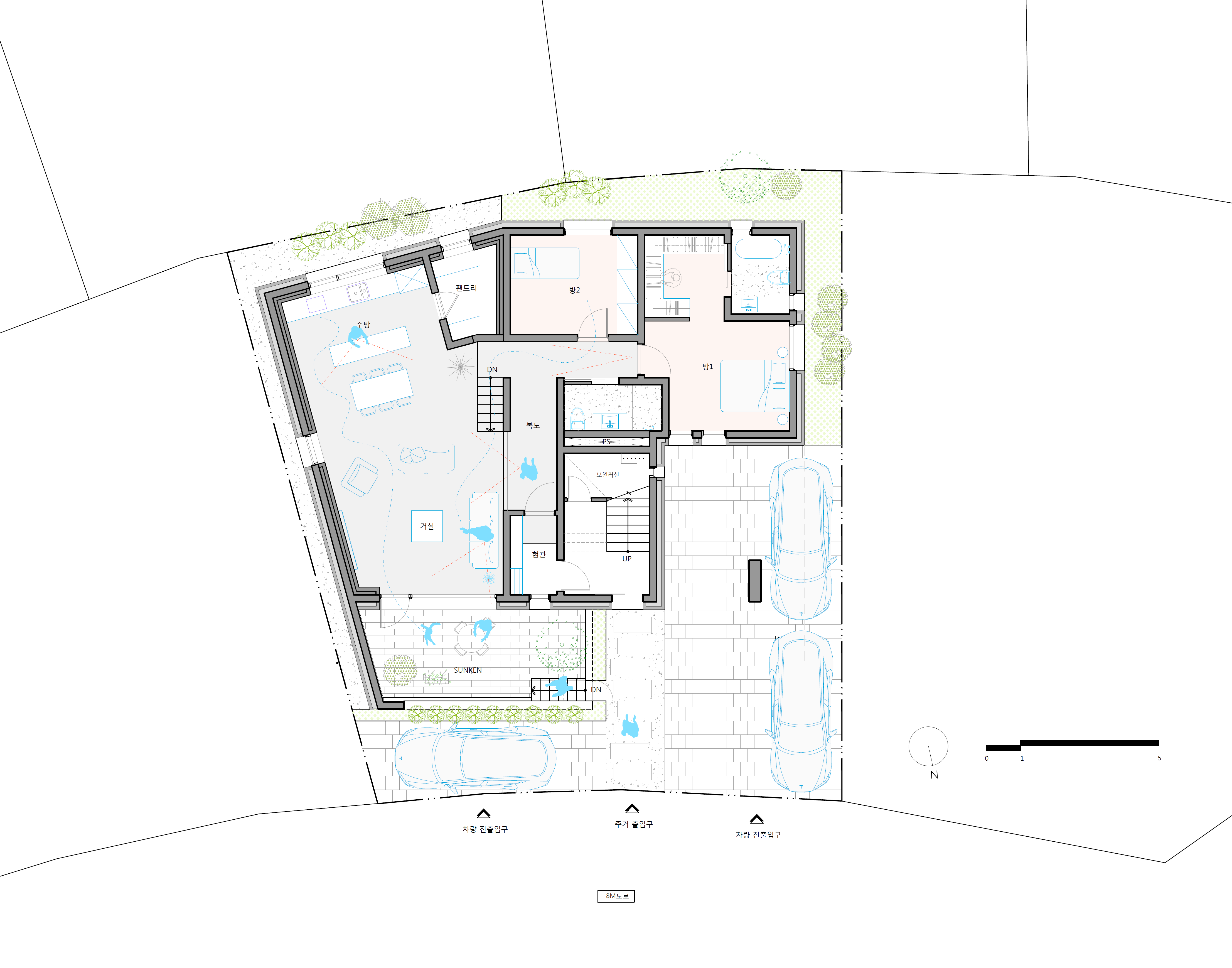
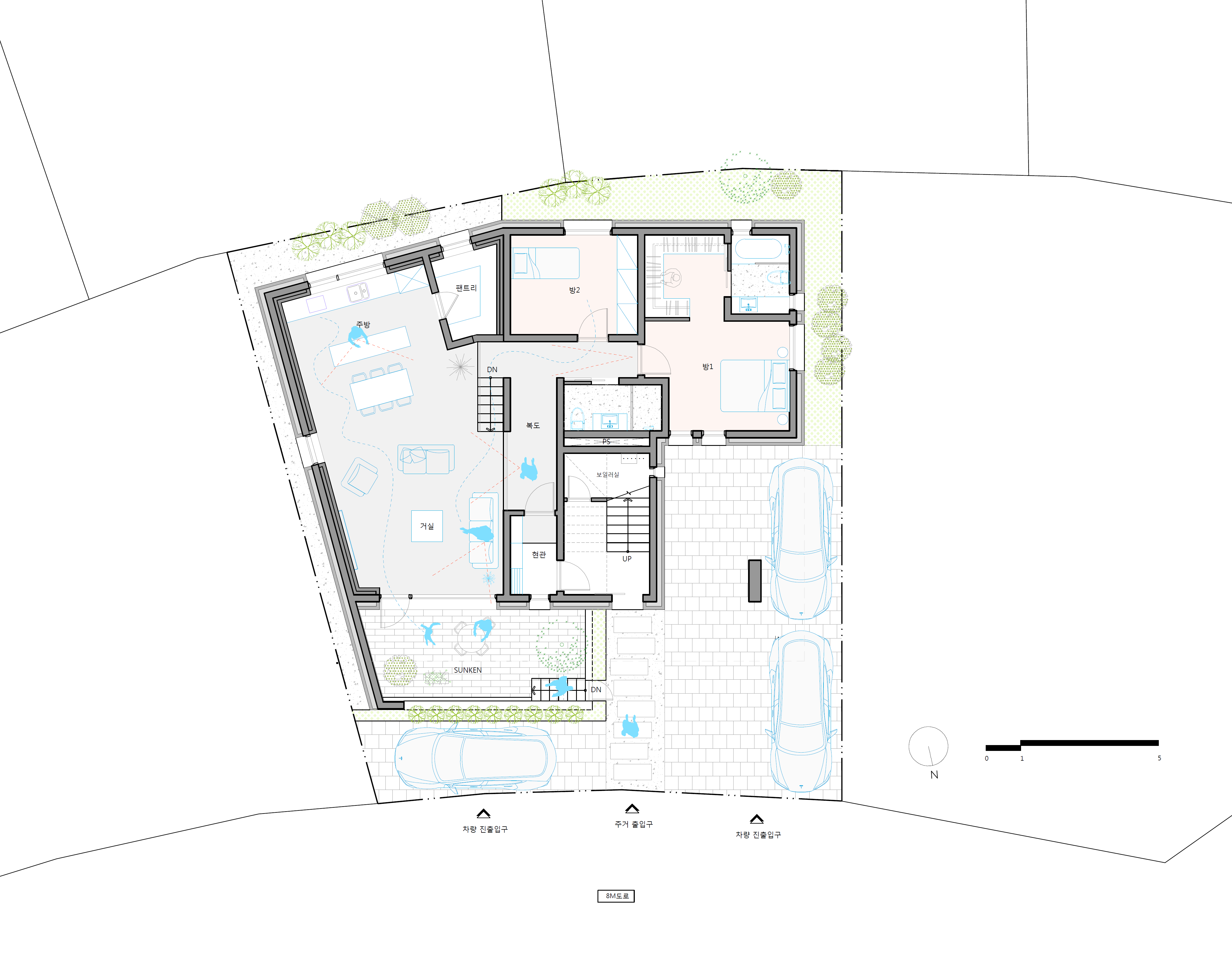
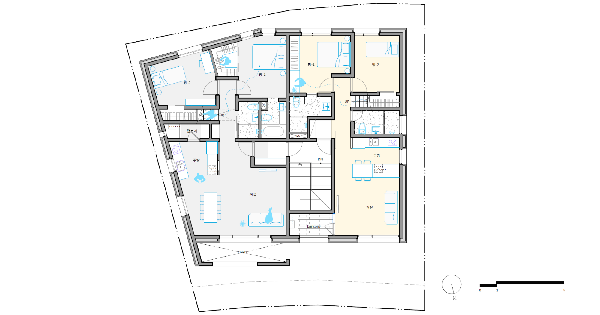
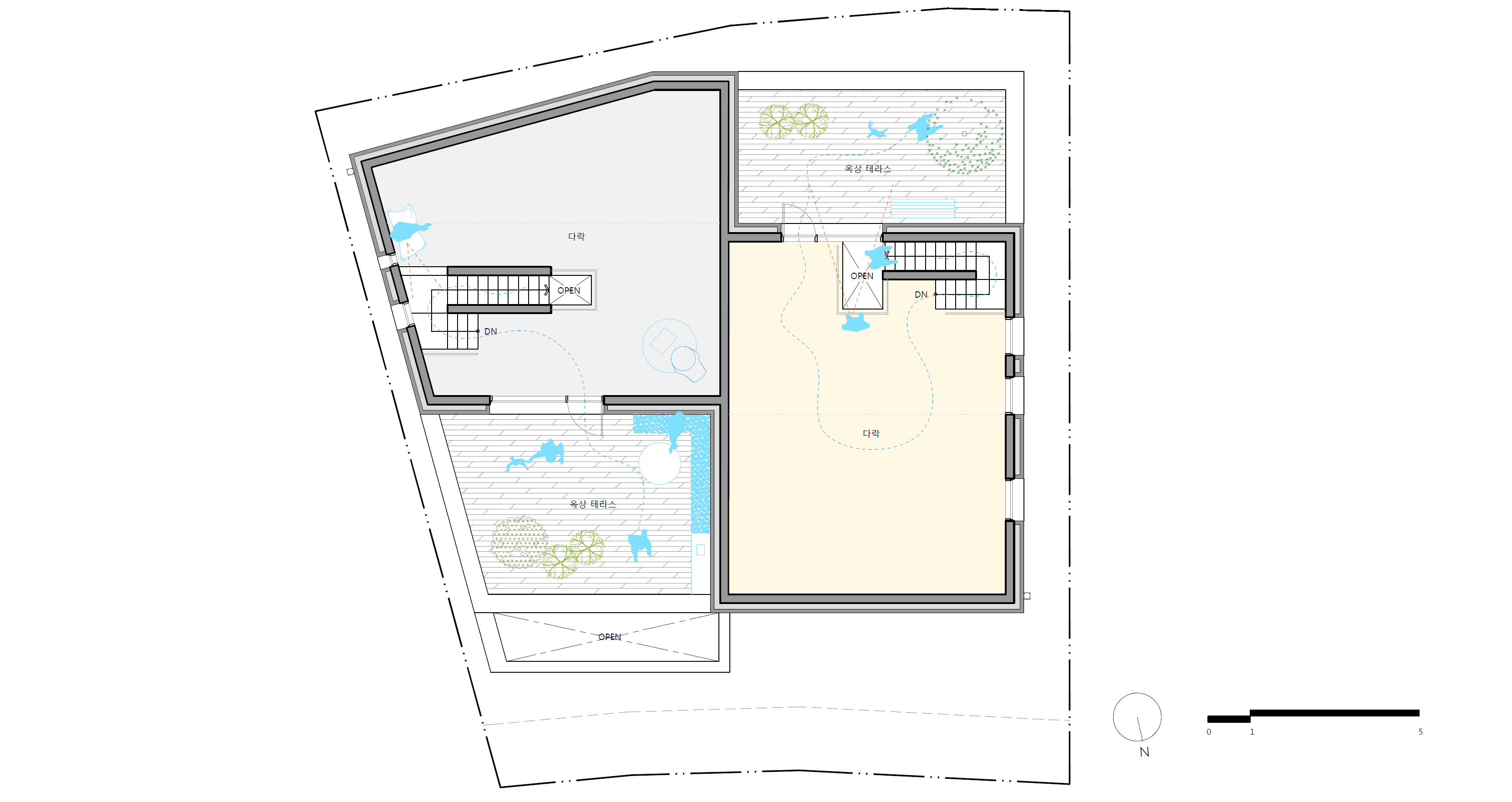
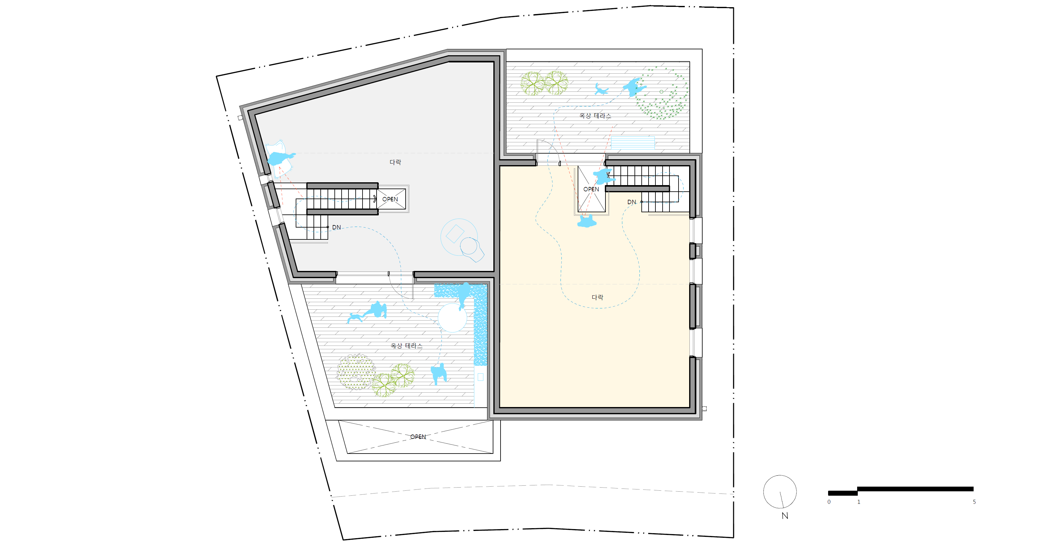
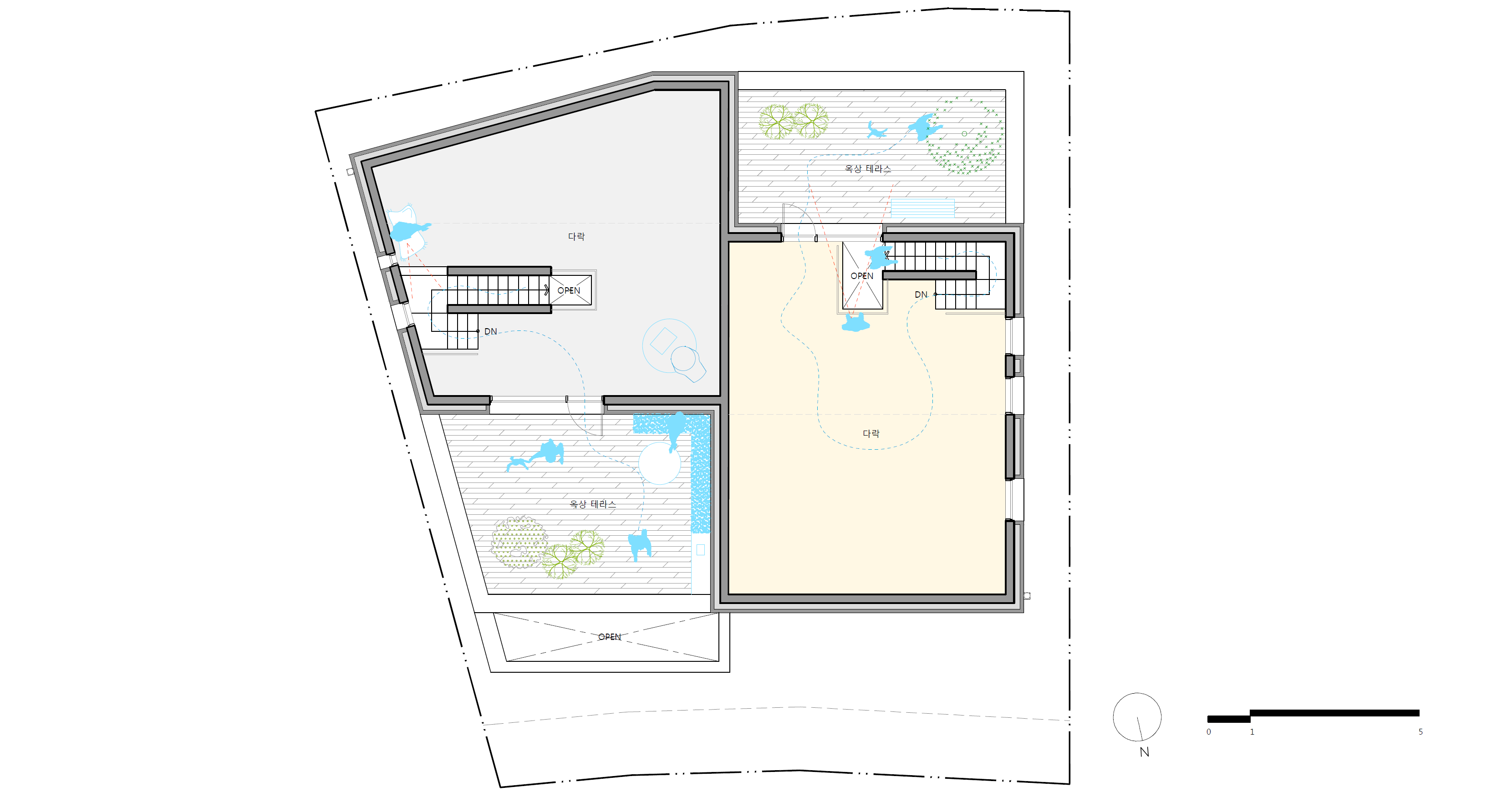
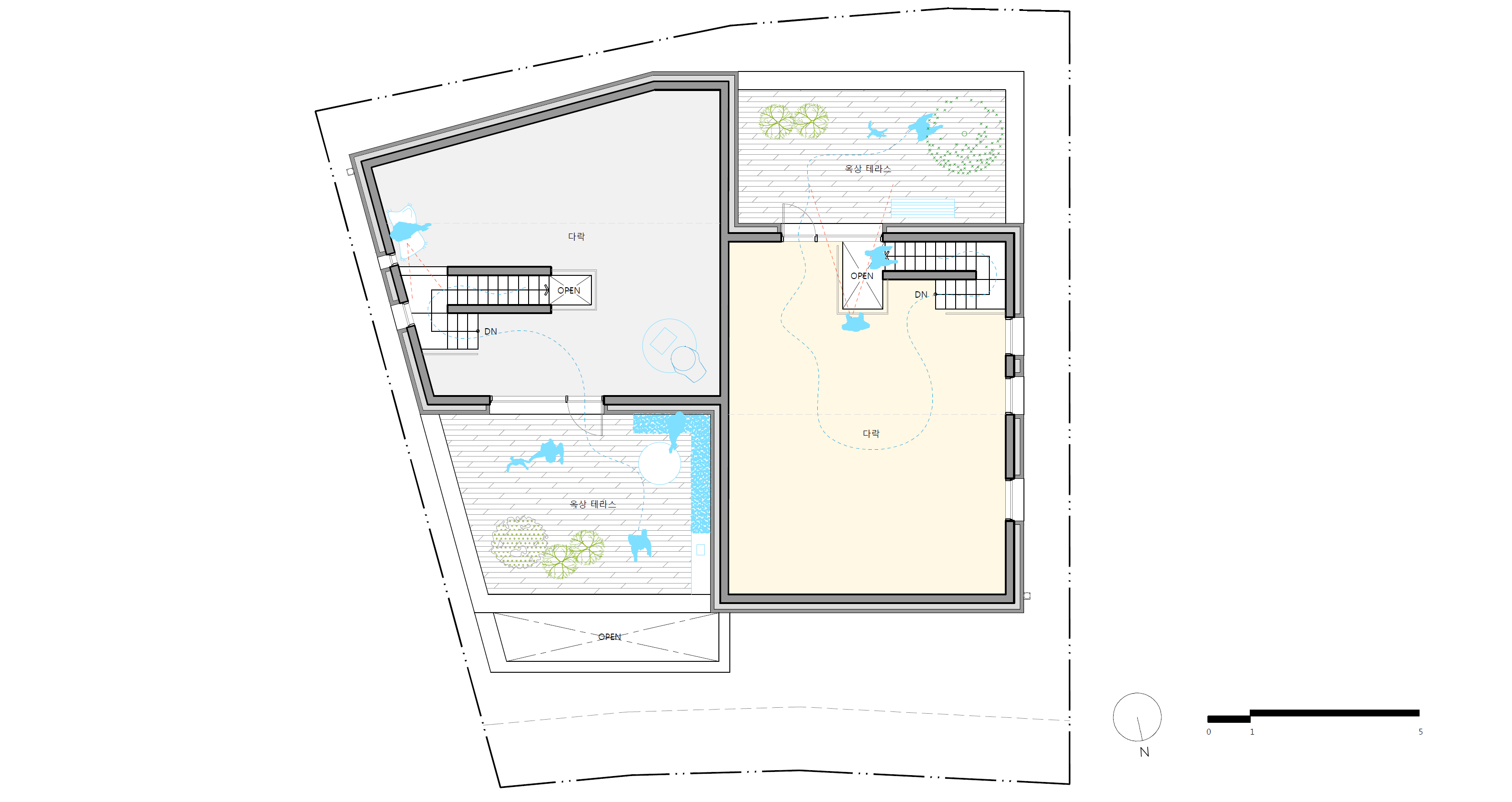
1+4 House is a multi-family housing, a universal residential type in Korea. The architect made a new attempt to break away from the spatial limitations of multi-family housings and attract the advantages of detached houses. Unlike typical multi-family housings in Korea, where the building owner’s household is placed on the upper floors, the owner’s household of 1+4 House was arranged on the first floor. The living room, which is 1m lower than the ground level, has a wide and spacious floor height. A cozy front yard was created due to the lowered front space, and a space with a high floor height that connects the yard-living room-dining room-kitchen is created. The terraces and attic spaces of the rental households on the third floor can be used independently in opposite directions, considering each other’s privacy as the household was divided. When looking at the front of the house, the residential lifestyles are protected from the building on the other side of the front road since the living room window is not directly exposed and there is a layer that considers the lighting aspect.

원플러스포는 국내에서 보편적 주거형태인 다가구주택이지만, 건축가는 다가구주택의 공간적 한계에서 벗어나, 단독주택의 장점들을 끌어들이기 위한 건축가의 새로운 시도가 엿보이는 집이다. 원플러스포는 일반적인 국내의 다가구주택에서 주인 세대가 상부층에 배치되는 경우와는 다르게 지상 1층에 건축가가 거주하는 세대가 배치되어 있다. 지상의 레벨 보다 1m 낮은 이 세대의 거실은 여유있고, 넓은 느낌을 준다. 낮아진 전면 공간에 따라 아늑한 앞마당이 생겨났으며, 마당-거실-식당-주방이 연결되는 높은 층고의 하나의 공간이 만들어 진다. 3층 임대 세대의 테라스와 다락 공간은 세대가 나눠지면서 서로에 대한 프라이버시가 고려되어 서로 반대 방향에 테라스와 다락이 독립적으로 활용될 수 있다. 주택의 정면을 보면, 거실 창이 직접적으로 드러나지 않으며, 채광 측면이 고려된 켜(Layer)가 있어 전면도로 앞에서 맞은편 건물으로부터 주거 생활을 보호한다.















Architects LIFE architects
Location Dongpae-ro, Paju-si, Gyeonggi-do, Republic of Korea
Site area 275.8㎡
Building area 164.28㎡
Gross floor area 349.06㎡
Height 5.2m
Building to land ratio 59.56%
Floor area ratio 126.56%
Construction period 2019. 06 - 12
Completion 2019 .12
Principal architect Jeeyoung Han, Sooyong Hwang
Project architect Jeeyoung Han, Sooyong Hwang
Structural engineer SDM partners
Mechanical engineer Suyang engineering
Electrical engineer Suyang engineering
Photographer Wan Hur
해당 프로젝트는 리빙즈, 디테일 02호에 게재되었습니다.
The project was published in LIVINGS, Detail 02
[BOOK] LIVINGS, Detail 리빙즈, 디테일 01호, 02호
단행본 발행 67개의 형태와 라이프스타일을 담은 주거공간, 국내외 "디테일한 주택 프로젝트"의 엮음
www.masilwide.com
'Architecture Project > Multifamily' 카테고리의 다른 글
| MOJO HOUSE (0) | 2022.04.11 |
|---|---|
| ELEVEN (0) | 2022.04.08 |
| Y HOUSE (0) | 2022.04.06 |
| SAENGGAK OF SONGHAK-RI (0) | 2022.04.05 |
| RED HOUSE (0) | 2022.03.28 |
마실와이드 | 등록번호 : 서울, 아03630 | 등록일자 : 2015년 03월 11일 | 마실와이드 | 발행ㆍ편집인 : 김명규 | 청소년보호책임자 : 최지희 | 발행소 : 서울시 마포구 월드컵로8길 45-8 1층 | 발행일자 : 매일



