
Ulsan went down after a meeting in Seoul after receiving a call from a young priest who contacted us after watching the website of archigroup MA for over 6 months. It was the first place I had ever been to. Six elderly believers were greeted in a temporary office made of container boxes next to Inbo's tiny public office structure. I still can't forget the eyes they looked at us back then. Their passion and innocence for the cathedral, which they greeted and delivered like a great solver or savior, were invaluable in terms of design cost or anything else.
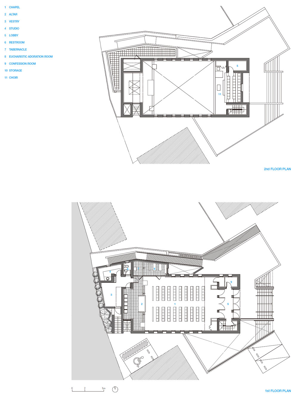
When I was going through hardships while studying in the United States, whenever I suffered a breakup due to a sudden accident of my juniors or friends, as if someone had planned it, I once told a nun who knew well the various help I received at the exquisite timing. She said she must be a nun and she must know how to respond when she asks God for help someday. As I remembered that I answered that I would know in a dry way, I thought that I had to do this project. When I heard that they want to build a cathedral, a priesthood, an education center, and a catechism with a budget enough to build a house, my eyes were daunting. However, the finishing material was changed from brick to exposed concrete, and again, in consideration of the construction capability of the local contractor, it was changed to a concrete patch finish. It is the first religious building that could be completed by recycling the existing priesthood building as it is, but with a cheaper dry-bit finish. It consists of a semi-basement and a half-floor raised chapel space for older believers, but the overall layout is completely irrespective of the front and rear roads, with the chapel building at a 45 degree angle with the two big mountains behind the village that we encountered at the first meeting in the background. It was intended to be seated so that the villagers would not feel any objection when they passed through this chapel without any hesitation anywhere. The white plaster finish, which I never really wanted to use inside the chapel, had to be used due to budget, and I had no choice but to design and make it together when pouring concrete frames such as the altar and reading table. In the vertical window on the south side of the altar, instead of stained glass, we put different patterned glass in the frame of an atypical combination made by our metal team. And since it was difficult to separate the tabernacle space, it was very small inside the chapel, but the tabernacle space was isolated with glass, but it was arranged so that it could be connected to the chapel space during Mass.
Artist Hyesun Hwang, who heard my story, even made a work of the the stations of the cross and a statue of Jesus hanging on the cross and donated it, even though she is a Buddhist. There was no landscaping cost, so I went directly to the Yangjae-dong flower complex to buy wood and stones for the company truck with three employees. On the day it rained, steam came up from the small manure that the President poured into the yard of the cathedral, and the memory of doing the landscaping work by mixing the small manure with the soil after leaving it behind is an unforgettable memory in my life. The chapel building is still the most affectionate religious building even now, when it can be felt once again that it was not built by man.

인보성당
6개월이 넘게 건축집단 MA의 웹사이트를 지켜보다가 연락을 하셨다는 한 젊은 신부님의 연락을 받고 한 차례의 서울 미팅 후 울산에 내려가게 되었다. 생전 처음 내려가는 인보, 그곳의 아주 작은 임시 컨테이너 사무실에서 여섯 분의 연로한 신자들이 맞아주었다. 아직까지도 그때 그분들이 우리를 바라보시던 눈망울을 잊을 수가 없다. 마치 대단한 해결사나 구원자처럼 맞이하며 전해주던 그분들의 성당에 대한 열정과 순수함은 설계비나 제반, 그 어떠한 것으로도 값을 따져서 프로젝트 진행여부를 고민할 필요가 없게 만들었다. 미국 유학시절 어려움을 겪었을 때, 후배, 친구들의 갑작스러운 사고로 이별을 겪었을 때마다 마치 누군가 계획한 것처럼 절묘한 타이밍에 받았던 여러 도움들을 평소 잘 알던 수녀님께 말한 적이 있다. 수녀님은 언젠가 하느님께서 도움을 청하실 때 꼭 응답할 줄 알아야 한다고 말하셨다. 그 말씀에 건성으로 알겠다고 답하던 기억이 떠오르면서 이 프로젝트는 반드시 해야겠다는 생각이 들었다.
주택 한 채 지을 만한 예산으로 성당과 사제관, 교육관과 교리실까지 지어야 하는 상황에서 마감재는 벽돌에서 노출 콘크리트로, 지방 시공사 수준에 맞도록 콘크리트 파취 마감으로 변경되는 과정들이 생겨났고, 기존 사제관 건물은 그대로 사무실로 재활용하되 사제관은 드라이비트로 마감하며 윤곽을 잡아갔다.
연세가 많은 신자들을 위해 반지하와 지층에서 반층 올린 성전 공간으로 구성했으며, 전체 배치는 전후면의 도로와 상관없이 마을 뒤 두 개의 커다란 산을 배경으로 45도 틀어서 성전 건물을 배치했는데, 이러한 배치는 마을 주민들이 이 성전을 통과해서 다닐 때 거부감없이 자연스럽게 다닐 수 있도록 의도한 것이다. 성전 내부는 흰색 석고로 마감(사실 절대 쓰고 싶지 않았지만 예산 상 선택권이 없었다)됐다. 제대와 독서대 등은 콘크리트 타설 과정에서 함께 디자인해서 만들며, 예산이 부족한 부분을 충당했다. 제대 남측 수직창은 스테인드글라스 대신 우리 금속팀에서 만든 비정형 조합의 프레임에 끼운 각기 다른 패턴 유리로 만들어졌으며, 감실 공간을 별도로 마련하기 어려운 사정 상 성전 내부에 작고 유리로 격리된 감실 공간을 계획하여 미사 시간에는 성전 공간과 연결될 수 있도록 만들었다.
성당의 예산 이야기를 전해 들은 황혜선 작가님은 불교신자임에도 십사처 작품과 십자가에 매달린 예수상을 만드셔서 기증을 해주시기도 했다. 조경비가 없어 양재동 화훼단지에서 직원 세 명과 함께 회사 트럭에 나무와 돌을 선물로 직접 사왔다. 비가 쏟아지던 날 총회장님께서 성당 마당에 쏟아 부은 소분뇨를 흙과 함께 손으로 섞어서 조경을 작업했던 기억은 내 일생에 잊히지 않는 기억이다. 인보성당은 성전 건축물이 사람이 짓는 건축이 아님을 다시 한 번 절실하게 느낄 수 있었던, 지금도 가장 애틋한 종교 건축물이다.







Architect Archigroup MA
Location Duseo-myeon, Ulju-gun, Ulsan, Republic of Korea
Program Religious
Site area 1,104㎡
Building area 424.36㎡
Gross floor area 709.03㎡
Building scope B1, 2F
Building to land ratio 37.92%
Floor area ratio 38.18%
Design period 2011. 6 - 2012. 5
Construction period 2012. 3 - 2013. 5
Principal architect Byungan You
Design team Hongsup Chung, Younghwan Lee, Seulbie Lee
Structural engineer Hi Structural Engineers
Mechanical engineer Mido Technology Office
Electrical engineer Kukdong Munhwa Engineering Consultant
Construction Cheonyoung Construction / Archigroup MA _Hyoungmo Seo, Seungmin Han
Client Diocese of Busan
Photographer Joonhwan Yoon
해당 프로젝트는 건축문화 2021년 7월호(Vol. 482)에 게재 되었습니다.
The project was published in the July, 2021 issue of the magazine(Vol. 482).
July 2021 : vol. 482
Contents : RECORDS 2021 SEOUL LIVING DESIGN FAIR 2021 서울리빙디자인페어 : NEWS / COMPETITION / BOOKS : SKETCH BETWEEN PERSON AND ARCHITECTURE / NIKITA BATRAKOV 사람과 건축 사이..
anc.masilwide.com
'Architecture Project > Religious' 카테고리의 다른 글
| DDC CHURCH (0) | 2022.01.27 |
|---|---|
| CATARINA CENTER (0) | 2021.10.21 |
| GAEPODONG CHURCH (0) | 2021.09.02 |
| DAEGU CHURCH (0) | 2021.03.16 |
| JEJU DREAM CHURCH (0) | 2021.03.01 |
마실와이드 | 등록번호 : 서울, 아03630 | 등록일자 : 2015년 03월 11일 | 마실와이드 | 발행ㆍ편집인 : 김명규 | 청소년보호책임자 : 최지희 | 발행소 : 서울시 마포구 월드컵로8길 45-8 1층 | 발행일자 : 매일



