
Gaepodong Church, built on the boundary between the new and old areas within the imbalance of urban redevelopment, does not aim for spatial characteristics such as exile from the secular world demanded in traditional church architecture, but instead aims to live together in the modern city and provide a practical (daily) shared space that gives warm comfort and energetic messages.
The authoritative shape of the steeple was determinedly abandoned, Gaepodong Church was amiably built within the city by choosing a familiar and soft shape as well as warm exterior materials. When the upper volume was lifted to facilitate access to the parking lot, unique V-shaped pillars that help the cantilever was applied. This is not only an effective structural solution, but also a symbol that shows the architectural characteristics of the inflow of open values under the lifted volume.
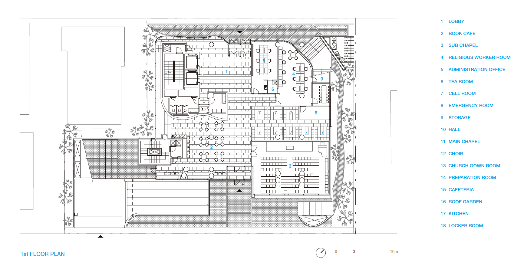
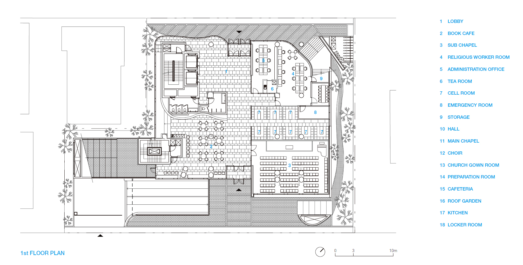
Due to the lobby that is formed as if penetrating the interior of the first floor, the front and rear roads of the street, which was severed as it was full of commercial houses, lead to the indoor street. It becomes an internal street of communication that sufficiently accommodates even the worldliness and humane hustle of the surrounding shops. The elegant volume that is finished with Chinese granite stone is lifted, maximizing the open value of the lower-floor interaction space. Furthermore, as the traditional dark-red-brick church that felt like a fortress in this area was demolished and newly built, traces of the previous church were aimed to be left. The red brick staircase that stretches out and ascends next to the church’s main entrance was formed by recycling the exterior materials of the previous church as the floor finishing material. The staircase is an external street that allows the worship space on the third floor to be reached directly from the first floor, and a communicative space that brings one closer to the minds of the pilgrims is formed as they walk on the traces of the previous church and recall the history of the church, and wind up the narrow road that is blocked from the gazes of surrounding residences.
Modern church architecture should aim to be both a religious sanctuary as well as a place of spiritual peace and comfort to the emotionally exhausted citizens. Gradually, church architecture must contain various human spaces such as small concert halls, seminar rooms, small group meeting rooms or cafes that help everyday life, rather than grand, majestic assembly halls for traditional worship only. Le Corbusier said, “A house is a machine for living in”. Then, church architecture is a vessel and a machine of comfort that will reverently and abundantly contain the daily lives of the members, the subjects of use, along with God and their neighbors.

개포동이 이제 가득 찼다. 하지만 그 속에서도 복잡한 소유권 문제로 재개발이 힘든 상가주택 지역은 원래의 번잡함에 아직 그대로 갇혀있다. 개포동 교회는 도심 재개발의 불균형 속 신·구 지역의 경계에 지어졌다. 전통적 교회 건축에서 요구되던 세속으로부터의 망명과 같은 공간적 특성을 지향하기보다, 오히려 현대 도심 속에 함께 생활하며 이웃 주민들에게 따스한 위로와 활력의 메시지를 공급하는 공유 공간을 제공하려 한다.
첨탑의 권위적 형태는 과감히 버리고, 개포동 교회는 친근하고 부드러운 형태와 따스한 외장재를 선택함으로 도심 속에 정겹게 건축되었다. 주차장으로의 진입이 용이하도록 지상 볼륨을 들어 올릴 때에 캔틸레버를 돕는 독특한 V자형 기둥을 적용하였는데, 이는 효과적인 구조의 해결책일 뿐 아니라, 들린 볼륨 아래로 열린 가치가 유입되는 건축 특성을 드러내는 상징이기도 하다.
상가주택이 즐비하여 단절되었던 가로가 1층 내부를 관통하듯 형성된 로비로 인해 전, 후면도로가 내부 가로로 이어진다. 이는 주변 상가의 세속성과 인간적인 번잡함까지도 넉넉히 수용하는 소통의 실내 가로가 되는 것이다. 사비석 마감의 고상한 볼륨은 들려 있어서 저층부 교류 공간의 열린 가치를 극대화한다. 그리고, 이 지역의 성채처럼 느껴졌었던 전통적 형식의 검붉은 벽돌 교회당이 철거되고 신축되면서 이전 교회의 흔적을 남기고자 했다. 교회 정문 옆으로 펼쳐져 오르는 붉은 벽돌 계단은 이전 교회의 외장재를 바닥마감재로 재활용하여 조성한 곳이다. 1층에서 3층 예배공간으로 직접 도달할 수 있는 외부가로로, 이전 교회의 흔적을 밟으며 교회의 역사를 회상하고, 주변 주거지와의 시선이 차단된 좁은 길을 감아 돌면서 순례자의 마음과도 가까워지는 교류 공간을 형성한다.
현대 교회 건축은 신앙적 구도의 성소임과 동시에 심리적으로 피폐해진 도시민들에게 영적인 평화와 위안을 베푸는 장소가 되려는 의도를 가져야 한다. 점차적으로 교회 건축은 전통적 예배만을 드리기 위한 웅장한 대형집회실 보다는 일상적 삶을 돕는 작은 콘서트홀, 세미나실, 또는 소그룹 미팅 룸이나 카페 같은 인간적 공간들을 다양하게 담아낼 필요가 있다. 르 코르뷔지에는 “주택은 살기 위한 기계이다”라고 했다. 그렇다면 교회 건축은 사용의 주체인 구성원들이 신과 이웃과 더불어 일상적인 삶을 경건하고 풍요롭게 담아낼 그릇이요, 위안의 기계이다.














Architects Eunseok Lee(Kyung Hee University) + Atelier KOMA
Location Seolleung-ro, Gangnam-gu, Seoul, Republic of Korea
Program Church
Site area 1,584.9m2
Building area 903.15m2
Gross floor area 7,578.92m2
Building scope B4, 5F
Building to land ratio 56.98%
Floor area ratio 199.86%
Design period 2017. 9 - 2018. 3
Construction period 2018. 3 - 2020. 6
Completion 2020. 6
Principal architect Eunseok Lee
Project architect Oksoon An
Design team Minho Kim, Jinkee Baek, Iinho Shin, Woojin Jung, Jonggeol Kim
Structural engineer Eun Stucture
Mechanical engineer Suyang Engineering
Electrical engineer Suyang Engineering
Construction DASAN Construction & Engineering
Client The General Assembly of Presbyterian Church in Korea Gaepodong Church
Photographer Rohspace
해당 프로젝트는 건축문화 2021년 7월호(Vol. 482)에 게재 되었습니다.
The project was published in the July, 2021 issue of the magazine(Vol. 482).
July 2021 : vol. 482
Contents: RECORDS 2021 SEOUL LIVING DESIGN FAIR : NEWS / COMPETITION / BOOKS : SKETCH BETWEEN PERSON AND ARCHITECTURE / NIKITA BATRAKOV
anc.masilwide.com
'Architecture Project > Religious' 카테고리의 다른 글
| CATARINA CENTER (0) | 2021.10.21 |
|---|---|
| INBO CATHOLIC CHURCH (0) | 2021.10.19 |
| DAEGU CHURCH (0) | 2021.03.16 |
| JEJU DREAM CHURCH (0) | 2021.03.01 |
| THE CHURCH OF THE PENITENT THIEF (0) | 2021.02.08 |
마실와이드 | 등록번호 : 서울, 아03630 | 등록일자 : 2015년 03월 11일 | 마실와이드 | 발행ㆍ편집인 : 김명규 | 청소년보호책임자 : 최지희 | 발행소 : 서울시 마포구 월드컵로8길 45-8 1층 | 발행일자 : 매일



