
DAEGU CHURCH Daegu Church is located on the far-off from Suseong-gu, Daegu. It is a project of using part of the former a Highschool building, as a religious educational center, and constructing chapel of the church's new main building. The site was a place with higher geography than surrounding areas and excellent natural environment.

At first, it was a modern and transparent plan. However, client's request was very far from our offer. He requested a classic and serene building which red bricks and stone harmonizes. When I was a business man, I handled many brick buildings so the request wasn't felt so strange. Also, he wanted a chapel where outdoor nature landscape could be seen through the window. Regarding chapel's plan which is making a corner of the square as a podium as a center, the medium-sized chapel and small-sized podium which is available of multifunctional space composition are composed.

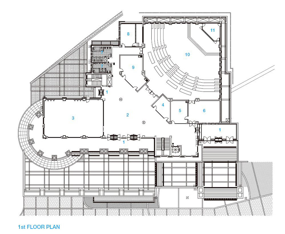
At the main lobby level, the cafe has planned where the church's frontal courtyard and the garden on the backside could be enjoyed. We suggested this church as a little rest in life when Christians visit here which is escaped from urban area. The medium sized chapel on the basement minimizes typical wet environment of the basement and separates borders as a dry area space to suggest more comfortable interior space. We tried to share a relaxed religious life with nature and the relax of life and composure inside the space.

대구교회 대구교회는 대구의 수성구에서 남으로 달성군으로 벗어나려는 그 발치에 있다. 옛 대한중석고등학교를 대구교회에서 매입을 하여 일부의 건축물은 교육관으로 사용을 하고 새로운 교회본관의 예배당을 짓는 프로젝트였다. 대지는 주변보다 높은 지대의 지형과 우수한 자연환경을 가진 곳이었다.

처음에는 유리로 이뤄진 모던하고, 자연을 통과시키기라도 할 듯이 투명한 공간의 계획을 세웠다. 하지만 건축주의 요구는 우리의 생각과 너무나 달랐다. 붉은 벽돌과 석재가 어우러진 클래식하고 정적인 건축물을 요구했다. 직장인 시절에 벽돌 건축물을 많이 하였기에 그것에 대한 요구사항이 너무 낯설게 느껴지지는 않았다. 그리고 예배당이지만 창을 통하여 외부의 자연경관을 볼 수 있는 예배공간을 원했었다.



정사각형의 모서리를 강대상으로 하는 예배당의 평면을 기준으로 중예배당, 그리고 다목적공간 구성이 가능한 소예배당을 구성했다. 메인 로비층에는 전면의 교회 마당과 뒷면의 후정이 같이 할 수 있는 카페를 계획했다. 도심에서 벗어난 이 교회를 신도들이 찾는다면 조금이나마 삶의 휴식과 같은 교회 공간이 되었으면 하는 생각에서 제안했다.





지하층에 있는 중예배당은 지하층의 특성상 습한 환경을 최소화하고 테두리를 드라이 에어리어 공간으로 이격시켜 좀 더 쾌적한 실내공간을 제시한다. 자연과 함께하는 여유로운 종교생활 그리고 공간에서 누리는 삶의 휴식과 여유를 공유하고자 노력했다.



Architect INTER ARCHITECTURE
Location Heolti-ro, Gachang-myeon, Dalseong-gun, Daegu, Republic of Korea
Program Religious facility
Site area 21,011.00㎡
Building area 3,606.95㎡
Gross floor area 9,591.75㎡
Building scope B1, 3F
Building to land ratio 17.18%
Floor area ratio 36.42%
Design period 2013. 9 - 2014. 8
Construction period 2014. 8 - 2016. 2
Completion 2016. 2
Principal architect Sungyong Yang
Project architect Sungyong Yang, Sungahn Baek
Design team Unseong Park, Jiyun Yang
Structural engineer Structure United
Mechanical engineer SINIL E&C
Electrical engineer SHINLA ENGINEERING
Construction HONGSUNG CONSTRUCTION
Photographer Donggyu Yoon
해당 프로젝트는 건축문화 2021년 1월호(Vol. 478)에 게재 되었습니다.
The project was published in the January, 2021 issue of the magazine(Vol. 476).
January 2021 : vol. 476
Contents : RECORDS MMCA OPENS THE EXHIBITION: UNITY POINT OUT THE INTERACTION FOLLOWING A VISUALIZATION OF REALISTIC SPACE : NEWS / COMPETITION / BOOKS : SKETCH DOUGLAS HOUSE / ASHWIN SWAMINATHAN :..
anc.masilwide.com
'Architecture Project > Religious' 카테고리의 다른 글
| INBO CATHOLIC CHURCH (0) | 2021.10.19 |
|---|---|
| GAEPODONG CHURCH (0) | 2021.09.02 |
| JEJU DREAM CHURCH (0) | 2021.03.01 |
| THE CHURCH OF THE PENITENT THIEF (0) | 2021.02.08 |
| TAEJEON BEAUTIFUL CHURCH (0) | 2020.11.04 |
마실와이드 | 등록번호 : 서울, 아03630 | 등록일자 : 2015년 03월 11일 | 마실와이드 | 발행ㆍ편집인 : 김명규 | 청소년보호책임자 : 최지희 | 발행소 : 서울시 마포구 월드컵로8길 45-8 1층 | 발행일자 : 매일



