
Architecture starts from unraveling the relationship between elements. The site was welcomed with a very impressive image of the existing church and its triangular roof descending to the site level, and it was giving a task of relationship unraveling, where the extension of the Dream Church and the ACT29 Training Center had to be included into our design and create a soft landing, so that they would harmonize with the existing church without pushing it away.

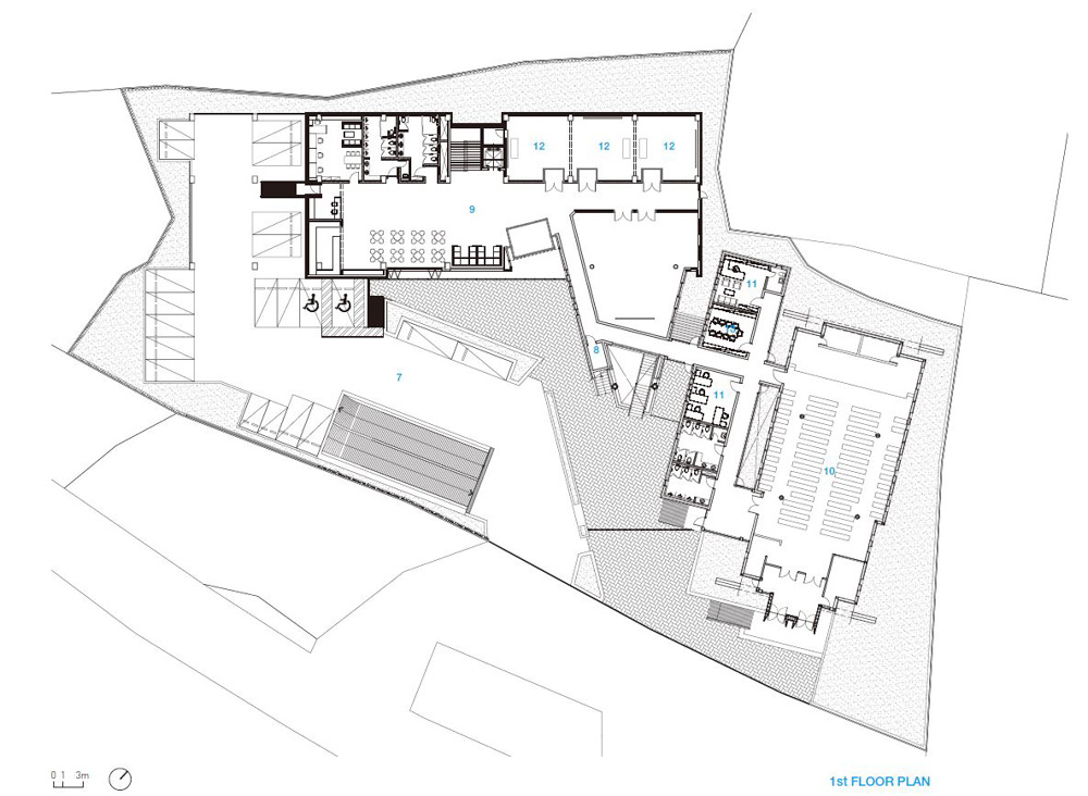
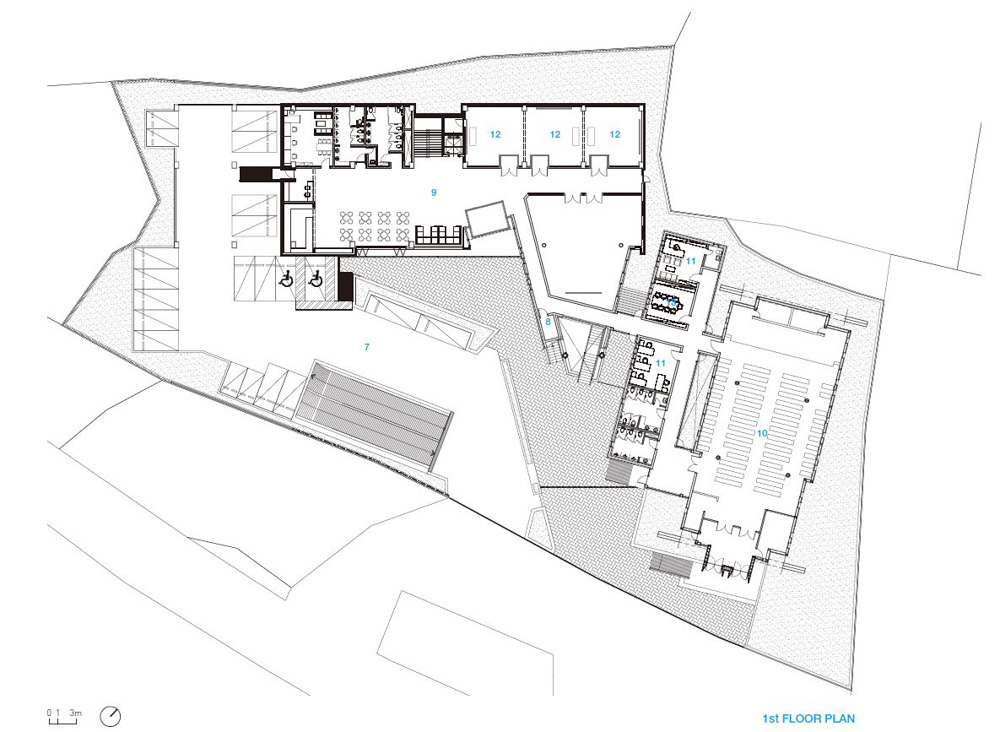
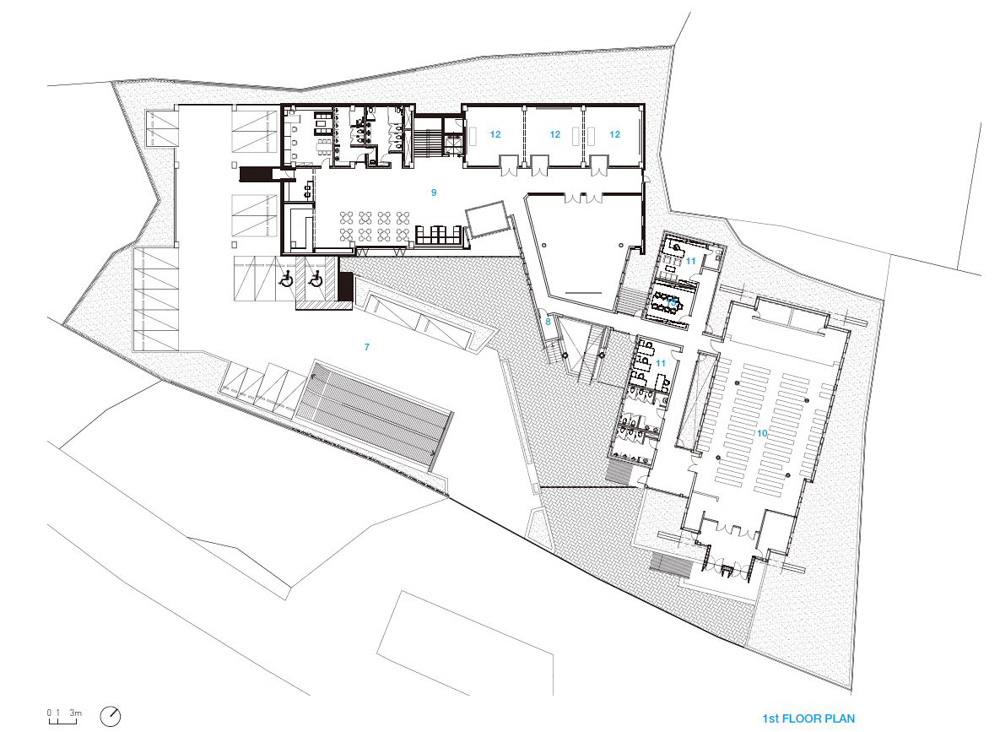
In an attempt to solve this task, the strong design of the triangular roof was adopted as a design element to ensure that it does not seem heterogeneous, and the roof’s zinc as well as the ipe wood of the walls, which are the existing materials, were applied once again to the walls of the extended part so that they could harmonize with each other. Furthermore, the form of the existing building was soundly preserved through the courtyard at the point where it connects with the existing chapel.

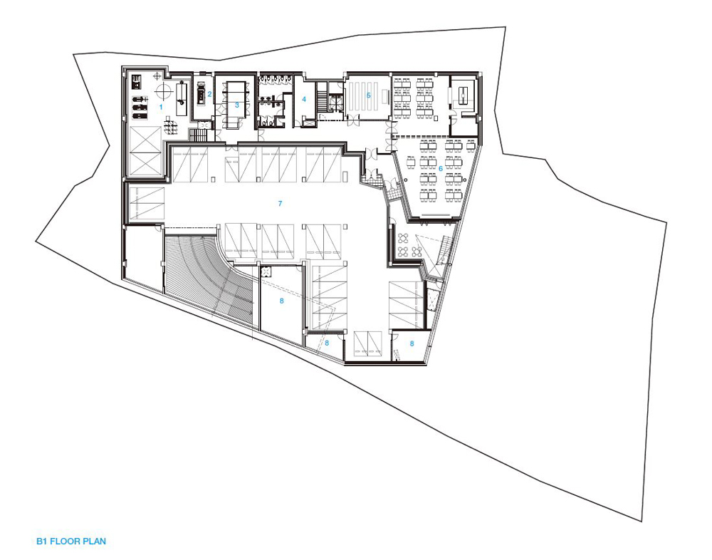
In order to avoid harming the ridges of the nearby oreum path, it was planned to only have two stories, and to embody the image of another oreum path with the building, a natural access from the ground level to the second floor and the rooftop was made possible.

We hope that these attempts to pursue an unconventional design according to the local characteristics of Jeju Island and the site’s form and conditions, while pursuing universality and locality at the same time, are naturally felt by the users and everyone in the surrounding.

삼각형 지붕의 기존 교회와의 새로운 관계 형성, 제주 드림교회 훈련센터 증축
건축은 각 요소 간의 관계를 풀어내는 것부터 시작된다. 대지에는 삼각형 지붕이 대지레벨까지 내려오는 인상적인 기존의 드림교회가 있었다. 이 프로젝트는 기존의 드림교회를 밀어내지 않으면서 이와 조화롭도록 증축과 ACT29 훈련센터를 새롭게 건설하는 것이었고, 건축가는 이 숙제를 풀기 위해 삼각형 지붕의 강렬한 디자인이 이질적으로 보이지 않도록 이는 디자인 요소로 차용됐다.

기존 건축물의 재료인 지붕의 징크와 벽면의 이페목을 증축 부분의 벽면에 적용되어 조화롭게 어울리며, 중정을 통해서 기존의 예배당의 형태를 온전히 보전한다. 새로운 훈련센터는 주변 오름의 능선을 해치지 않기 위해서 2층 규모로 계획됐고 건물은 또 하나의 오름의 이미지로 구현되어 대지 레벨에서부터 지상 2층, 옥상까지 자연스러운 접근이 가능하다.


보편성과 지역성을 동시에 추구하면서 제주도라는 지역의 특성과 대지의 형태와 조건에 따라 정형화되지 않은 디자인을 추구하고자 하는 건축가의 노력이 반영된 작품이다.







Architect SAI ARCHITECTURE Co., Ltd
Location Sinhwayeoksa-ro, Andeok-myeon, Seogwipo-si, Jeju-do, Republic of Korea
Program Church
Site area 3,810.00m2
Building area 1,519.74m2
Gross floor area 3,857.37m2
Building scope B1, 2F
Building to land ratio 39.89%
Floor area ratio 53.16%
Design period 2018. 2 - 12
Construction period 2019. 1 - 2020. 1
Completion 2020. 1
Principal architect Juhwan Park, Sangho Song
Design team Jinsan Park, Jonghoi Park, Hyemin Jang Construction Dazim Construction & Engineering
Client Onnuri Church
Photographer Youngjin Lee
해당 프로젝트는 건축문화 2021년 1월호(Vol. 476)에 게재 되었습니다.
The project was published in the January, 2021 issue of the magazine(Vol. 476).
'Architecture Project > Religious' 카테고리의 다른 글
| GAEPODONG CHURCH (0) | 2021.09.02 |
|---|---|
| DAEGU CHURCH (0) | 2021.03.16 |
| THE CHURCH OF THE PENITENT THIEF (0) | 2021.02.08 |
| TAEJEON BEAUTIFUL CHURCH (0) | 2020.11.04 |
| JA CURVE CHURCH (0) | 2020.03.20 |
마실와이드 | 등록번호 : 서울, 아03630 | 등록일자 : 2015년 03월 11일 | 마실와이드 | 발행ㆍ편집인 : 김명규 | 청소년보호책임자 : 최지희 | 발행소 : 서울시 마포구 월드컵로8길 45-8 1층 | 발행일자 : 매일



