
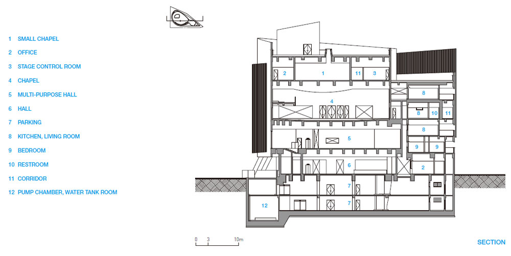
Since it is a religious facility dedicated by both parents for the daughter-in-law and daughter who died too early, the attitude towards designing the facility was unique. Constructing a public and religious facility on a triangular atypical site was a troublesome starting point. Moreover, in the part of composing the Grand Sanctuary where Mass is held, supporting facilities, and the space necessary for gatherings after Mass, we had no choice but to plan practical stairs other than the legally required emergency stairs. Despite the criticism of wasting space as such, it was planned as the main vertical flow in this facility. With our insistence on the usual design to emphasize if it is unavoidable, we thought of a double skin structure that creates a large oval and a small oval space on the triangular site and holds the two masses. In the religious etymology of the Trinity, the element of the invisible Holy Spirit is embodied in double skins.
Breaking away from the solemnity and authoritative elements seen in traditional religious architecture spaces, you can feel her in the space by repeatedly looking at the image of Katarina, the young friend that this space wants to commemorate, and her childhood letters and videos. I started designing with hope. From the unchanging faith of the parents who sent their daughter whom they loved so much first, I thought that what was visible was not everything, and that what was more important than the traditional proportions and left-right symmetry was the invisible religious faith and the resulting words and actions. It was created by reorganizing the space so that it completely violated the norms of all religious facilities, but felt proportionally beautiful. As an element that captures the unconventional feeling of space that can be radical, I installed the work Yongrae Kwon in the main hall, the work of artist Hyesun Hwang on the four pillars in the reception area, and the work of artist Seunghee Sohn in the large window in front of the main hall. Through the entire skylight that illuminates the main hall and small sanctuary, we tried to feel the unchanging and unchanging omnipotence of God in every space. In a small oval space, which is a support facility, a series of moving lines connecting the roof, the third floor, the main bridal space, and the main hall will show that it is a space where faith in the Trinity is completed with the external double skin.

성녀 카타리나 센터
세상을 너무 이른 나이에 뜬 며느리와 딸을 위해 양가 부모님이 헌정하는 종교시설이기에 설계에 임하는 자세가 남다를 수밖에 없었다. 삼각형의 비정형 부지에 대중이용시설이자 종교시설을 구성하는 건 고민이 되는 시작점이었다. 더구나 미사가 이루어지는 대성전과 그것을 지원하는 시설들, 미사 이후의 모임 공간에는 법적 요구조건인 이상계단 외에도 추가적으로 수직이용계단이 요구됐다. 피할 수 없다면 오히려 강조하자는 평소의 설계에 대한 고집으로 삼각형 부지에 큰 타원과 작은 타원의 공간을 만들고 그 두 개의 매스를 잡아주는 더블스킨 구조를 계획했다. 삼위일체라는 종교적인 어원에서 눈에 보이지 않는 성령이라는 요소를 더블스킨으로 형상화한 것이다.
전통적인 종교건축 공간에서 보이는 엄숙함과 권위적인 요소에서 벗어나 이 공간이 기리고자 하는 어린 친구, 이래나 카타리나의 이미지와 그녀가 남긴 어린 시절의 편지글, 동영상들을 반복해서 보면서 그녀를 공간에서 느낄 수 있기를 바라며 설계에 임했다. 그토록 사랑하는 딸을 먼저 보낸 부모님들의 변함없는 신앙인 모습에서 눈에 보이는 것이 다가 아니라는 생각과 전통적인 비례와 좌우대칭의 공간구성보다 더 중요한 것은 눈에 보이지 않는 신앙심과 그에 따른 언행을 표현했다. 모든 종교시설의 규범에서 철저히 어긋나게 구성하되 비례적으로는 아름답게 느껴질 수 있도록 공간을 재구성해 갔다. 자칫 과격할 수 있는 공간의 느낌을 잡아주는 요소로 본당에는 권용래 선생님의 작품, 리셉션 공간에는 십사처 기둥에 황혜선 작가의 작품, 본당 앞 대형창에는 손승희 작가의 스테인드글라스 작품을 설치했다.
본당과 소성전을 비추는 전체 천창을 통해서 바뀌지 않고 변하지 않는 하느님의 전지전능함이 느껴지도록 노력했다. 지원시설인 작은 타원공간에서 옥상과 삼층 주임신부공간, 그리고 본당과 연결되는 동선은 외부 더블스킨과 함께 삼위일체로 신앙심이 완성되는 공간임을 보여준다.








Architect Archigroup MA
Location Sinnae-dong, Jungnang-gu, Seoul, Republic of Korea
Program Religious facility
Site area 1,591.70m2
Building area 786.58m2
Gross floor area 5,377.46m2
Building scope B2, F5
Building to land ratio 49.42%
Floor area ratio 182.83%
Design period 2017. 3 - 2019. 7
Construction period 2018. 7 - 2020. 3
Principal architect Byungan You
Design team Jongsoo Ha, Taeyoun Kim, Jihyun Jeong, Jinmo Cho, Jeong Woo, Taegyu Lee, Eunjoo Lee
Structural engineer Hi Structural Engineers
Mechanical engineer Suyang Engineering
Electrical engineer Suyang Engineering
Civil engineer Topjung Engineering
Construction CJ Logistics E&C DIV., Archigroup MA_Seongjun Jeon, Jaehwan Jo, Sokhun Park
Client Kkottongnae Of Jesus Foundation
Photographer Hansuk Kim
해당 프로젝트는 건축문화 2021년 7월호(Vol. 482)에 게재 되었습니다.
The project was published in the July, 2021 issue of the magazine(Vol. 482).
July 2021 : vol. 482
Contents : RECORDS 2021 SEOUL LIVING DESIGN FAIR 2021 서울리빙디자인페어 : NEWS / COMPETITION / BOOKS : SKETCH BETWEEN PERSON AND ARCHITECTURE / NIKITA BATRAKOV 사람과 건축 사이..
anc.masilwide.com
'Architecture Project > Religious' 카테고리의 다른 글
| FUEGO NUEVO CHAPEL (0) | 2022.02.14 |
|---|---|
| DDC CHURCH (0) | 2022.01.27 |
| INBO CATHOLIC CHURCH (0) | 2021.10.19 |
| GAEPODONG CHURCH (0) | 2021.09.02 |
| DAEGU CHURCH (0) | 2021.03.16 |
마실와이드 | 등록번호 : 서울, 아03630 | 등록일자 : 2015년 03월 11일 | 마실와이드 | 발행ㆍ편집인 : 김명규 | 청소년보호책임자 : 최지희 | 발행소 : 서울시 마포구 월드컵로8길 45-8 1층 | 발행일자 : 매일



