
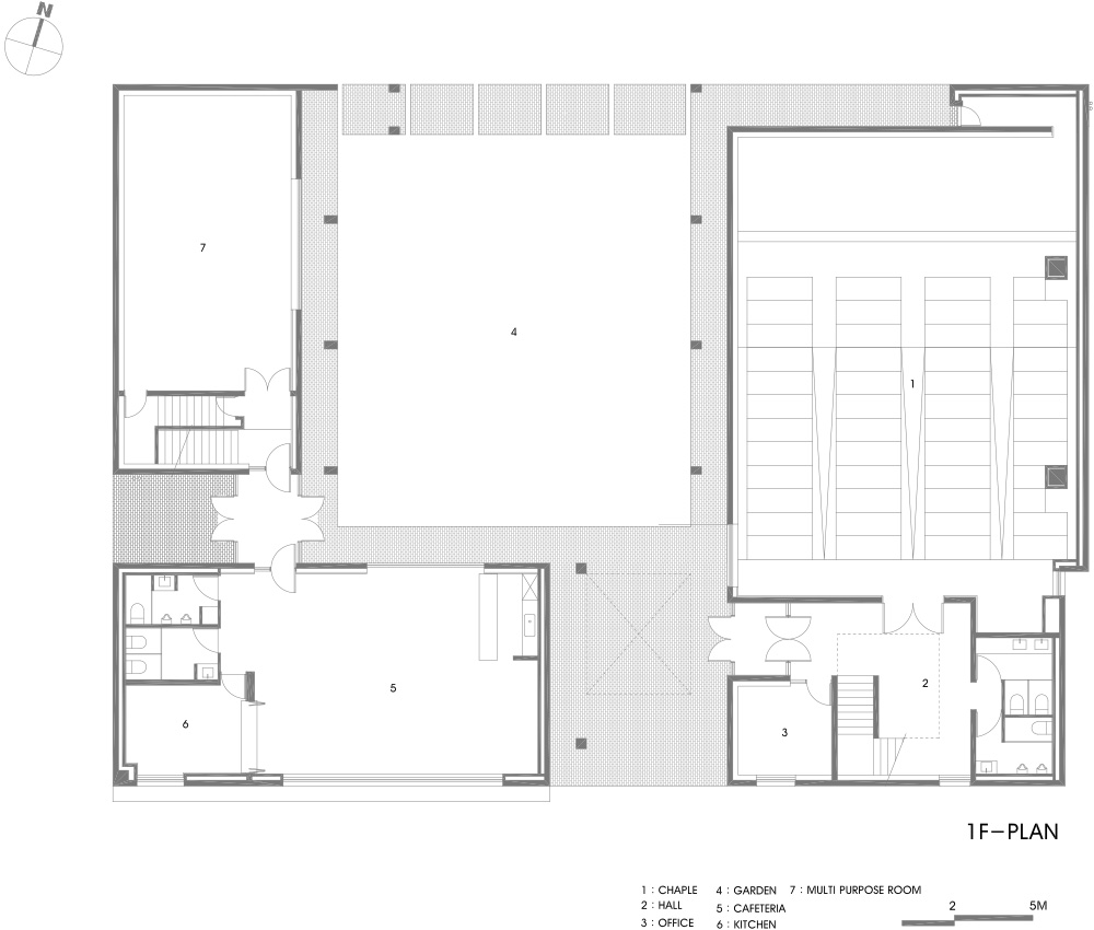
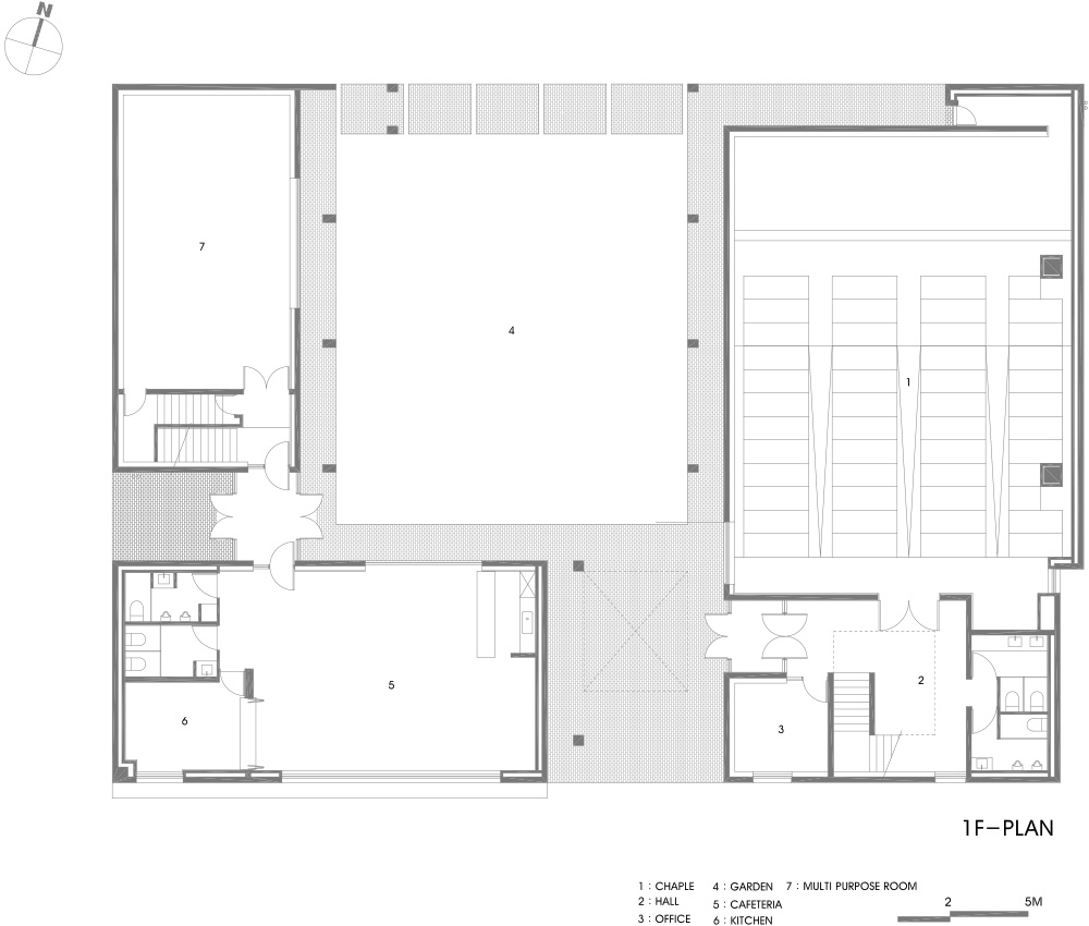
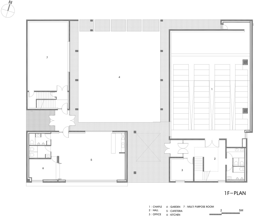
The rural village on the outskirts of the city had worn out farmhouses and greenhouses scattered here and there. The water flowing down from the mountains made a mess and weeds were overgrown. The architect leveled and cleared the land, and designed a church in nature. A separate parking space is arranged on one side of the site, and a quiet garden and forest appear around the building. The center of DDC church is the courtyard. It is the center of the circulation, and the center of senses. All spaces in the building have their windows open toward the courtyard, so the chapel, cafe, and education rooms also become spaces with yards. Unlike the closed exterior, the courtyard that can be seen from the entrance attracts people into this place. When the courtyard is reached, an open lawn yard welcomes visitors and a dramatic change can be felt with the spacious open space. The metasequoia forest that continues from the courtyard amplifies the atmosphere of the courtyard. The nature contained in the courtyard magnifies our senses, making us look back at matters that were considered indifferent or insignificant. In the courtyard, one can rest in the stillness as if time has stopped. The corridor surrounding the courtyard suggests a way to slowly walk and enjoy the space. People can sit in the shades within the corridor and enjoy the courtyard in various ways, while drinking tea and chatting.
The architect also paid special attention to the feeling given by proportion. Even with the same function and area, some proportions are stuffy and some are refreshing. DDC church, which highlights the horizontally long comfort and the vertical, strong slenderness, contrasts the low mass and the high cross using unique proportions. The heavy exposed concrete and the frugal black bricks show a serene yet religious solemnity. The light that shines through the interior’s skylight on the sides and the high window on the front side emphasizes and decorates the space. The silent space where one is alone with the Creator is a space of quiet materiality that encourages prayer and contemplation.

도시 외각의 농촌 마을에는 허름한 농가주택과 비닐하우스가 여기저기 흩어져 있었다. 산에서 흘러내리는 물이 어지럽게 진창을 만들고 잡초가 무성한 곳이었다. 건축가는 땅을 다듬고 정리하여 자연 속 교회를 설계했다. 대지 한쪽 편에 별도의 주차공간이 있으며, 건물을 경계로 고요한 정원과 숲이 나타난다. DDC 교회의 중심은 중정이다. 동선의 중심, 감각의 중심이다. 건물의 모든 공간은 창문이 중정을 향해 열려 있어 예배실도, 카페도, 교육실도 마당이 있는 공간이 된다. 폐쇄적으로 보이기도 하는 외관과 달리 입구에서부터 들여다보이는 중정은 사람들의 움직임을 이곳으로 이끈다. 중정에 이르면 열린 잔디마당이 방문자를 반기고, 넓게 트인 공간으로 극적인 변화를 느낄 수 있도록 만든다. 중정에서 이어지는 메타세콰이어 숲은 중정의 느낌을 증폭하도록 만든다. 중정에 담긴 자연은 우리의 감각을 한껏 예민하게 만들고, 무심히 보던 것들, 별것 아니라 생각했던 대상에 시선을 향하도록 만든다. 중정 안에서 우리는 시간이 멈춘 듯한 고요함 속에서 휴식을 취한다. 중정 곁으로 감싸는 회랑은 천천히 걸으며 공간을 향유하는 방법을 제안한다. 회랑 속 그늘에 앉아 중정을 바라보며 차를 마시고 담소를 나누며 중정을 다양하게 즐길 수 있다.
건축가는 특별히 비례가 주는 느낌에도 주목했다. 동일한 기능과 면적이라도 어떤 비례는 답답하고 어떤 비례는 상쾌하다. DDC 교회는 수평으로 긴 편안함과 수직의 힘찬 늘씬함이 강조된 DDC 교회는 낮게 깔린 매스와 높이 솟은 십자가를 이곳만의 비율로 대비된다. 묵직한 노출콘크리트와 검소한 검정 벽돌은 담담하면서도 종교적 엄숙함을 보여준다. 내부 측면의 천창과 전면의 고창을 통해 스며드는 빛은 공간을 강조하고 장식한다. 창조주와 독대하는 침묵의 공간은 기도와 묵상을 돕는 고요한 물성의 공간이다.









Architect Jongsang Oh
Location Donbatang-gil, Boryeong-si, Chungcheongnam-do, Republic of Korea
Program Church
Site area 3,335m2
Building area 608.83m2
Gross floor area 806.86m2
Building scope 2F
Building to land ratio 18.16%
Floor area ratio 24.19%
Completion 2020. 11
Principal architect / Project architect Jongsang Oh
Structural engineer Wonsub Seo
Mechanical engineer Jusung M.E.C
Electrical engineer Hangil Engineering
Construction SADAKDARI construction Co.Ltd
Photographer Jongsang Oh
해당 프로젝트는 건축문화 2021년 11월호(Vol. 486)에 게재되었습니다.
The project was published in the November, 2021 recent projects of the magazine(Vol. 486).
November 2021 : vol. 486
Contents : RECORDS OPEN EXPO 2020 DUBAI, AND KOREA PAVILION 세계에 퍼지는 한국의 친환경 메시지, 그리고 “마당" : NEWS / COMPETITION / BOOKS : SKETCH THE REMARKABLE PLACE IN THE NEIGHBO..
anc.masilwide.com
'Architecture Project > Religious' 카테고리의 다른 글
| MOSQUE OF REFLECTION (0) | 2022.09.01 |
|---|---|
| FUEGO NUEVO CHAPEL (0) | 2022.02.14 |
| CATARINA CENTER (0) | 2021.10.21 |
| INBO CATHOLIC CHURCH (0) | 2021.10.19 |
| GAEPODONG CHURCH (0) | 2021.09.02 |
마실와이드 | 등록번호 : 서울, 아03630 | 등록일자 : 2015년 03월 11일 | 마실와이드 | 발행ㆍ편집인 : 김명규 | 청소년보호책임자 : 최지희 | 발행소 : 서울시 마포구 월드컵로8길 45-8 1층 | 발행일자 : 매일



