
상하이 외곽 신창 고진 인근에 자리한 게스트하우스는 넓게 펼쳐진 논 풍경 속에서 시작된 프로젝트이다. 대지에 처음 도착했을 때 마주한 끝없는 논과 자연의 분위기는 이 건축이 지향해야 할 태도를 분명하게 제시했고, 프로젝트 전반은 자연과의 공존을 전제로 한 공간 구성으로 전개되었다.
이 게스트하우스는 기존의 브랜드형 숙소와 달리, 건축주가 설계에 비교적 큰 자율성을 부여한 사례이다. 초기 논의에서 제시된 요구는 객실 수와 공용 공간의 기본적인 기능, 그리고 외부와 옥상 테라스의 적극적인 활용 정도에 그쳤다. 이러한 조건은 설계자가 장소와 프로그램의 관계를 보다 유연하게 해석할 수 있는 여지를 만들었다.
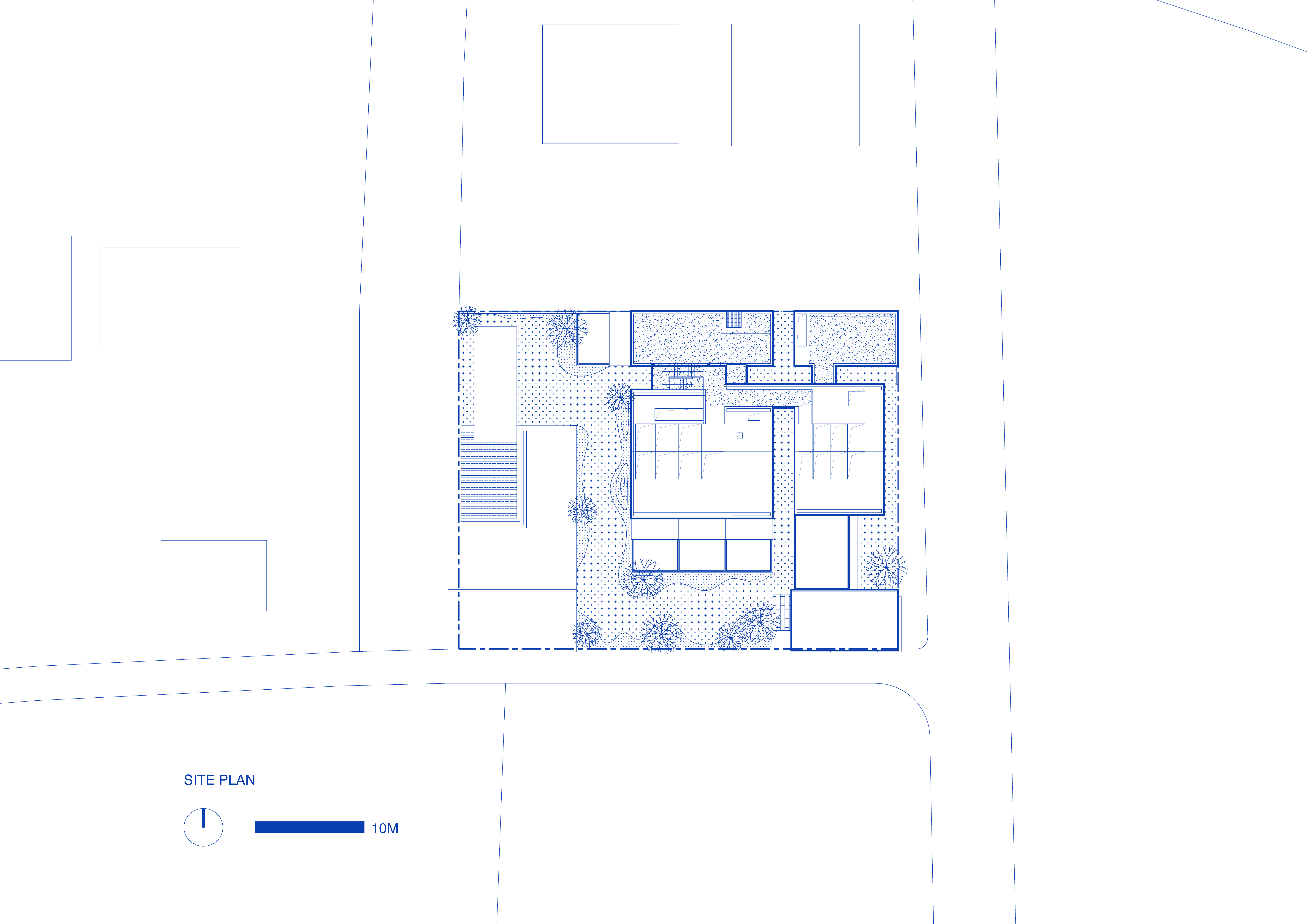
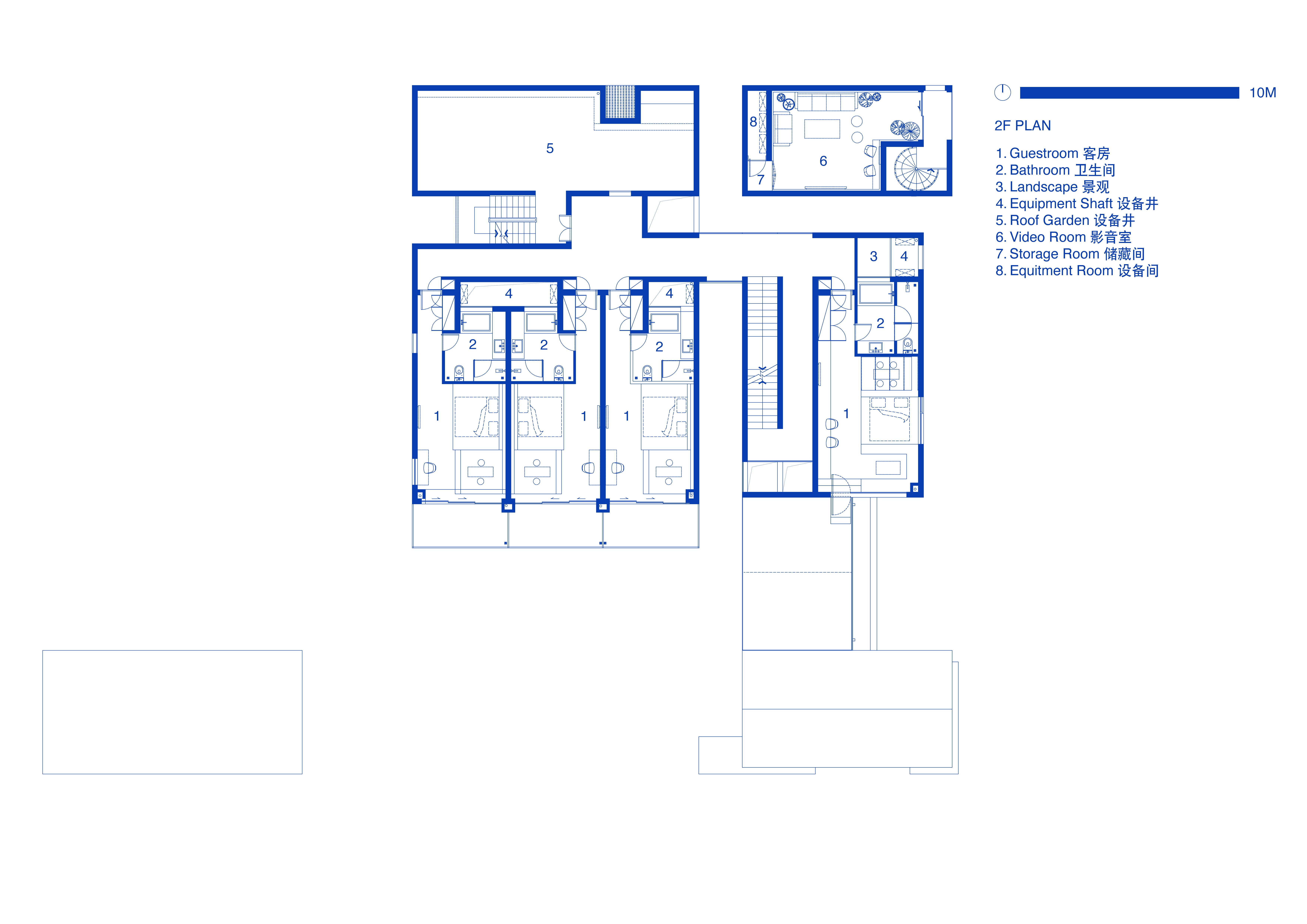
대상지는 두 채의 자가 건축 농가 주택으로 구성되어 있었으며, 기존 형태와 내부 공간은 현대적인 숙박 시설의 요구를 충족하기 어려운 상태였다. 설계는 기존 구조를 최대한 보존하는 방향을 택했고, 과도한 철거나 증축을 피하면서 조건에 맞게 공간을 재구성했다. 그 결과, 11개의 객실과 연회장, 마작실 등 복합적인 공용 기능을 갖춘 게스트하우스로 재편되었다. 동시에 행정 절차와 시공 과정에서 발생하는 불확실성을 고려해, 현실적인 제약과 설계 의도 사이의 균형을 유지하는 것이 중요한 과제로 작용했다.
The Catcher라는 이름은 이 프로젝트의 공간적 태도를 상징한다. 설계는 ‘포착하다(Catching)’라는 개념을 중심에 두고, 건축과 논 풍경 사이의 관계를 강조한다. 제한된 예산 안에서 기존 구조를 가능한 한 유지하면서, 진입부에 위치한 박공지붕의 목구조 건물 역시 원형을 존중해 남겨두었다. 여기에 실내외의 연결, 프레임을 통한 풍경의 도입, 그리고 동선의 겹침을 통해 건축은 주변 자연의 일부로 작동한다. 논 한가운데 서 있는 ‘포착자’처럼, 이 건물은 독립적이면서도 주변 풍경에 자연스럽게 스며든다.
공간 구성의 핵심은 동선이다. 대지를 둘러싼 담장은 두 건물과 중정을 하나의 영역으로 묶고, 직사각형 대지의 세 모서리에는 로비, 파빌리온, 연회장과 같은 공용 프로그램을 담은 세 개의 볼륨이 삽입되었다. 이 볼륨들은 실내외 공간을 연결하는 매개체로 작동하며, 공용 영역과 객실 영역의 관계를 명확하게 정리한다.
기존 지형을 따라 로비에는 선큰 형태의 좌석 공간이 조성되었다. 이 공간은 작은 중정과 시각적으로 연결되며, 자연광과 정원의 풍경을 실내 깊숙이 끌어들인다. 이를 통해 반외부 공간은 단일한 장면이 아니라, 여러 층위의 경험을 담는 장소로 확장된다.
리노베이션 과정에서 설계는 기존과 새로운 개입 사이의 관계를 신중하게 다뤘다. 진입부의 기존 박공지붕 주택은 전체 구성과 다소 다른 인상을 주지만, 구조는 유지한 채 안전상의 이유로 지붕만 알루미늄-마그네슘-망간 패널로 교체되었다. 새로운 개입 역시 명확한 이유를 전제로 이루어졌으며, 예를 들어 객실 욕조 공간 창밖의 조경은 단순한 장식이 아니라, 벽면을 따라 노출된 배관을 자연스럽게 가리기 위한 장치로 작동한다.
기존 건축 리노베이션에서 흔히 마주하는 예산과 시공 환경의 제약 역시 이 프로젝트의 중요한 조건이었다. 설계는 고정형 가구 시스템을 통해 객실 내 다양한 기능을 통합함으로써 비용을 절감했고, 지역 시공 방식에 맞춰 디테일을 단순화하며 구현 가능성을 높였다. 재료와 공법은 현지에서 쉽게 시공할 수 있으면서도 내구성이 확보된 방식을 중심으로 선택되었다.
The Catcher는 자연, 기억, 장소의 감각에 대한 TEAM_BLDG의 응답이다. 이 건축은 단순히 숙박 기능을 제공하는 데 그치지 않고, 사람과 땅, 과거와 현재를 잇는 매개로서 논과 시간을 함께 바라보는 장소가 되기를 지향한다.



































건축가 팀_빌딩(TEAM_BLDG)
위치 중국, 상하이, 푸동, 신창
용도 게스트하우스, 카페
설계기간 2023.05 – 2024.04
시공기간 2024.02 – 2024.08
건축면적 897㎡
조경면적 773㎡
디자인팀 Xiao Lei, Deng Zhaojing, Deng Caiyi, Shigeno Yuji, Shen Ruijie
사진작가 Hu Siyuan
'Architecture Project > Commercial' 카테고리의 다른 글
| 숲과 순환을 기반으로 한 목조 오피스, 말라츠키 오피스 콤플렉스 / 프로데시/도메시 (0) | 2026.01.23 |
|---|---|
| 극한 기후에 대응하는 모듈형 산업 식당 건축 / 스튜디오 닷 (0) | 2026.01.05 |
| 나무를 피해 만들어진 매스: 자연에서 출발한 파라메트릭 파사드 / 알에이디 + 에이알 (0) | 2025.12.16 |
| 바람·흙·숲이 이루는 항만 경계의 건축적 레이어링 / 비+피 아키텍츠 (0) | 2025.11.21 |
| 공간을 잇는 반외부 구조, 도시의 리듬을 만들다 / 아키트립 (0) | 2025.10.21 |
마실와이드 | 등록번호 : 서울, 아03630 | 등록일자 : 2015년 03월 11일 | 마실와이드 | 발행ㆍ편집인 : 김명규 | 청소년보호책임자 : 최지희 | 발행소 : 서울시 마포구 월드컵로8길 45-8 1층 | 발행일자 : 매일



