
LAB
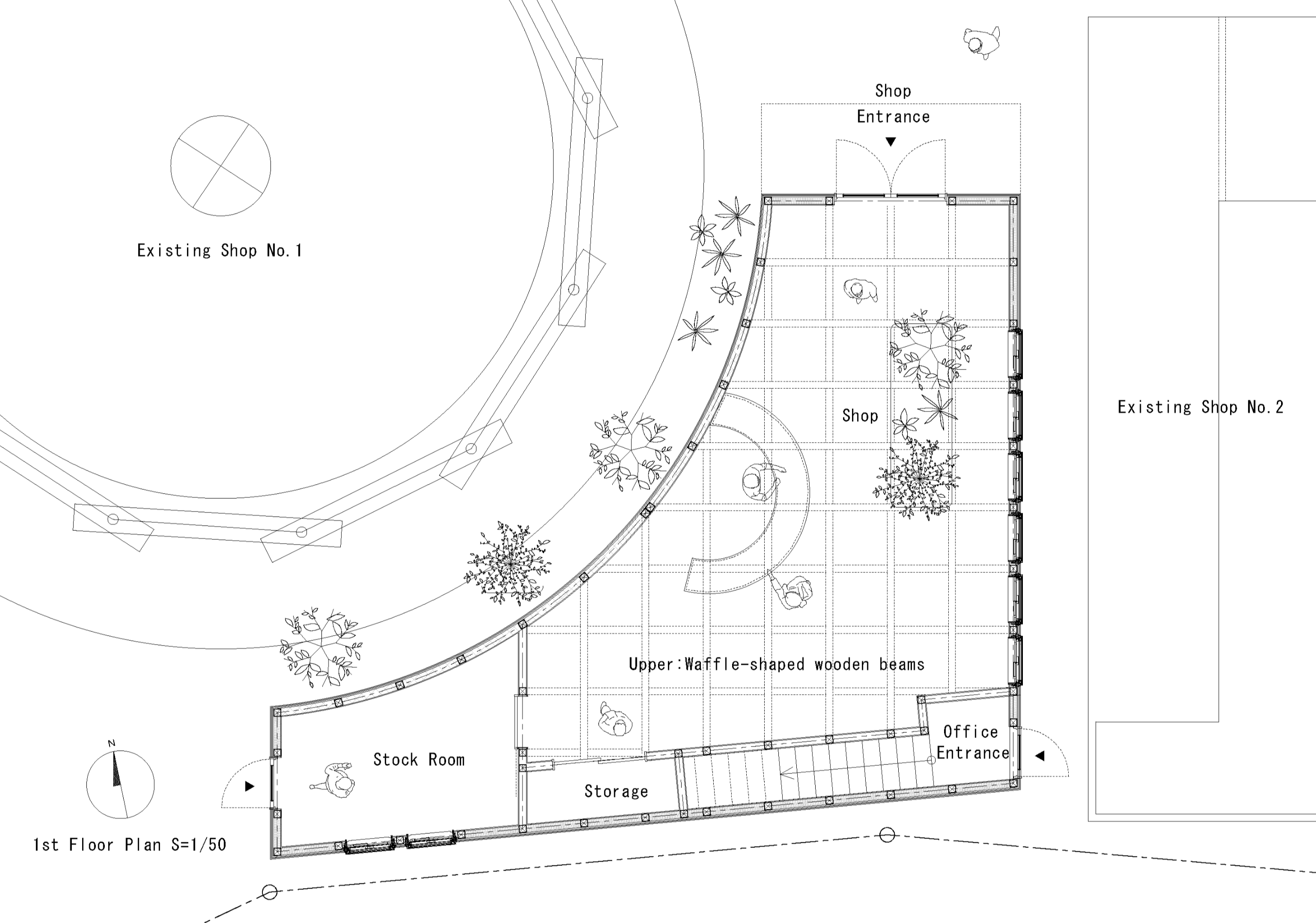
이 프로젝트는 후쿠시마현 후쿠시마시 중심부 상업시설 부지 내에 새로운 상점을 설계한 사례이다. 클라이언트의 요청은 기존 1호점과 2호점 사이의 89㎡ 부지에 세 번째 상점을 짓는 것이었다.
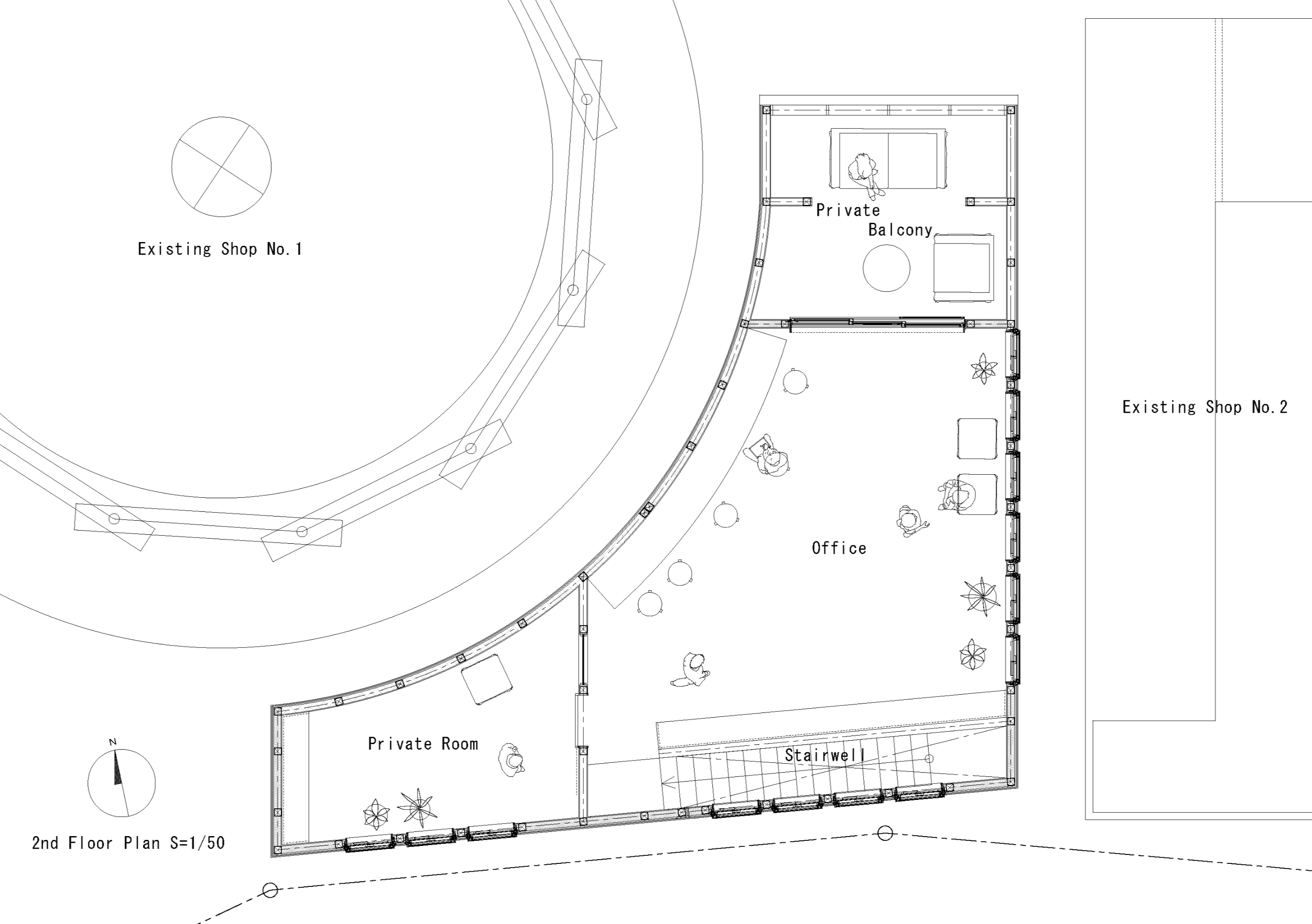
기존 1호점은 독특한 구조와 유기적인 평면 형태를 가진 반면, 2호점은 검은색 사이딩으로 마감된 단순한 형태의 건물이었다. 서로 대비되는 두 건물 사이에서 어떤 건축 언어로 새로운 건물을 세워야 할지가 가장 큰 과제였다. 이에 우리는 건물의 외곽선을 후퇴시키는 형태로 설계해, 1층은 상점, 2층은 사무실로 구성하면서 제한된 부지를 가장 효율적으로 활용했다.
두 기존 건물은 겉보기에는 서로 전혀 다른 건축물처럼 보이지만, 공통적으로 목재를 활용한 반외부 공간을 디자인 요소로 포함하고 있었다. 이에 착안해, 세 번째 상점 역시 이러한 반외부 공간 개념을 이어받아 전체 구성의 조화와 연속성을 강화했다.
1층 상점의 출입구는 2층 일부가 오버행된 구조로, 기존 상점의 동선과 자연스럽게 이어지는 연속적인 흐름의 축을 형성한다. 이 반외부 공간은 세 상점을 연결하는 중요한 교차 지점이자 방문객의 체류 공간으로 작용한다.
실내로 들어서면 와플 구조의 목재 보가 천장에 노출되어 있으며, 높이 3.5m의 천장은 기존 상점의 반외부 공간과 연속되도록 설계되어 개방감 있는 공간을 만든다. 상부 측창으로 들어오는 자연광이 낮 동안 실내를 밝히며, 빛이 머무는 상점이라는 인상을 준다.
외부의 곡면 벽은 폭 300mm의 수직 사이딩으로 마감되고, 내부는 규조토로 마감되었다. 이 부드럽게 휘어진 벽은 공간에 깊이와 유연함을 더하며, 상점 전체의 분위기를 다채롭게 만드는 시각적 포인트가 된다.
2층 사무실에는 부지 전체를 조망할 수 있는 프라이빗 발코니가 계획되어, 전체 상점군을 한눈에 조망할 수 있도록 했다. 세 건물을 전체적으로 바라보면 마치 성격이 서로 다른 세 형제가 나란히 서 있는 모습처럼 보인다. 외형과 분위기는 다르지만, 세 건물은 의도적으로 공통된 디자인 요소를 공유해 마치 오랜 시간 이 자리에 함께 있었던 것처럼 자연스러운 풍경을 형성한다. 건축가들은 이 건물이 앞으로도 많은 이들이 찾아와 머무는 도시의 활력을 불어넣는 장소로 자리하길 바랐다.
















건축가 아키트립 (Architrip Inc.)
위치 일본, 후쿠시마
연면적 72m²
용도 문화시설
준공 2024
프로젝트건축가 Shota Kuwana, Ryota Hiraoka
디자인팀 Shota Kuwana, Ryota Hiraoka
시공 BONDS ARCHITECT Inc.
사진작가 Yoshiki Yokoyama
'Architecture Project > Commercial' 카테고리의 다른 글
| 나무를 피해 만들어진 매스: 자연에서 출발한 파라메트릭 파사드 / 알에이디 + 에이알 (0) | 2025.12.16 |
|---|---|
| 바람·흙·숲이 이루는 항만 경계의 건축적 레이어링 / 비+피 아키텍츠 (0) | 2025.11.21 |
| 서울 도시의 풍경을 그리는, 그리드 149/ 소수건축사사무소 (0) | 2025.08.21 |
| 서로 다른 시간과 물성으로 엮여있는 곳, 어몽헤어 / 오롯이 스튜디오 (0) | 2025.04.25 |
| Wood Gallery (0) | 2024.11.18 |
마실와이드 | 등록번호 : 서울, 아03630 | 등록일자 : 2015년 03월 11일 | 마실와이드 | 발행ㆍ편집인 : 김명규 | 청소년보호책임자 : 최지희 | 발행소 : 서울시 마포구 월드컵로8길 45-8 1층 | 발행일자 : 매일



