
Grid 149
양면의 그리드
그리드 149는 고층의 대규모 아파트 단지와 저층 소규모 공동 주거의 경계에 있다. 이 경계는 아파트와 소규모 공동 주거의 주민들이 다양한 일상을 공유하는 생활 가로이다. 생활가로의 활력을 유지하며, 아파트 일색의 도시에서 다양한 주거 생태계를 위한 새로운 저층 주거에 대한 고민이 프로젝트의 시작이다. 생활 가로의 활성화를 위한 저층 상업시설의 주변으로의 ‘열림’과 아파트 못지않은 주거의 프라이버시를 위한 ‘닫힘’이 공존할 수 있도록 땅과 길의 경계에 건축적인 장치인 그리드를 제안하였다. 안과 밖으로 작동하는 양면의 그리드는 닫힌 담장이 되는 동시에 열린 창이 되기도 한다. 그리드와 외벽 사이의 비워진 여지의 공간은 서향의 빛을 조율하는 가림막이자, 일상을 보호하는 구조물이 된다.

크기와 깊이를 조율하는 그리드
주변보다 큰 대지에 최대 볼륨을 계획하는 것은 기존 도시에 이질적인 스케일을 더하여 포화 상태의 복잡한 도시에 더 높은 밀집을 더하는 것이다. 거대한 볼륨을 에워싸는 분절된 그리드는 기존 도시의 스케일과 조화를 이루고, 건물의 새로운 풍경을 만드는 장치이다. 사선으로 된 이형의 대지 형태를 따라 만들어진 그리드와 정형의 건물이 만나서 다양한 깊이의 켜를 만들어 낸다.


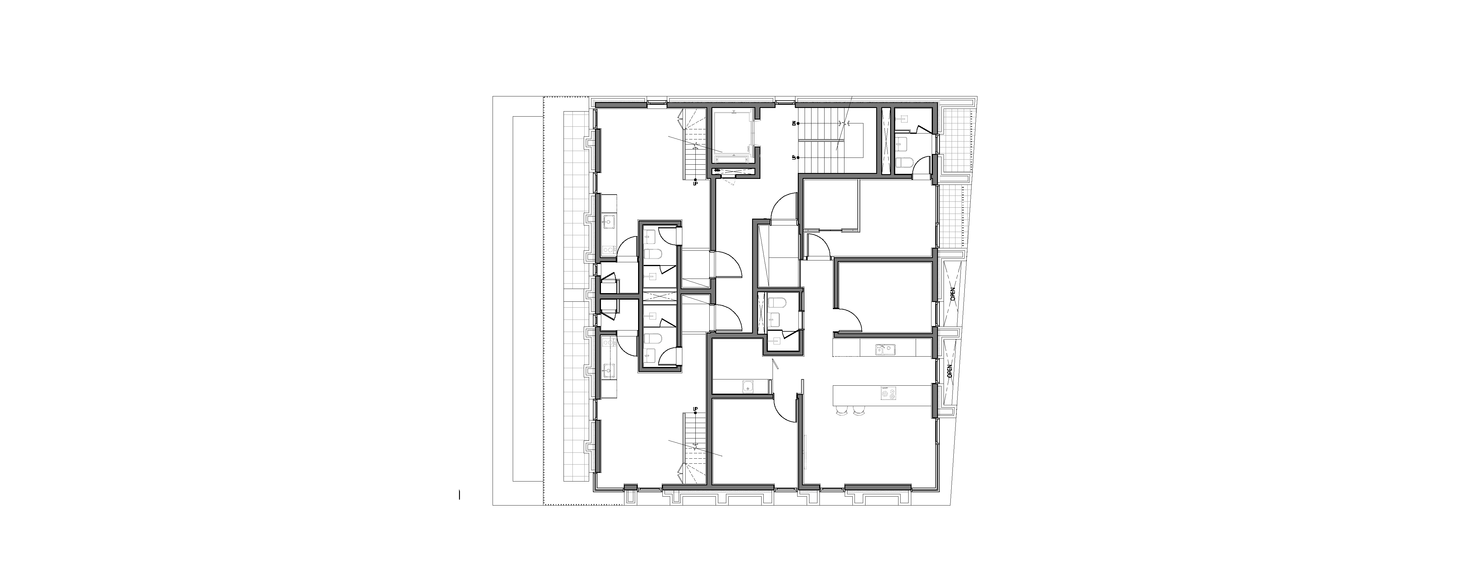
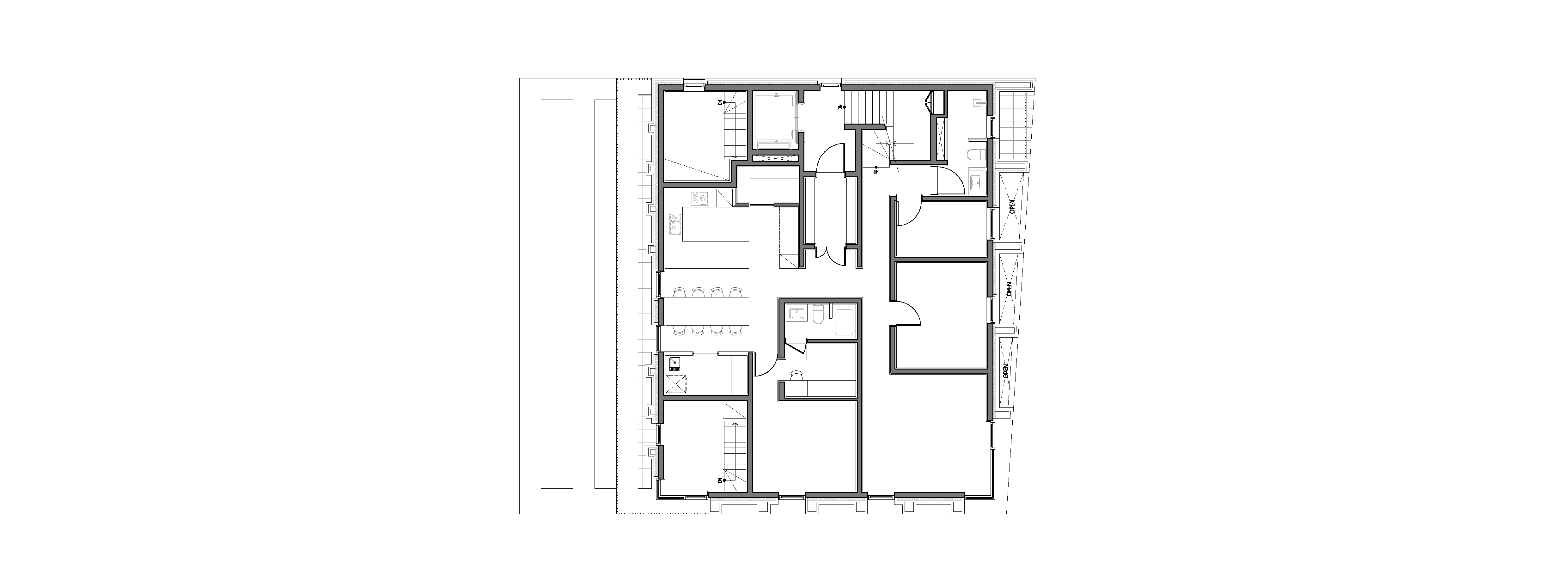
얕은 깊이감을 가지는 도로의 교차 면에는 거실과 응접실, 주방 등 비교적 공적인 영역을 배치하고, 깊은 깊이감을 가지는 부분에는 침실, 욕실 등을 배치하여 도시로 좀 더 열린 주거를 계획하고자 하였다. 향마다 다른 깊이를 가지는 그리드는 각 향에 맞게 일조량을 조율하는 처마와 차양으로 친환경적인 장치이다.






규칙 속의 다양함
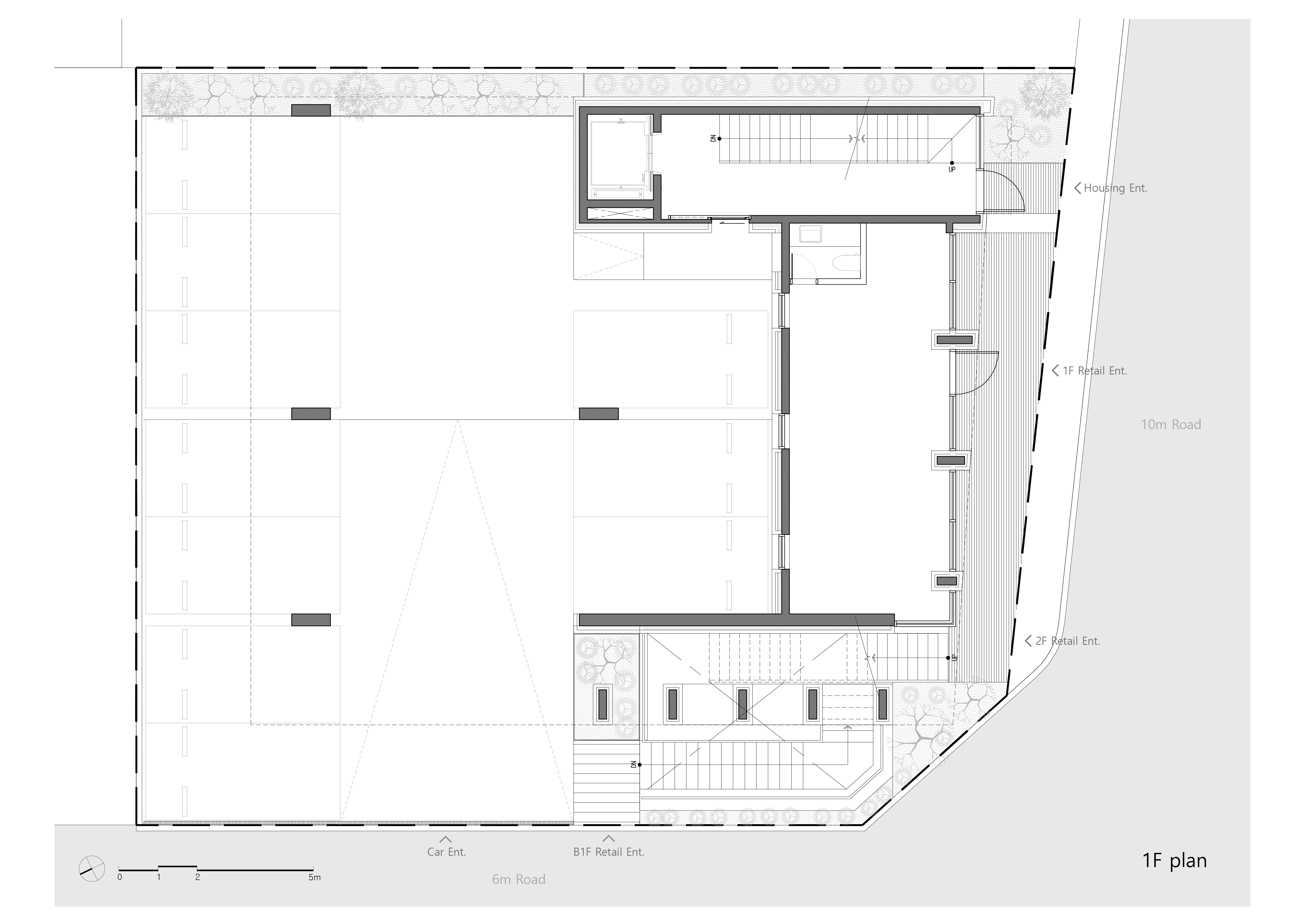
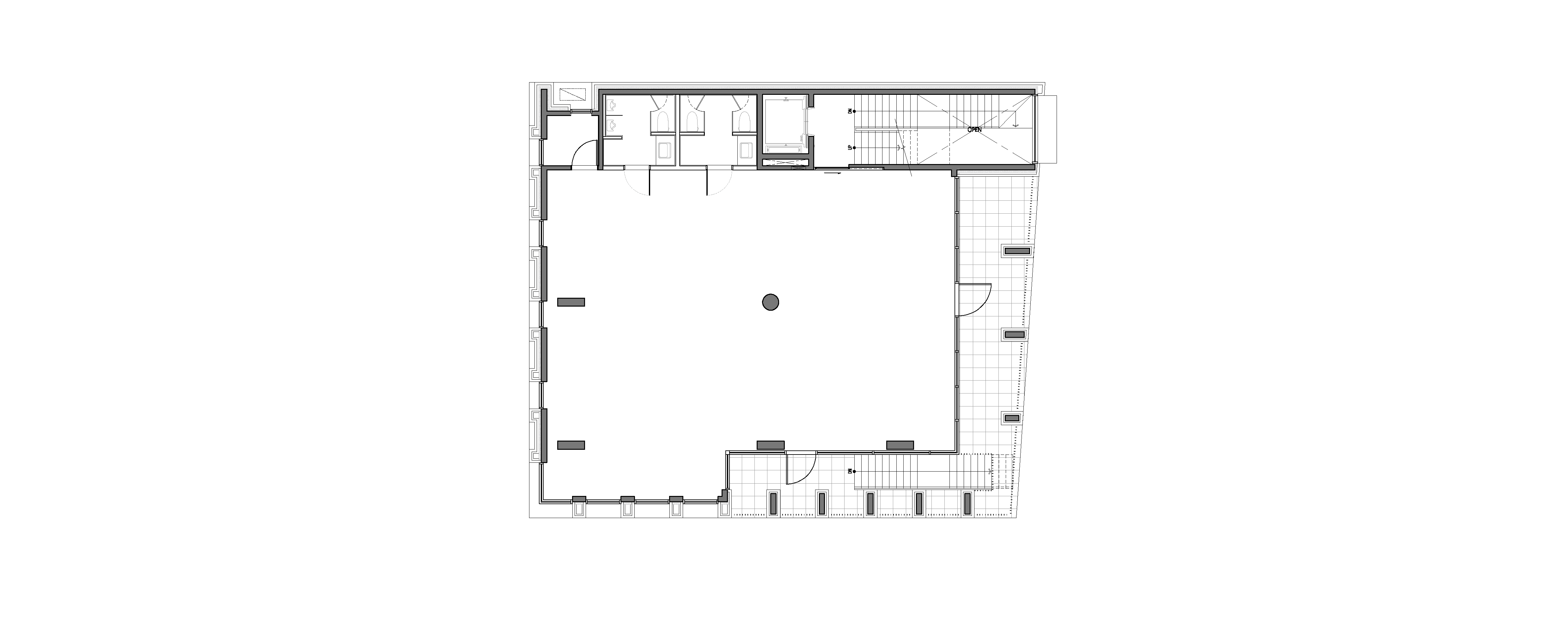
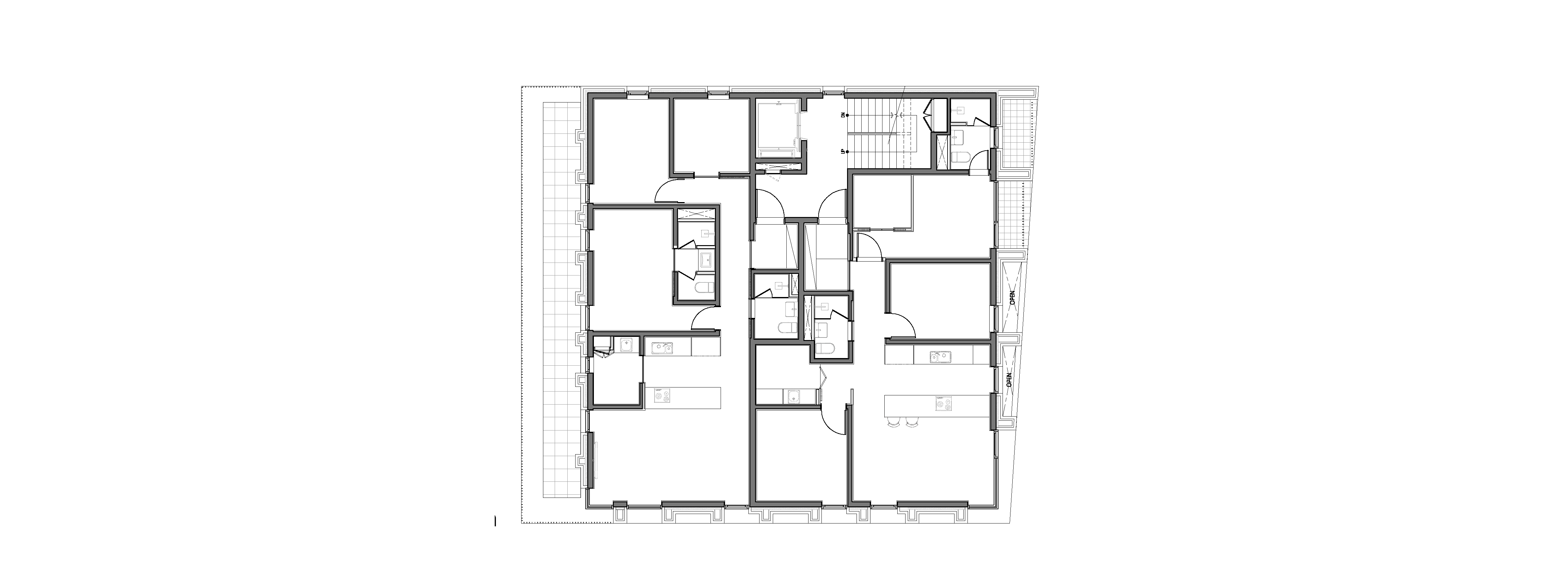
그리드 149는 생활가로의 맥락을 이어 지하 1층~2층 저층부는 상가로 지상 3~5층은 주거로 구성된 복합 건물이다. 상층부 주거는 1인 가구부터 4인 가구에 이르는 다양한 유형의 세대가 이용할 수 있는 다변적인 세대 구성이다. 모든 주거는 북측과 남측으로 크고 작은 발코니, 정원 등의 개인화된 외부공간을 가진다. 가로에서 접근성이 가장 좋은 2층은 생활가로와의 연계성을 고려하여 그리드로 둘러싸인 반외부 공간을 계획하였다. 발코니로 둘러싸인 근린생활시설은 어디에서 출입이 가능한 구조로 사용 용도와 임대 형식이 불규칙적인 근린생활시설의 특성을 고려한 유연한 구조이다. 저층 근린생활시설에서 가로와 직접 연결되는 그리드 속 반외부 공간은 근린생활시설에서는 어지러운 주변 풍경을 정돈하여 내부로 끌어들이는 필터의 공간이다.


서울의 일상성
서울시의 약 80% 이상의 필지가 300㎡ 이하에 해당한다고 한다. 그중 절반 이상이 주거지역이 차지하고 있다. 서울 대부분의 소규모 필지는 8-90년대 서울의 인구 집중 현상으로 다가구/다세대주택 등으로 무분별하게 개발되면서, 도시에서 함께 모여 살기 위한 도시를 구성하는 최소한의 공동 규칙이 부재한 현실이다. 이렇게 개발된 노후 주거지는 2025년 또 한 번 변화의 시기를 겪고 있다. 과거에 미쳐 채워지지 못한 여분의 용적률은 상가주택이라는 이름으로 저층부 상가를 더해 도시에 더 밀도를 더하고 있다. 하지만 여전히 용도지역과 각종 기본적인 건축 규제 말고는 보이지 않는 공공의 가치를 위한 합의는 부재하다. 고도 자본화된 서울 대부분의 일상 풍경이 된 소규모 공동 주거는 개별 건축의 자발적 공공성을 요구한다. 최근 이러한 생활 건축의 최전선에 많은 젊은 건축가들이 참여하며, 많은 규제 속의 창의적 해법을 통해 자본의 욕망과 함께 사는 도시의 공공 가치의 균형을 맞추어 나가고 있다. 다가구/다세대 주택의 밀집된 모습은 이제 서울을 대표하는 서울 풍경이다. 도시의 소규모 공동 주거는 높은 지가의 도시에서 개성 있는 개인의 삶을 담을 수 있는 경제적이고 유연한 주거 형식이다. 이웃과 함께 사는 즐거움을 줄 수 있는 도심에서의 인간적인 최소 주거 유형인 것이다. 땅과 가깝게 관계 맺는 소규모 공동 주거의 건축 형태는 도시 일상 가로 공간에 많은 영향을 끼친다. 소규모 필지의 최대 용적률 확보를 위한 최대 주차 대수 확보로 주거 지역의 많은 건물들은 도시 가로에 앙상한 기둥들만 드러내고 있다. 도시 가로는 차에게 자리를 내어주고, 사람들이 다니기에 위험한 텅 빈 도시 공간이 된다. 우리가 매일 지나치는 숙명의 필로티 공간은 도시 공공공간으로서의 잠재적 가능성을 담고 있다. 용적률을 꽉꽉 채운 건물에서 건물과 도시 사이에 마주하고 있는 경계인 입면은 도시를 오고 가는 수많은 사람들에게 매일 마주치는 공공재이다. 단순한 껍데기가 아닌 깊이가 얕은 도시 공간인 것이다. 이러한 조건을 여러 가지 제약으로 만들어진 어쩔 수 없는 현상으로 바라보는 것을 넘어서서 건축적 가치의 차이를 인정하고 새로운 가능성을 모색하고자 한다. 또 한 번의 전환의 시기를 맞이하는 서울은 ‘파는 것’으로만 취급했던 주택 유형을 ‘사는 곳’으로 바라보며, 다가구/다세대 주택을 서울의 특징 있는 주거 형식으로서 그 공공의 가치에 관심을 기울일 때이다.







건축가 소수 건축사사무소 (SOSU ARCHITECTS)
위치 대한민국, 서울시, 송파구, 송파동
용도 근린생할시설, 다가구주택
대지면적 443.9㎡
건축면적 262.97㎡
연면적 982.88㎡
규모 지하 1층, 지상 5층
건폐율 9.24%
용적률 181.37%
준공 2024. 4.
대표건축가 고석홍, 김미희
디자인팀 박효택, 임연주
사진작가 노경
'Architecture Project > Commercial' 카테고리의 다른 글
| 바람·흙·숲이 이루는 항만 경계의 건축적 레이어링 / 비+피 아키텍츠 (0) | 2025.11.21 |
|---|---|
| 공간을 잇는 반외부 구조, 도시의 리듬을 만들다 / 아키트립 (0) | 2025.10.21 |
| 서로 다른 시간과 물성으로 엮여있는 곳, 어몽헤어 / 오롯이 스튜디오 (0) | 2025.04.25 |
| Wood Gallery (0) | 2024.11.18 |
| AC Hotel Marriott Seoul Geum-Jeong (0) | 2024.10.21 |
마실와이드 | 등록번호 : 서울, 아03630 | 등록일자 : 2015년 03월 11일 | 마실와이드 | 발행ㆍ편집인 : 김명규 | 청소년보호책임자 : 최지희 | 발행소 : 서울시 마포구 월드컵로8길 45-8 1층 | 발행일자 : 매일



