
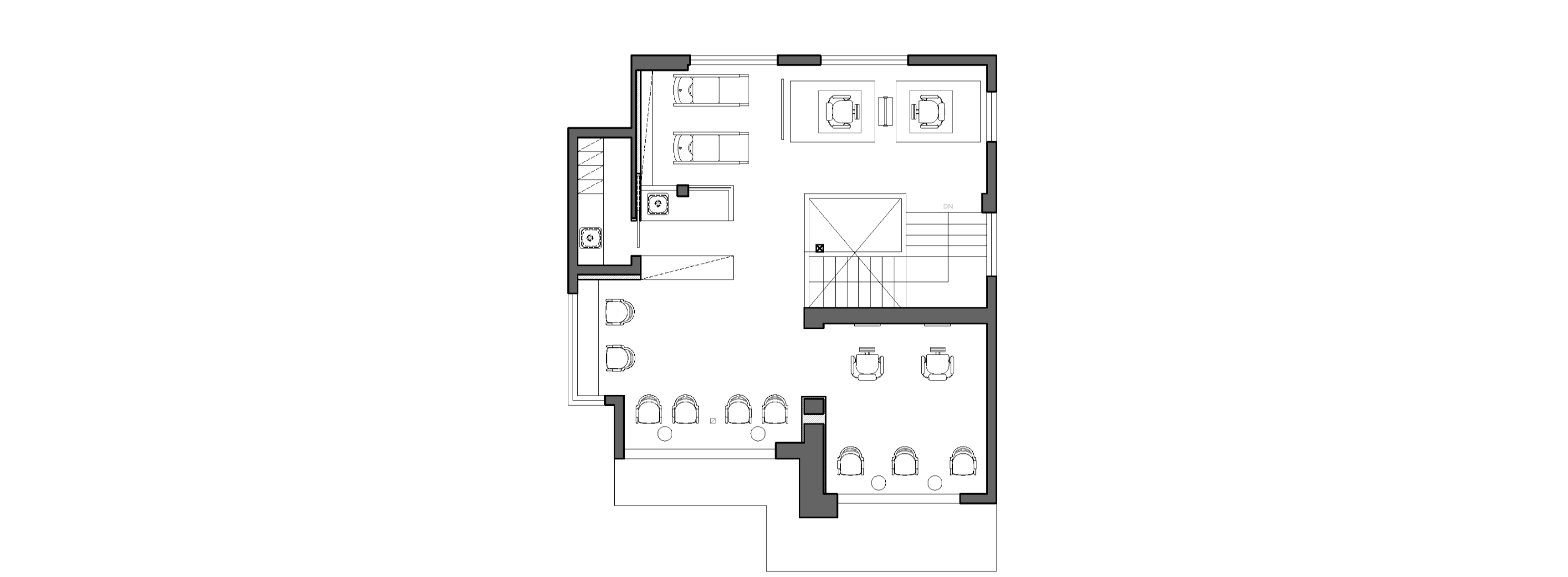
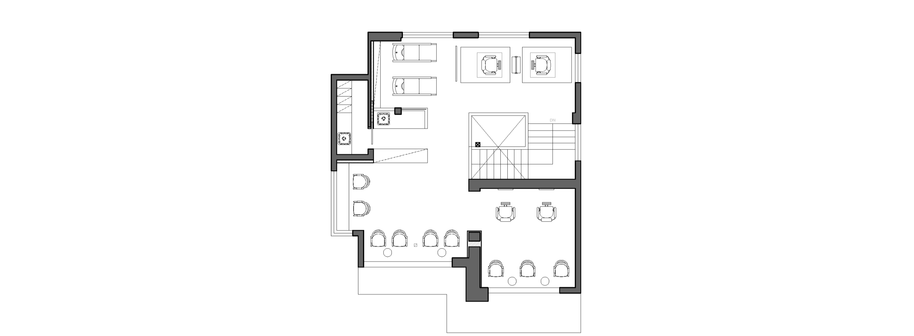
이 프로젝트는 오랜 세월을 간직한 단독주택을 개조한 형태로, 과거의 흔적과 현재의 디자인이 조화를 이루도록 설계되었다. 철거 과정에서 드러난 조적 기둥은 의도적으로 남겨졌으며, 이를 감싸는 맞춤 테이블이 함께 배치되어 서로 다른 물성의 공존을 시각적으로 드러낸다. 이러한 디테일은 브랜드가 지향하는 ‘엮임’의 개념을 공간 속에 자연스럽게 녹여낸다.



1층과 2층을 연결하는 길고 굵은 기둥은 공간의 중심축이자 시각적 상징으로 기능한다. 계단 위 보이드 공간은 축소하지 않고 그대로 유지되어 개방감을 확보했으며, 이를 가로지르는 구조물들은 서로 엮인 듯한 형상을 띠어 공간 전반에 흐르는 유기적인 연결감을 강조한다.




1층은 방문객을 따뜻하게 맞이하는 개방형 공간으로 구성되었으며, 자연스럽게 소통이 이루어지는 분위기를 유도한다. 이에 반해 2층은 보다 개인적인 경험에 집중할 수 있는 프라이빗한 구조로 구성되어 있다. 스페셜 경대와 금속 소재의 커스터마이즈 경대가 배치되어 있으며, 전면에 설치된 통유리는 외부 자연을 내부로 끌어들여 사계절의 흐름을 감상할 수 있는 여유를 제공한다. 이처럼 어몽헤어는 물리적 공간 이상의 의미를 지닌 장소로, 관계와 시간이 교차하는 순간을 감각적으로 엮어낸다.


위치 서울 마포구 양화로11길 31 1, 2층
프로젝트면적 198㎡
준공 2025. 1.
사진작가 Yongjoon Choi
'Architecture Project > Commercial' 카테고리의 다른 글
| 공간을 잇는 반외부 구조, 도시의 리듬을 만들다 / 아키트립 (0) | 2025.10.21 |
|---|---|
| 서울 도시의 풍경을 그리는, 그리드 149/ 소수건축사사무소 (0) | 2025.08.21 |
| Wood Gallery (0) | 2024.11.18 |
| AC Hotel Marriott Seoul Geum-Jeong (0) | 2024.10.21 |
| Kaew Boutique (0) | 2024.10.21 |
마실와이드 | 등록번호 : 서울, 아03630 | 등록일자 : 2015년 03월 11일 | 마실와이드 | 발행ㆍ편집인 : 김명규 | 청소년보호책임자 : 최지희 | 발행소 : 서울시 마포구 월드컵로8길 45-8 1층 | 발행일자 : 매일



