
AC호텔 바이 메리어트는 금정역에서 시작한 일반상업지역의 경계에 위치하여 일반주거지역과 접해있다. 대지는 동측으로는 군포로, 북측으로는 금정로와 접해있으며 북측과 남측으로 사다리꼴을 한 형태다. 전면도로의 건너편에는 지하철과 열차가 운행하는 철길이 있고, 철길을 따라 안양천이 흘러 도심지에서도 언제든 외부 조망이 가능한 입지에 있다.
건축가는 이미 설계가 완료되어 기존 건축물의 철거가 완료되고, 흙막이 공사를 시작하는 단계에서 프로젝트에 투입되었다. 건축주는 우연한 기회로 호텔 대지를 구입하여 기존 호텔의 문제점을 개선하여 새롭게 호텔을 운영하게 되었다. 건축가는 고객의 선호도를 고려하여 메리어트 호텔 브랜드에 위탁 운영하는 방식으로 결정된 후, 기존에 납품되었던 설계 도면의 검수와 현장 상황에 따른 시공 계획을 수립하는 작업에 착수했다.
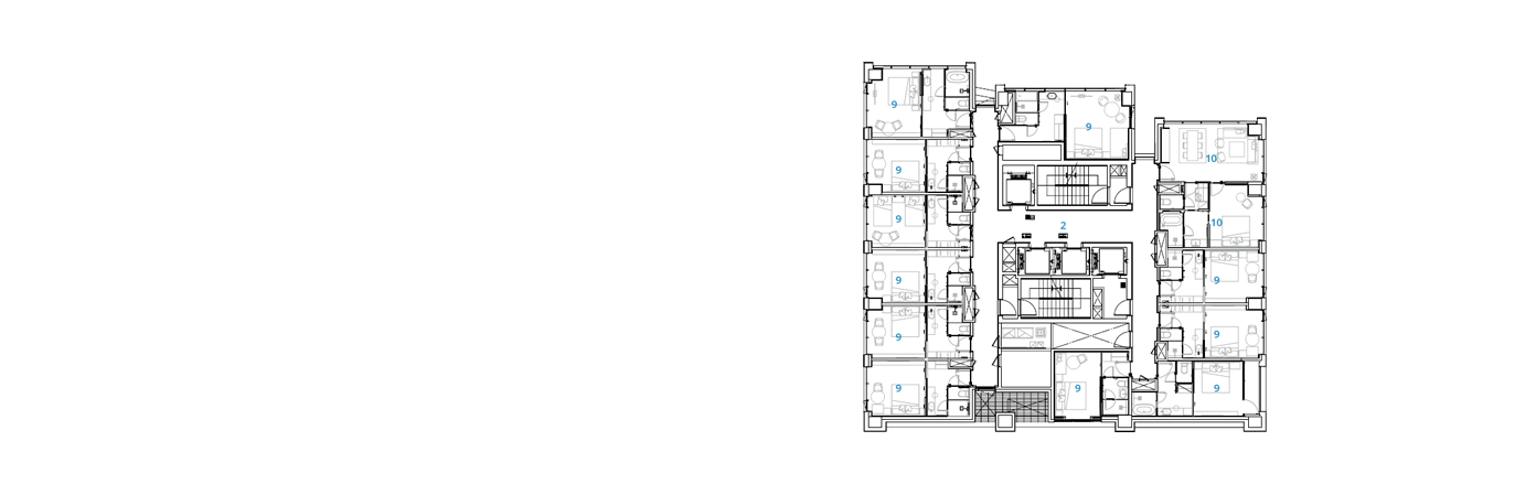
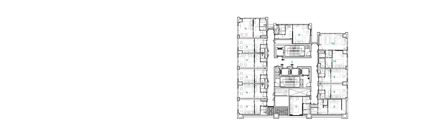
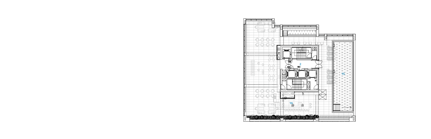
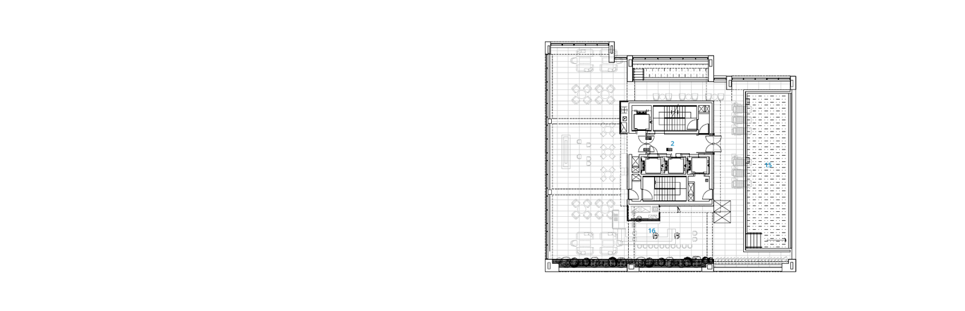
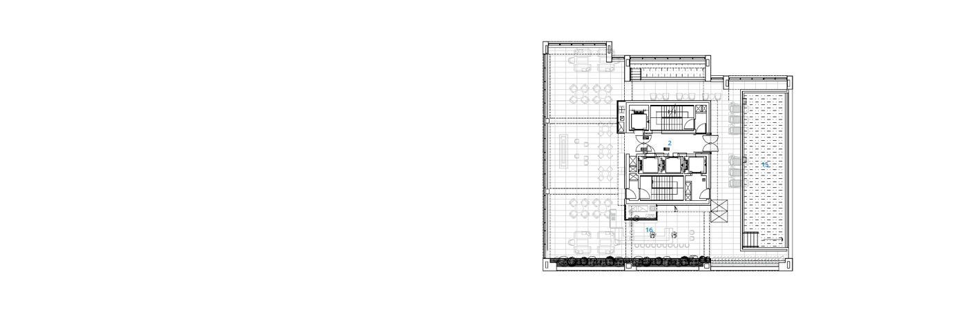
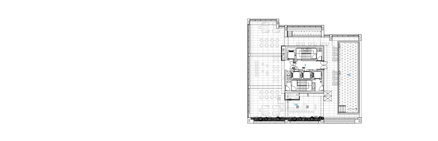
기존의 설계 도면은 호텔의 용도에 맞추어 설계 변경이 필요한 부분이 있었다. 객실이 많아야 하는 비즈니스호텔의 특성에 비해 계획된 객실 수는 200개에 한참 못 미쳤고, 사우나 등 불필요한 부대시설이 많은 면적을 차지하고 있었다. 또한 지하주차장의 기둥 간격에 맞추어 호텔 객실의 내부에 독립된 기둥이 배치된 점이나 바닥면적을 고려하지 않은 높은 층고, 객실의 조망과 보행로를 향한 입면에 대한 고려가 없는 등, 실의 용도와 기능이 고려되지 않은 계획을 전면 수정해야 했다.
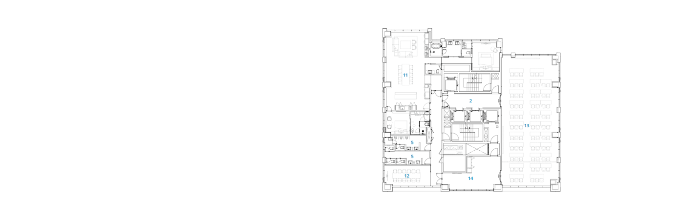
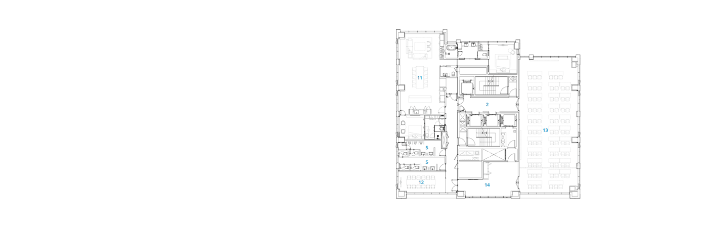
건축가는 이러한 문제점을 해결하고 보완하기 위해 기존 설계자와의 공동 작업을 진행했다. 비즈니스호텔의 사업성을 고려하여 객실 수를 최대한 확보했고, 부대시설은 필요한 프로그램을 제외하고 최소화했다. 주변 환경을 고려하여 로비는 최상층으로, 수영장은 조망이 좋은 방향으로 위치를 변경하며 루프탑 바를 추가하여 특색 있는 편의시설을 확보했다. 객실은 기둥이 포함되지 않도록 위치를 조정했다. 기준층을 3.6m에서 3.3m로 변경하고 부대시설의 층고도 시설의 기능에 따라 조정하며, 자연스럽게 구조체와 외벽 마감재를 줄일 수 있었고 전체적인 공사비를 절감하게 되었다.
입면은 전면도로 방향으로 객실을 배치하여 보행자를 향한 정면성을 확보할 수 있었다. 호텔 건축물은 어디에서나 잘 보여야 하기에 실제 건축물 높이보다 높게 보이도록 3등분으로 분절하였다. 그렇게 만들어진 볼륨에 경관조명을 활용하여 금정역에서부터의 접근성을 높였다.

















건축가 플라건축사사무소
위치 경기도 군포시 군포로 697(금정동)
용도 관광숙박시설
대지면적 926.20㎡
건축면적 552.21㎡
연면적 12,300.90㎡
규모 지하 5층, 지상 20층
건폐율 59.62%
용적률 659.35%
준공 2024. 4.
구조 철근 콘크리트조
대표건축가 정준철
프로젝트건축가 (플라 건축사사무소)정준철 / (주.종합건축사사무소 탑)조정철
디자인팀 (플라 건축사사무소)신나영, 김민석 / (주. 종합건축사사무소 탑)양석
발주자 주식회사 프라임아이티
사진 이남선
해당 프로젝트는 건축문화 2024년 10월호(Vol. 521)에 게재되었습니다.
The project was published in the October, 2024 recent projects of the magazine(Vol. 521).
October 2024 : vol. 521
Contents : COMPETITION : RECENT PROJECTSilver for Rest / so-ul architects은빛 숲 / 소을건축사사무소Ginkgo Gallery / MORE Architecture긴코 갤러리 / 모어 아키텍처The April House / YAYArchitects사월애가(四月愛家) / (주
anc.masilwide.com
'Architecture Project > Commercial' 카테고리의 다른 글
| 서로 다른 시간과 물성으로 엮여있는 곳, 어몽헤어 / 오롯이 스튜디오 (0) | 2025.04.25 |
|---|---|
| Wood Gallery (0) | 2024.11.18 |
| Kaew Boutique (0) | 2024.10.21 |
| Day and Night Park by Jetlag Books (0) | 2024.10.16 |
| ARK (0) | 2024.09.09 |
마실와이드 | 등록번호 : 서울, 아03630 | 등록일자 : 2015년 03월 11일 | 마실와이드 | 발행ㆍ편집인 : 김명규 | 청소년보호책임자 : 최지희 | 발행소 : 서울시 마포구 월드컵로8길 45-8 1층 | 발행일자 : 매일



