
용산고등학교의 ‘꿈은 담은 교실’, 일명 꿈담교실은 학교의 특성과 교육 방향을 반영해 조성된 참여형 교육 공간이다. 이 프로젝트는 학생과 교사 등 학교 구성원이 설계 초기 단계부터 직접 참여해, 배움과 쉼, 놀이가 공존하는 삶의 공간으로서의 교실을 만들어가는 데 목적을 두었다.
설계 과정에서는 실제로 이 공간을 사용하는 용산고 학생들이 자신의 생각과 요구를 표현할 수 있도록 워크숍을 진행했다. 그 결과 수업 공간뿐 아니라 휴게 공간, 독서 공간, 혼자 머무를 수 있는 공간 등 학생들의 일상과 감정 상태를 고려한 다양한 공간 요소가 프로그램에 반영되었다.
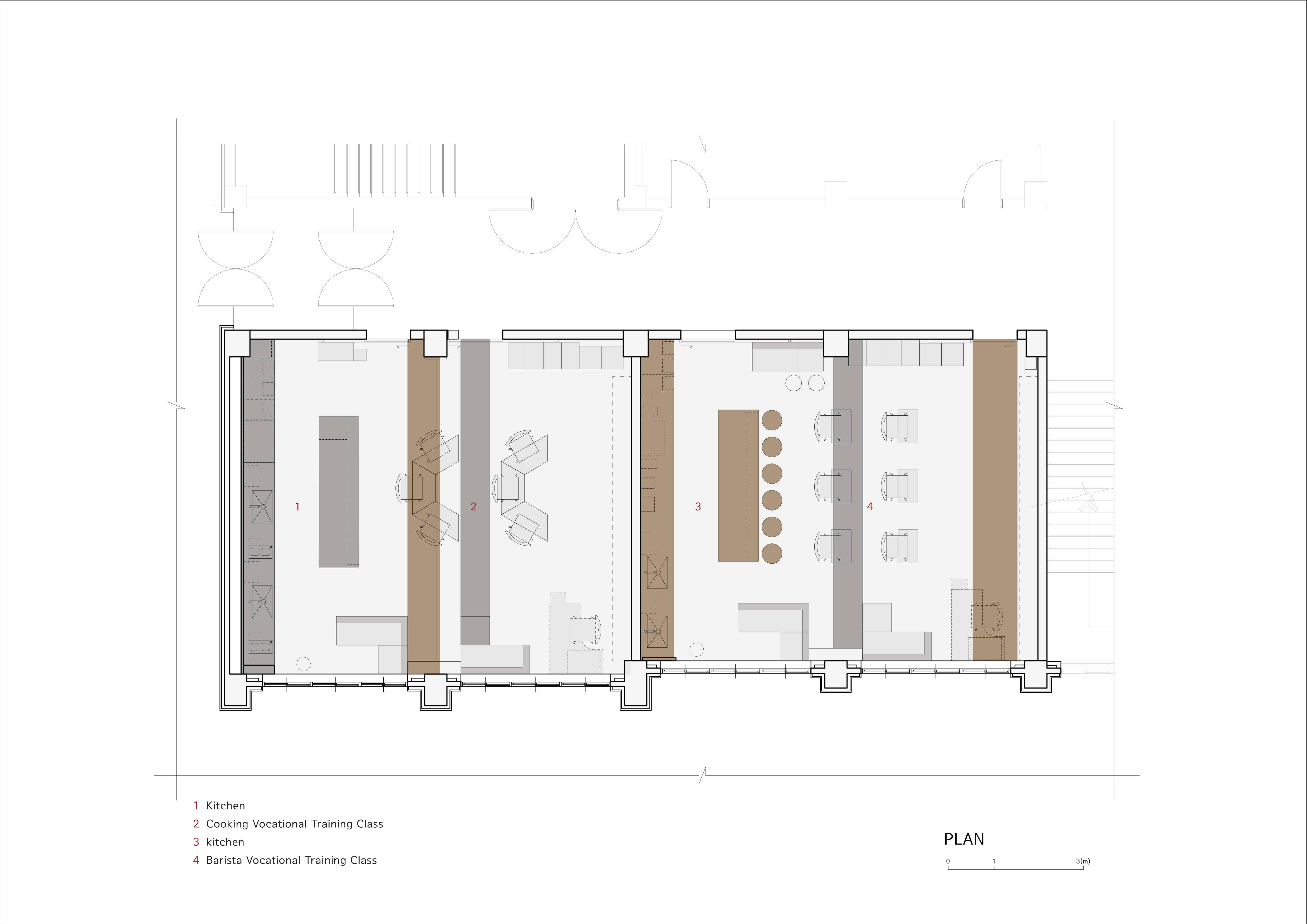
꿈담교실은 1층과 3층에 걸쳐 조성되었으며, 장애 학생의 직업훈련과 일반 고등 교육이 함께 이루어지는 통합형 교육 공간이다. 1층에는 가사교육실과 카페교육실이, 3층에는 디지털교육실이 배치되었으며, 기존의 소회의실, 생활지도부, 위클래스, 일반 교실 등이 새로운 교육 환경으로 재구성되었다.
카페교육실과 가사교육실은 실무 중심의 직업 체험 훈련이 가능하도록 계획되었다. 교실 한쪽에는 주방 가구와 아일랜드를 배치하고, 커피 머신과 포스기 등 실제 교육에 필요한 설비를 기능적으로 구성했다. 반대편에는 일반 수업이 가능하도록 칠판과 모니터를 설치해, 직업 교육과 이론 수업이 동시에 이루어질 수 있도록 했다. 창가에는 소파를 배치해 학생들이 쉬거나 놀이처럼 수업에 참여할 수 있는 여유로운 분위기를 조성했다.
공간의 성격을 구분하기 위해 마감에서도 차이를 두었다. 카페교육실은 주방 영역을 우드 톤으로 마감해 교실 영역과 구분하고, 출입문에서 천장으로 이어지는 면은 진회색으로 처리해 공간 전체를 감싸는 차분한 인상을 더했다. 가사교육실은 이와 반대로 주방 영역을 진회색, 나머지 영역을 우드 톤으로 마감해 두 공간 사이의 대비 속에서도 통일감을 유지했다.
디지털교육실은 보다 복합적인 프로그램을 담고 있다. 이 공간은 실무사실, 심리 안정 공간, 북카페 공간, 강의 공간, 학습 공간으로 구성되며, 특히 학생들의 정서적 안정과 집중을 고려한 배치가 특징이다. 북카페 공간은 아늑하고 정적인 분위기 속에서 학습과 독서가 가능하도록 계획되었고, 교실 한편에는 벽과 소파를 활용한 심리 안정 공간을 마련해 필요 시 분리와 이완이 가능하도록 했다. 특수교사가 수업을 준비하는 실무사실은 화이트 톤으로 마감해 업무 집중도를 높였다.
전체 공간은 특수교실의 특성을 반영해 시각적으로 어수선하지 않도록 우드와 회색 계열을 중심으로 차분하게 구성되었다. 각 교실에 배치된 책상은 사용 목적에 따라 자유롭게 조합할 수 있는 모듈형 가구로, 개인 학습부터 모둠 활동까지 유연하게 대응할 수 있다.
꿈담교실은 단순한 교실 리모델링을 넘어, 학생의 삶과 감정을 담아내는 교육 공간 실험이다. 참여형 설계 과정과 공간 구성 전반을 통해, 학교가 배움의 장소를 넘어 머무르고 관계 맺는 환경이 될 수 있음을 보여준다.






























건축가 G/O architecture(지오아키텍처)
위치 서울 용산구 두텁바위로
용도 교육시설
프로젝트면적 330㎡
사진작가 tqtq studio
'Interior Project > Education' 카테고리의 다른 글
| 집중과 공유가 공존하는 공간, 고쿠요 러닝 존 / 디디에이에이(DDAA), 고쿠요 (KOKUYO) (0) | 2025.11.03 |
|---|---|
| 석재와 유리, 빛으로 엮인 파사드의 구축적 대화 / 마넹 아키텍처 (0) | 2025.10.28 |
| 공(空)과 칸(間)의 구축(構築) - 뉴욕한국문화원 도서관 / 스튜디오 엠퍼띠, 프락세스 (0) | 2025.10.20 |
| 재사용 자재와 유연한 구조로 완성한 지속 가능한 교실 / 엔더블유엘엔디 로지에르스 반더퓌테, 크리스 브루아디오이 _ 아틀리에 피피더블유 (0) | 2025.09.18 |
| 지식이 꽃피는 언덕, 중국의 커뮤니티 도서관 / 스텝스 아키텍처 (0) | 2025.09.02 |
마실와이드 | 등록번호 : 서울, 아03630 | 등록일자 : 2015년 03월 11일 | 마실와이드 | 발행ㆍ편집인 : 김명규 | 청소년보호책임자 : 최지희 | 발행소 : 서울시 마포구 월드컵로8길 45-8 1층 | 발행일자 : 매일



