
Flower on Hillside Community Library
이 프로젝트는 운남성 누강(怒江) 대협곡 깊숙한 지역, 공산현 빙중뤄진 치우나퉁 마을에 자리한다. 고산지대 특유의 험준한 지형과 고립된 입지 덕분에 누족을 비롯한 소수민족의 전통 가옥이 남아 있지만, 기반 시설 확충과 환경적 이유로 이주가 늘면서 많은 가옥이 훼손되거나 방치되고 있다.
공산현은 2020년에야 빈곤에서 벗어난 지역으로, 아이들이 양질의 교육을 접할 기회도 부족했다. 이곳 출신인 간(Gan) 씨는 지역 아이들이 더 넓은 세상을 배우고 나아갈 수 있도록, 자신의 집 몇 채를 개조해 ‘언덕 위의 꽃(Flower on Hillside)’이라는 어린이 도서관을 열었다. 2016년 문을 연 이 공간은 반경 225km 내 유일한 도서관으로, 장서 규모는 처음 100권에서 현재 4만 권 이상으로 성장했다.
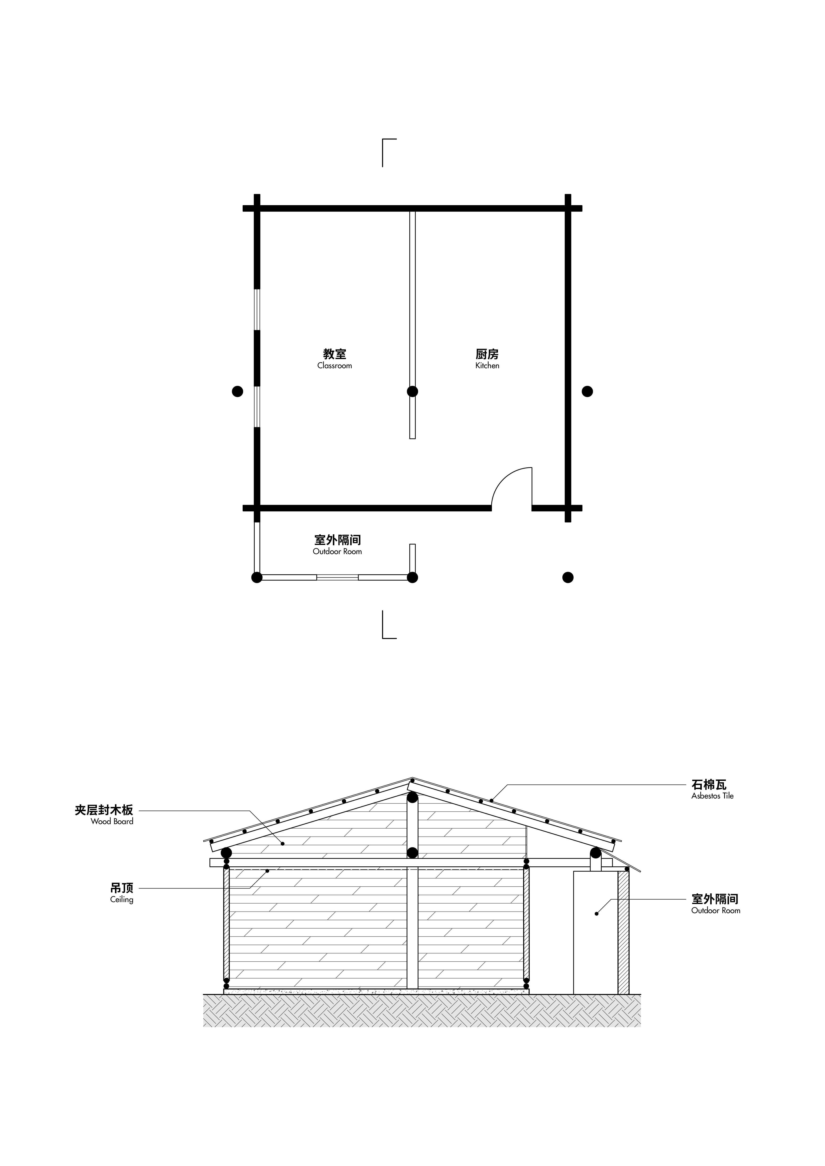
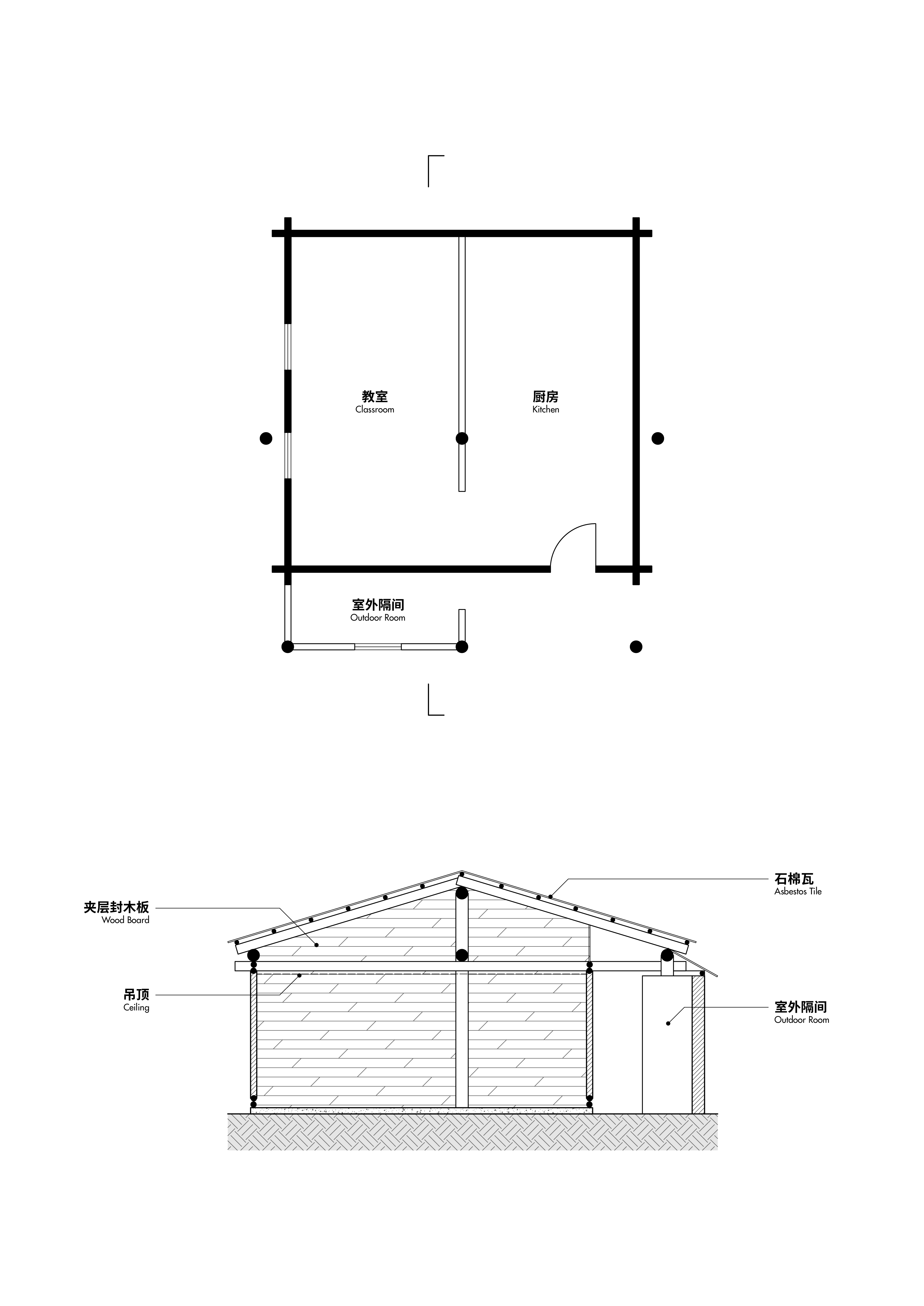
책이 늘어나자 간 씨는 교실과 부엌으로 쓰던 기존 가옥 한 채를 열람실로 리모델링하고자 했고, 건축팀이 설계를 맡게 됐다. 대상 건물은 누족 전통가옥인 적층 목조 가옥(플랫폼형)에 속한다. 이 주거 유형은 이중 지붕 구조와 통나무 벽체로 특징지어진다. 지붕과 벽 사이에는 곡물 건조와 농기구 보관을 위한 틈새 공간이 있고, 벽체가 후퇴하면서 생기는 그레이 스페이스가 외부 공간과 연결된다. 하지만 내부는 5×5m 단일 공간에 작은 창 두 개만 있어 채광과 환기가 열악하다. 이는 독서 공간에 치명적인 문제였다.
현장 조사를 통해 과거 간 씨가 했던 개조 흔적도 확인됐다. 그는 내부를 여러 칸으로 나누고, 2층 지붕을 철거해 실내 높이를 확보했지만, 채광과 환기 문제는 여전히 남았다. 또한 기존 석판 지붕이 더 이상 생산되지 않아 값싼 석면 기와로 교체했는데, 틈새로 물이 새는 문제가 발생했다.
이번 리모델링은 6만 위안(한화 약 1,100만 원)이라는 극히 제한된 예산과 2주라는 짧은 시공 기간 속에서 진행됐다. 건축가는 기존 목조 구조의 상태가 양호하다는 점에 착안해, 후대에 추가된 벽과 천장을 걷어내고 원형 공간을 회복했다. 이를 통해 5×5m 크기의 유연한 열람실을 확보하고, 지붕 아래 그레이 스페이스도 다시 살아났다. 필요 없어진 중심 기둥은 철거하고, 기존 가로보에는 시력 보호용 LED 조명을 설치했다.
채광과 환기를 개선하기 위해 통나무 벽 상단에 채광창을 두고, 지붕에는 천창을 신설했다. 채광창은 투명 PC 시트로 막았지만, 천창은 개방형으로 두어 환기 통로 역할을 한다. 낙엽 유입을 막기 위해 흰색 메쉬망을 설치했다.
새로운 목구조는 현지에서 쉽게 구할 수 있는 4x8 규격 목재로 지어졌고, 숙련된 지역 장인들이 며칠 만에 시공을 마쳤다. 지붕은 누수에 강한 수지 기와로 교체했으며, 붉은색 지붕재와 금속 홈통은 기존 목구조와 시각적으로 대비를 이루면서도 내부의 목재 가구와 따뜻한 분위기를 형성한다.
이 작은 도서관은 단순하면서도 본질적인 건축의 의미를 일깨운다. 자연 속 인간과 최소한의 쉼터라는 구조—18세기 로지에(Laugier)가 말한 ‘원시 오두막(The Primitive Hut)’ 개념을 떠올리게 한다.

























건축가 스텝스 아키텍처(STEPS Architecture)
위치 중국, 윈난성, 누강 리수족 자치주, 공산현, 빙중뤄진, 치우나퉁촌
용도 도서관
연면적 36㎡
규모 지상 1층
준공 2024
대표건축가 Wu Ya, Ji Zixiao
사진작가 Ji Zhang
'Interior Project > Education' 카테고리의 다른 글
| 공(空)과 칸(間)의 구축(構築) - 뉴욕한국문화원 도서관 / 스튜디오 엠퍼띠, 프락세스 (0) | 2025.10.20 |
|---|---|
| 재사용 자재와 유연한 구조로 완성한 지속 가능한 교실 / 엔더블유엘엔디 로지에르스 반더퓌테, 크리스 브루아디오이 _ 아틀리에 피피더블유 (0) | 2025.09.18 |
| Indoor Sports Field of Shaoxing University (0) | 2024.10.17 |
| Dongmyung Girl’s High School Shelter (0) | 2024.09.30 |
| Seoul Artbook-bogo (0) | 2024.09.23 |
마실와이드 | 등록번호 : 서울, 아03630 | 등록일자 : 2015년 03월 11일 | 마실와이드 | 발행ㆍ편집인 : 김명규 | 청소년보호책임자 : 최지희 | 발행소 : 서울시 마포구 월드컵로8길 45-8 1층 | 발행일자 : 매일



