
Kraffer Garden
크라퍼 가든은 도시 한가운데 자리한 하나의 섬처럼, 과거 바로크 정원의 흔적 위에서 생생한 풍경을 펼쳐 보인다. 이 정원은 200년이 넘는 옛 지형 구성을 다시 발견하고 이를 현대적 기능에 맞게 재해석해 복원한 공간으로, 문화 활동과 휴식, 그리고 꽃 재배가 공존하는 유연한 장소로 거듭났다.
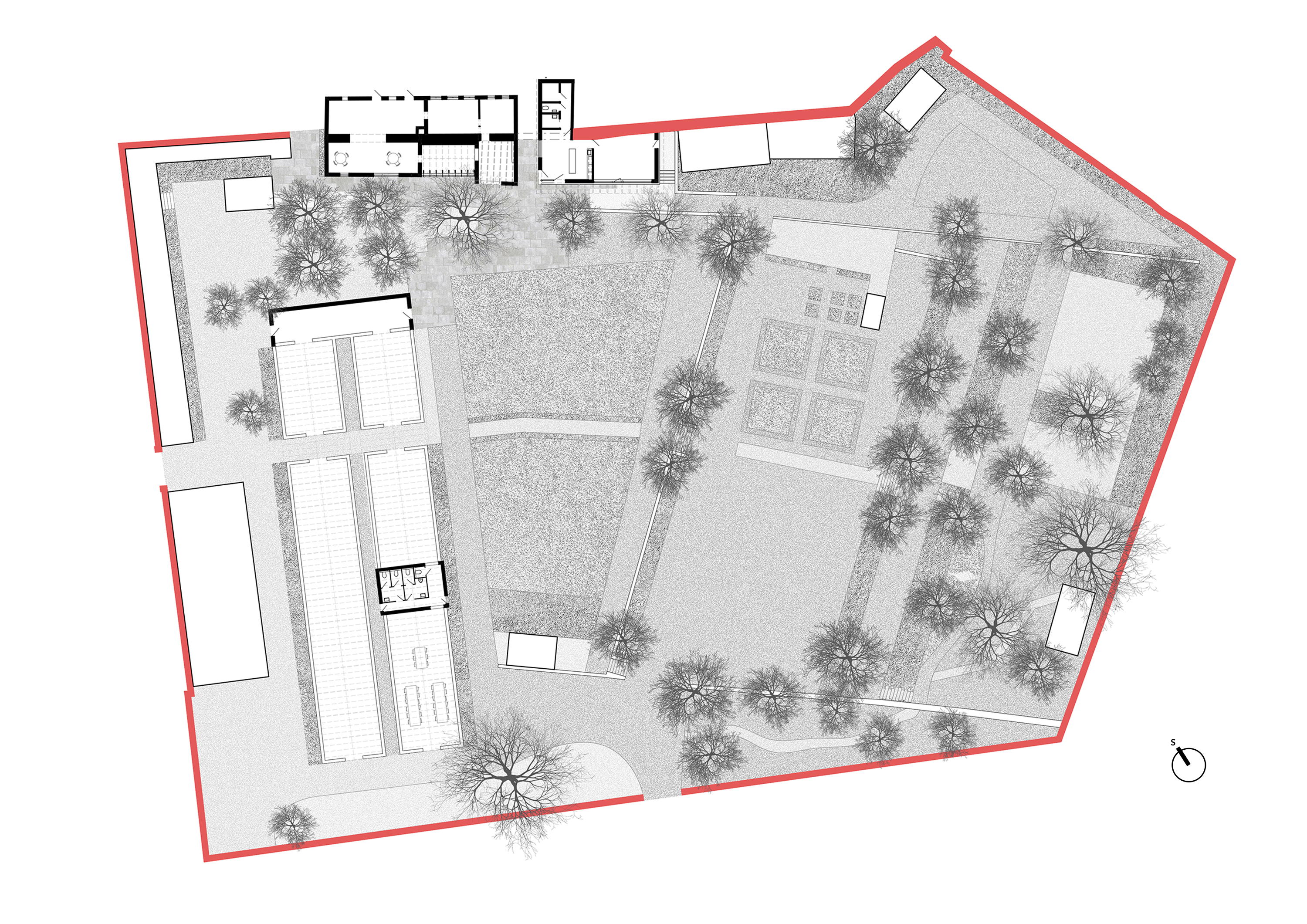
정원의 기본 개념은 엄격한 기하 질서에서 출발한다. 이는 발굴된 역사적 설계 언어에서 비롯된 것으로, 공간 전체에 명확한 구조와 질서를 부여한다. 그러나 세부적인 해법은 전적으로 현대적이며, 재활용, 빗물 관리, 생물다양성 증진 등 지속가능성을 핵심에 둔다. 이러한 엄정한 선형 질서 사이로 식물의 자연스러운 야생성이 스며들며, 강렬한 대비를 만들어낸다. 계단식으로 구성된 정원 전체는 바로크 시대의 석조 담장으로 둘러싸여 있고, 남향으로 배치된 온실과 재배용 작업 공간이 이를 따라 이어진다.
오늘날 이 복합 공간의 대부분은 대중에게 개방된 시범 정원으로 사용된다. 이곳에서 식물은 단순히 판매되는 대상이 아니라 직접 재배되며, 방문객은 지역성과 계절성을 기반으로 한 꽃 생산 과정을 경험할 수 있다. 또한 다양한 문화 행사와 환경 프로그램, 꽃과 허브를 주제로 한 워크숍이 열리며, 특별한 목적 없이도 누구나 와서 쉬어갈 수 있는 장소로 기능한다.
건축적 개입
부지의 건축적 재구성은 정원을 대중에게 열어 보이는 데 초점을 맞췄다. 마테이 셰베크 아르키텍티의 핵심 개입은 정원 북동쪽 가장자리에 위치한다. 서로 다른 시대에 지어진 창고와 온실로 이루어진 기존 건물군의 중앙을 과감히 열어, 정원으로 직접 진입할 수 있는 새로운 램프를 만들었다. 이 신설 매스는 램프의 형태를 규정하는 동시에 노후 건물을 대체하고, 기존 바로크 석조 담장에 접속한다. 이곳에는 꽃 가게와 조경 설계 스튜디오를 포함한 새로운 정원 지원 시설이 들어섰다.
새로운 증축 건물은 낮은 스케일로 계획되어 기존 온실들과 자연스럽게 어우러지며, 녹색 지붕을 통해 계단식 정원의 전체 맥락에 스며든다. 건축은 기능에 충실하면서도 직관적인 이해 가능성을 목표로 한다. 건물은 가벼운 콘크리트 기단 위에 놓이고, 이 기단은 방문객을 정원으로 이끄는 콘크리트 램프와 연결된다. 평면 구성과 구조는 바로크 담장을 따라 배치되며, 담장의 일부는 실내에서도 그대로 드러난다.
정원 가장자리에 자리한 부속 건물군을 관통하는 담장의 존재는, 묵직한 일체형 보(린텔)를 통해 강조된다. 이 요소는 신축 건물과 기존 바로크 담장을 상징적·구조적으로 연결한다. 건물 상부에는 남쪽으로 깊게 돌출된 평지붕 녹화가 설치되어 여름철 강한 일사를 차단한다. 노출된 천장 보와 이를 받치는 명확한 처마선이 공간의 성격을 규정하며, 내부는 기능적이면서도 섬세하다. 가변성을 고려해 경량 합판 파티션을 사용했고, 벽은 미장 없이 석회로만 마감해 정교한 세라믹 블록 구조와 굽이치는 바로크 석조 담장이 하나의 합판 천장 아래에서 공존한다.
정원과 건축의 협업
이 집과 정원은 끊임없는 대화를 통해 함께 형성되었다. 정원이 건축의 형태를 만들고, 건축은 다시 정원의 사용 방식과 풍경을 규정한다. 아틀리에 자 막과 마테이 셰베크 아르키텍티의 협업은 하나의 즐거운 공공 공간을 만들어냈을 뿐 아니라, 이후의 프로젝트로 이어지는 장기적 협력과 관계를 낳았다. 크라퍼 가든의 건축과 정원은 지금도 완결이 아닌 과정으로서, 계속해서 변화하고 확장되고 있다.



































건축가 마테이 셰베크 아르히테크티 (matěj šebek architekti)
위치 체코, 인드르지후프 흐라데츠, 프라슈스카 1286
대지면적 6,600㎡
건축면적 120㎡
연면적 80㎡
설계기간 2021
준공 2025
대표건축가 Matěj Šebek
발주자 Krafferova zahrada
사진작가 Radek Úlehla
'Architecture Project > Other' 카테고리의 다른 글
| 역사적 흔적을 바닥에 새긴 열린 광장, 타라클리 타운 스퀘어 / 케이오오피 아키텍츠 (0) | 2026.01.08 |
|---|---|
| 운송의 구조에서 풍경의 틀로: 컨테이너 전망대가 만든 새로운 시선 / 아틀리에 - 알 (0) | 2026.01.07 |
| 석재의 시간과 콘크리트의 깊이를 잇는 생트에밀리옹의 새 와이너리 / 헤르조그 앤 드 뫼 (0) | 2025.11.28 |
| 빛과 석재가 구성한 그레이 입면의 리듬, 리 빌딩 / 엘케이에스에이 (0) | 2025.11.19 |
| 목재와 콘크리트가 엮은 도시의 마을 / 리얼리치 아키텍처 워크숍 (0) | 2025.11.12 |
마실와이드 | 등록번호 : 서울, 아03630 | 등록일자 : 2015년 03월 11일 | 마실와이드 | 발행ㆍ편집인 : 김명규 | 청소년보호책임자 : 최지희 | 발행소 : 서울시 마포구 월드컵로8길 45-8 1층 | 발행일자 : 매일



