
Lee BLDG.
대지는 서울 서초구 반포동, 강남대로 이면도로에 위치한다. 건축가는 이곳에서 수명이 다한 다세대 주택을 철거하고 근린생활시설로 재건하는 프로젝트를 맡았다. 적벽돌 주택이 반복되는 단조로운 골목에 도시적 활력을 불어넣기 위해, 건축가는 밝지만 가벼워 보이지 않는 그레이 톤 석재와 열린 개구부를 중심으로 입면을 구성했다.
가로와 더 깊게 교감하기 위해 모서리 창을 적극적으로 활용했다. 보행 흐름이 만들어내는 방향성을 읽어 창의 위치를 조절하고, 합리적 구성 위에 감각적 비례를 더해 입면이 단조로워지지 않도록 리듬을 부여한 것이다.
계단탑은 높게 세워 가로에서의 시지각적 인지성을 강화했다. 코어부 역시 수직으로 연속된 창을 두어, 빛을 끌어올리는 ‘횃불 같은 건축적 장치’가 되도록 의도했다.
입면 분절은 층별 면적 변화에 맞춰 점증적 논리로 설계되었다. 수평선을 나누는 후레싱에 깊이를 주어 빛이 만든 그림자가 시간에 따라 변주되도록 했고, 동일한 석재를 버너구이와 연마 방식으로 교차 적용해 작은 건물이 가질 수 있는 단조로움을 섬세한 리듬으로 치환했다. 석재 판재의 홈파기(메지 절삭) 역시 빛의 반사로 미세한 물결감을 만들며 입면의 깊이를 더한다.
또한 창대와 모서리 등 직각이 드러나는 모든 부위의 석재는 30mm 곡률 가공을 적용했다. 보는 이가 무의식적으로도 부드러움을 느낄 수 있도록 한 선택이다. 건축가는 이러한 정제된 입면 요소들을 ‘하나의 나무에 스며 있는 다양한 나뭇결’에 비유한다. 리빌딩은 시간에 따라 변하는 도시의 빛을 다양한 깊이로 받아들이며, 주변 가로 위에 뿌리내리는 또 하나의 도시 나무로 기능한다.
건축가는 삭막한 도시 속에서 다시 피어난 작은 숲처럼, 이곳에서 공간을 사용할 사람들의 시간이 오랜 기억으로 쌓이길 바랐다.
































건축가 ㈜엘케이에스에이 건축사사무소 (LKSA)
위치 서울특별시 서초구 반포동 724-21
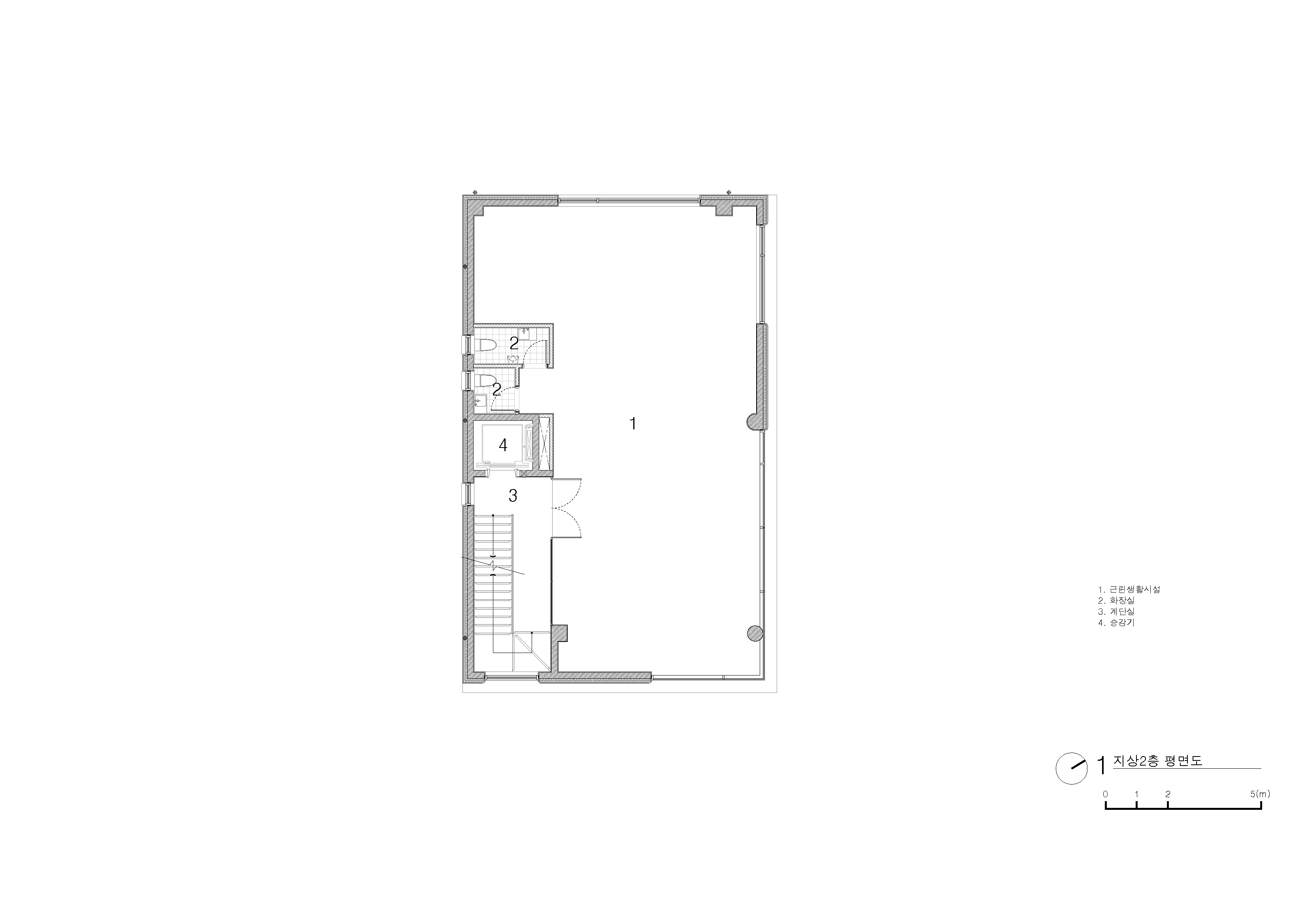
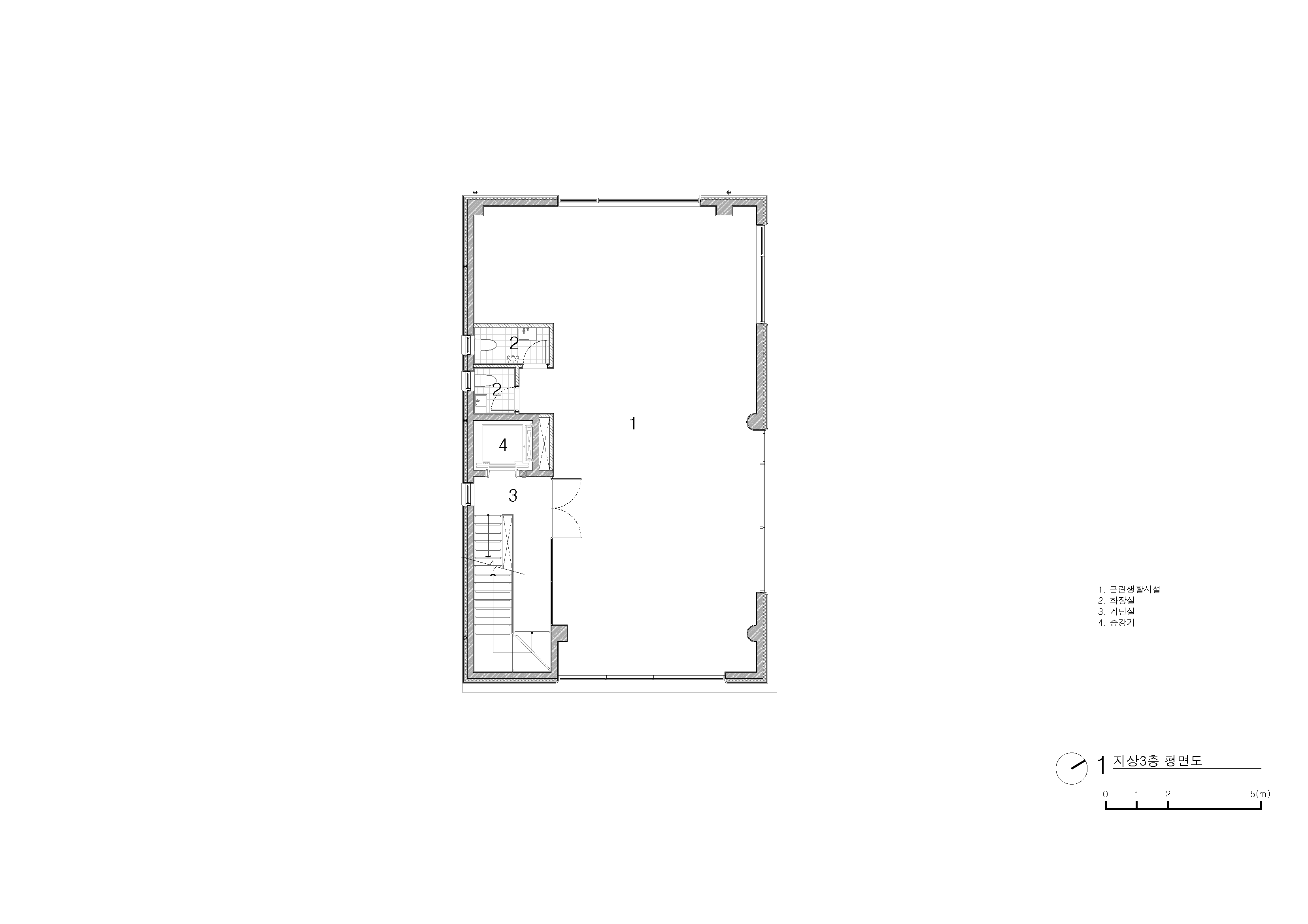
용도 근린생활시설
대지면적 236.80㎡
건축면적 141.36㎡
연면적 468.04㎡
규모 지상 4층
건폐율 59.70%
용적률 197.65%
설계기간 2023.12. - 2024.4.
시공기간 2024.7. – 2025.8.
준공 2025
대표건축가 이근식
구조엔지니어 라임구조
기계엔지니어 ㈜익스플래니트
전기엔지니어 ㈜익스플래니트
소방엔지니어 ㈜익스플래니트
시공 에이치세븐건설
발주자 유한회사 인완
사진작가 구의진
'Architecture Project > Other' 카테고리의 다른 글
| 목재와 콘크리트가 엮은 도시의 마을 / 리얼리치 아키텍처 워크숍 (0) | 2025.11.12 |
|---|---|
| 숲의 리듬을 품은 구조, 숲의 모서리 포레스트 엣지 / 김선형 (0) | 2025.11.07 |
| 공공성과 공동체의 온도, 숲속에 피어난 수영장 건축/ 뮐크 아르키텍티 (0) | 2025.10.22 |
| 건축, 예술, 그리고 도자의 기억을 품은 장소 / 그레이스페이스 아키텍츠 (0) | 2025.09.30 |
| 물과 빛, 자연과 인공의 경계를 잇는 서비스 센터 / 스튜디오 텐 (0) | 2025.09.29 |
마실와이드 | 등록번호 : 서울, 아03630 | 등록일자 : 2015년 03월 11일 | 마실와이드 | 발행ㆍ편집인 : 김명규 | 청소년보호책임자 : 최지희 | 발행소 : 서울시 마포구 월드컵로8길 45-8 1층 | 발행일자 : 매일



