
24 Social Housing Units
프랑스 파리 외곽 뱅센에 24가구 규모의 사회주택과 근린 상업시설이 들어섰다. 이 프로젝트는 Prinvault Architectes가 설계하고, 폴리로지스 그룹 산하의 LogiRep을 클라이언트로 2025년 완공한 주거 개발로, 연면적은 약 1,140㎡, 공사비는 약 364만 유로(부가세 별도) 규모다.
총 24세대의 사회주택은 1인 가구를 위한 소형 주택 18세대와 가족 단위의 3베드룸 주택 6세대로 구성되며, 여기에 1개의 상업 공간이 더해졌다. 이 프로젝트는 2002년 5%에 불과했던 뱅센의 사회주택 비율이 2025년 12%까지 확대되는 과정 속에서, 도시가 지속적으로 사회주택을 확충하려는 정책적 목표에 응답한다.
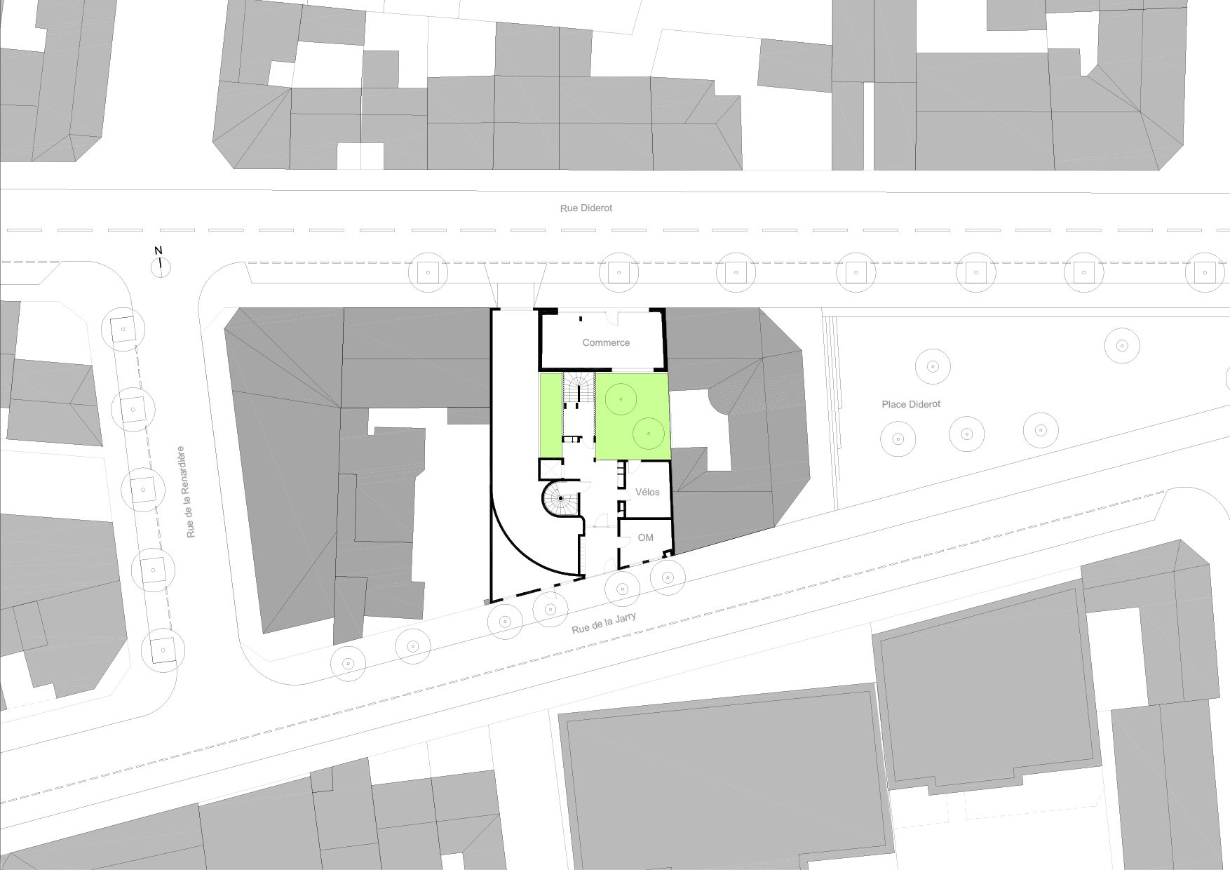
대지는 20세기 초 형성된 고밀도 도시 조직 안에 놓여 있다. 도로에서 한 발 물러난 단독주택과 가로변을 따라 늘어선 지상 5층 규모의 집합주택이 혼재한 맥락 속에서, 새 건축은 주변과의 연속성을 유지하면서도 양질의 주거 환경을 확보해야 했다. 특히 디드로 거리와 자리 거리(Diderot & Jarry streets)를 따라 형성된 가로선에 정확히 정렬되면서, 동시에 주거 깊이와 채광, 프라이버시를 모두 만족시키는 것이 이 프로젝트의 핵심 과제였다.
이에 대한 해법으로 건물은 두 개의 볼륨으로 나뉘고, 이들은 중앙의 보행 브리지와 계단을 통해 연결된다. 이 구조는 단순한 동선 장치를 넘어, 외부와 내부의 건축적 성격을 대비시키는 장치로 작동한다. 가로를 향한 입면은 뱅센 지역의 건축적 전통을 참조한 벽돌 파사드로 구성되는데, 사선으로 놓인 벽돌과 수평 줄눈이 교차하는 톱니 패턴을 통해 리듬감 있는 표정을 만든다. 이는 주변의 역사적 도시 풍경 속에 자연스럽게 스며들면서도, 새로운 주거의 존재감을 분명히 드러낸다.
반면, 건물 내부와 중정 쪽으로는 보다 현대적인 언어가 적용된다. 염색된 패턴 콘크리트와 금속 스크린을 활용해 밝고 개방적인 분위기를 형성하며, 외부의 전통적 벽돌 입면과 대비되는 동시대적 공간 경험을 제공한다. 이렇게 이중적인 건축 전략을 통해 프로젝트는 과거의 도시 맥락과 현재의 주거 요구 사이를 유연하게 연결한다.
이 주거 단지는 단순한 사회주택 공급을 넘어, 기존 도시 조직을 존중하면서 새로운 주거 유형을 정교하게 삽입한 사례로 읽힌다. 가로의 연속성을 회복하는 벽돌 입면과, 내부에서 드러나는 현대적 공간 구성은 뱅센이라는 도시가 지닌 시간의 층위를 건축적으로 번역하며, 사회주택이 도시 풍경 속에서 어떤 방식으로 자리할 수 있는지를 차분하게 보여준다.


















건축가 프랭보 아르시텍츠(Prinvault Architectes)
위치 프랑스, 뱅센, 디드로 거리 166번지, 94000
용도 공동주택
건축면적 49㎡
연면적 1,140㎡
준공 2025. 10.
대표건축가 François Prinvault
발주자 Logirep – Polylogis
사진작가 Nicolas Trouillard
'Architecture Project > Multifamily' 카테고리의 다른 글
| 도시의 밀도를 풀어내는 주거 블록, 에르네스토 두 칸투 / 복스 아르키텍투스 (0) | 2026.01.22 |
|---|---|
| 시간의 층위를 드러낸 주거 건축: 발트슈테인 광장의 역사 주택 변주 / 포르마파탈 (0) | 2026.01.15 |
| 완충과 공백으로 조직된 다층형 메종네트 주거 / 휴고 고노 아키텍트 어소시에이츠 (0) | 2025.12.19 |
| 태양과 그림자를 직조하는 건축: 심포니 타워의 기후 대응형 입면 구조 / 자하 하디드 아키텍츠 (0) | 2025.12.11 |
| 녹지 네트워크와 수직정원의 결합, 치안하이 레지던스 / 포스터 + 파트너스 (0) | 2025.12.01 |
마실와이드 | 등록번호 : 서울, 아03630 | 등록일자 : 2015년 03월 11일 | 마실와이드 | 발행ㆍ편집인 : 김명규 | 청소년보호책임자 : 최지희 | 발행소 : 서울시 마포구 월드컵로8길 45-8 1층 | 발행일자 : 매일



