
레서 타운 광장, 성 니콜라스 교회, 발트슈타인 궁전과 정원, 프라하 성에 이르기까지. 말라 스트라나의 제니우스 로치는 우리가 내딛는 모든 걸음 속에서 살아 숨 쉬고 있다. 역사란 거리와 입구, 중정과 겹겹의 시간 속에 스며 있으며, 이곳에 새로운 무언가를 삽입하는 일은 아름답지만 동시에 매우 어려운 과제다. 과거를 존중하면서도 새로운 시간, 지속적인 가치, 때로는 운명적인 변화를 담아내야 하기 때문이다.
처음 의뢰인을 만났을 때의 말이 아직도 기억에 남아 있다. “우리 집은 말라 스트라나의 웅장한 궁전들 사이에 묻혀 있는 신데렐라 같은 존재예요. 해방을 기다리고 있죠.” 그렇게 대형 궁전들 사이에 잊힌 채 있던 이 집은 새로운 시작과 숨결을 기다리고 있었고, 프로젝트의 이름은 자연스럽게 ‘신데렐라’가 되었다.
이른바 ‘제7의 집’이라 불리는 이 건물의 이야기는 프로젝트 전체를 하나의 예술 작업처럼 다루게 만들었다. 설계의 중심에는 언제나 건물 그 자체와 고유성이 놓였다. 건물의 역사를 경청하고, 절제된 개입과 세심한 디테일로 이를 보완하는 방식이다. 동시대적으로 설계하되 과거를 존중하고, 전통적이면서도 은유적인 방식으로 자연 재료를 되돌려 놓으며, 반복 불가능한 역사적 구조 요소들을 강조했다. 실제로 이 집에 사용된 목재는 200여 년 전 블타바 강을 따라 프라하로 운반된 것이며, 16세기 구조물에서는 당시 목수들의 표시가 남아 있는 보도 흔치 않은 사례도 발견된다.
여기에 현대적 요소와 공간 구성 언어를 더해, 말라 스트라나 전역을 관통하는 상상의 ‘마법의 실’이 집의 문 앞에서 끊기지 않고 공간과 시간을 따라 자연스럽게 이어지도록 했다. 때로는 반짝이며, 현재의 거주자들이 오래된 프라하의 깊은 역사와 연결되어 있음을 느끼게 한다.
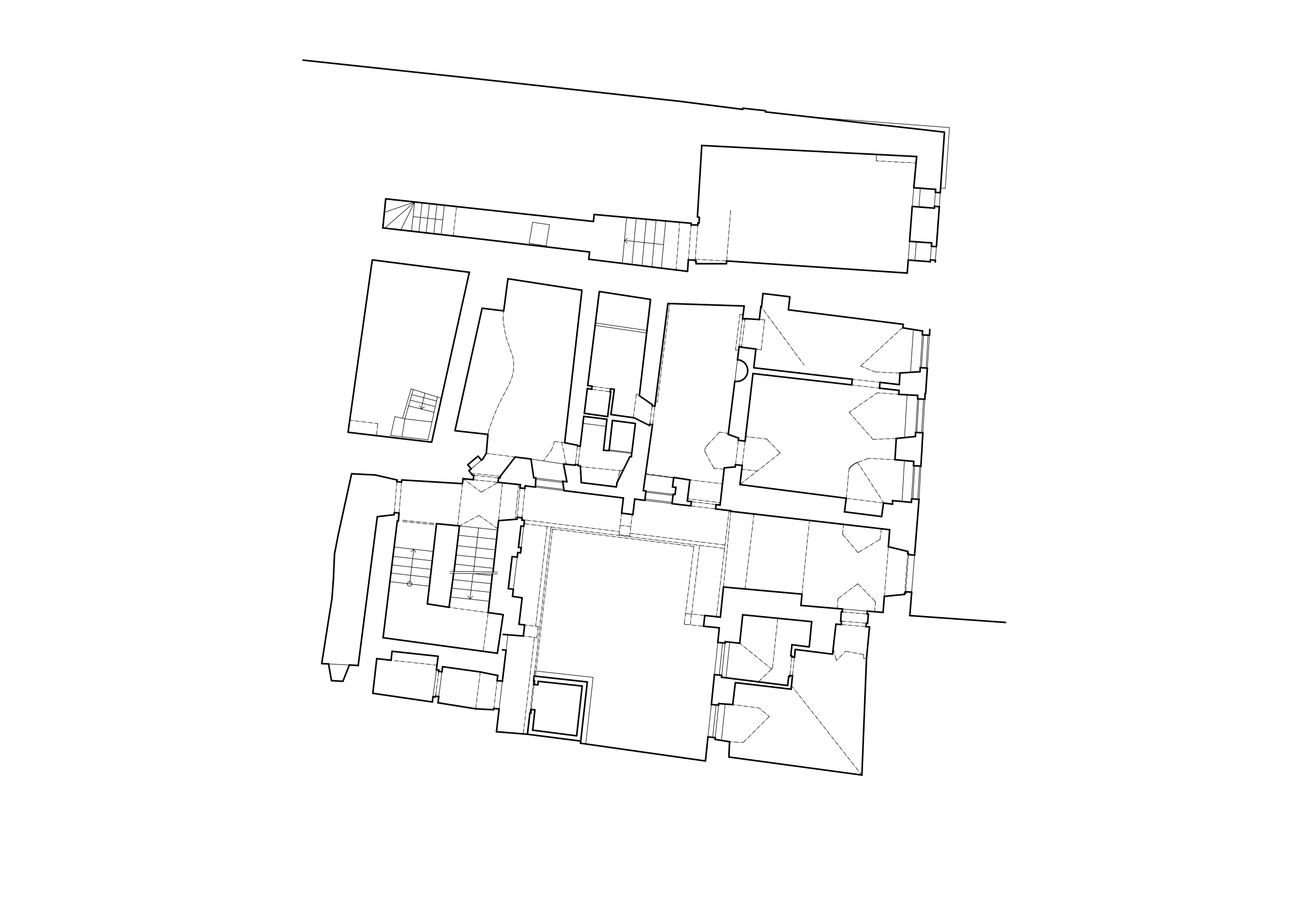
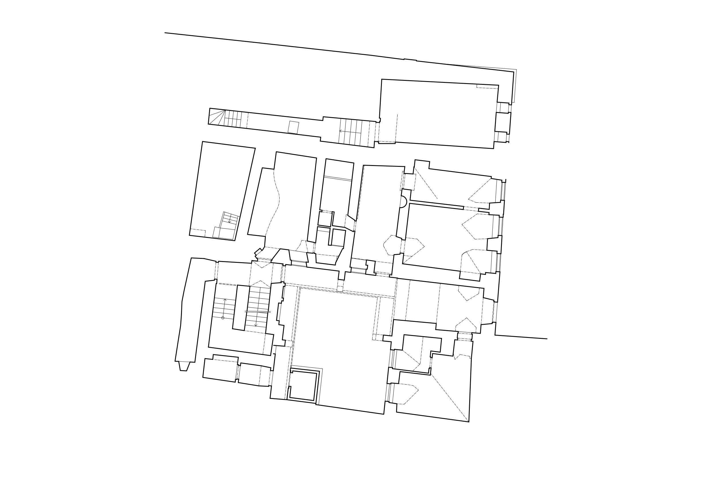
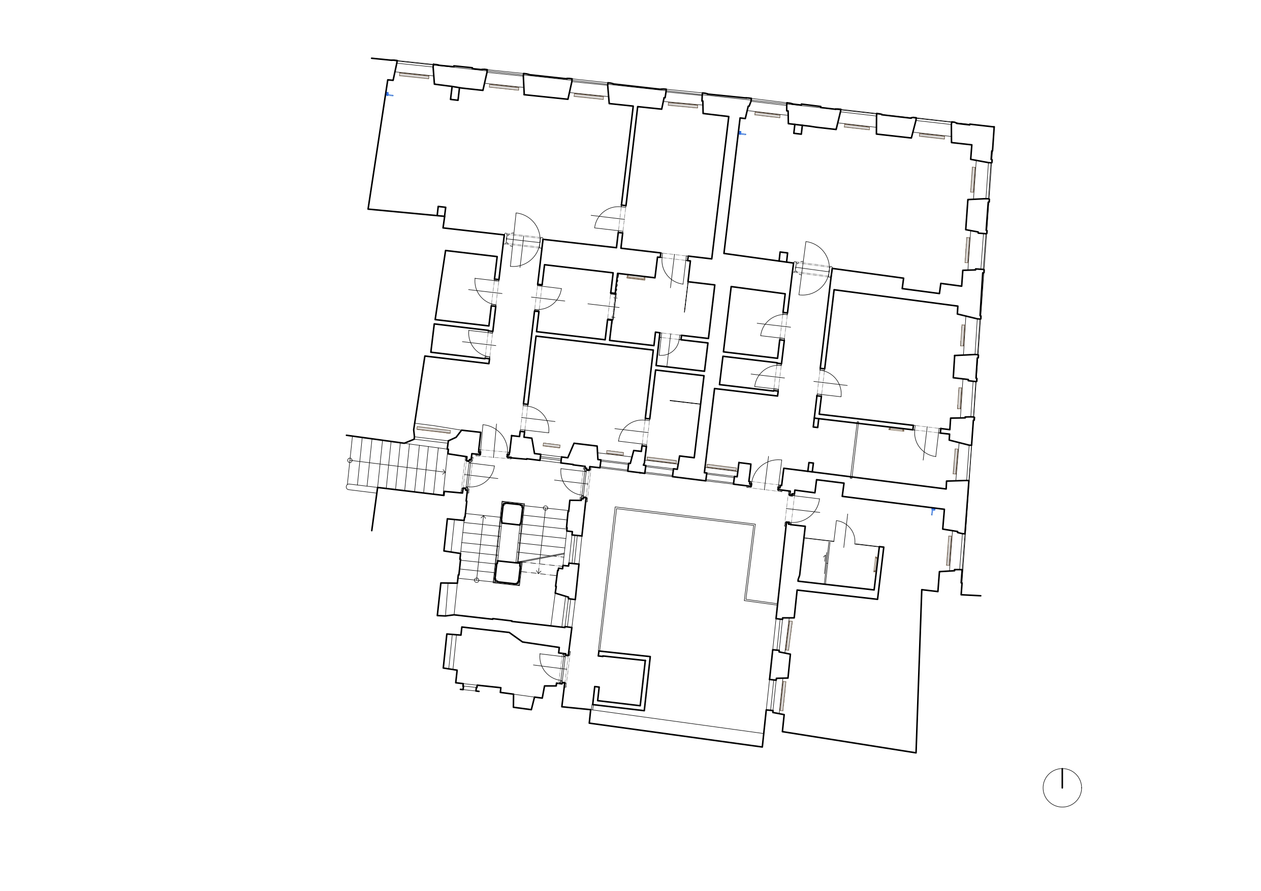
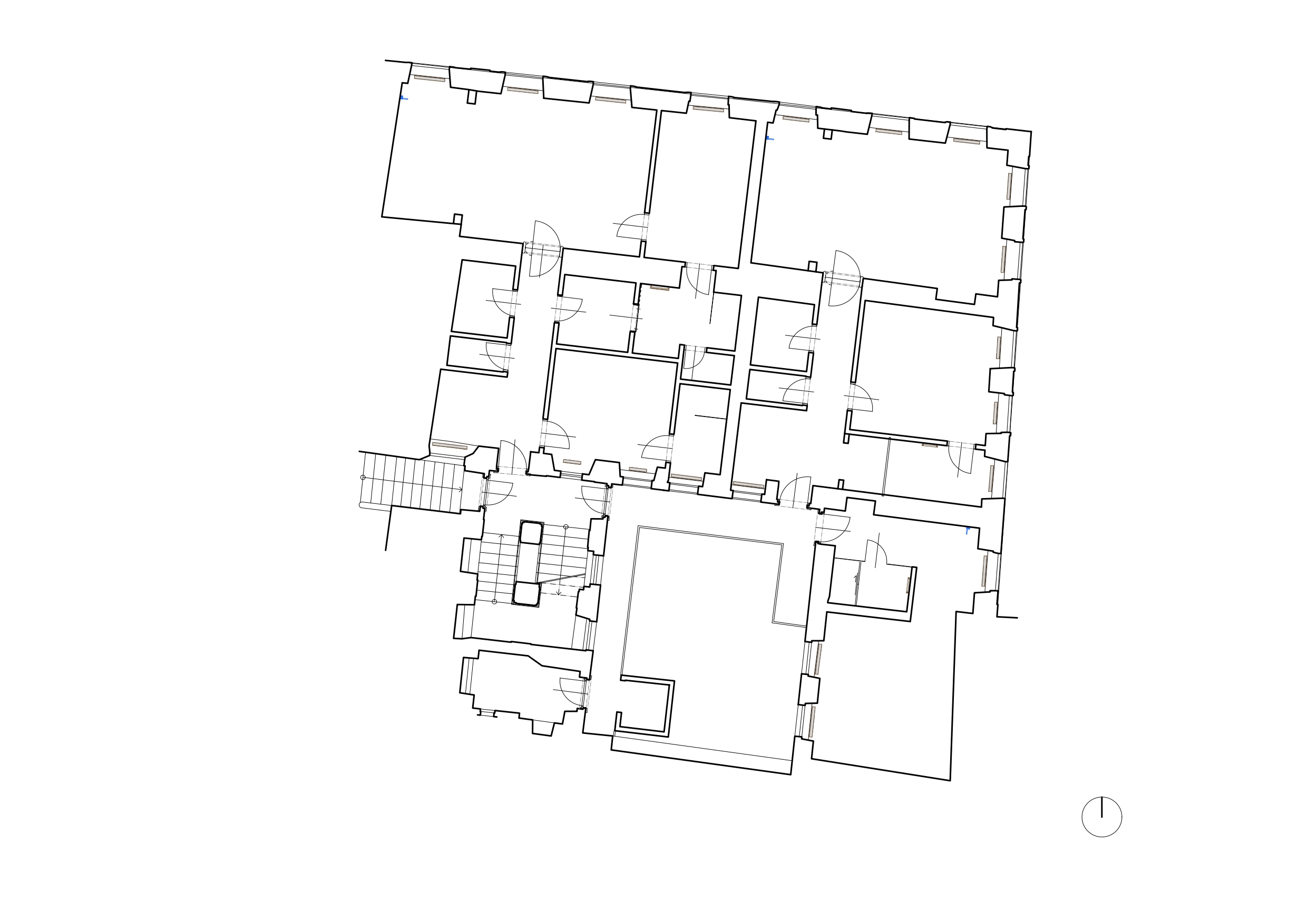
의뢰인은 기존의 갤러리형 주택을 오늘날의 높은 주거 기준에 맞는 고급 주거용 아파트로 재탄생시키길 원했다. 평면 구성은 부동산 자문과 함께 다양한 안이 검토되었으며, 원룸부터 한 층 전체를 사용하는 형태까지 폭넓게 논의된 끝에, 일반층 기준 3세대 구성으로 결정되었다.
전체 콘셉트는 철저히 건물 자체의 매력과 역사에서 출발했다. 문화재적 관점에서 손댈 수 없는 기존 구조들은 그대로 활용해 이 집만의 개성을 이어가도록 했고, 구조·음향·방재 조건에 따라 새로운 개입은 신중히 조율되었다. 새로 삽입된 구조는 기존 건물과 자연스럽게 어우러지되, 어디까지가 새로운 요소인지는 분명히 드러내는 방식을 택했다. 현대적 건축 기술이 문화재와 어떻게 공존할 수 있는지에 대한 고민이 곳곳에 반영되었다.
신설 벽체에는 바닥부터 천장까지 이어지는 히든 프레임 도어를 적용했고, 설비로 인해 낮아진 천장 구간은 모든 세대를 관통하는 석고 몰딩(fabion)으로 처리해 원래 공간에 있던 디테일처럼 자연스럽게 녹였다. 주요 출입문에는 맞춤 제작한 사암 프레임을 적용했고, 인조석 세면대, 세부 마감에서도 같은 섬세함을 유지했다. 복도와 보조 침실에는 예술가 파벨 박사(Pavel Baxa)가 제작한 ‘아이스 글라스’가 빛을 더한다.
‘제7의 집’이라는 공식 명칭에서 느껴지는 점성적이고 연금술적인 분위기는 계단실에서도 이어진다. 천체를 연상시키는 구형 조명, 궤도가 새겨진 소화전 커버, 빛을 품은 원형 목재 난간은 유성의 궤적 혹은 과거에서 현재로 이어지는 시간의 선을 떠올리게 한다. 계단 벽의 스투코 마감은 오늘날의 장인 역시 옛 장인들의 정신을 잇고 있음을 암시하며, 황동을 파티네 처리한 조명과 우편함은 수세기의 분위기를 더욱 짙게 만든다.
‘신데렐라’ 프로젝트는 말라 스트라나 광장에 자리한 이 역사적 주택에 새로운 생명과 숨결을 불어넣는 작업이었다. 오랜 시간 해방을 기다려온 집은 이제 과거와 현재를 잇는 동시대적 주거로 다시 태어났다.







































건축가 포르마파탈(Formafatal)
위치 체코, 프라하, 말라 스트라나, 발트슈테인 광장
용도 공동주택
대지면적 448㎡
건축면적 394㎡
연면적 1,620㎡
규모 지상 5층
설계기간 2018
준공 2024
디자인팀 Anna Linhartová, Michael Kohout
인테리어 Martin Kalhous
발주자 WP 7
사진작가 BoysPlayNice
'Architecture Project > Multifamily' 카테고리의 다른 글
| 빅토리아 주택의 성능을 다시 짓다, 해크니 하우스 / 아키텍처 포 런던 (0) | 2026.01.27 |
|---|---|
| 도시의 밀도를 풀어내는 주거 블록, 에르네스토 두 칸투 / 복스 아르키텍투스 (0) | 2026.01.22 |
| 과거의 거리선과 현재의 주거를 연결하는 파리 외곽 사회주택 / 프랭보 아르시텍츠 (0) | 2025.12.23 |
| 완충과 공백으로 조직된 다층형 메종네트 주거 / 휴고 고노 아키텍트 어소시에이츠 (0) | 2025.12.19 |
| 태양과 그림자를 직조하는 건축: 심포니 타워의 기후 대응형 입면 구조 / 자하 하디드 아키텍츠 (0) | 2025.12.11 |
마실와이드 | 등록번호 : 서울, 아03630 | 등록일자 : 2015년 03월 11일 | 마실와이드 | 발행ㆍ편집인 : 김명규 | 청소년보호책임자 : 최지희 | 발행소 : 서울시 마포구 월드컵로8길 45-8 1층 | 발행일자 : 매일



