
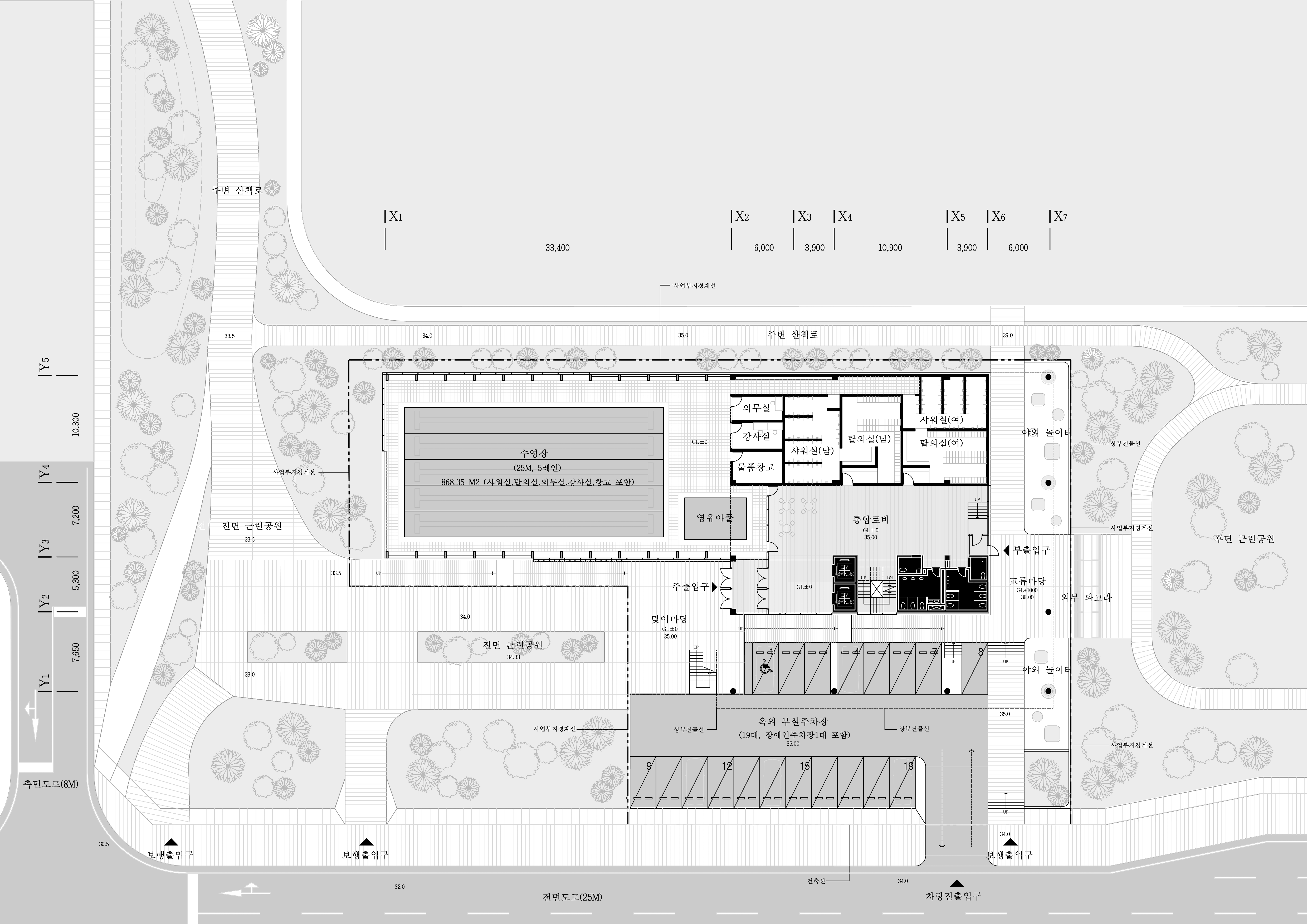
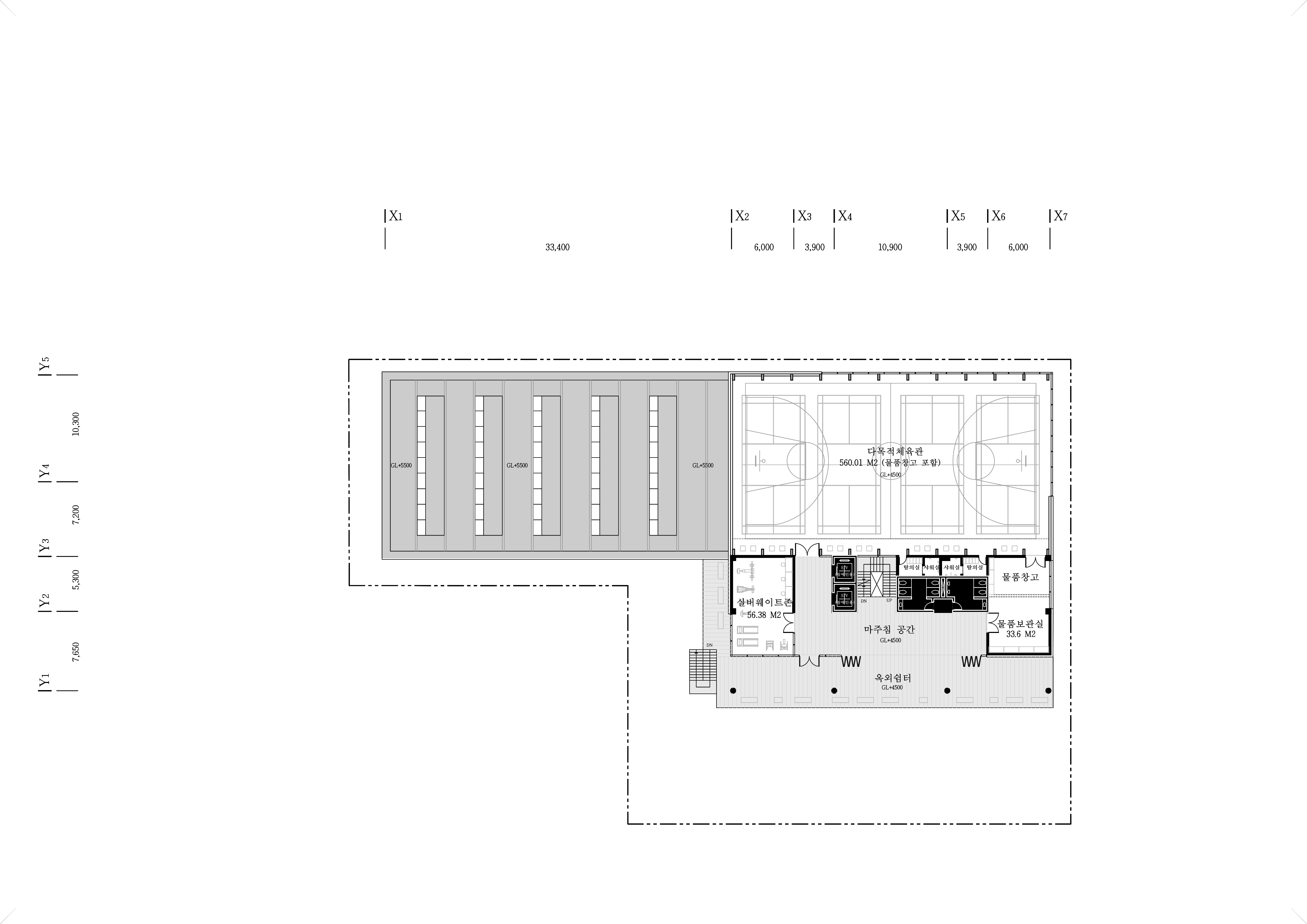
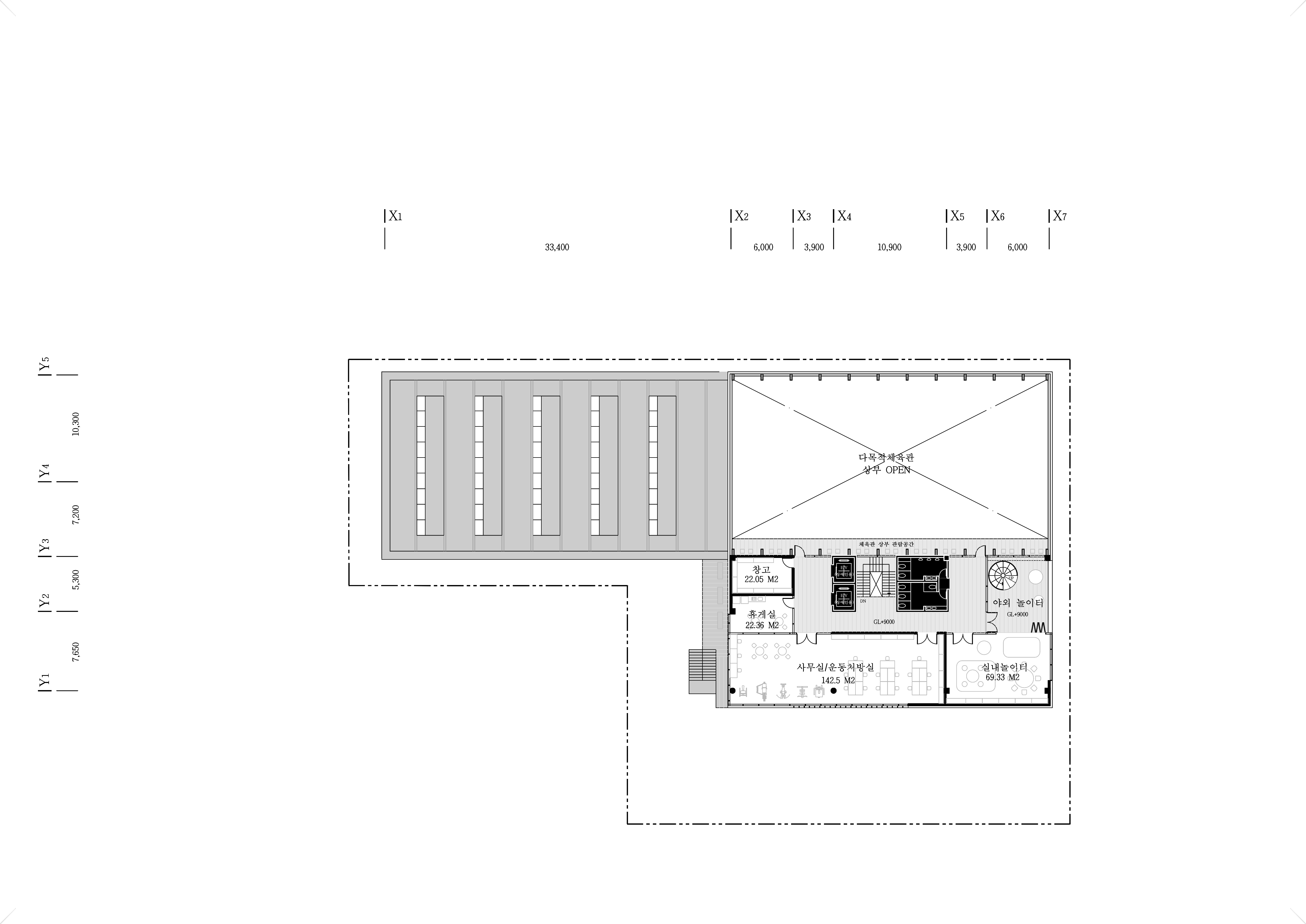
1.보행축과 통행을 고려한 건물배치
대지 주변의 도로와 공원, 후면 주거단지 등으로 인해 자연스럽게 2개의 보행축이 형성된다. 이를 고려하여 수영장 등의 주요시설을 배치하고 방문자의 통행이 원활하게 이루어질 수 있도록 보행동선을 구성하였다.
2.효율적으로 공간을 구성하는 단면계획
높은 하중과 층고가 필요한 수영장을 1층에 배치하였고, 층고가 높지 않은 탈의실/샤워실 등은 분리하여 단면적으로 효율적인 계획을 하였다. 높은 층고가 필요한 수영장과 다목적체육관은 겹치지 않도록 하여 효율적으로 건물을 구성하였다.
3.원활한 접근과 조망이 가능한 외부공간
2층의 옥외쉼터(테라스)는 지상의 맞이마당에서 외부계단을 통해 손쉽게 접근이 가능하며, 주변과 소통할 수 있는 열린 공간으로 조성하였다. 옥상마당 또한 사용자가 편리하게 접근할 수 있으며 주변을 조망할 수 있는 공간으로 계획하였다.
4.공간에 맞는 적절한 구조시스템 적용
친환경, 탄소중립 추세에 발맞추어 수영장, 체육관 등 대공간에는 중목구조(글루램 GLT)를 적용하였으며 기타 일반적인 공간에는 철근콘크리트 구조를 적용하여 전체적인 시공성과 효율성을 추구하였다.














오픈스튜디오건축사사무소
4등작_오픈스튜디오건축사사무소(https://www.openstudioarchi.com/)
대표건축가 김선동
대지면적 근린공원 23,322 ㎡ 중 체육센터부지 2,500㎡ 활용
연면적 전체 연면적 2,820.73㎡ / 지상층 연면적: 2,373.92 ㎡
건축면적 1,605.61㎡
건폐율 6.88%(법정 20%)
용적률 10.18%(법정 100%)
최고높이 14.25m
층수 지하 1층, 지상 3층
구조 중목구조, 철근콘크리트 구조
대표건축가 김선동
디자인팀 김선동, 김현진
조경면적 157.3㎡
주차대수 19대
발주처 여수시(체육지원과)
'Plans' 카테고리의 다른 글
| 마금 커뮤니티센터 조성사업 건축설계 용역(간이공모)_ 3등작 / 건축사사무소공이일+스테이건축사사무소 (0) | 2025.12.18 |
|---|---|
| 「포항시 청년농촌보금자리 조성사업」 건축설계 제안공모_ 2등작 / 시우건축사사무소 (0) | 2025.12.16 |
| 전북연구원 건립사업(국산목재 목조건축 실연사업) 건축설계공모_ 5등작 / 오픈스튜디오건축사사무소 (0) | 2025.12.16 |
| 진동보훈문화관 건립사업 설계공모_ 3등작 / 건축사사무소 일다 (0) | 2025.12.12 |
| 부산광역시 국민안전체험관 건립 설계공모_ 5등작 / 짓다 건축사사무소 (0) | 2025.12.12 |
마실와이드 | 등록번호 : 서울, 아03630 | 등록일자 : 2015년 03월 11일 | 마실와이드 | 발행ㆍ편집인 : 김명규 | 청소년보호책임자 : 최지희 | 발행소 : 서울시 마포구 월드컵로8길 45-8 1층 | 발행일자 : 매일



