
'커뮤니티 정글짐(Community Jungle Gym)'
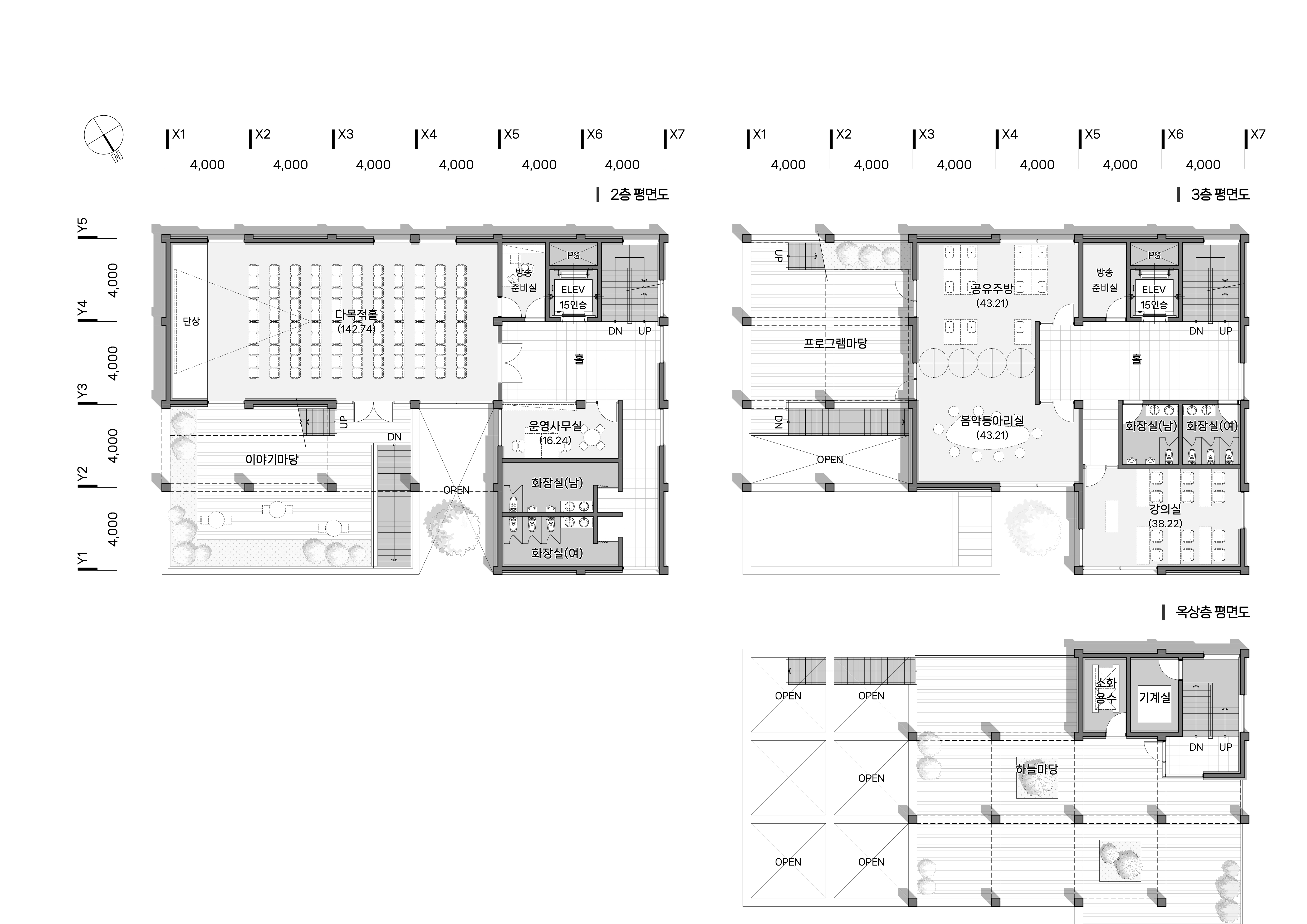
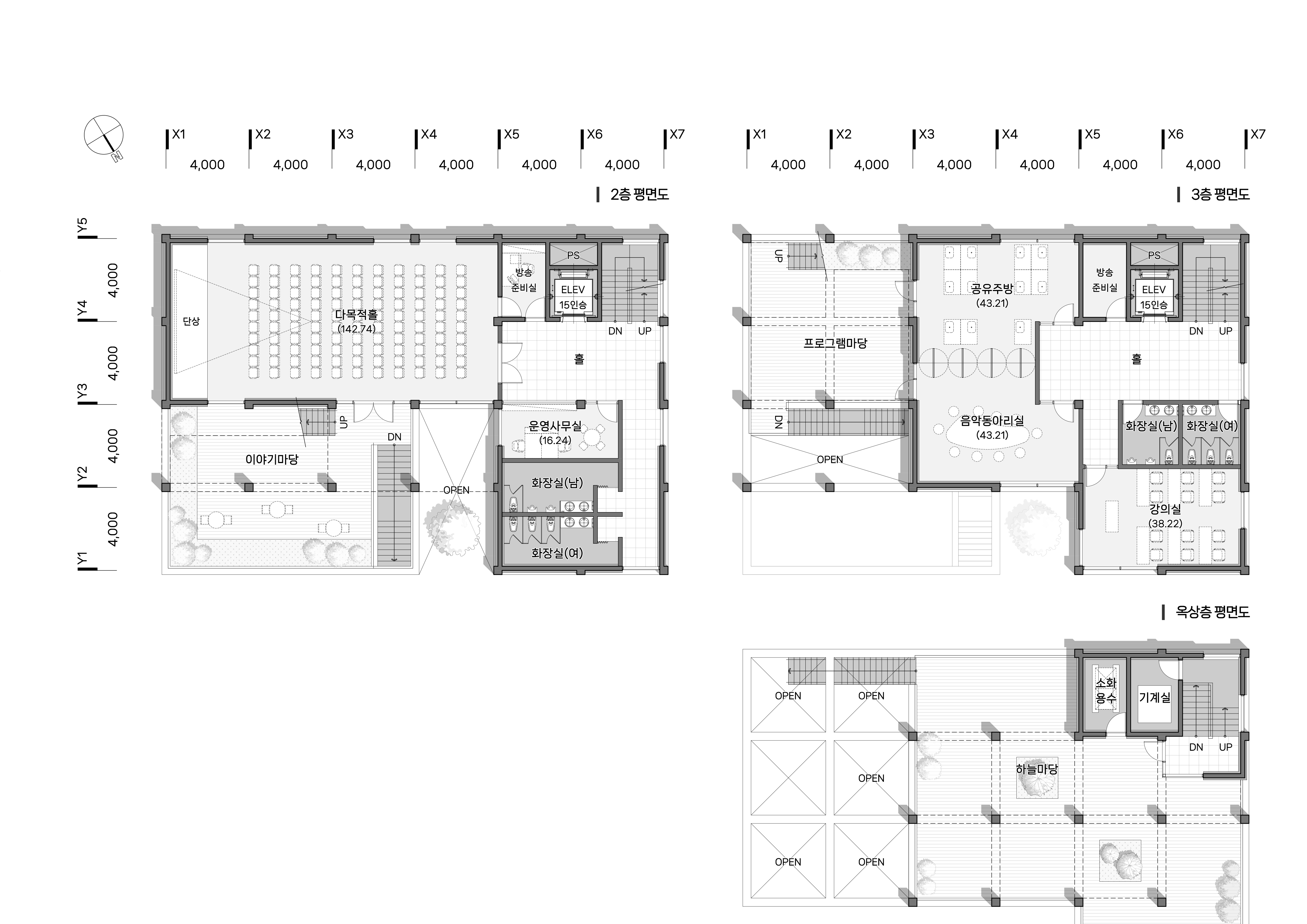
정글짐이 아이들에게 무한한 놀이 경로와 입체적인 경험을 제공하듯, 이 건축물이 주민들에게 다양한 소통과 활동의 무대가 되기를 의도했습니다. 이를 위해 건물을 단순한 적층 구조가 아닌, 내외부가 유기적으로 얽힌 입체적인 프레임으로 구성했습니다. 가장 큰 특징은 각 층마다 배치된 외부 테라스, 즉 '마당'입니다. 1층의 어울림마당에서 시작해 2층 이야기마당, 3층 프로그램마당, 그리고 옥상의 하늘마당까지 이어지는 외부 동선은 건물 전체를 하나의 산책로처럼 연결합니다. 입면 디자인에서는 노출콘크리트와 고밀도 목재패널을 활용한 규칙적인 그리드 패턴을 적용하여 주변의 자연환경과 조화를 이루면서도, 건물의 구조적 안정감과 조형적 리듬감을 동시에 부여하고자 했습니다.











건축사사무소공이일+스테이건축사사무소
3등작_건축사사무소공이일(https://www.archistudio021.com/)+스테이건축사사무소
대표건축가 건축사사무소공이일(송호승), 스테이건축사사무소(윤지훈)
대지면적 777.37㎡
연면적 660.45㎡
건축면적 352.99㎡
건폐율 45.41%
용적률 84.96%
최고높이 16.0m
층수 지상 3층
구조 철근콘크리트구조
대표건축가 건축사사무소공이일(송호승), 스테이건축사사무소(윤지훈)
디자인팀 윤한민
조경면적 66.13㎡
주차대수 6대
발주처 경상남도 창원시
'Plans' 카테고리의 다른 글
| 양육친화마을 조성사업 설계공모_ 당선작 / (주)건축사사무소이름 (0) | 2025.12.18 |
|---|---|
| 진밭골 목재친화도시 건립공사 설계공모_ 당선작 / Kengo Kuma & Associates+건축사사무소 김이홍아키텍츠 (0) | 2025.12.18 |
| 「포항시 청년농촌보금자리 조성사업」 건축설계 제안공모_ 2등작 / 시우건축사사무소 (0) | 2025.12.16 |
| 소라면 죽림국민체육센터 건립 건축 설계공모_ 4등작 / 오픈스튜디오건축사사무소 (0) | 2025.12.16 |
| 전북연구원 건립사업(국산목재 목조건축 실연사업) 건축설계공모_ 5등작 / 오픈스튜디오건축사사무소 (0) | 2025.12.16 |
마실와이드 | 등록번호 : 서울, 아03630 | 등록일자 : 2015년 03월 11일 | 마실와이드 | 발행ㆍ편집인 : 김명규 | 청소년보호책임자 : 최지희 | 발행소 : 서울시 마포구 월드컵로8길 45-8 1층 | 발행일자 : 매일



