
자연을 품은 단지 속에서 아이의 성장과 가족의 일상이 머무는 양육친화마을
자연과 생활의 흐름 속에서 형성되는 일상의 공간들이 아이와 가족이 함께 성장하는 양육친화 마을을 만들어낸다. 화천의 자연환경을 품은 이 주거단지는 주거의 안정성과 보육환경의 공공성을 강화하며, 지역사회와 함께 호흡하는 새로운 생활 기반으로 자리 잡는다. 대지의 흐름과 주변 경관을 적극적으로 받아들인 배치를 통해 단지는 주변과 하나가 되어 자연스럽게 열린 외부공간을 형성하고, 이 외부공간은 아이와 부모, 지역 주민에게 머물고 걷고 만나는 일상의 경험을 제공한다. 단지를 가로지르는 커뮤니티 스트리트는 생활·양육·교류를 하나의 흐름으로 연결하는 중심축이 된다. 스트리트를 따라 배치된 공동육아공간, 공유주방, 작은도서관 등은 부모에게는 돌봄의 여유를, 아이에게는 놀이와 배움의 기회를 제공하며 주거단지 내부에서 자연스러운 공동체의 장면을 만들어낸다. 중앙광장과 육아마당, 새싹놀이터로 이어지는 열린 공간들은 세대 간 소통을 촉진하고, 이웃과의 삶이 겹쳐지는 풍경을 완성한다. 또한 인접한 화천형 보금자리주택과의 보행 연계를 고려하여 단지의 커뮤니티 스트리트는 인근 주거예정지와 자연스럽게 이어진다. 이를 통해 두 단지는 단순한 주거 단위를 넘어 보행과 양육환경을 공유하는 넓은 생활권을 형성하며, 장기적인 도시 맥락 속에서 함께 성장할 기반을 마련한다.
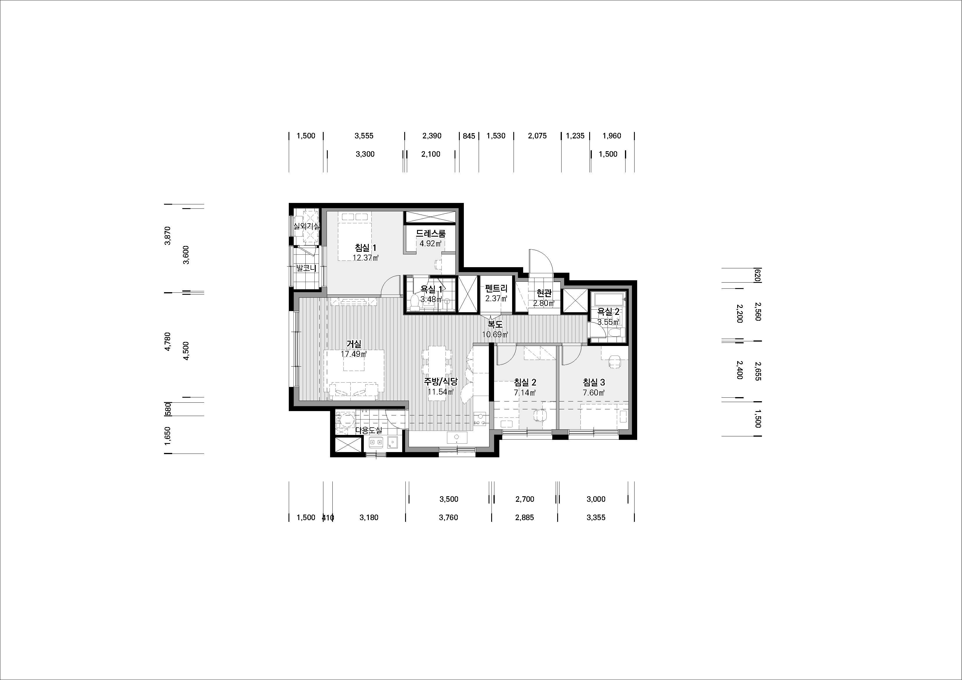
주거동은 남향 위주로 배치해 안정적인 일조와 조망을 확보하고, 가족 구성과 성장 변화를 고려한 가변형 단위세대는 신혼부부부터 학령기 자녀를 둔 가족까지 일상의 변화에 유연하게 대응할 수 있는 생활공간을 제공한다. 이러한 공간 구성은 가족의 성장과 함께 축적되는 일상을 안정적으로 수용하며, 지역 안에서 장기적으로 정착할 수 있는 주거 기반을 마련한다. 차량 동선은 외곽 순환형으로 분리하여 단지 내부는 안전한 보행 중심 공간으로 유지되고, 단지 전반에 배치된 조경은 화천천과 주변 산세의 흐름을 이어 받아 자연과 일상이 겹쳐지는 부드러운 경관을 만들어낸다. 이러한 공간 구성은 아이에게는 안전한 놀이환경을, 부모에게는 안심할 수 있는 일상을, 지역사회에는 열린 공유의 장소를 제공하며 일상이 자연스럽게 스며드는 따뜻한 공동체를 형성한다.


















(주)건축사사무소이름
당선작_(주)건축사사무소이름(https://www.ereumarc.com)
대표건축가 송규남
대지면적 8,523.00㎡
연면적 7,028.72㎡
건축면적 816.51㎡
건폐율 9.58%
용적률 79.32%
세대수 60세대
최고높이 47.2m
층수 공동주택 : 지상 15층 부대복리시설 : 지하1층,지상1층
구조 벽식구조 / 철근콘크리트구조 구조
대표건축가 송규남
디자인팀 최현영, 송유근, 홍기표, 하주영, 권산이, 서유정, 한창수
조경면적 1,699.61㎡
주차대수 121대
발주처 화천군
'Plans' 카테고리의 다른 글
| 진밭골 목재친화도시 건립공사 설계공모_ 당선작 / Kengo Kuma & Associates+건축사사무소 김이홍아키텍츠 (0) | 2025.12.18 |
|---|---|
| 마금 커뮤니티센터 조성사업 건축설계 용역(간이공모)_ 3등작 / 건축사사무소공이일+스테이건축사사무소 (0) | 2025.12.18 |
| 「포항시 청년농촌보금자리 조성사업」 건축설계 제안공모_ 2등작 / 시우건축사사무소 (0) | 2025.12.16 |
| 소라면 죽림국민체육센터 건립 건축 설계공모_ 4등작 / 오픈스튜디오건축사사무소 (0) | 2025.12.16 |
| 전북연구원 건립사업(국산목재 목조건축 실연사업) 건축설계공모_ 5등작 / 오픈스튜디오건축사사무소 (0) | 2025.12.16 |
마실와이드 | 등록번호 : 서울, 아03630 | 등록일자 : 2015년 03월 11일 | 마실와이드 | 발행ㆍ편집인 : 김명규 | 청소년보호책임자 : 최지희 | 발행소 : 서울시 마포구 월드컵로8길 45-8 1층 | 발행일자 : 매일



