
3 MASSES + 2 SPACES
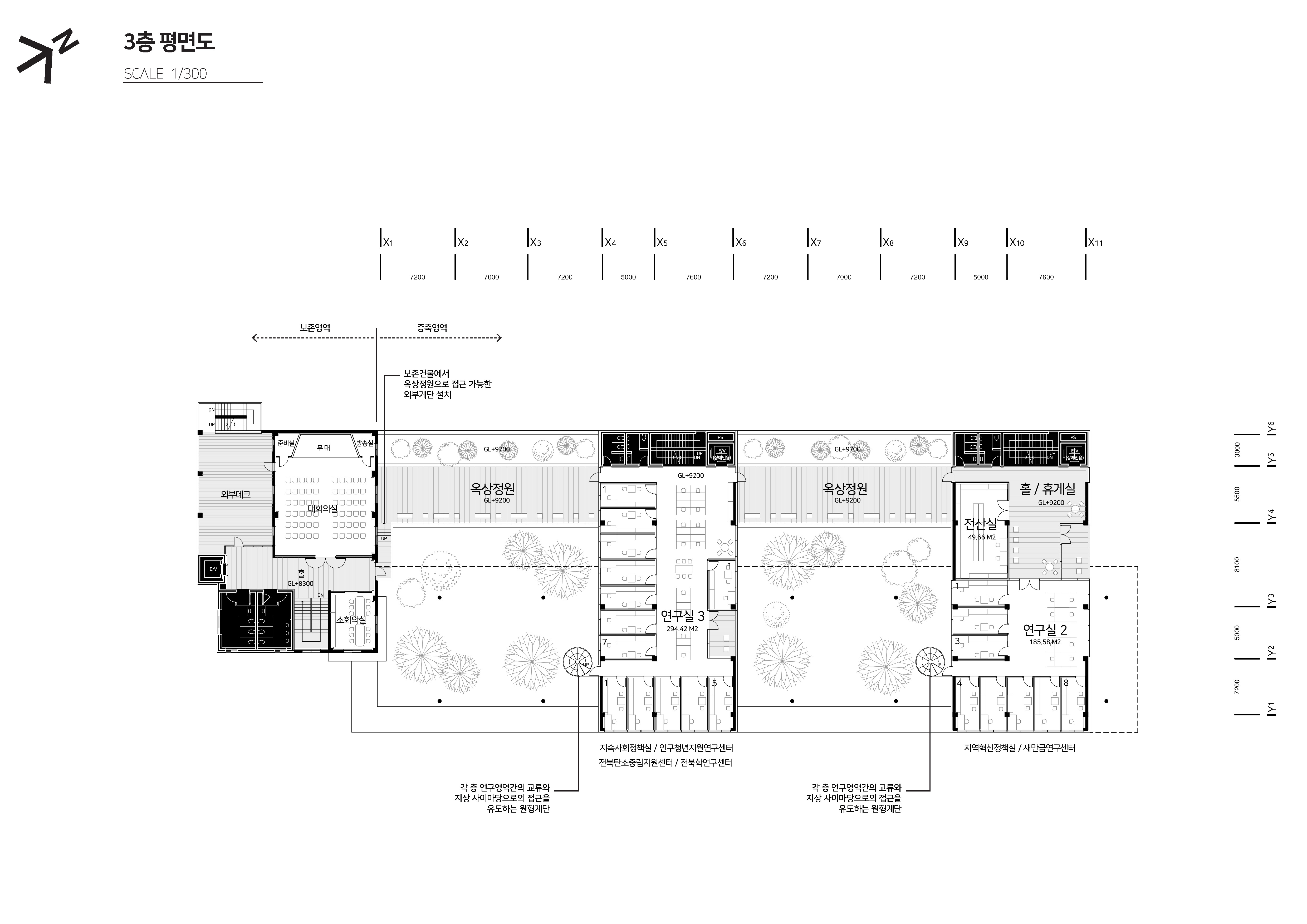
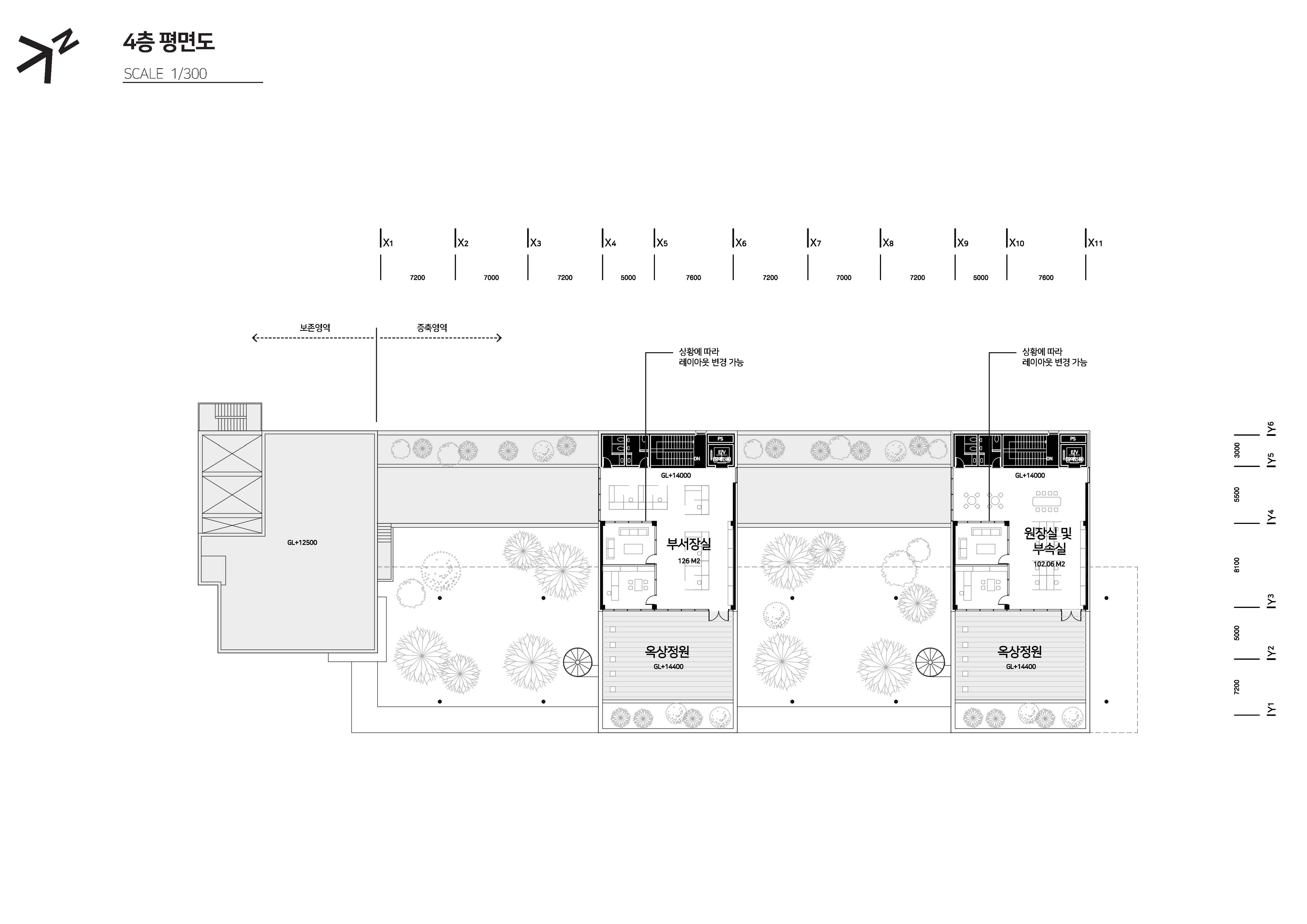
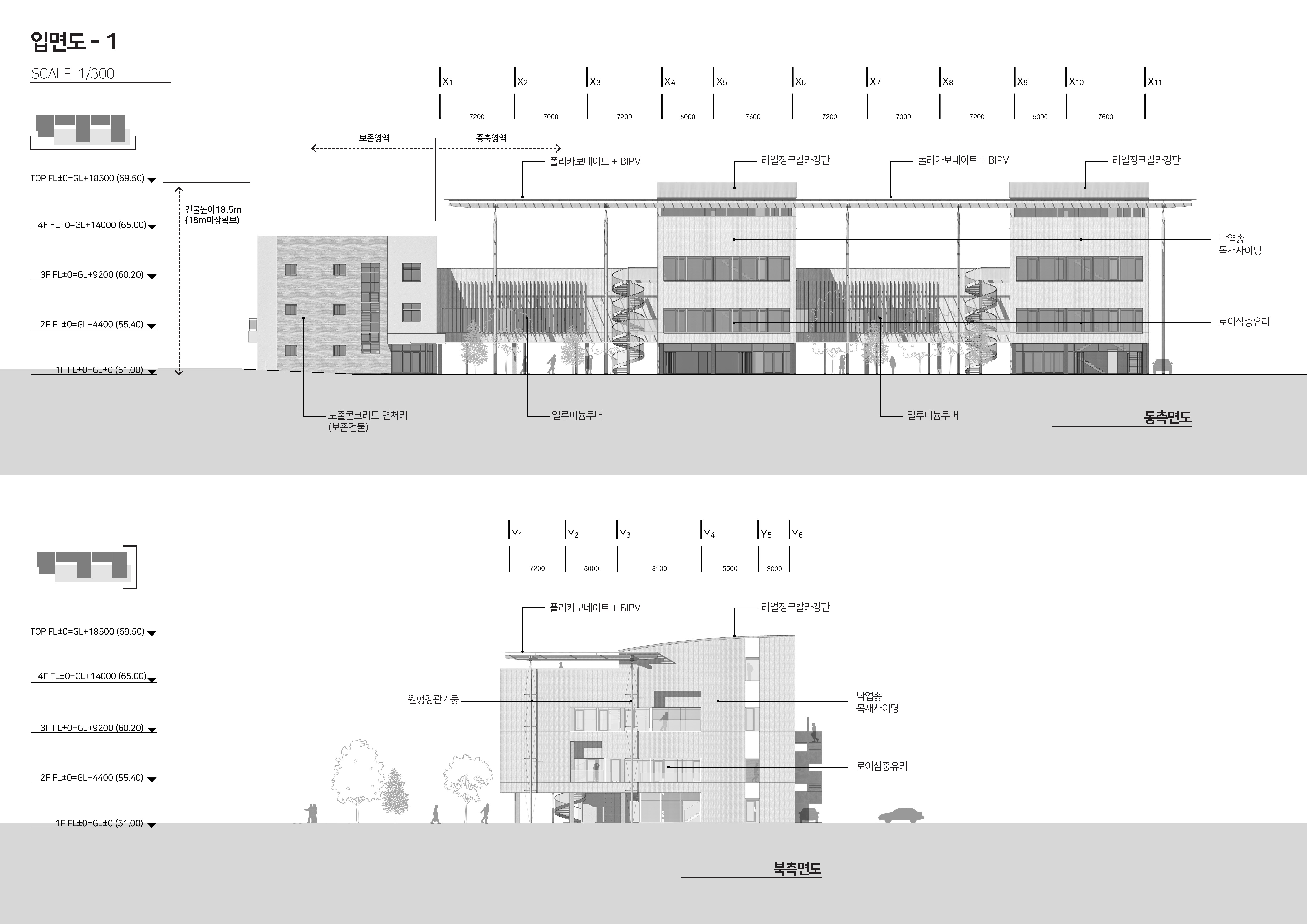
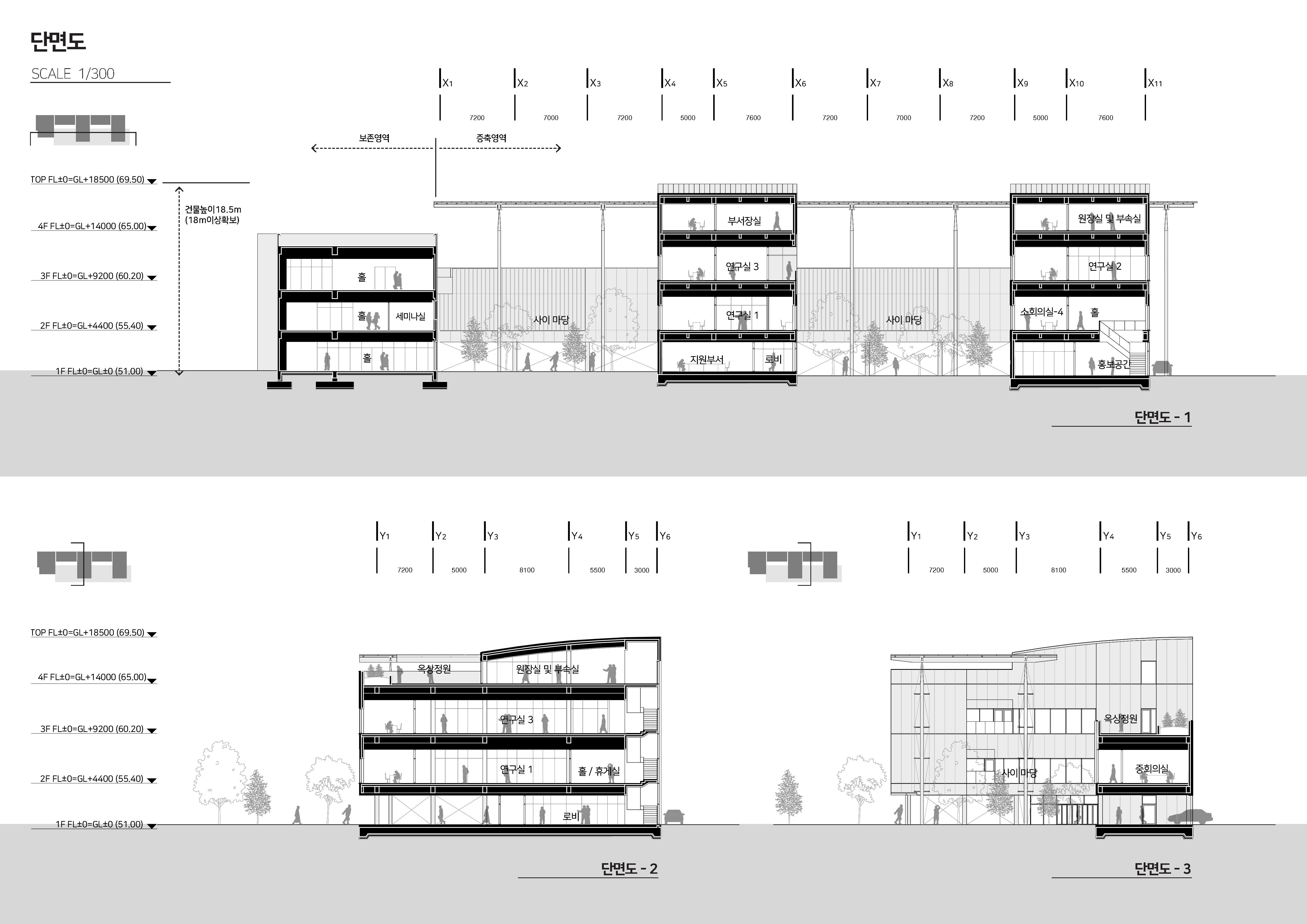
본 프로젝트는 대지 내에 있던 7개의 건물 중 6개의 건물을 철거하고 신관을 증축하는 방식으로 진행된다. 우리는 새롭게 지어질 신관과 보존건물과의 연계, 주변 환경과의 조화로운 배치가 가장 큰 이슈라고 판단했고, 그에 대한 대안으로 '3개의 매스와 2개의 공간 (3 MASSES + 2 SPACES)' 를 제안한다. 건물은 기존 건물과 연결되는 2개의 연구영약과 그를 잇는 보조영역, 그리고 그 사이에 위치하는 외부공간으로 구성된다. 2개의 연구영역은 대지를 적절히 분할하면서 띄워져 있어 자연스럽게 사이공간을 형성하며, 보존건물 또한 전체 건물의 일부로 포섭하여 전체 부지를 폭넓게 활용한다. 사이공간에는 다양한 수목과 편의시설들이 설치되어 연구자들이 편안하게 쉴 수 있는 휴식처가 되며, 연구자들이 항상 자연을 보며 연구할 수 있는 환경을 조성한다. 보존건물과 2개의 연구영역을 연결하는 보조영역은 연구활동을 서포트하는 회의실과 식당, 휴게실 등으로 구성되며 모든 시설에서 손쉽게 접근할 수 있어 효과적으로 활용된다. 새롭게 건립될 전북연구원이 쾌적하고 효율적인 연구환경과 함께 우리나라 목구조 건축물에 있어서 선도적인 역할을 수행하기를 기원한다.














오픈스튜디오건축사사무소
5등작_오픈스튜디오건축사사무소(https://www.openstudioarchi.com/)
대표건축가 김선동
대지면적 9862㎡
연면적 2741.21㎡ (보존건물 제외)
건축면적 1924.66㎡ (보존건물(8동) 건축면적 380.06 ㎡ 포함. 금회증축분 1544.6 ㎡ )
건폐율 19.52 % (보존건물(8동) 3.85% 포함. 금회증축분 15.66%. 법정 20%)
용적률 35.20 % (보존건물(8동) 10.03% 포함. 금회증축분 25.17%. 법정 100%)
최고높이 18.5m (목조건축 실연사업을 위한 높이 18m 이상으로 계획)
층수 지하 1층, 지상 4층
구조 중목구조, 철근콘크리트 구조
대표건축가 김선동
디자인팀 김선동, 김현진
조경면적 1809.51㎡
주차대수 66대(확장형 주차장 20대, 장애인주차장 2대 포함)
발주처 전북특별자치도
'Plans' 카테고리의 다른 글
| 「포항시 청년농촌보금자리 조성사업」 건축설계 제안공모_ 2등작 / 시우건축사사무소 (0) | 2025.12.16 |
|---|---|
| 소라면 죽림국민체육센터 건립 건축 설계공모_ 4등작 / 오픈스튜디오건축사사무소 (0) | 2025.12.16 |
| 진동보훈문화관 건립사업 설계공모_ 3등작 / 건축사사무소 일다 (0) | 2025.12.12 |
| 부산광역시 국민안전체험관 건립 설계공모_ 5등작 / 짓다 건축사사무소 (0) | 2025.12.12 |
| 부산광역시 국민안전체험관 건립 설계공모_ 2등작 / 건축사사무소 아익 (0) | 2025.12.12 |
마실와이드 | 등록번호 : 서울, 아03630 | 등록일자 : 2015년 03월 11일 | 마실와이드 | 발행ㆍ편집인 : 김명규 | 청소년보호책임자 : 최지희 | 발행소 : 서울시 마포구 월드컵로8길 45-8 1층 | 발행일자 : 매일



