
무엇을 ‘경험’하게 하고, 무엇을 ‘남기게’ 하는 공간인가?
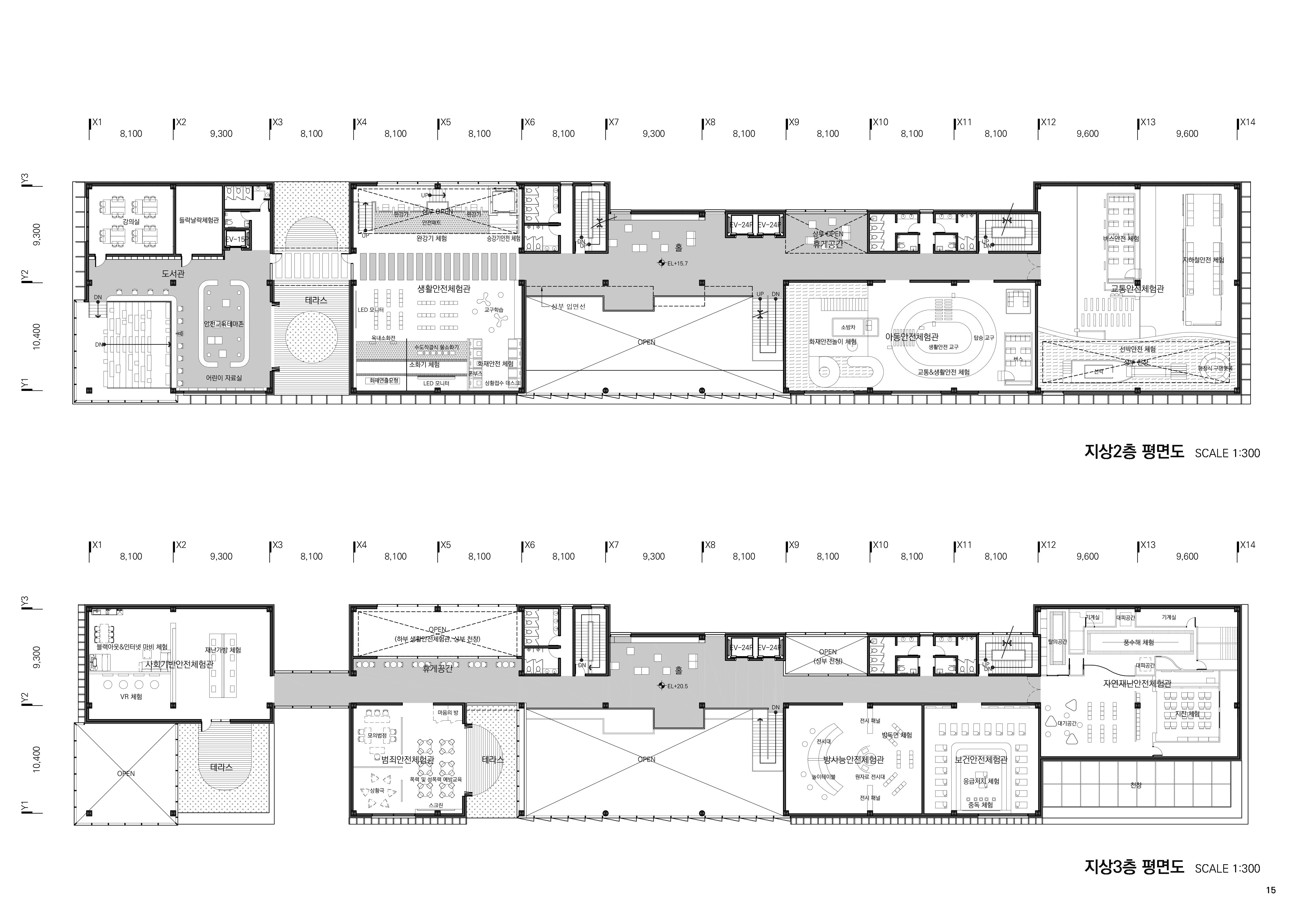
안전체험관은 재난을 전시하는 것이 아니라, 경험을 통해 안전의 의미를 배우고 이를 일상으로 확장시키는 학습의 장이다. 이 프로젝트는 학습 과정 속에서 나타나는 심리적 긴장과 이완, 가상과 현실속 재난에 대한 경계를 건축적으로 해석한다. 따라서 공간은 단순한 시뮬레이션의 나열이 아니라, 몰입된 경험을 위한 가상의 재난 체험공간인 “블랙박스”, 현실감 있는 경험을 위한 일상속 재난을 재현한 공간인 “그레이 박스” 체험을 통해 형성된 긴장감을 이완해주는 심리적 완충공간인 “라이트박스”를 통해 빛을 매개로 한 경험-회복-학습의 연속적 흐름으로 구성된다.














짓다 건축사사무소
5등작_짓다 건축사사무소(https://zitta13.com/)+CMM 건축사사무소(https://cmmarchitects.com/)
대표건축가 조윤경(짓다 건축사사무소), 방기애(CMM 건축사사무소)
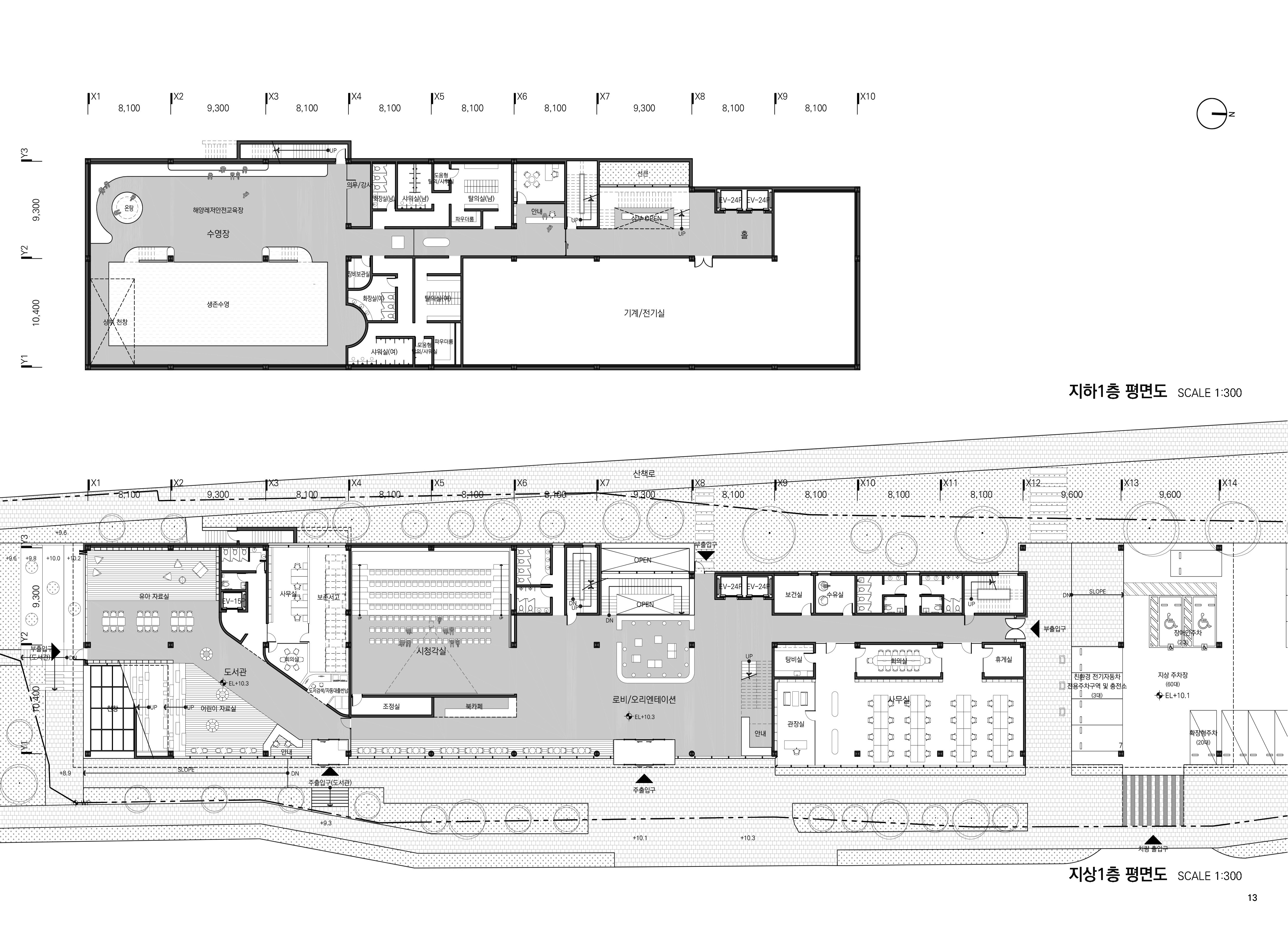
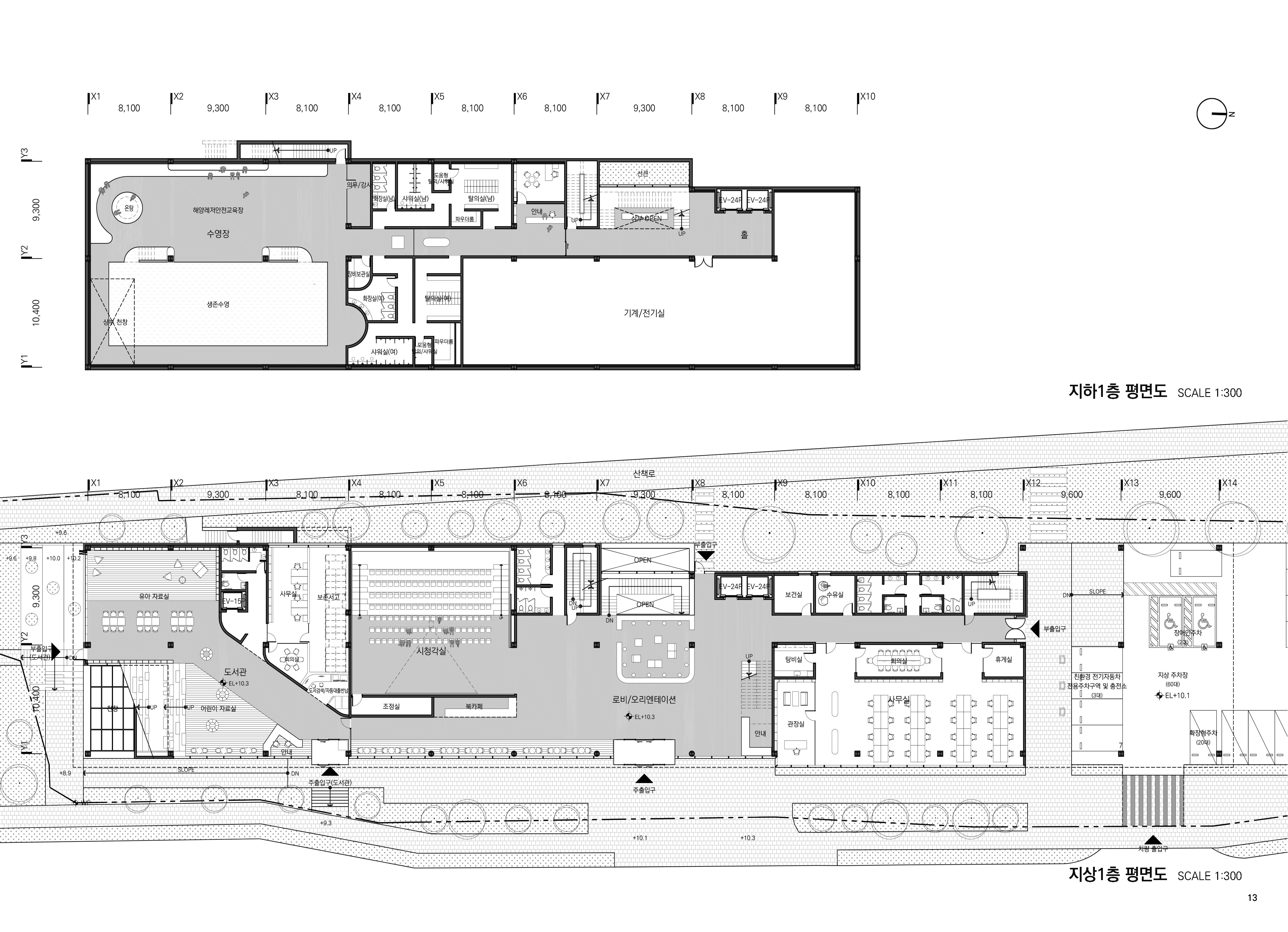
대지면적 5,264㎡
연면적 6,170.41㎡
건축면적 2,162.38㎡
건폐율 41.08%
용적률 90.26%
최고높이 15.6m
층수 지하 1층, 지상 3층
구조 철골철근콘크리트구조
대표건축가 조윤경(짓다 건축사사무소), 방기애(CMM 건축사사무소)
디자인팀 김동현,박영진,김승준(짓다 건축사사무소), 엄태규(CMM 건축사사무소)
조경면적 1123.72㎡
주차대수 60대
발주처 부산광역시 건축정책과
'Plans' 카테고리의 다른 글
| 진동보훈문화관 건립사업 설계공모_ 3등작 / 건축사사무소 일다 (0) | 2025.12.12 |
|---|---|
| 부산광역시 국민안전체험관 건립 설계공모_ 2등작 / 건축사사무소 아익 (0) | 2025.12.12 |
| 부산광역시 국민안전체험관 건립 설계공모_ 4등작 / 주식회사 라움건축사사무소 (0) | 2025.12.11 |
| 김천시 농업 근로자 기숙사 건립사업 건축 설계공모_ 5등작 / 오오에이 건축사사무소 (0) | 2025.12.11 |
| 경남 글로벌 융복합 콘텐츠산업타운 조성사업 건축설계공모_ 2등작 / 건축사사무소공이일+스테이건축사사무소 (0) | 2025.12.11 |
마실와이드 | 등록번호 : 서울, 아03630 | 등록일자 : 2015년 03월 11일 | 마실와이드 | 발행ㆍ편집인 : 김명규 | 청소년보호책임자 : 최지희 | 발행소 : 서울시 마포구 월드컵로8길 45-8 1층 | 발행일자 : 매일



