
수영강의 흐름에 순응하면서 도시는 선형적인 개발이 이루어졌고, 강의 흐름에 따른 여러 레이어가 만들어지면서 오히려 선형을 거스르는 방향으로 단절이 생겼다.
이 선형의 구성은 물리적 단절뿐만 아니라 심리적, 정서적, 도시맥락적인 단절을 부추기고 있다. 어쩔 수 없이 이 장소에 건축 행위를 해야한다면, 선형적인 레이어에 순응하면서도 시선적인 비움, 물리적인 비움, 조형적인 비움 등을 통해서 서로 소통할 수 있게 하고, 결국 도시를 직교적으로 연속케하여 관계를 맺을 수 있도록 해야 한다.















주식회사 라움건축사사무소
4등작_주식회사라움건축사사무소(http://rauma.co.kr/)
대표건축가 오신욱
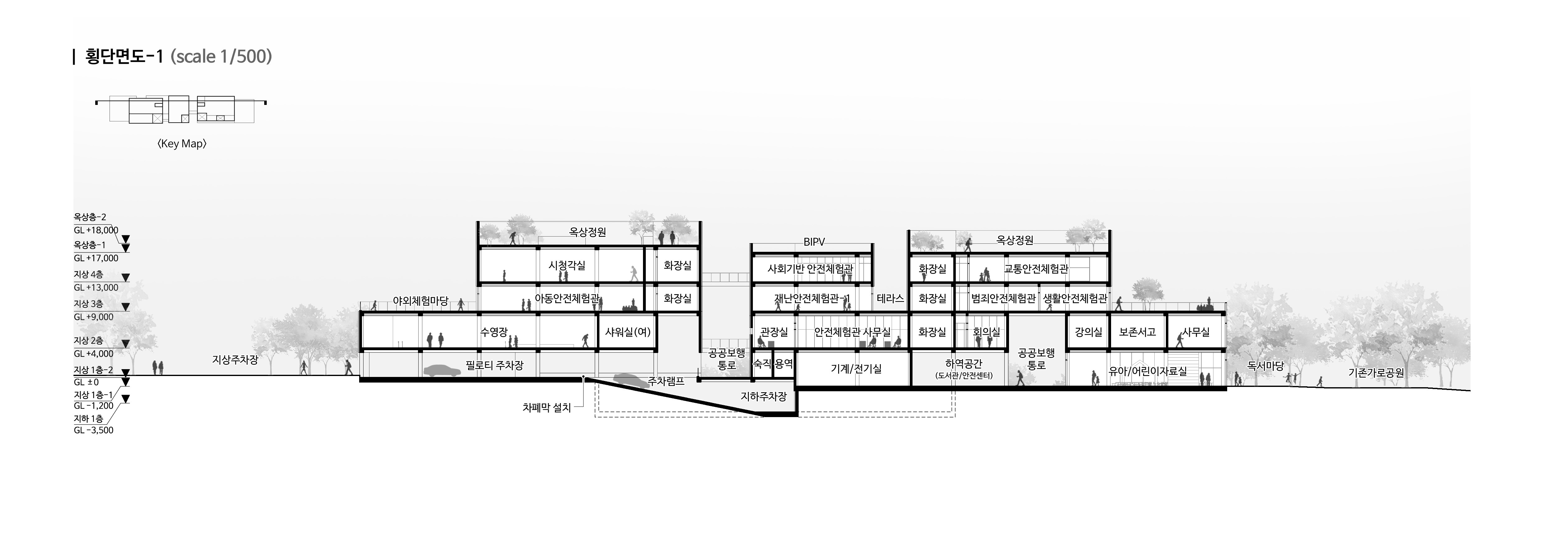
대지면적 5,264.00㎡
연면적 6,281.32㎡
건축면적 2,327.02㎡
건폐율 44.21%
용적률 103.92%
최고높이 21.6m
층수 지하 1층, 지상 4층
구조 철근콘크리트구조
대표건축가 오신욱
디자인팀 황혜정, 정제석, 강지현, 박나원
조경면적 850.74㎡
주차대수 63대
발주처 부산광역시 주택건축국 건축정책과
'Plans' 카테고리의 다른 글
| 부산광역시 국민안전체험관 건립 설계공모_ 5등작 / 짓다 건축사사무소 (0) | 2025.12.12 |
|---|---|
| 부산광역시 국민안전체험관 건립 설계공모_ 2등작 / 건축사사무소 아익 (0) | 2025.12.12 |
| 김천시 농업 근로자 기숙사 건립사업 건축 설계공모_ 5등작 / 오오에이 건축사사무소 (0) | 2025.12.11 |
| 경남 글로벌 융복합 콘텐츠산업타운 조성사업 건축설계공모_ 2등작 / 건축사사무소공이일+스테이건축사사무소 (0) | 2025.12.11 |
| 동강 영월 더 웰타운 공공임대주택 건축설계공모_ 당선작 / 스튜디오인로코 건축사사무소 (0) | 2025.12.10 |
