
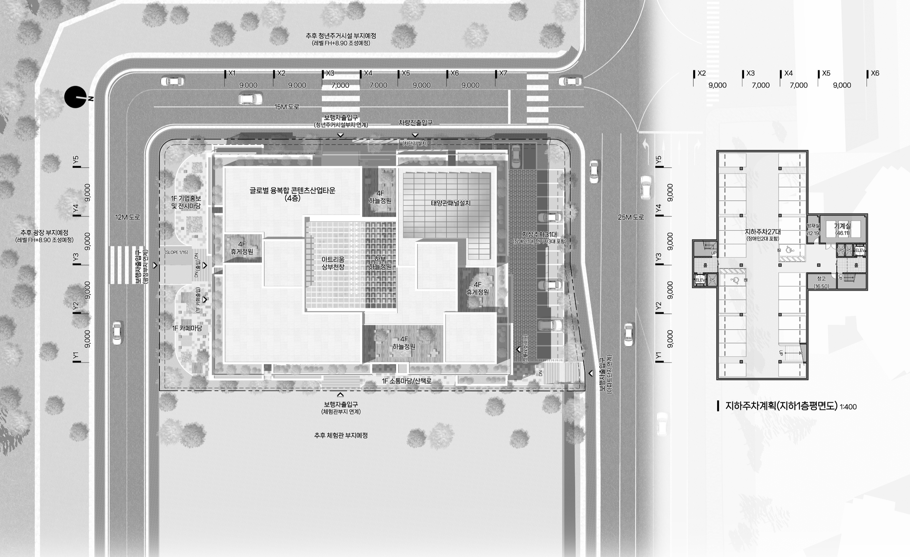
핵심 키워드는 ‘클라우드(Cloud)’로 디지털 세상의 정보가 구름처럼 모이고 흩어지듯, 창의적인 생각들이 자유롭게 융합되는 공간을 만들고자 한다. 이 ‘클라우드’라는 개념은 평면과 단면, 입면 디자인 전체를 관통하는 주제로 가장 중요한 것은 소통의 위계이다. 개별 기업들이 사용하는 단위 공간 사이사이에는 소규모 소통 공간인 ‘클라우드 라운지’를 배치해 우연한 만남을 유도했다. 이 공간들은 다시 ‘코워킹 라운지’나 ‘스마트 아카이브’ 등과 같은 중규모 소통 공간으로 확장되며, 최종적으로는 건물의 중심을 관통하는 거대한 ‘아트리움’에서 하나로 연결된다. 이처럼 작은 구름들이 모여 거대한 네트워크를 형성하듯, 공간의 위계가 자연스럽게 연결되는 ‘입체적 클라우드 플랫폼’을 제안했다.










건축사사무소공이일+ 스테이건축사사무소
2등작_ 건축사사무소공이일(https://archistudio021.com)+스테이건축사사무소(https://www.stayarchitects.com/)
대표건축가 건축사사무소공이일(송호승), 스테이건축사사무소(윤지훈)
대지면적 3,558㎡
연면적 6,442.65㎡
건축면적 2,222.00㎡
건폐율 62.40%
용적률 157.00%
최고높이 19.5m
층수 지하 1층, 지상 4층
구조 철근콘크리트구조, 철골철근콘크리트구조
대표건축가 건축사사무소공이일(송호승), 스테이건축사사무소(윤지훈)
디자인팀 윤한민
조경면적 714.39㎡
주차대수 58대
발주처 김해시
'Plans' 카테고리의 다른 글
| 부산광역시 국민안전체험관 건립 설계공모_ 4등작 / 주식회사 라움건축사사무소 (0) | 2025.12.11 |
|---|---|
| 김천시 농업 근로자 기숙사 건립사업 건축 설계공모_ 5등작 / 오오에이 건축사사무소 (0) | 2025.12.11 |
| 동강 영월 더 웰타운 공공임대주택 건축설계공모_ 당선작 / 스튜디오인로코 건축사사무소 (0) | 2025.12.10 |
| 진동보훈문화관 건립사업 설계공모_ 2등작 / 그랑건축사사무소 (0) | 2025.12.08 |
| 지역맞춤형 수산종자 실용화센터 건립사업 건축 설계공모_ 2등작 / 건축사사무소 하루 (0) | 2025.12.08 |
마실와이드 | 등록번호 : 서울, 아03630 | 등록일자 : 2015년 03월 11일 | 마실와이드 | 발행ㆍ편집인 : 김명규 | 청소년보호책임자 : 최지희 | 발행소 : 서울시 마포구 월드컵로8길 45-8 1층 | 발행일자 : 매일



